Раздел земельного участка – от закона к практике
фото
документы

пример схемы расположения участков на кадастровом плане территории (1-я стр.) - для нескольких участков
Содержание:
- Делимые и неделимые участки
- Когда разрешён и запрещён раздел земельного участка?
- Ориентир при разделе участка – сопоставимость размера образуемых наделов с установленными предельными нормами
- Самостоятельность участка – что это означает?
- Соглашение собственников на раздел участка
- Межевание
- Присвоение почтовых адресов образуемым участкам
- Кадастровый учёт и государственная регистрация прав на образованные земельные участки
1. Делимые и неделимые участки
Собственники земельных участков (ЗУ) иногда задумываются об их разделе на две или несколько частей. Одну из них, при необходмости, можно подарить, оставить в наследство или передать бывшегу супругу в случае семейного развода.
Размышления житейские и вполне оправданные. Но разделить участки получается не всегда:
- одни являются делимыми
- другие попадают в группу неделимых, раздел которых запрещён
Какие условия определяют градацию участков на делимые и неделимые?
Делимость и неделимость участков зависит от их целевого назначения. Оно устанавливается в зависимости от многих факторов:
- природных особенностей территории
- ландшафта
- плодородия
- возможности использования получающихся при разделе частей как самостоятельных наделов с сохранением исходного назначению земли
Делимыми считаются такие участки, котрорые после раздела:
- не теряют своей сущности
- сохраняют исходное целевое использование для образованных меньших территорий
Неделимыми являются участки, раздел которых может вызвать:
- нарушение режима использования
- изменение целевого назначения
Например, участок для ИЖС с домом, в котором проживают 2 семьи, можно разделить, но при этом:
- потребуется разделить строение
- выявится, что размеры площади образованных частей участка скажутся на их правовом статусе:
- останутся в долевой собственности (то есть исходный ЗУ оказался неделимым)
- станут самостоятельными объектами права (исходный участок делимый)
Участок под многоквартирным жилым домом неделимый. Его можно распределить только в долях между собственниками жилья пропорцинально площадям их квартир. Невозможно выделить в натуре квартиру, скажем, на 8 этаже многоквартирного дома вместе с частью земельного участка, как и землю для помещений в производственных и административных зданиях.
К неделимым относятся с/х участки для ведения крестьянского (фермерского) хозяйства (пункты 1–2 статьи 9 закона № 74-ФЗ). Раздел прочих сельхозземель должен происходить так, чтобы самый малый образуемый участок не был по площади меньше установленных норм.
Обременения и ограничения, наложенные на использование исходного надела, могут оказать влияние на возможность его раздела. В зависимости от их вида участок может быть:
- неделимым, то есть на его раздел будет наложен запрет
- делимым, если существующие обременения не становятся препятствием для раздела
В числе обремений могут быть:
- обременения, связанные с правом пользования землёй:
- сервитут
- запрет на размещение объектов в охранных зонах
- иные
- ограничения по распоряжению участком:
- ипотека
- долгосрочная аренда свыше 1 года
- доверительное управление
- арест по решению суда
- концессия
- обременения, связанные не с землей, а с находящимися на ней объектами недвижимости, имеющими статус памятников культуры
При наличии обременений и ограничений становятся важными:
- их срок
- точные временные границы действия
Оценка влияния обременений позволит прийти к пониманию возможности раздела.
Резюме
Неделимый земельный участок – это надел, в отношении которого невозможно установить право собственности на его отдельную часть:
- ЗУ выступает объектом права в целом:
- права единственного собственника участка
- права общей собственности нескольких собственников
При наличии на участке здания, находящегося в собственности нескольких лиц, правом на ЗУ может быть только общая собственность (пункт 2 статьи 39.20 ЗК РФ)
Делимый участок – надел, на отдельные части которого можно установить право собственности, причём эти части обладают следующими признаками одновременно:
- не нарушают режим использования
- имеют площади и границы
- выступают объектами права их собственников
2. Когда разрешён и запрещён раздел земельного участка?
Как можно разделить делимый участок? Существуют ли какие-то правила? Что нужно учесть при разделе? Да, правила есть. Они изложены в ЗК РФ (статья 11.4).
Раздел участка разрешается, если выполняются следующие условия:
- делимость надела
- части участка после раздела:
- становятся самостоятельными ЗУ
- разрешённое использование каждого образуемого ЗУ может выполняться без перевода в состав земель иной категории (за исключением случаев, установленных федеральными законами)
Условия запрета на раздел участков
Полный перечень ситуаций, когда раздел ЗУ не разрешён законом изложен в пункте 4 статье 11.9 ЗК РФ:
- невозможность эксплуатации после раздела:
- объектов недвижимости по их назначению, находящихся на ЗУ
- образованных наделов в соответствии с ВРИ – из-за сохранённых обременений (ограничений) исходного надела
- при разделе участка:
- образуемые ЗУ вклиниваются или вкрапливаются в другие
- появляется изломанность границ, чересполосица
- создаётся невозможность размещения объектов недвижимости
- выявляются недостатки, препятствующие использованию и охране земель
- границы образуемого ЗУ пересекаются с границами территориальных зон, лесничеств, лесопарков
- наделы, образуемые при разделе исходного участка, остаются без самостоятельных подъездов и выходов к местам общего пользования (дорогам, проездам и выездам):
- возникает ограничение прав владельцев иных ЗУ, обязанных обеспечить проход или проезд к образованному наделу по территории своих наделов
3. Ориентир при разделе участка – сопоставимость размера образуемых наделов с предельными нормами
Термины «размеры участка», «реальные размеры доли» (или «доли в натуре») связаны с более сложным понятием – градостроительными регламентами, устанавливаемыми Правилами землепользования и застройки (ПЗЗ).
Градостроительные регламенты вводят конкретику в использование земли в соответствии с её назначением. На их основе на территориях населённых пунктов и за их границами земельные участки группируются в территориальные зоны:
- зоны жилого строительства
- с/х зоны
- производственные зоны
- зоны размещения деловых и коммерческих объектов
- т.д.
Градостроительные регламенты ужесточают ситуацию с застройкой наделов:
- устанавливают:
- предельные минимальные и предельные максимальные размеры участков
- параметры строительства объектов
- налагают запрет на строительство (например, на полевых участках для ведения ЛПХ)
Предельные размеры ЗУ «говорят» о том, что размеры образуемых наделов не должны быть меньше минимальной и больше максимальной площадей ЗУ, установленных градостроительным регламентом.
Раздел участка, выдел части земель из общей доли или доли из об общедолевой собственности (при согласии на это всех дольщиков) означает:
- определение границ образующихся ЗУ на местности
- преобразование их в самостоятельные участки
без изменения категории земель и изменения их ВРИ. Все эти требования к земельным участкам, образуемым в ходе раздела, изложены в статье 11.9 ЗК РФ.
Вывод 1
Случаи, когда раздел земельного участка, выдел в натуре доли в праве собственности не допускается:
- существует запрет на раздел земли:
- например, не могут разделяться участки для ведения крестьянского (фермерского) хозяйства
- у образованных наделов:
- площадь не соответствует установленным предельным размерам
- размеры превышают максимальные размеры земельных участков
- нет собственных подъездов и подходов
Вывод 2
Итоги раздела исходного участка или выдела в натуру части из совместной и доли из общедолевой собственности должны быть такими:
- образуются участки, соответствующие предельным размерам, самостоятельные участки
- исходный участок:
- прекращает существование
- снимается с учёта в ГКН
- владелец исходного участка сохраняет право собственности на все образованные ЗУ
Выдел из земельного участка, находящегося в общей собственности:
- участники могут сохранить право общедолевой собственности на все образованные ЗУ
- по заключённому соглашению участники долевой собственники могут оформить право собственности на свои выделенные доли, утрачивая право долевой собственности
- исходный надел сохраняется в изменённых границах (изменённый ЗУ)
- размеры образованных ЗУ соответствуют установленным предельным нормам
4. Самостоятельность участка – что это означает?
Самостоятельность участков характеризуют:
- местоположение образованных наделов, установленное по результатам кадастровых работ, уточняющих границы:
- наделов
- смежных участков, сведения о которых внесены в ЕГРН
- идентичность ВРИ образованных наделов и исходного участка
- соответствие предельным размерам площади каждого надела
- технологическая и производственная возможность:
- деятельности, разрешённой для исходного участка
- производства с/х продукции на ЗУ:
- для ведения личного подсобного хозяйства
- для деятельности крестьянского (фермерского) хозяйства
При выделе долей из исходного надела, предназначенного для ведения ЛПХ или КФХ и находящегося в общедолевой собственности, предельные размеры не устанавливаются. Условием для этого становится деятельность:
- садоводство
- овощеводство
- цветоводство
- виноградарство
- семеноводство
- птицеводство
- пчеловодство
- товарное рыбоводство
- другая деятельность, соотвествующая назначению участка
Так установлено ФЗ «Об обороте земель сельскохозяйственного назначения» (статья 4 закона № 101-ФЗ)
Рассмотрим ситуации раздела участков:
- расположенных на землях населённых пунктов и предназначенных:
- для ИЖС и ЛПХ
- для ведения садоводствва и огородничеста
- для гаражей и участков
- для всех других видов использования
- расположенных на землях сельхозназначения:
- садовых участков
- участков для огородничества
Земельный участок, подлежащий разделу или выделу в натуру долей, должен сответствовать следующим требованиям одновременно:
- стоять на кадастровом учёте
- иметь границы
- не иметь обременений и ограничений, накладывающих запрет на проведение раздела
Раздел участка
Деление ЗУ в соответствии с установлеными требованиями значит формирование из него нескольких самостоятельных наделов. Исходный участок, находящийся в совместной или общедолевой собственности, дробится пропорционально размеру земельных долей собственников.
В ходе раздела:
- прекращается первичная целостность и существование исходного участка
- назначением и ВРИ участков, образуемых из исходного ЗУ, становятся назначение и вид использования исходного надела
- по образованным участкам производится:
- государственный кадастровый учёт
- регистрация права собственности
Порядок раздела участка включает происходит в несколько этапов:
- составление соглашения собственника (собственников):
- на раздел участка
- на выдел части из совместного или из общедолевого исходного ЗУ
- межевание
- присвоение почтовых адресов образуемым участкам
- государственный кадастровый учёт
- регистрация права собственности на образованные наделы
5. Соглашение собственников на раздел участка или выдел земельной доли из совместной или общедолевой собственности
Соглашение о разделе земельного надела заключается между всеми его собственниками. По их желанию, оно может быть удостоверено нотариально.
Если участок находится:
- в совместном владении нескольких собственников (даже если это супруги)
- в совместной или общедолевой собственности
межевание и государственный кадастровый учёт образованных участков проводится после представления в кадастровому инженеру и в службу Росреетра соглашения, подписанного:
- собственниками ЗУ
- собственниками земельных долей
Соглашение можно составить в простой письменной форме. В нём должны быть:
- сведения о собственниках ЗУ:
- паспортные данные
- адреса места жительства
- сведения об исходном участке
- адрес
- кадастровый номер
- подтверждение согласия всех собственников на раздел участка
- место оформления соглашения
- дата подписания соглашения
В соглашении указываются:
- размер доли в общем праве
- наименование и реквизиты правоустанавливающего документа
- номер записи в ЕГРН
- порядок распределения расходов на:
- межевание
- подготовку межевого плана
- государственную регистрацию права собственности
При несогласии хотя бы одного из собственников долей выдел может проводиться только по судебному решению, определяющему порядок распределения частей исходного участка. Судебное решение, как понятно, должно быть представлено в землеустроительную организацию, проводящую межевые работы.
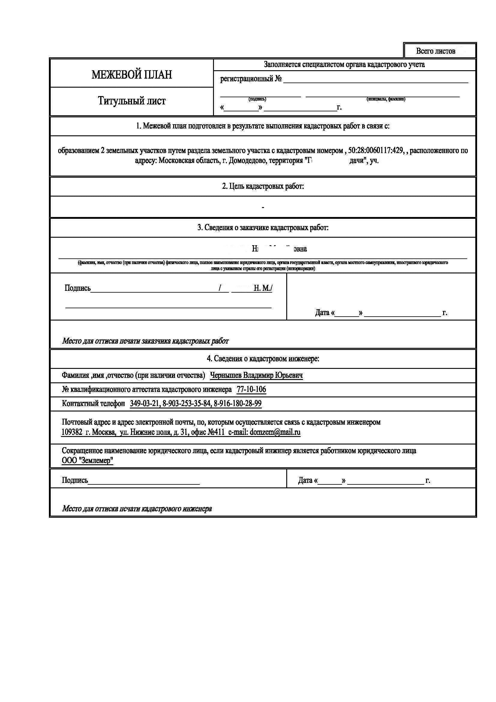
6. Межевание
Выполнять межевание может только кадастровый инженер,
Собственнику (собственникам) участка нужно::
- заключить договор подряда
- предоставить согласие о разделе
Перед проведением межевания выполняется подготовка – кадастровый инженер:
- получает:
- кадастровые выписки из ГКН на исходный участок
- кадастровый план территории
- знакомится с правоустанавливающими документами на исходный участок
- проводит оценку расположения соседних земель с выявлением точного расположения характерных точек исходной зоны во избежание пересечения границ
- устанавливает необходимость проведения полевых работ
- на основании заключения геодезической экспертизы
По результатам полевых работ кадастровый инженер:
- определяет:
- границы
- координаты поворотных точек
- площади
- разрабатывает предварительный межевой план:
- знакомит заказчика работ с вариантом площадей и конфигураций новых земельных участков
- обсуждает проект плана с землевладельцем
Полученная информации вносится в кадастр недвижимости.
Согласование границ со смежниками
ФЗ «О кадастровой деятельности» установил обязательность согласования границ образуемых при разделе участков с собственниками смежных наделов (статья 39 и статья 40 закона ФЗ № 221).
Процедурой согласования границ занимается кадастровый инженер. По его выбору, оно проводится:
- индивидуально с каждым смежником
- на общем собрании смежных землепользователей
Кадастровый инженер готовит акт согласования границ. В нём, на обороте листа графической части межевого плана, все смежники участков ставят свои подписи.
В случае отказа кем-либо из собственников смежных наделов от согласования предложенных границ и предоставления им обоснованных возражений, возражения прилагаются к к межевому плану и признаются его неотъемлемой частью (часть 4 статьи 40 федерального закона № 218-ФЗ).
В акт вносится запись о наличии возражений со стороны смежного землепользователя. Они могут быть сняты при повторном согласовании новой редакции чертежа межевого плана, который должен подготовить кадастровый инженер.
Если же возражения не сняты:
- акт будет считаться несогласованным
- участок не может быть поставлен на кадастровый учёт
Способ разрешения проблемы в этом случае - судебное разбирательство.
7. Присвоение почтовых адресов образуемым участкам
Присвоение персональных адресов образованным наделам делается на основании заявления собственника. Подать его нужно в отдел по архитектуре и градостроительству местной администрации. К заявлнию необходимо приложить:
- межевое дело
- свидетельство о праве собственности на долю в исходном наделе
- кадастровый паспорт
- соглашение собственников участка о его разделе
- судебное решение о разделе
Итогом рассмотрения заявления будет решение администрации о присвоении персональных почтовых адресов каждому из образованных земельных наделов.
Окончательный вариант межевого плана (на бумажном носителе и в электронном виде) для передачи собственнику (собственникам) земельного участка и в кадастровую службу готовится после:
- достижения полного согласия по межевому плану
- согласования границ образуемых участков со смежниками
- присвоения почтовых адресов образованным участкам
Далее собственнику (собственникам) образуемых участков неоходимо подготовить заявление в Росреестр о постановке объект а на кадастровый учёт. К нему нужно приложить:
- межевой план
- решение администрации, в котором будут указаны адреса участков
8. Кадастровый учёт и государственная регистрация прав на образованные земельные участки
Федеральным законом №218-ФЗ установлено, что при разделе земельного участка такие задачи, как:
- государственный кадастровый учёт образованных участков
- государственная регистрация прав на образованные ЗУ
- снятие с кадастрового учёта исходного участка
- прекращение права собственности на исходный ЗУ
решаются одновременно, для чего в подразделение Росррестра вместе с заявлением должны быть предоставлены следующие документы:
- документ, удостоверяющий личность
- заявление
- решение администрации о присвоении адресов образованным наделам
- межевой план (по инициативе заявителя)
- соглашение собственников или решение суда о разделе земельного участка
- документ, подтверждающий полномочия, если заявление подает представитель
При отсутствии решения администрации о присвоении адресов образованным наделам в сведениях о них указывается адрес исходного земельного участка.
Результатом рассмотрения заявления станет выписка из ЕГРН о праве собственности на образованные участки (о госрегистрации права).
Полезная информация
- О пользе применения СПОЗУ при подготовке к строительству индивидуального жилого дома можно ознакомится здесь
- Регламент подготовки и утверждения схемы расположения земельного участка на кадастровом плане территории (КПТ) – здесь
- Что такое обременение земельного участка можно узнать здесь
- Что можно строить на участках для осуществления крестьянского (фермерского) хозяйства (КФХ) – читать здесь
- Как используются участки в пожизненном наследуемом владении (ПНВ) – здесь
- С условиями оформления в собственность захваченной земли можно ознакомиться здесь
- Как используются и застраиваются участки в охранных зонах объектов культурного наследия, можно узнать здесь
- С признаками капитальных и некапитальных (временных) объектов можно ознакомиться здесь.
- Ознакомиться с тем, чем грозит ненадлежащее использование земельных участков, можно ознакомиться здесь
- С представлением о градостроительном регламенте и его значении для застройки участков можно ознакомиться здесь
- С особенностями перевода сельхозугодий в иные земли можно ознакомиться здесь
- С правилами сноса самостроя по новому закону-2018 можно ознакомиться здесь.
- Новое в земельном законодательстве – выпуск ФЗ «О ведении гражданами садоводства и огородничества...». с особенностями которого можно ознакомиться здесь.






















