Новое здание бизнес-центра класса «А» с выполнением собственником реконструкции «под ключ» в исторической части города на ул. Маяковская
Внимание! Данный объект снят с продажи!
фото
документы
Объект нового строительства с высоким уровнем оснащения инженерными системами - здание бизнес-центра класса «А» с выполнением собственником реконструкции «под ключ» в исторической части города на ул. Маяковская.
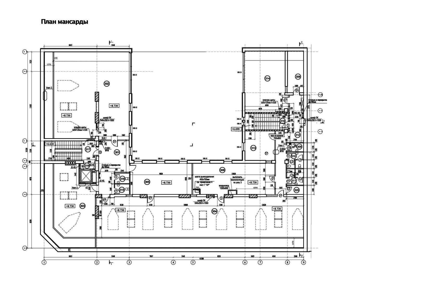
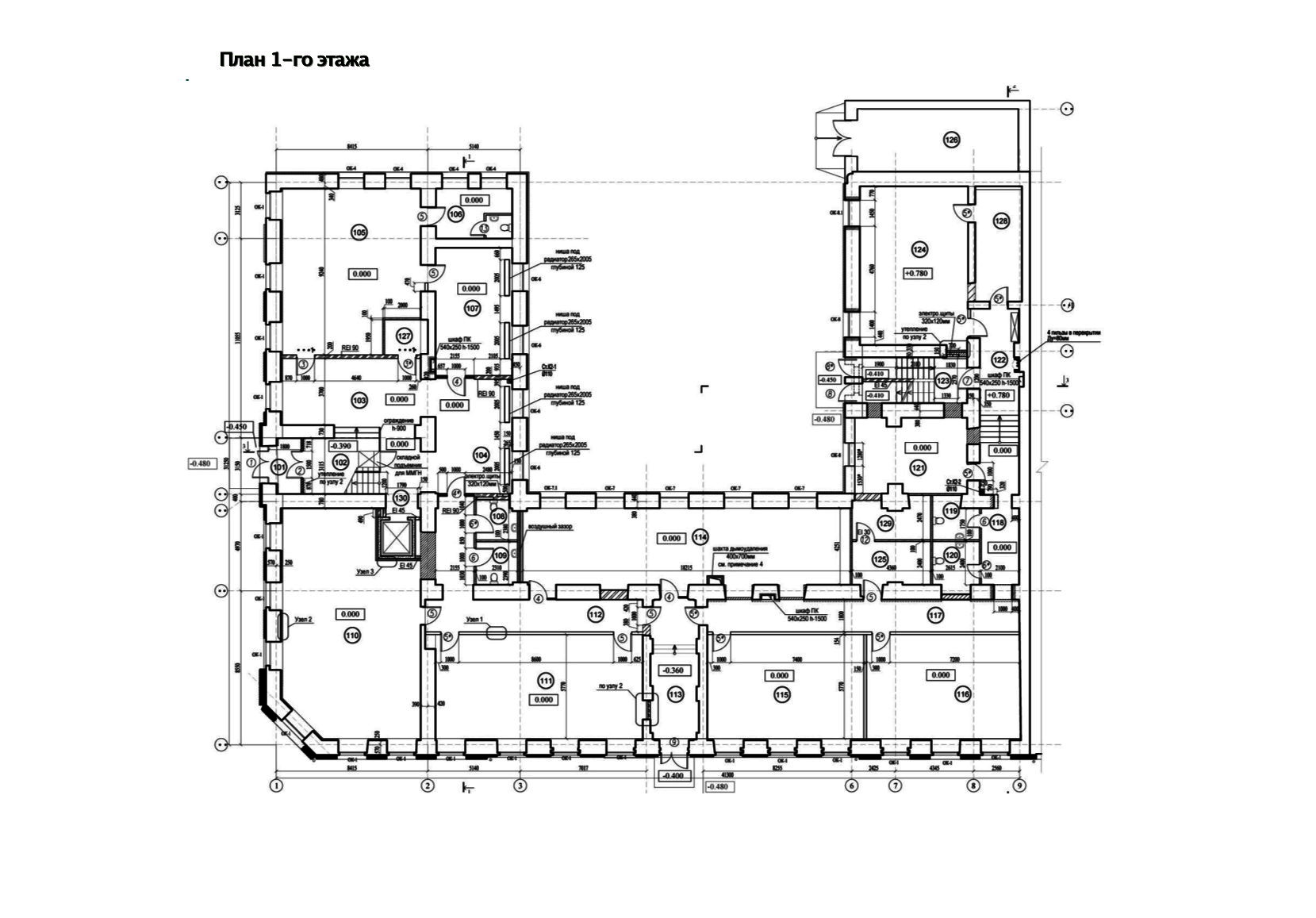
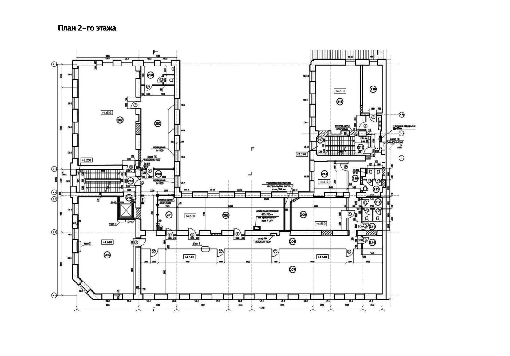
3-х этажный особняк с мансардой, бизнес-центр класса "А"
Общая площадь 2 712.5 м2
Срок ввода в эксплуатацию: 1 января 2015 года.
Расположение
Санкт-Петербург, ул. Маяковского, д. 12, лит. П.
Правовая характеристика
Категория земель: земли населённых пунктов.
Разрешённое использование: реконструкция здания и строительство нового.
Вид права:
Земельный участок под зданием - в собственности юридического лица.
Земельный участок вокруг здания - в аренде. Договор с КУГИ.
Особенности
- Объект имеет удачное местоположение в хорошо развитой части города, в центре деловой и культурной жизни Санкт-Петербурга на ул. Маяковского, д. 12, лит. П.
- В 5-ти минутной пешеходной доступности находятся Невский проспект, станции метро «Маяковская» и «Площадь Восстания», универмаг «Stockmann» и ТРК «Галерея» и Московский вокзал.
- С ноября 2013 года начались активные работы по реконструкции на Объекте, на основании Разрешения на строительство от 21 октября 2013 года.
Основные характеристики
- Площадь здания после реконструкции - 2712.5 м2
- Полезная площадь здания - 2317.3 м2
- Офисные помещения - 1682,7 м2
- Земельный участок под зданием, S = 1 111 м2
- Земельный участок вокруг здания S = 1 300 м2
- Парковочные места 20-25 м/м
Стилистическое оформление
- Зона ресепшен и общие зоны:
- Полы, ступени лестницы - плитка натуральный камень(гранит), вставка - гранит.
- Стены - окраска, отделка декоративным камнем - имитация кирпича.
- Детали (портал, торцевая стена холла, лестничный марш снизу) - панели шпонированные.
- Потолки - подвесной реечный, гнутые готовые панели Armstrong.
- Ограждение лестницы - матовое стекло
- Офисные помещения:
- Стены обшивка ГКЛ по металлическому каркасу в два слоя
- Откосы ГКЛВ в один слой
- Перегородки ГКЛ по мет. каркасу в два слоя
- Потолок подвесной «Ecophon» (тип Alaid)
- Пол черновая стяжка с уровнем - 15 мм от уровня чистого пола помещения
Инженерное обеспечение
Электроснабжение
|
Поставщик услуг |
Объём |
Примечание |
|
|
|
|
|
ОАО «Ленэнерго» |
163 кВт |
100 кВт - строительная мощность по первому этапу |
|
|
|
|
|
ОАО «Теплосеть СПб» |
0.3 Гкал/час |
|
|
|
|
|
|
ГУ «Водоканал СПб» |
|
|
|
Водоснабжение
ИТОГО |
0.16 м3/час
1.13 м3/час
1.29 м3/час |
Без учёта нужд пожаротушения
Внутреннее пожаротушение |
|
|
|
|
|
Водоотведение
ИТОГО |
0.08 м3/час
0.36 м3/час
0.44 м3/час |
Сброс бытовых сточных вод
Сброс поверхностных вод
|
Водоснабжение
- В здании предусматривается раздельная система хозяйственно-питьевого и противопожарного водопровода.
- Предусматривается установка дополнительного фильтра тонкой очистки (100 мкм) на магистральной сети хозяйственно питьевого водопровода в помещении водомерного узла.
- Здание оборудовано системами холодного и горячего водоснабжения.
- Для бесперебойного горячего водоснабжения, во время ремонтных работ на тепловой сети в помещении ИТП устанавливается накопительный бойлер объемом 200 с электрическими нагревательными ТЭНами.
- Бытовая и производственная канализация.
- Внутренние водостоки.
Внутренние сети канализации
Отопление
- Проектом предусматривается устройство системы центрального отопления здания.
- Источник теплоснабжения - наружные тепловые сети.
- Температуру в радиаторах можно регулировать с помощью терморегуляторов, установленных на каждом приборе.
Вентиляция и кондиционирование
- Централизованная система вентиляции.
- Управление системами вентиляции осуществляется с блоков управления, установленных в венткамере .
- Система кондиционирования - централизованная, с разбивкой по этажам (для каждого своя система),
- если на одном этаже система выходит из строя, на других, кондиционеры продолжают работать.
Система диспетчеризации
Щит диспетчеризации ЩД - для сбора сигналов от локальных инженерных систем здания размещается в помещении охраны.
Система диспетчеризации инженерного оборудования предназначена для решения задач диспетчерского контроля и управления инженерными системами здания, таких как:
- непрерывный централизованный контроль исправности систем охранной сигнализации, пожарной сигнализации, системы видеонаблюдения;
- непрерывный централизованный контроль параметров работы систем вентиляции;
- непрерывный централизованный контроль параметров работы индивидуального теплового пункта;
- непрерывный централизованный контроль состояния оборудования водоснабжения и канализации;
- непрерывный централизованный контроль состояния оборудования системы электроснабжения;
- формирование архива, регистрирующего параметры работы контролируемого оборудования;
- формирование предупредительной и аварийной сигнализации при возникновении неисправности контролируемого оборудования или при выходе значений контролируемых технологических параметров за допустимые границы. Основной целью создания системы является реализация надежного и безопасного управления инженерными система комплекса.
Cистема охранного телевидения
- Система видеонаблюдения обеспечивает круглосуточное наблюдение за объектом.
- Устанавливаются внешние и внутренние камеры видеонаблюдения, сигнал от видеокамер подается на монитор видеонаблюдения.
- Мониторы видеонаблюдения и пульт управления размещается за стойкой ресепшн в соответствии с дизайн-проектом помещения.
Cистема охранной сигнализации
- Здание оборудовано системой контроля и управления доступом.
- Доступ предоставляется после поднесения бесконтактной карты к считывателям.
- Одна наружная дверь оборудуется возможностью удаленного открытия.
- На входах в здание установлены вызывные панели для связи с постом охраны в нерабочее время. В помещении охраны расположены мониторы видеодомофонов.
- Окна здания оснащаются системой сигнализации.
- Осуществляется система защиты технических и программных средств от несанкционированного доступа к элементам управления, установки режимов и информации.
- Предусмотрена система сохранения настроек и базы данных при отключении электропитания.
- Интернет
- Доступ к сети интернет осуществляется по кабельной сети.
- Лифт
- Лифт фирмы «OTIS» модель «Ge N2 Comfort» на 630 кг с размером кабин 1100х1400 мм. Скорость подъема – 1,0 м/с.
Предоставление иной информации по объекту - по официальному запросу.
Стоимость
Стоимость готового БЦ - 565 млн.руб. + комиссионные
Структура сделки предоставляется по официальному запросу.
Стоимость565 млн. руб пересчитать в: долл евро |
Внимание! Здесь указана ориентировочная цена и параметры объекта. Пожалуйста, уточняйте информацию по телефону, e-mail или через форму обратной связи. |









