Участок с разрешением на реконструкцию недостроенного здания под 8-этажный жилой дом на 13 линии В.О.
Внимание! Данный объект снят с продажи!
фото
документы
Земельный участок площадью 3083 м2 с недостроенным зданием, с полученным с разрешением на реконструкцию/строительство 8-этажного жилого дома со встроенными помещениями и подземной автостоянкой, в исторической части Санкт-Петербурга, на 13 линии В.О.
Расположение
Санкт-Петербург, Василеостровский район, В.О., 13 линия, дом 50, литера А
- 446 м от станции метро «Василеостровская»
- 2 км от станции метро «Приморская»
Документы
- ГПЗУ от 15.08.2017
- Необходимые согласования, заключения и соглашения, обследования, ИРД, ПП и РП и сопутствующая проектная документация:
- получены
- разработаны
- утверждены в полном объёме в установленном порядке
- Проект реконструкции/строительства 8-этажного жилого дома со встроенными помещениями и подземной автостоянкой
- Положительное заключение экспертизы проекта
- Технические условия получены в полном объёме. Являются действующими
Разрешение на строительство
- дата получения – 30 июня 2018 года
- продлено до июля 2022 года
Правовая характеристика
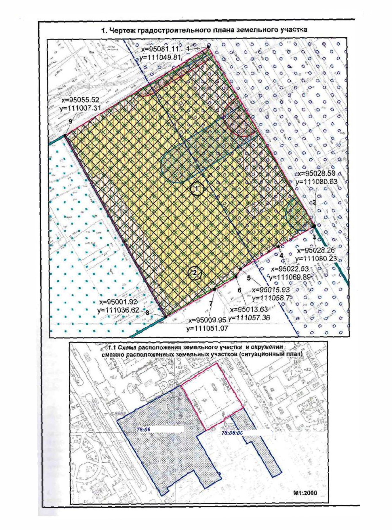
1. Земельный участок
Площадь – 3 083.0 м2
Категория: земли населённых пунктов
Разрешённое использование: под строительство жилого дома (жилых домов)
Вид права: аренда юридическим лицом со сроком действия до 31.03.2060
Режим зоны охраны объектов культурного наследия
Режим зоны охраны объектов культурного наследия установлен в соответствии
- с Законами Санкт-Петербурга № 820-7 от 24.12.2008 и № 274-44 12 мая 2008 года)
- с заключением КГИОП от 31.03.2016
Земельный участок расположен:
- в границах единой зоны регулирования застройки и хозяйственной деятельности 1 объектов культурного наследия, расположенных в исторически сложившихся центральных районов Санкт-Петербурга (участок ОЗРЗ-1(06)
- в границах территории предварительных археологических разведок ЗА 2
Земельный участок расположен в границах зоны ЗР3 1-2 регулирования застройки и хозяйственной деятельности объектов культурного наследия, расположенных в исторически сложившихся центральных районов Санкт-Петербурга:
- примыкает к границам объекта культурного наследия регионального значения «Комплекс зданий французского благотворительного общества»
- по адресу: 13 линия В.О., 57 – 61
Обременения:
- охранная зона водопроводных сетей – 370 м2
- охранная зона канализационных сетей – 145 м2
- охранная зона канализационных сетей – 532 м2
- объединённая зона охраны объектов культурного наследия – 3083 м2
- зона с особыми условиями использования территории, установленными в области использования воздушного пространства (ЗОВЗ)
По заключению ООО «Воздушные ворота Северной столицы» (от 25.11.2016):
- объект проектируемого строительства находится на приаэродромной территории аэродрома Санкт-Петербург – Пулково, в пределах установленной для аэродрома внешней горизонтальной поверхности ограничения высотных препятствий
- заявленная высотная отметка не превышает установленной поверхности ограничения высотных препятствий
- объект не будет являться критическим высотным препятствием для полётов воздушных судов
2. Соответствие Генеральному плану и ПЗЗ Санкт-Петербурга
- функциональная зона – ЗЖД
- территориальная зона – Т3ЖД3
Т3ЖД3 – многофункциональная зона среднеэтажных и многоэтажных многоквартирных жилых домов, объектов общественно-деловой застройки, расположенных на территории исторически сложившихся районов Санкт-Петербурга (за исключением исторической застройки пригородов) с включением объектов инженерной инфраструктуры (виды разрешенного использования и предельные параметры)
Предельная высота зданий строений и сооружений
- в соответствии с ГПЗУ) – 23/27/27 м
- высота уличного фронта до карниза – 23 м
- высота уличного фронта до конька крыши (ограничивается углом наклона кровли не более 600) – 27 м
- высота внутриквартальной застройки – 27 м
3. Существующее здание
- общая площадь – 2 144.6 м2
- степень готовности – 30%
Вид права: собственность юридического лица
Существующее здание (гостиничный комплекс), расположенное участке:
- является объектом незавершённого строительства
- не относится к числу исторических (Заключение КГИОП от 26.08.2016)
- формирует уличный фронт застройки 13-й линии В.О.
Существующее здание находится в непосредственной близости от объекта культурного наследия регионального значения «Комплекс зданий Французского благотворительного общества» (по адресу: 13 линия В.О., 57 – 61).
Территория с незавершенным строительством не входит в границы территории памятника.
Существующее здание, возводившееся в стилистике утраченной постройки приюта и богадельни Французского благотворительного общества, смещено относительно исторической постройки к северо-востоку, ближе к красной линии улицы.
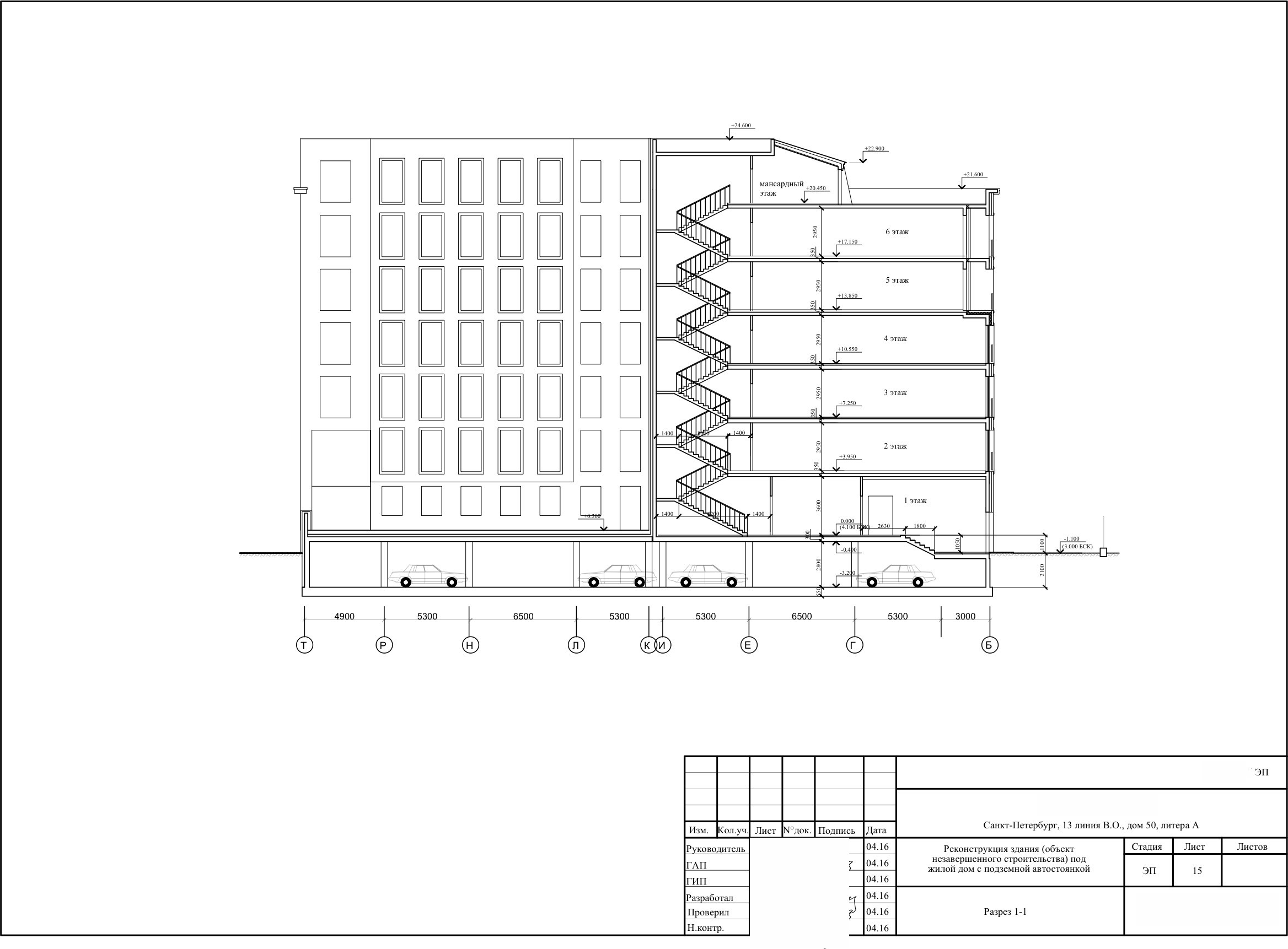
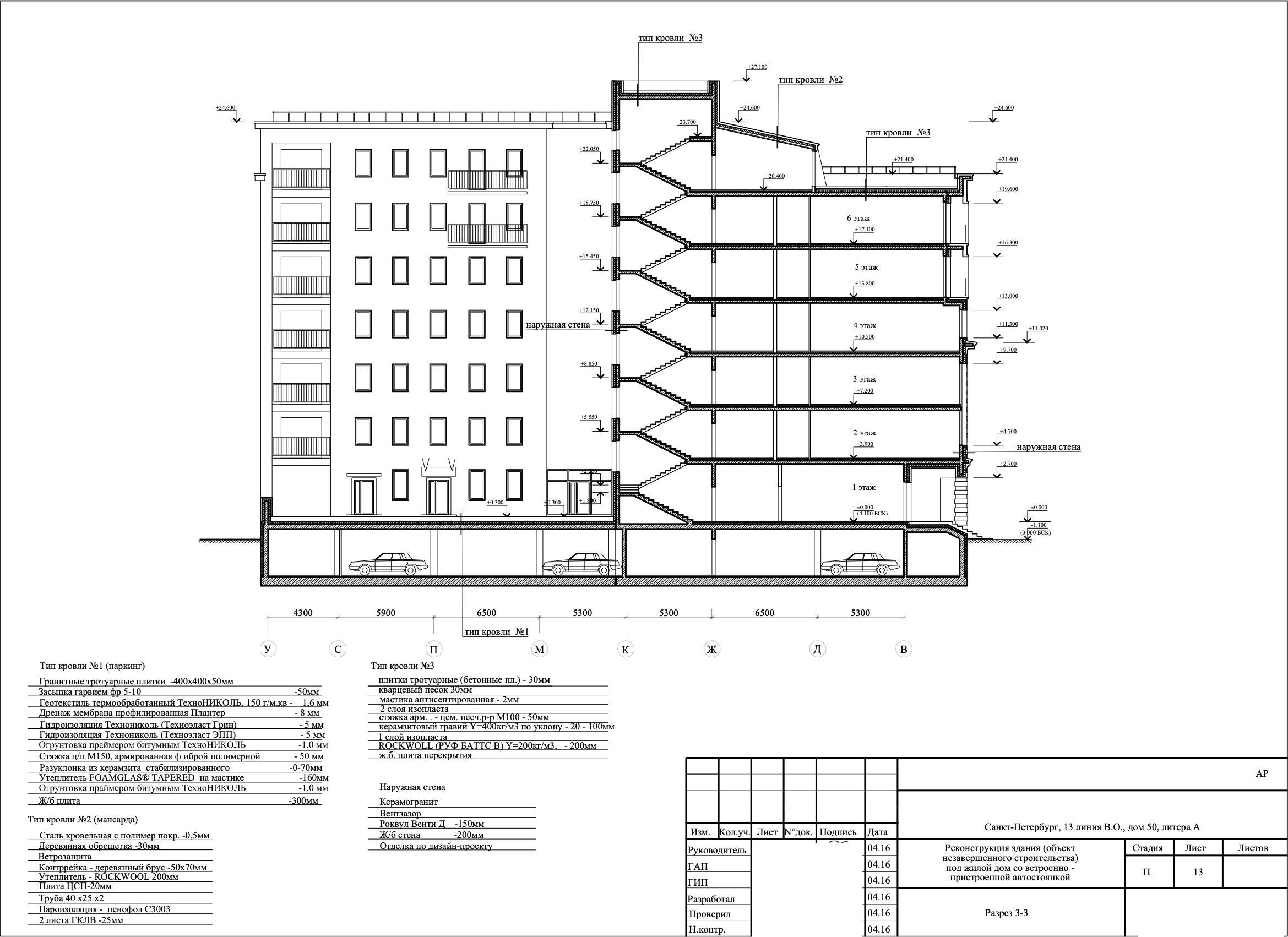
Оно представляет собой 3–5–этажное здание Г-образной формы с цокольным этажом высотой до 17.6 м.
Состоит из недостроенного комплекса трёх корпусов и подземного паркинга:
- корпус 1
- 6-этажный из монолитного ж/б с подвалом
- габариты:
- 48 х 16 м
- Н = 23.4 м
- корпус 2
- 6-этажный из кирпича с подвалом
- габариты:
- 44 х 23 м
- Н = 23.4 м
- корпус 3
- 6-этажный из монолитного ж/б с подвалом
- габариты:
- 13.3 х 18.3 м
- Н = 23.4 м
- подземный паркинг
- монолитный каркас
- габариты:
- 17.2 х 35.5 м
- Н = 3.4 м
В осях 1-4/А-С построены только колонны первого этажа здания (высота 5.0 м).
Полузаглубленный паркинг выполнен полностью.
Существующее здание подлежит демонтажу в соответствии с разделом ПОД.
Особенности
- Участок имеет прямоугольную форму.
- Участок ограничен:
- с севера – внутриквартальным проездом и д. 56 по 13 линии В.О.
- с востока – 12 и 13 линиями В.О.
- с юга – примыкает к зданию д. 46 по 13 линии В.О.
- с запада – д. 57 – 61, лит. Л по 14 линии В.О.
- Территория ограждена забором из ж/б плит и представляет собой строительную площадку, на которой расположены:
- недостроенное здание гостиницы:
- построено 3 – 4 этажа
- выполнен заглубленный паркинг
- строительство заморожено с 2008 года
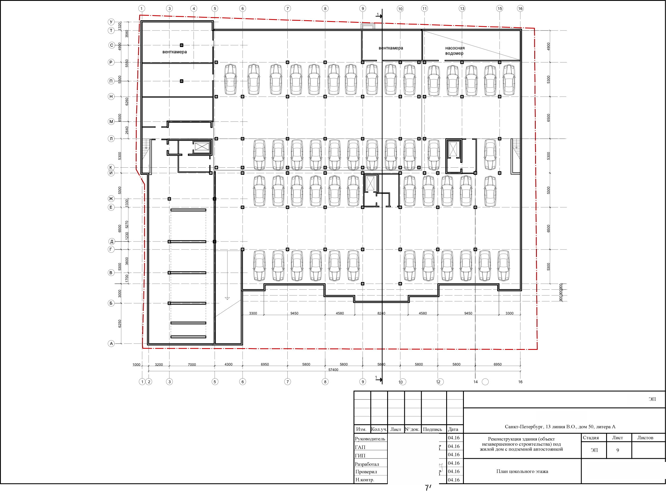
- встроенно-пристроенная автостоянка на 55 м/мест
- недостроенное здание гостиницы:
- Участок находится в состоянии строительной площадки:
- отсутствуют газоны, благоустроенные участки
- территория подлежит благоустройству после окончания строительства
- на участке отсутствуют существующие инженерные сети
- По территории участка не проходят инженерные сети.
- Рельеф участка ровный, средняя отметка (абсолютная) + 2.4 м.
- Район строительства обладает разветвленной транспортной сетью городских улиц с движением городского транспорта различной интенсивности (автобусов, маршрутных такси, грузового транспорта).
- Подъездные городские дороги – существующие асфальтовые.
- Подъезд к участку – по 13 Линии В.О.
Сведения из проекта
Для производства строительных работ, согласно решениям строительного генерального плана. аренда территории за пределами земельного участка не требуется.
Проектом реконструкции предусматривается:
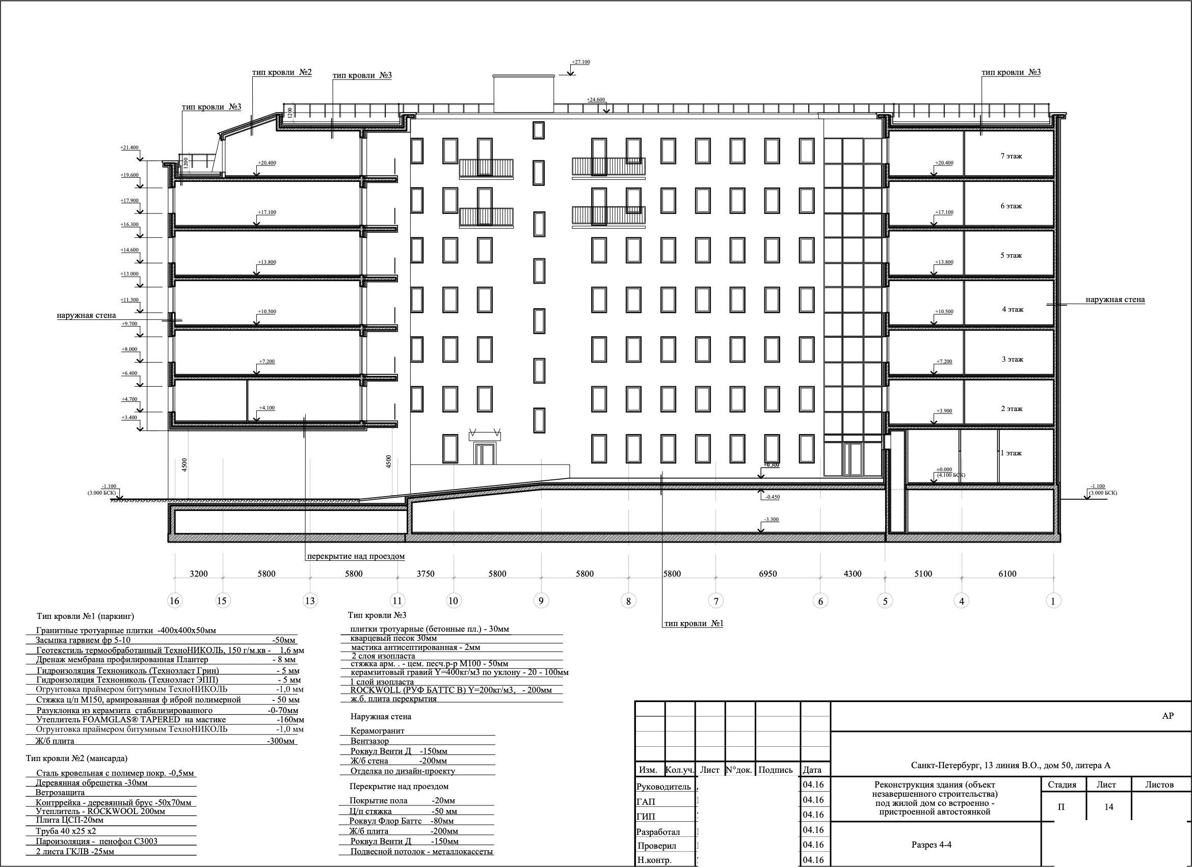
- надстройка незавершённого строительством 7-этажного дома:
- с высотой парапета +22.50 м от отметки земли со стороны лицевого фасада
- с высотой парапета +25.70 м от отметки земли со стороны дворового фасада
- с максимальной высотной отметкой 26.950 от уровня земли
- реконструкция объекта на базе существующих фундаментов и конструкций здания незавершённого строительства:
- пятно застройки не подлежит изменению
- дополнительные земельные работы, связанные с углублением в грунт проектом не предусмотрены
- проведение предварительных археологических разведок не требуется
- высотные акценты не предусмотрены
Краткие проектные характеристики
Класс жилого дома – элитный клубный жилой дом
- площадь участка – 3 083.0 м2
- площадь застройки – 2 568.7 м2
- жилой части здания – 1821.15 м2, в т.ч.:
- пристроенной части подземной автостоянки (с эксплуатируемой кровли) – 747,55 м2
- жилой части здания – 1821.15 м2, в т.ч.:
- общая площадь здания – 13 670.85 м2, в т.ч.:
- жилой части здания – 9892.48 м2
- встроенных офисных помещений – 488.80 м2
- встроенных помещений фитнес-центра – 846.20 м2
- автостоянки – 1740,70 м2
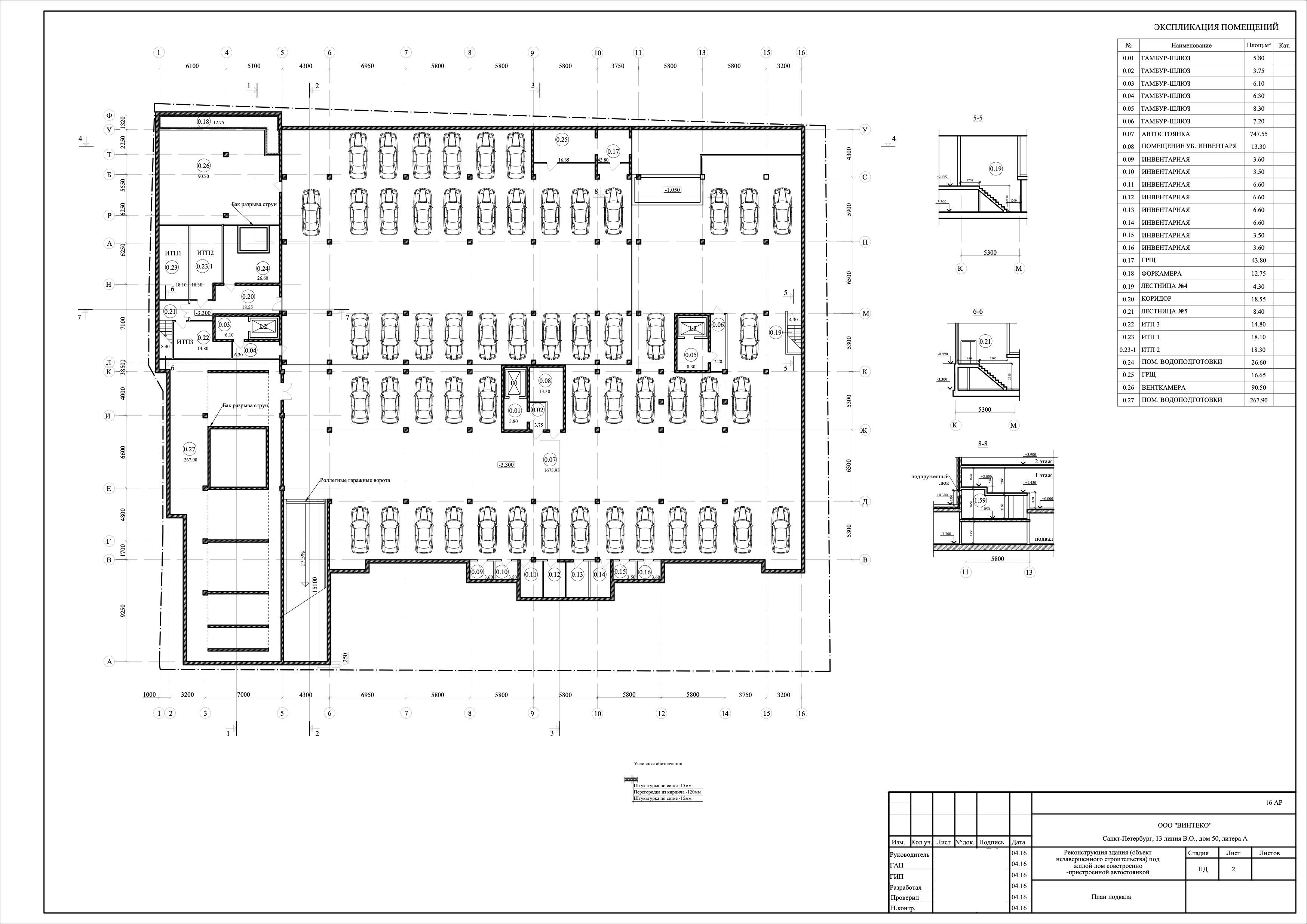
- технического подвала с учетом технических помещений – 702.67 м2
- внеквартирных помещений, технических помещений – 1 311.27 м2
- Площадь встроенных помещений по дому, всего – 13 670.85 м2, в т.ч.:
- встроенные офисные помещения – 469.80 м2
- встроенные помещения фитнес-центра – 820.55 м2
- автостоянка – 1 674.00 м2
- технический подвал с учетом технических помещений – 632.00 м2
- внеквартирные помещения, технические помещения – 1082.05 м2
- строительный объём – 50 196. 0 м3, в том числе полезной части – 7 956.0 м3:
- выше отм. 0.000 – 4 2240.0 м2
- ниже отм. 0.000 – 7 956.0 м2
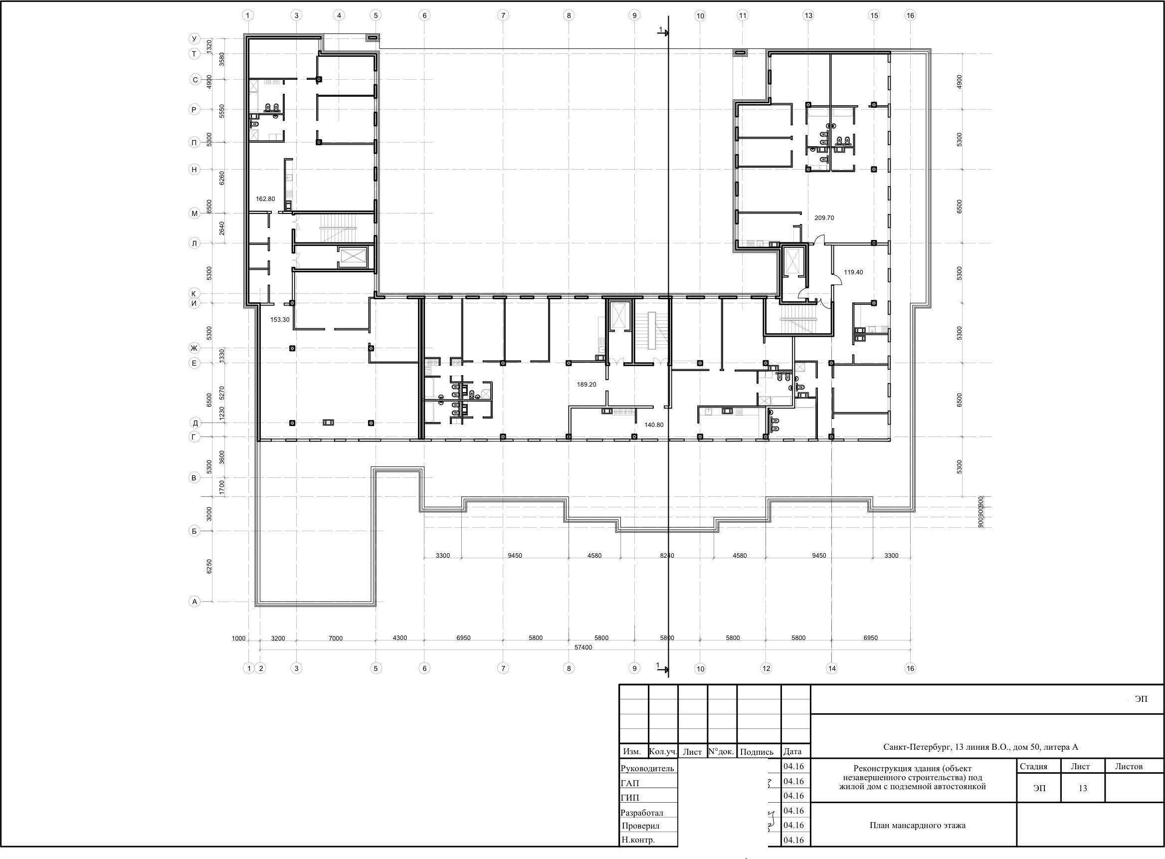
- этажность – 7
- количество этажей – 8
- количество подземных этажей – 1
- высота – 25.7 м
- количество секций – 3
- общая площадь жилых помещений (за исключением балконов, лоджий, веранд и террас) – 8 128.05 м2
- общая площадь жилых помещений (с учётом балконов, лоджий, веранд и террас) – 8 193.58 м2 (с понижающим коэффициентом)
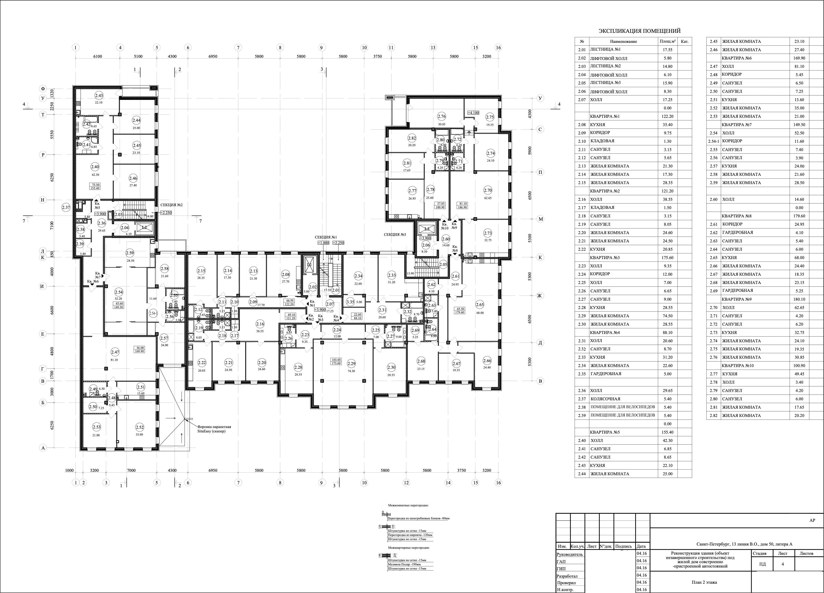
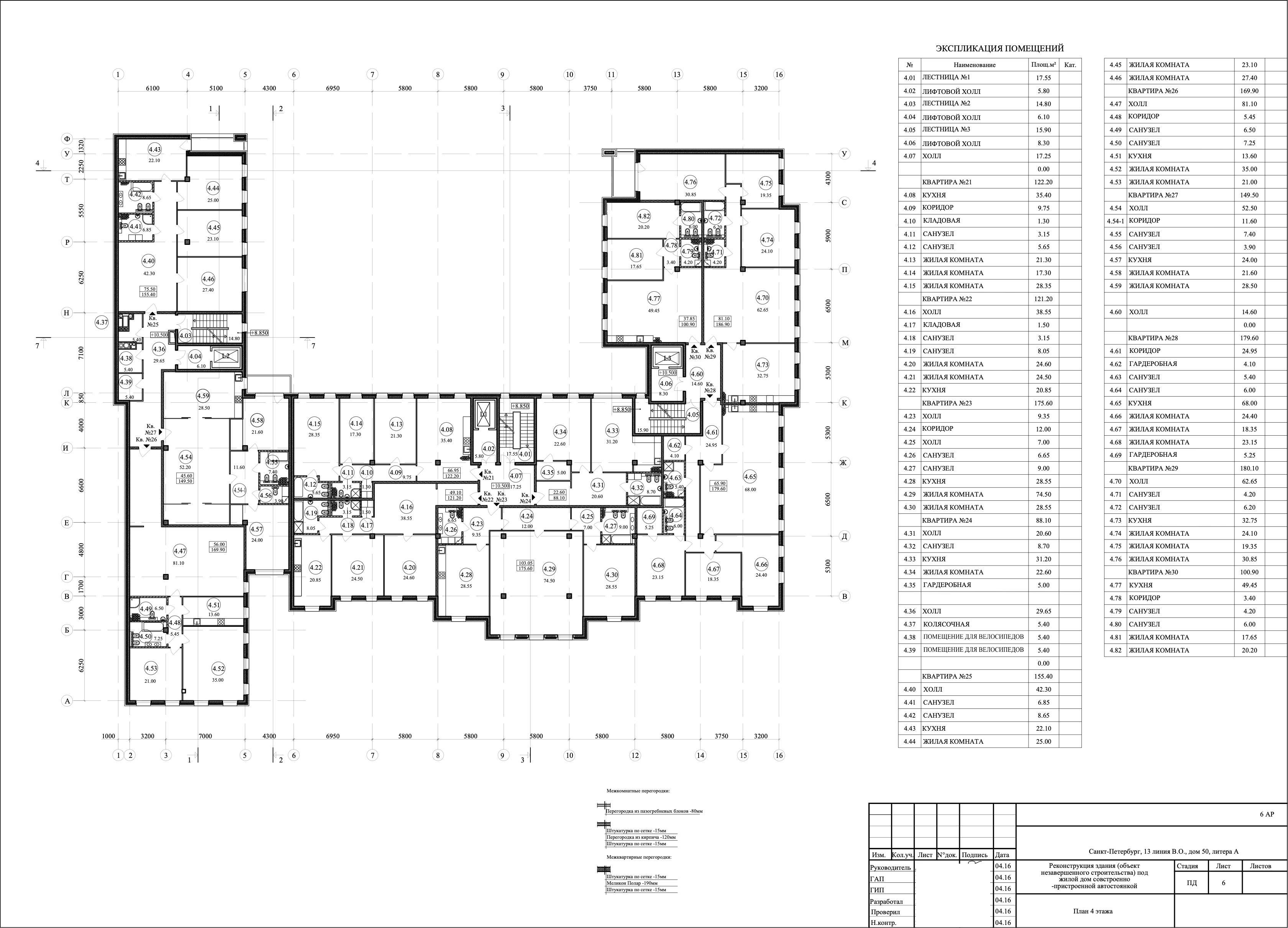
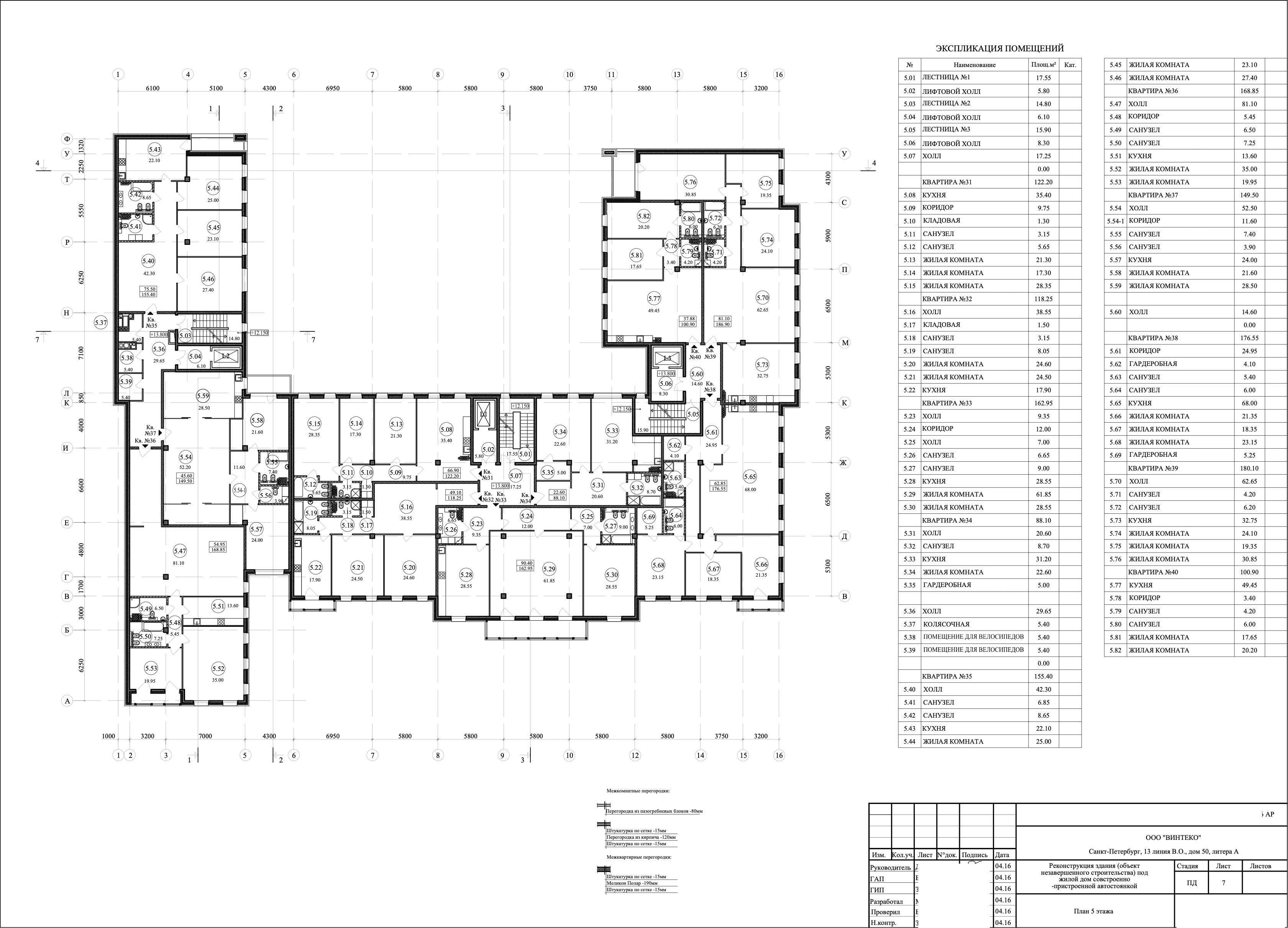
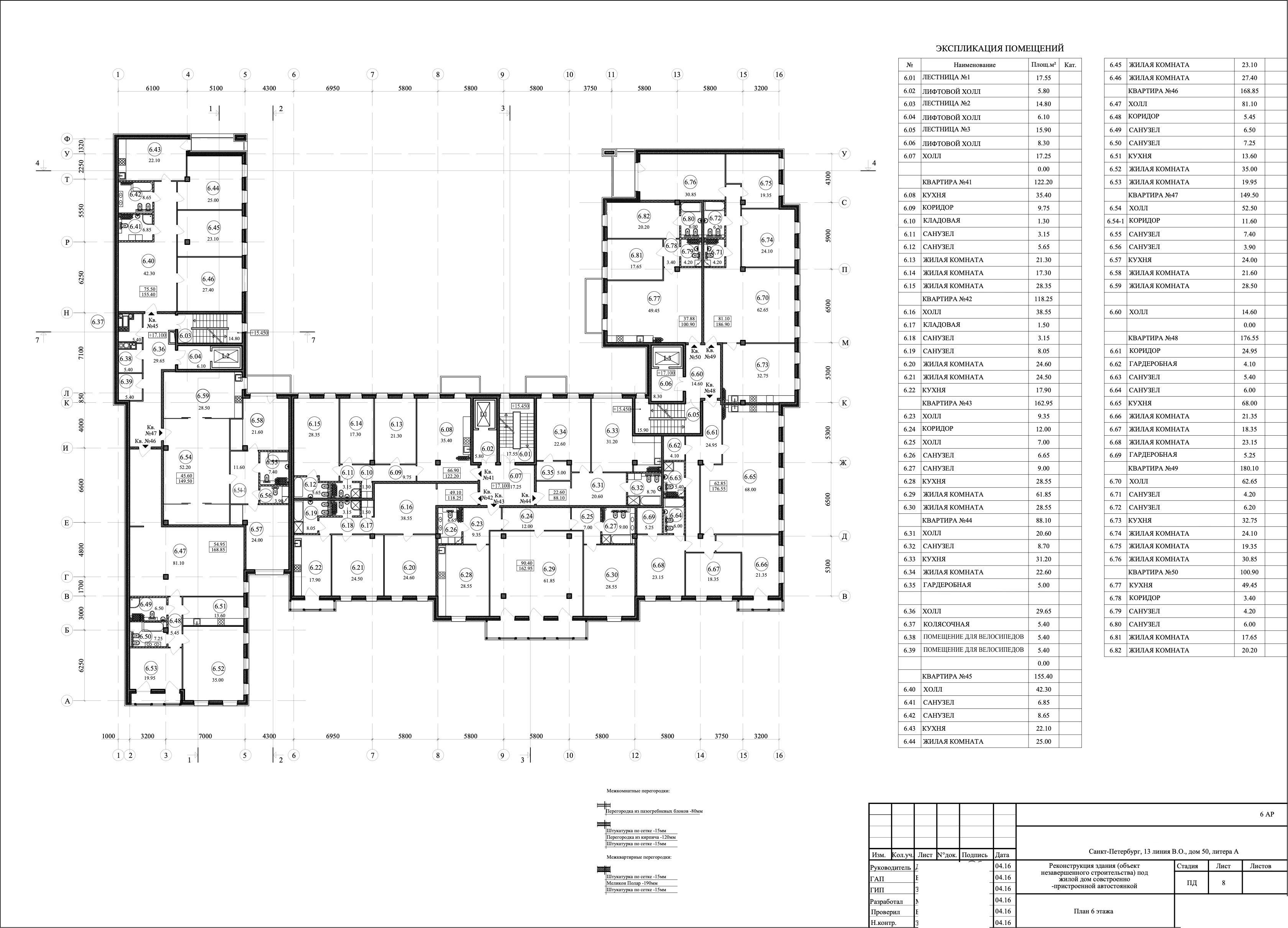
- количество квартир – 55, в том числе:
- 1-комнатные – 5
- 2-комнатные – 26
- 3-комнатные – 22
- 4-комнатные – 7
Иные показатели:
- офисные помещения:
- общая площадь – 488.80 м2
- полезная площадь – 469.80 м2
- строительный объём – 358.50 м3
- фитнес-центр
- общая площадь – 846.20 м2
- полезная площадь – 820.55 м2
- строительный объём – 740.25 м3
- автостоянка
- площадь стоянки (с учётом въездного пандуса) – 1 732 м2
- площадь помещения подземной стоянки – 1 674.0 м2
- Количество этажей – 1
- строительный объём – 5 356.80 м3
- количество м/мест в автостоянке – 55
- количество парковочных м/мест для МГН – 6
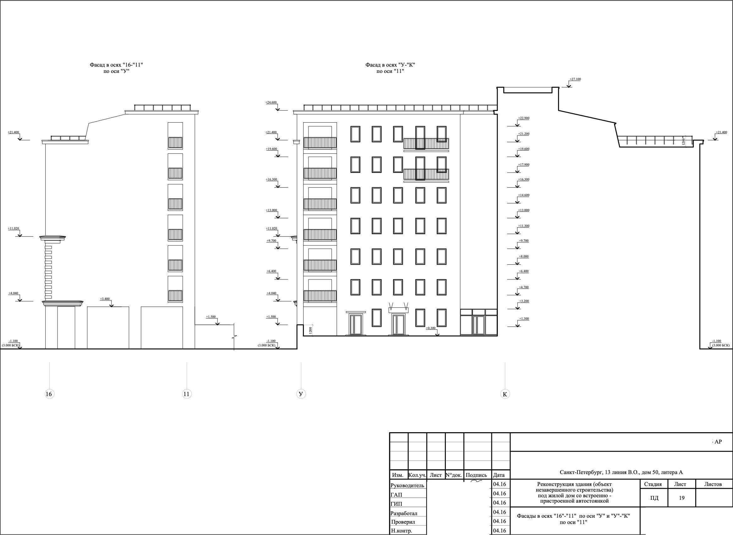
Архитектурные решения
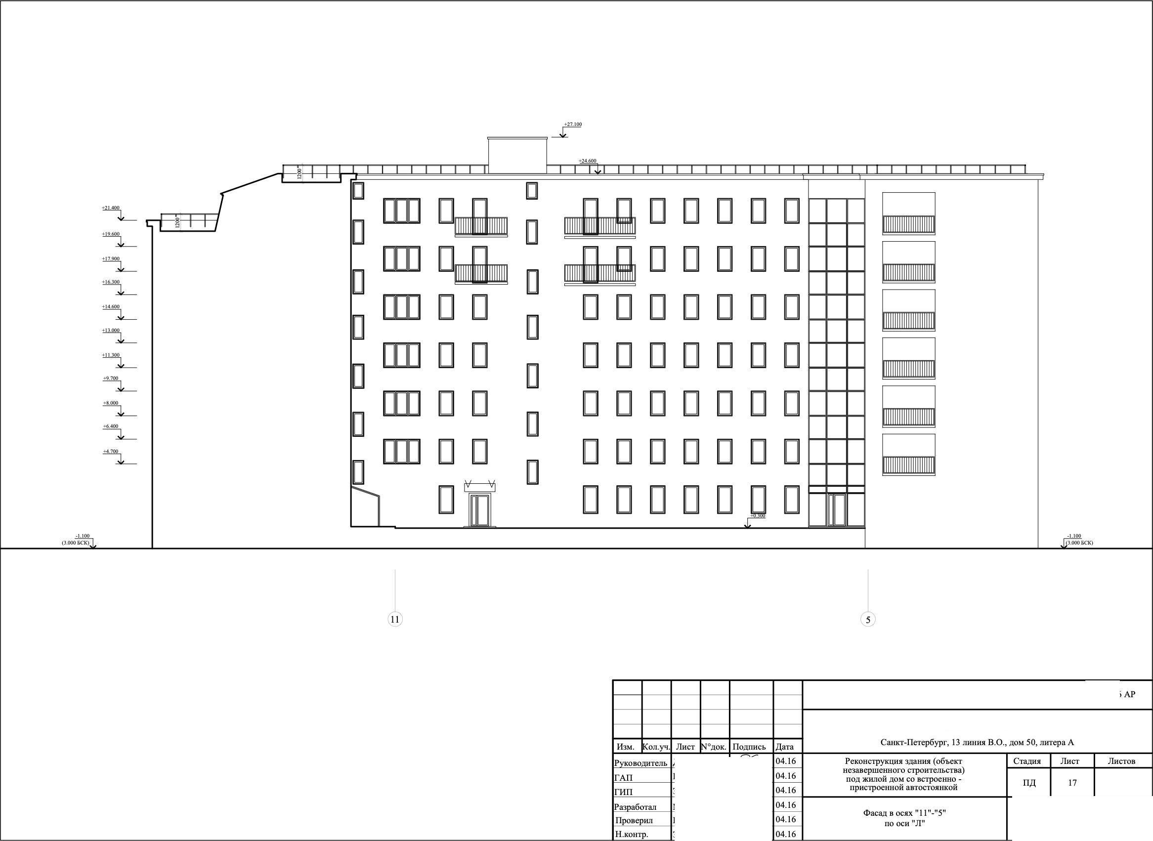
Главный фасад проектируемого здания выходит на 13 линию Васильевского Острова.
За условный ноль в системе высот принят уровень чистого пола первого этажа. Его отметка в Балтийской системе высот составляет +4,100 м.
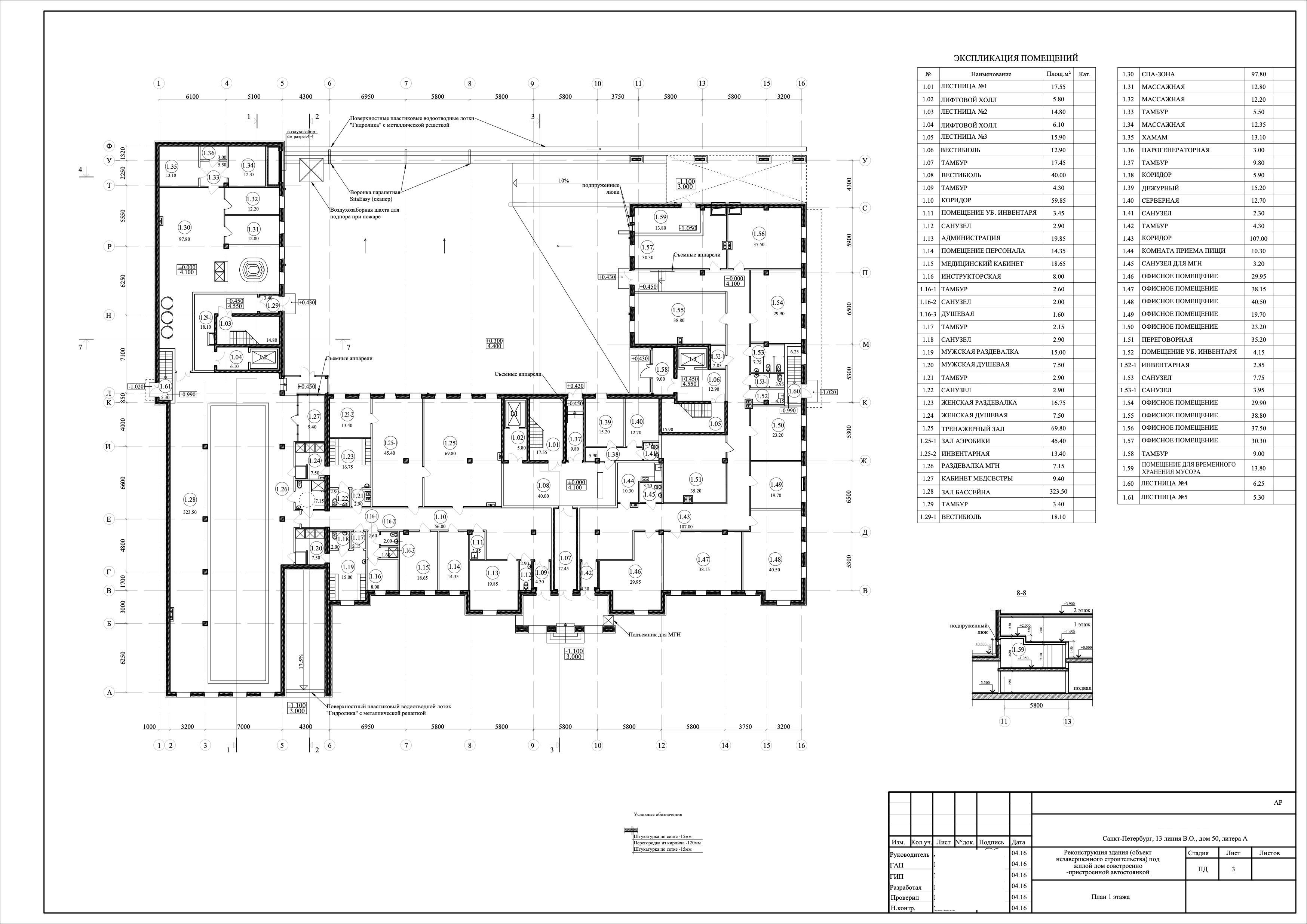
Жилой многоквартирный дом представляет собой 7-этажное здание с встроенно-пристроенной автостоянкой на 55 машиномест.
На 1 этаже размещаются:
- фитнес-центр с оздоровительным бассейном 25 м х 5 м
- площади под аренду офисов
Перед входом в здание со стороны 13 линии расположено крыльцо, оборудованное подъемником для МГН. Этим подъемником могут пользоваться не только жители дома, но и посетители офисов и фитнес-центра.
Все 3 части здания, выходящие на это крыльцо, имеют отдельные входы и самостоятельные вестибюли.
- Фитнес-центр
Фитнес-центр расположен на 1 этаже в левой части здания.
Имеет отдельный вход со своим вестибюлем с главного крыльца здания.
Фитнес-центр включает в себя:
- оздоровительный бассейн:
- 25.0 х 5.0 м
- тренажёрный зал:
- 9.8 х 7.0 м
- зал аэробики:
- 9.8 х 4.6 м
- зону СПА процедур с массажными кабинетами, кабинами солярия, турецкой баней (хамам) с большой ванной джакузи и зоной отдыха
В фитнес-центре предусмотрены:
- медицинский кабинет и кабинет медсестры в помещении бассейна
- раздевалки для посетителей и отдельная раздевалка с душем для МГН
- дополнительный выход на отметку эксплуатируемой кровли автостоянки
- Офисные помещения
На 1 этаже в правой части здания расположены офисные помещения со своим вестибюлем с главного крыльца здания.
Офисные помещения имеют достаточное естественное и искусственное освещение.
В составе офисных помещений предусмотрены:
- переговорная
- помещение для приема пищи
- санузлы с отдельным санузлом для МГН
Из офисных помещений предусмотрен дополнительный выход на отметку эксплуатируемой кровли автостоянки.
- Жилая часть
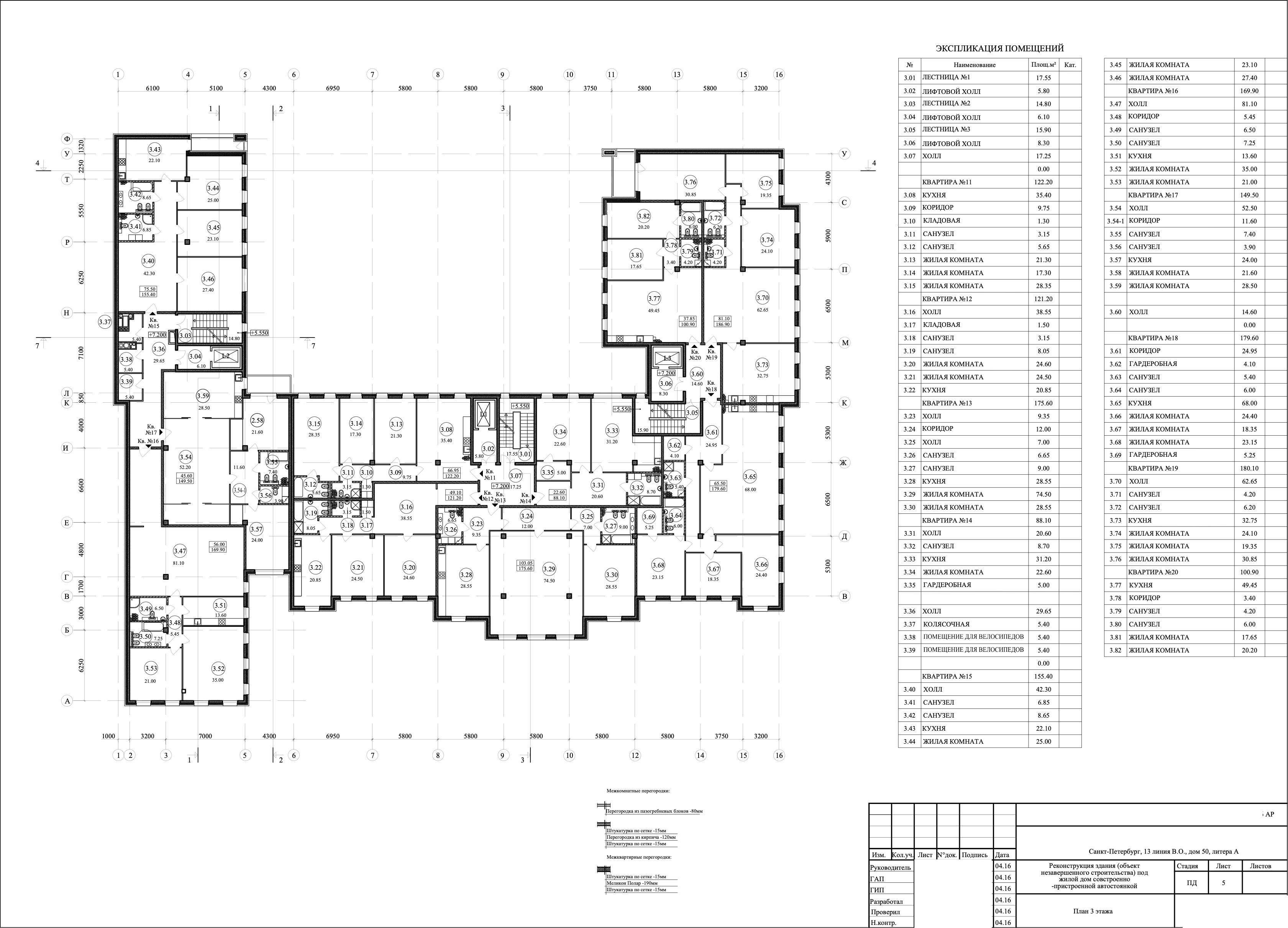
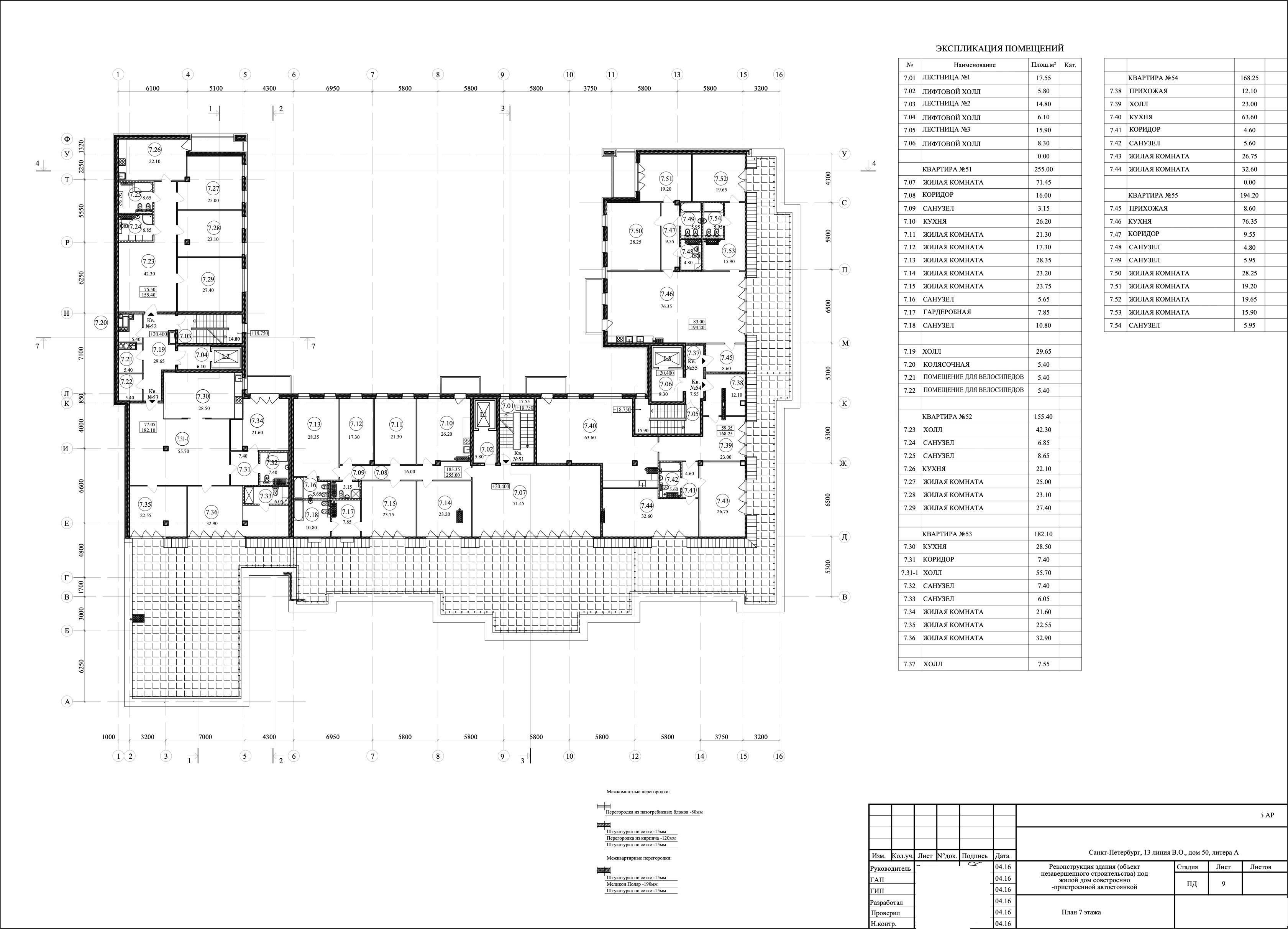
Этажи со 2 по 7 – жилые, с размещением 55 квартир
Площадь квартир на этажах:
- секция №1 – 499 м2
- секция №2 – 477.15 м2
- секция №3 – 378.75 м2
При необходимости все квартиры могут быть беспрепятственно переоборудованы для проживания МГН. Дверные проемы входов в квартиры заранее предусмотрены 1.0 м (0.9 м в свету с заполнением), в результате чего работы по приспособлению квартир для проживания МГН коснутся только ненесущих перегородок и расстановки мебели и оборудования внутри квартир.
Главный вход в здание – со стороны 13 линии. Главное крыльцо оснащено подъёмником для МГН.
На 1 этаже находится большой вестибюль с помещением дежурного и серверной. Для въезда на эксплуатируемую часть кровли автостоянки предусмотрен пандус.
На эксплуатируемой части кровли расположен внутренний двор, из которого предусмотрены входы во все жилые части здания, а так же фитнес-центр и офисные помещения, с учётом использования МГН.
Все части здания оснащены лифтами имеющими связь с автостоянкой и приспособленными для использования МГН.
- Автостоянка
Автостоянка представляет собой самостоятельный пожарный отсек площадью 1 674.00 м2:
- отделён от остальных помещений жилого дома противопожарными стенами и перекрытиями 1 типа
- с устройством отдельного въезда в отсек и двумя изолированными самостоятельными эвакуационными выходами
Въезд в автостоянку оснащается роллетными воротами с габаритными размерами 3500 × 2700 мм, что обеспечивает беспрепятственный въезд/выезд автотранспорта жильцов. Уклон рампы 18%.
На въезде-выезде в подземную автостоянку с улицы предусмотрен водосборный лоток и шлагбаум.
Ворота и шлагбаум имеют автоматическое управление.
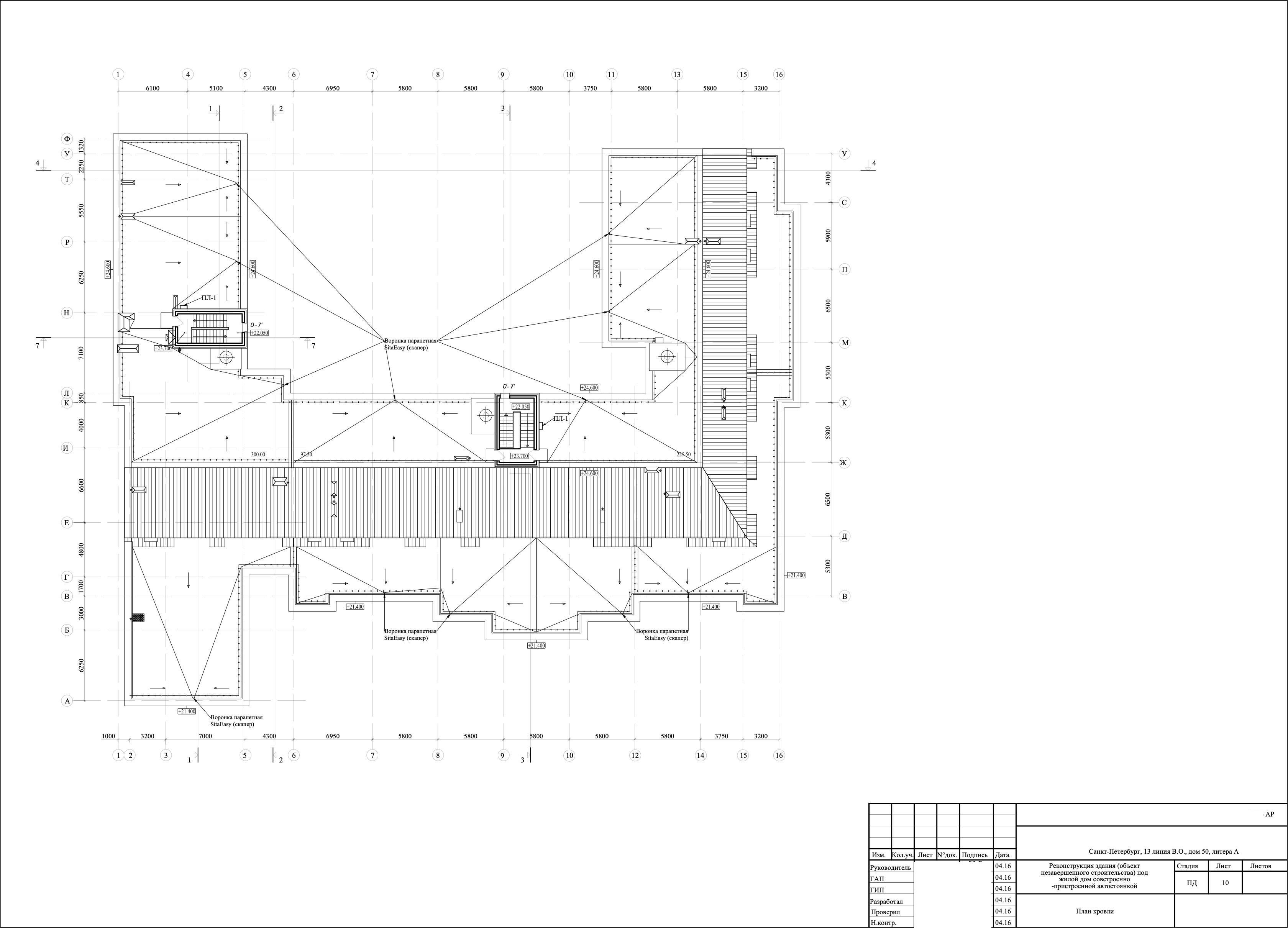
Кровля автостоянки эксплуатируемая, со стороны внутри дворового проезда оборудованная пандусом для проезда пожарных машин.
Уклон пандуса 10%. Высота проезда 3 500 х 4 500 м.
Цветовое и объёмно-планировочное решение
- Наружные стены
- монолитный ж/б 200 мм с утеплителем FOAMGLASRTAPERED – 150 мм
- до отметки 0.000 с облицовкой керамогранитом
- с отметки выше 0.000 с утеплителем РОЛВУЛ Вести Баттс –150 мм с организацией навесного фасада из керамогранита
- Кровля
- зксплуатируемая инверсионная
- с наружным водостоком через парапетные воронки и засыпкой верхнего слоя керамзитом
- Отделка
- отделка квартир – по дизайн-проекту по согласованию с заказчиком
- зал бассейна, фитнесса, тренажёрный зал и зона СПА отделываются в соответствии с ведомостью отделки проекта
- лестницы, лифтовые холлы, технические и подсобные помещения – штукатурка под окраску потолки), штукатурка под окраску (стены), облицовка техническим керамогранитом (полы)
- Перегородки
- межквартирные перегородки – Меликон Полар 290 мм штукатурка с 2 сторон (220 мм общая толщина)
- перегородки подвального и 1 этажа – полнотелый кирпич 120 мм, штукатурка с 2 сторон
- перегородки внутриквартирные – пазогребневые 80 мм
- перегородки санузлов – полнотелый кирпич 120 мм, штукатурка с двух сторон
- Окна и наружные двери – дерево-алюминий
Центральная часть лицевого фасада на высоту 2 этажей выполняется с сохранением элементов здания Приюта и богадельни французского Благотворительного общества, утраченного ранее.
Надстраиваемая часть фасада выполняется с тем же ритмом наружных проёмов, что и первые 2 этажа, но в более современном решении с использованием французских балконов. Боковые части здания выполняются в том же стиле, что и надстраиваемая центральная часть.
Облицовка фасадов центральной части:
- 1 и 2 этажи – мелкоразмерной керамической плиткой под облицовочный кирпич
- верхние этажи – керамогранит
- боковые части здания – керамических гранит на всю высоту
Обеспечение естественного освещения помещений с постоянным пребыванием людей
В состав раздела 3 «Архитектурные решения» входит Книга 2. «Гигиеническая оценка естественной освещенности»
Обеспечение защиты помещений от шума, вибрации и другого воздействия
В состав раздела 3 «Архитектурные решения» входит часть 3 «Архитектурно-строительная акустика», предусматривающая мероприятия по снижению шумовых характеристик от инженерно-технического оборудования до нормативно допустимых значения.
Основные технические решения
Жилой многоквартирный дом представляет собой 7-этажное здание с встроенно- пристроенной автостоянкой.
Здание состоит из 2 объемов:
- 1-этажного подземного паркинга
- 7-этажного жилого дома с подвалом
разделенных между собой деформационно-усадочным швом толщиной 50 мм.
Семиэтажная часть здания вдоль оси «6» с отм. – 0,150 разделена температурно-усадочным швом толщиной 20 мм.
Здание запроектировано по смешанной (колонно-стеновой) системе.
Несущие элементы:
- монолитные железобетонные наружные и внутренние стены
- колонны
- плиты перекрытий
Колонны:
- приняты сечением 400 х 400 мм
- с переменным шагом от 5.8 м до 7.0 м.
Наружные монолитные стены подвала приняты толщиной 300 мм.
Все внутренние стены и наружные стены с первого этажа приняты толщиной 200 мм.
Плиты перекрытий – безбалочные толщиной 200 мм и 300 мм
В здании предусмотрены 3 ядра жёсткости:
- монолитные ж/б стены
- лестничные клетки
- лифтовые холлы
Пространственная жёсткость здания обеспечивается за счет совместной работы монолитных стен, колонн и плит перекрытий, которые жёстко соединяются между собой и передают нагрузку на ростверк и фундаментную плиту.
Планировочная организация земельного участка
Проектными решениями по планировочной организации ЗУ предусмотрено:
- устройство покрытий пешеходной зоны и зоны покрытия проезжей части
- организация водоотведения с территории
- устройство дворовой территории на эксплуатируемой кровле над встроенной стоянкой
Со стороны главного фасада по 13 Линии В.О. предусмотрены:
- входная зона с примыканием к существующему тротуару и газоны
- въезд в подземную автостоянку с 13 Линии В.О.
Показатели
- покрытие дворовой территории плиточное, предусматривает возможность езды технического и пожарного транспорта
- въезд на эксплуатируемую кровлю – по с 13 Линии В.О. по внутриквартальному проезду
Баланс территории ЗУ
- площадь территории в границах земельного участка – 3 083 м2
- площадь застройки – 2 568.7 м2
- в том числе площадь застройки жилого дома – 1 894 м2
- плотность застройки – 83.26%
- площадь твердых покрытий – 611.3 м2, в том числе:
- тротуарная плитка на кровле автостоянки – 392 м2
- асфальтовое покрытие – 65.3 м2
- асфальтовое покрытие на кровле автостоянки – 96 м2
- отмостка – 58 м2
- площадь озеленения – 616 м2, в том числе:
- газон на незастроенной части земельного участка – 412 м2
- газон на кровле автостоянки – 121 м2
- резиновое покрытие на кровле автостоянки – 83 м2
- процент озеленения – 20%
Со стороны главного фасада по 13 Линии В.О. устраивается входная зона с примыканием к существующему тротуару, также устраиваются газоны. С этой же стороны предусматривается въезд в подземную автостоянку – с 13 линии В.О.
Благоустройство территории
Проектом предусматривается устройство газонов, проездов и тротуаров:
- площадь тротуарной плитки по эксплуатируемой кровле – 392 м2
- площадь асфальтового покрытия – 65.3 м2
- площадь газона на эксплуатируемой кровле – 121 м2
- площадь газона – 412 м2
- площадь резинового покрытия на эксплуатируемой кровле – 83 м2
Для травянистого покрова проектом предусматривается подсыпка плодородного грунта слоем 20 см с последующим посевом газонной смеси.
Предоставление дополнительной информации по объекту, организация осмотра и переговоров – по официальной заявке
Стоимость350 млн. руб пересчитать в: долл евро |
Внимание! Здесь указана ориентировочная цена и параметры объекта. Пожалуйста, уточняйте информацию по телефону, e-mail или через форму обратной связи. |












































































