Реконструкция незавершённого строительства здания под гостиничный комплекс - жилой дом с квартирами-апартаментами с разрешением на строительство на 13 линии Васильевского Острова
Внимание! Данный объект снят с продажи!
Реконструкция незавершённого строительства здания под гостиничный комплекс (жилой дом с квартирами-апартаментами) с разрешением на строительство на земельном участке площадью 3062.0 м2 на 13-я линии, д. 50, В.О.
Расположение
Санкт-Петербург, Василеостровский район, В.О.,13-я линия, д. 50.
Правовая характеристика
Категория земель: земли населённых пунктов.
Разрешённое использование: для размещения гостиниц.
Вид права: собственность юридического лица.
Особенности
- Получено разрешение на строительство (реконструкцию) здания.
- Получен градостроительный план земельного участка.
- Получены ТУ.
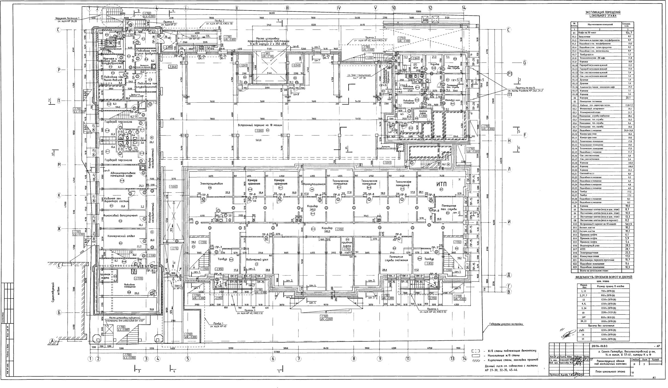
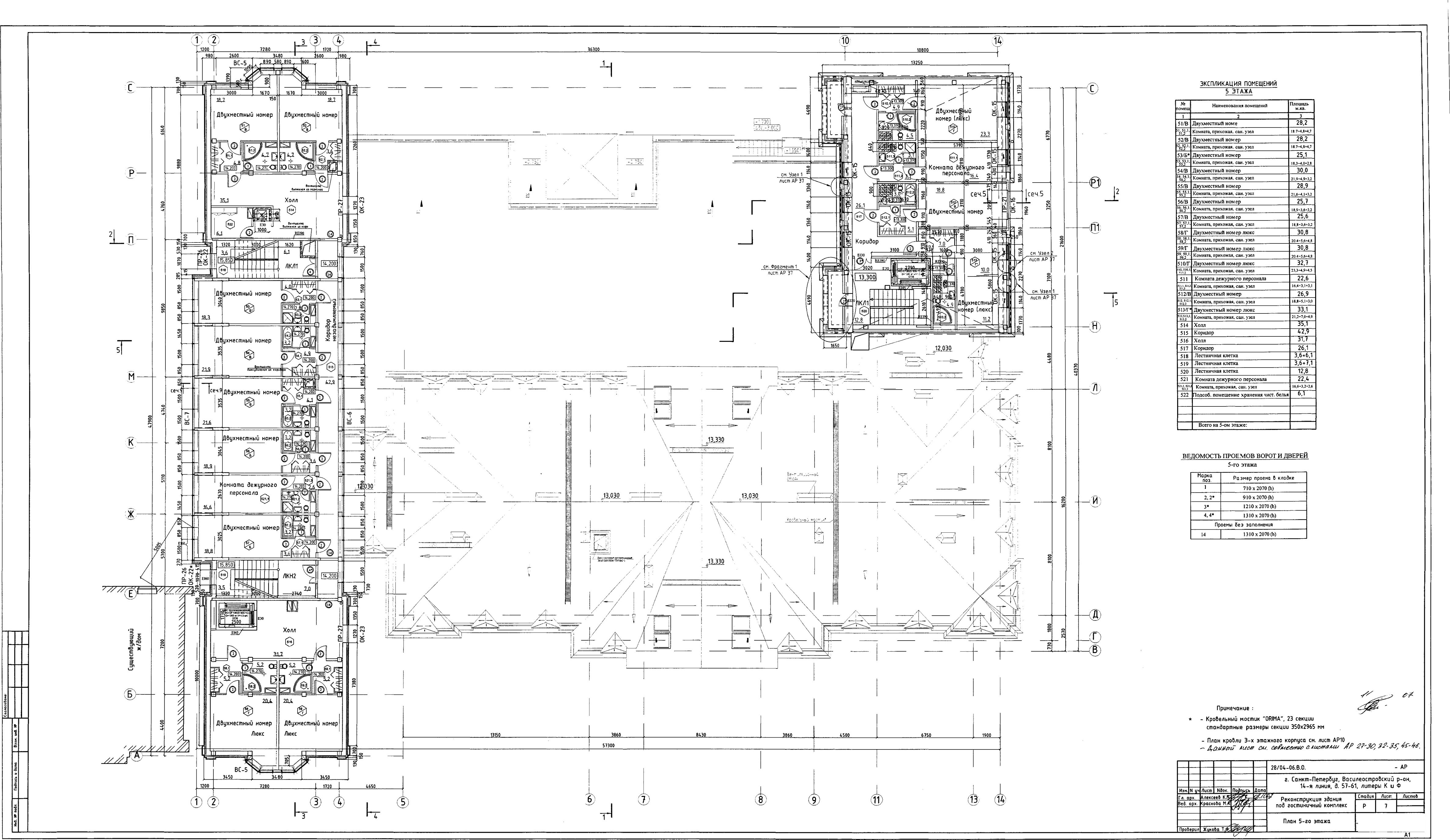
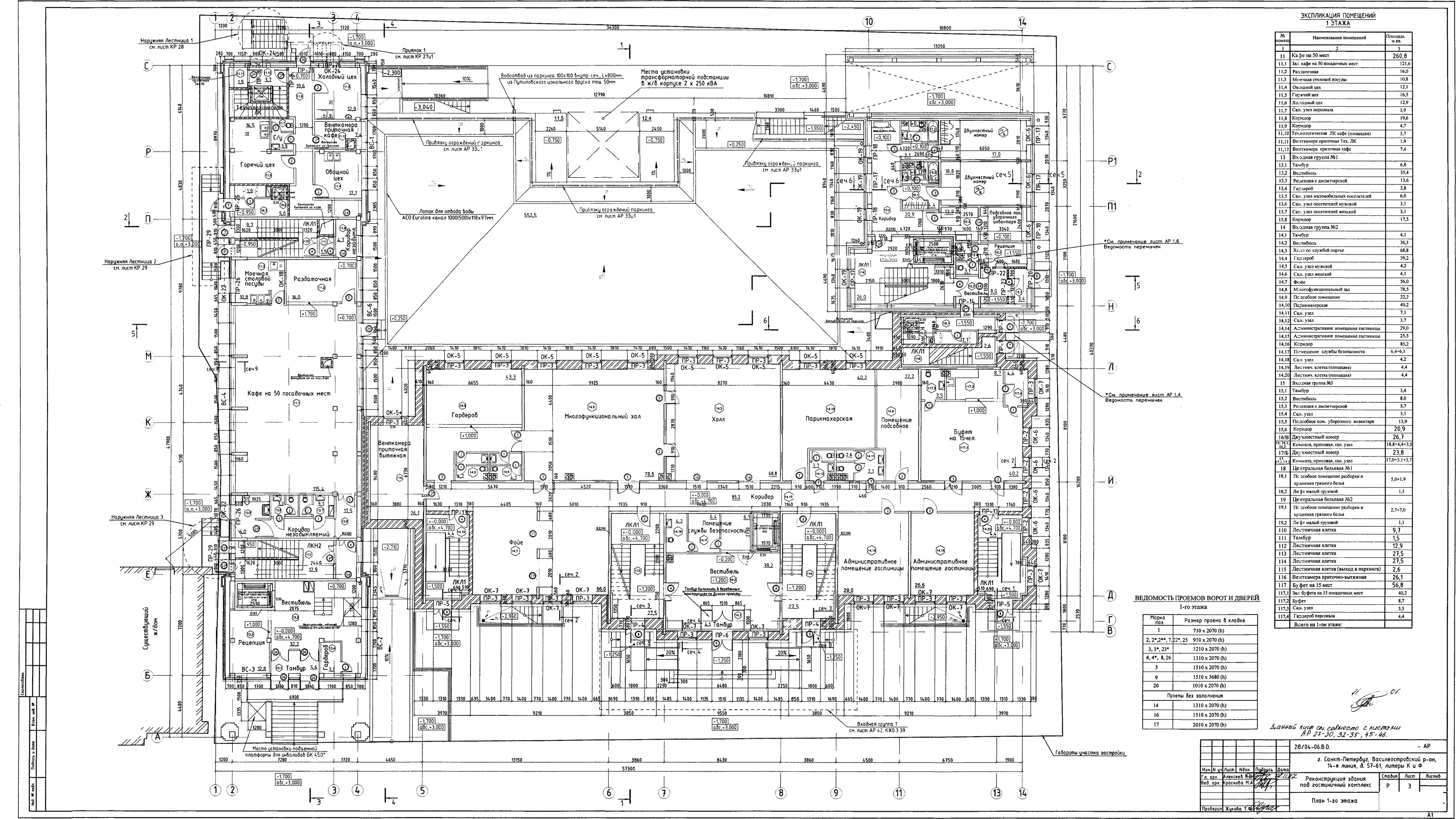
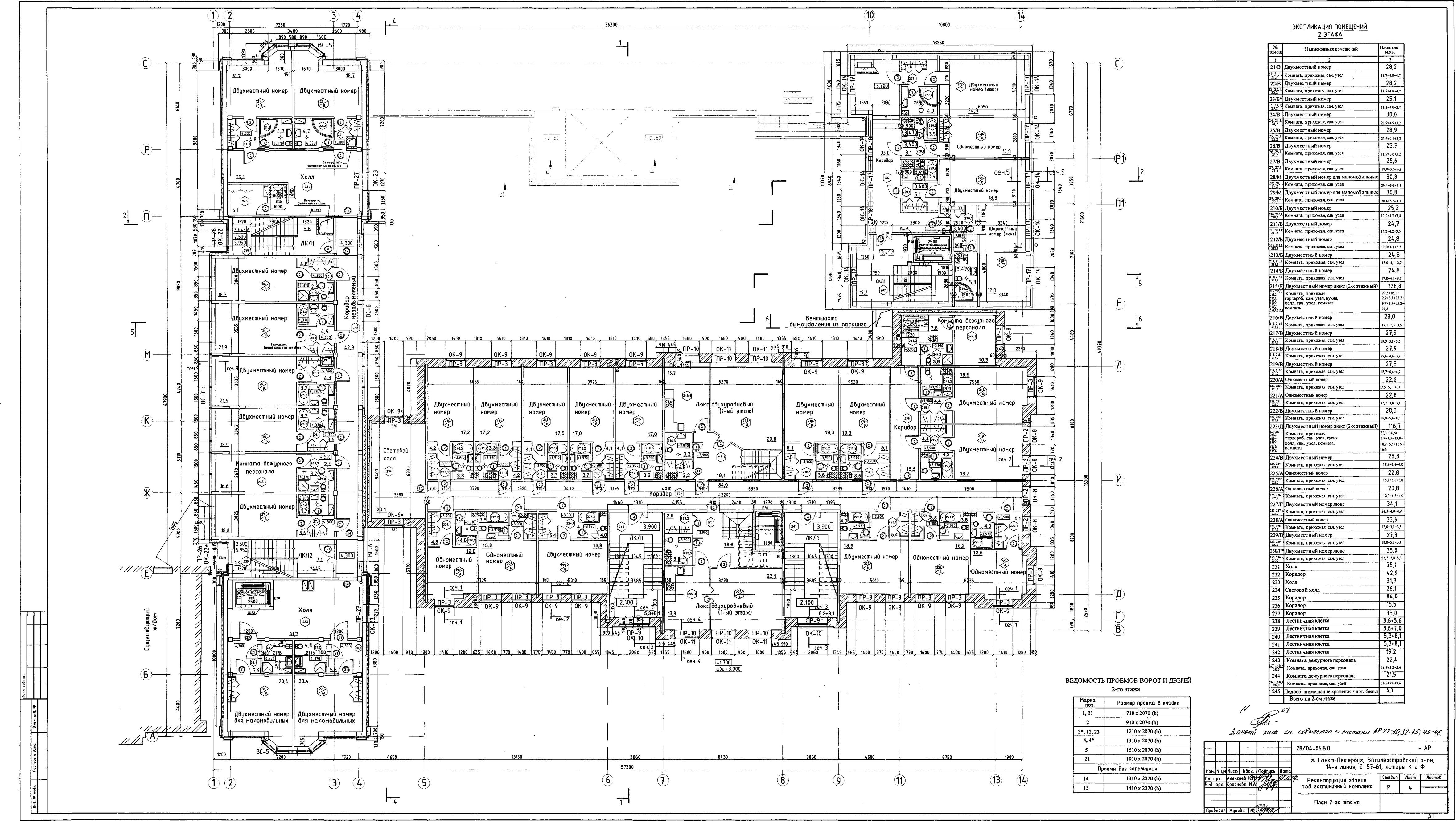
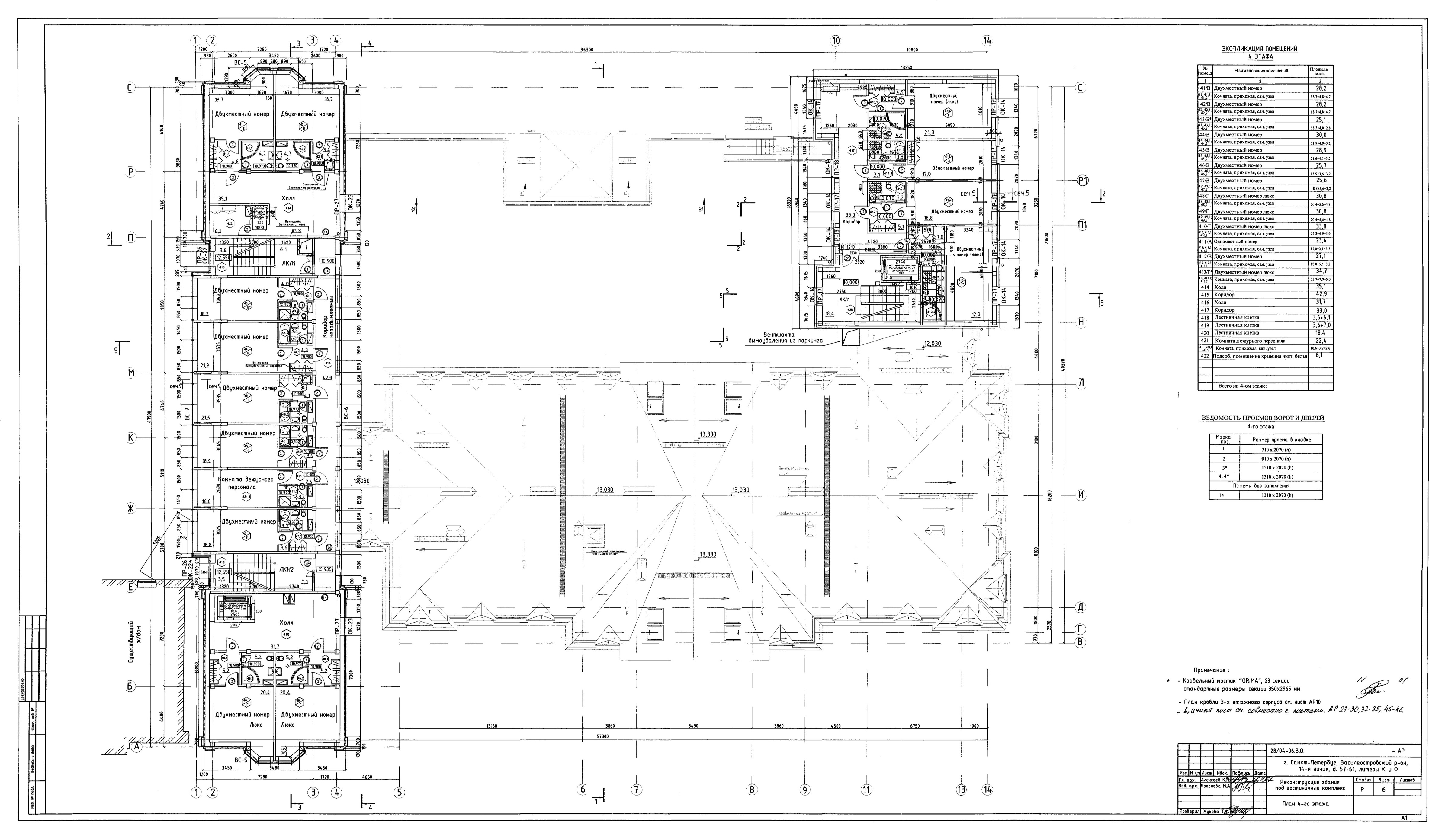
Технико-экономические показатели по проекту:
Площадь участка – 3062.0 м2
Площадь застройки – 2365.0 м2
Общая площадь номеров-апартаментов – 3 837.72 м2
Общая площадь встроенно-пристроенных помещений – 620.0 м2
Строительный объём – 32 689.7 м3 , в т.ч. встроенно-пристроенных помещений – 1 954.0 м3
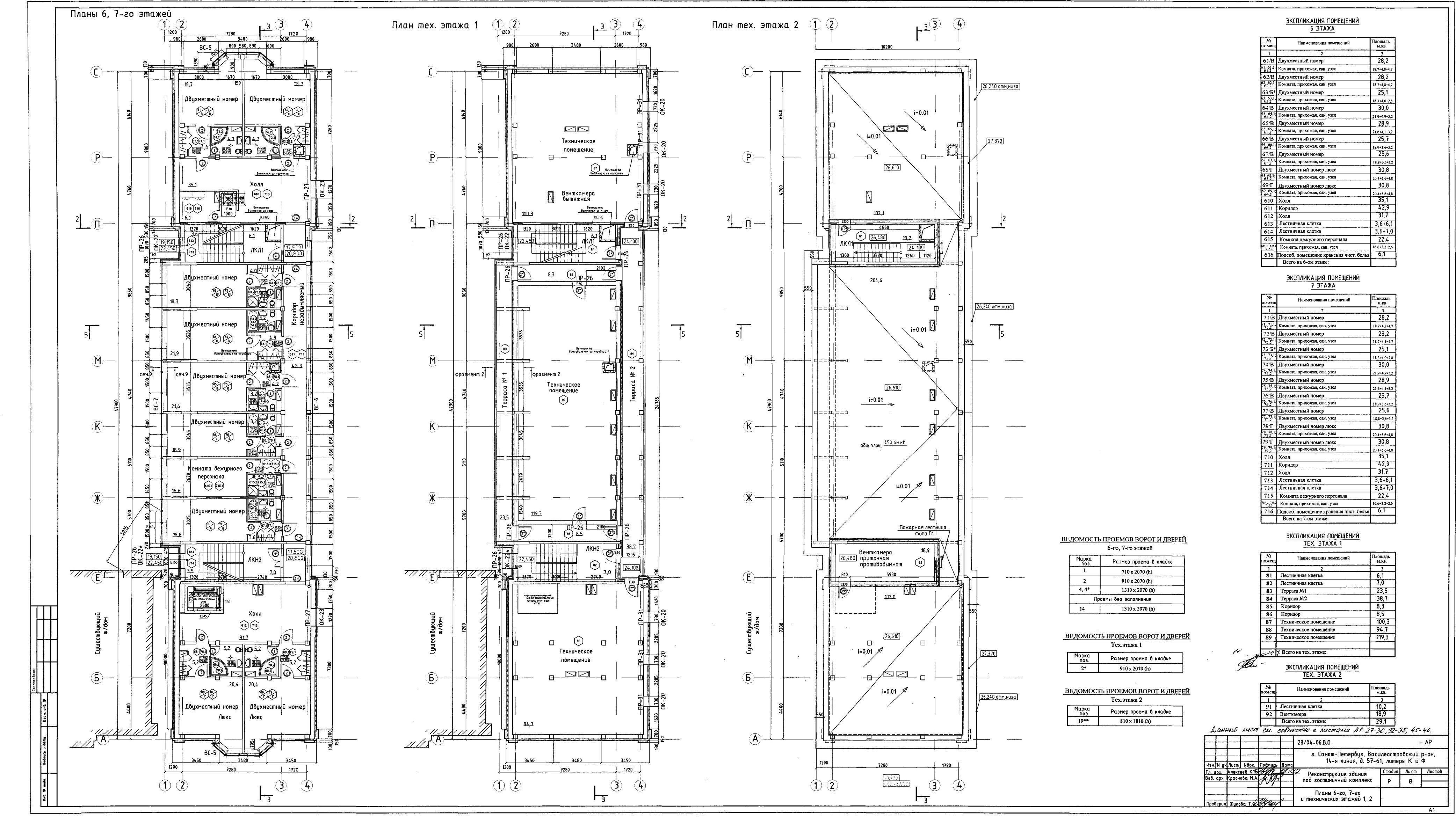
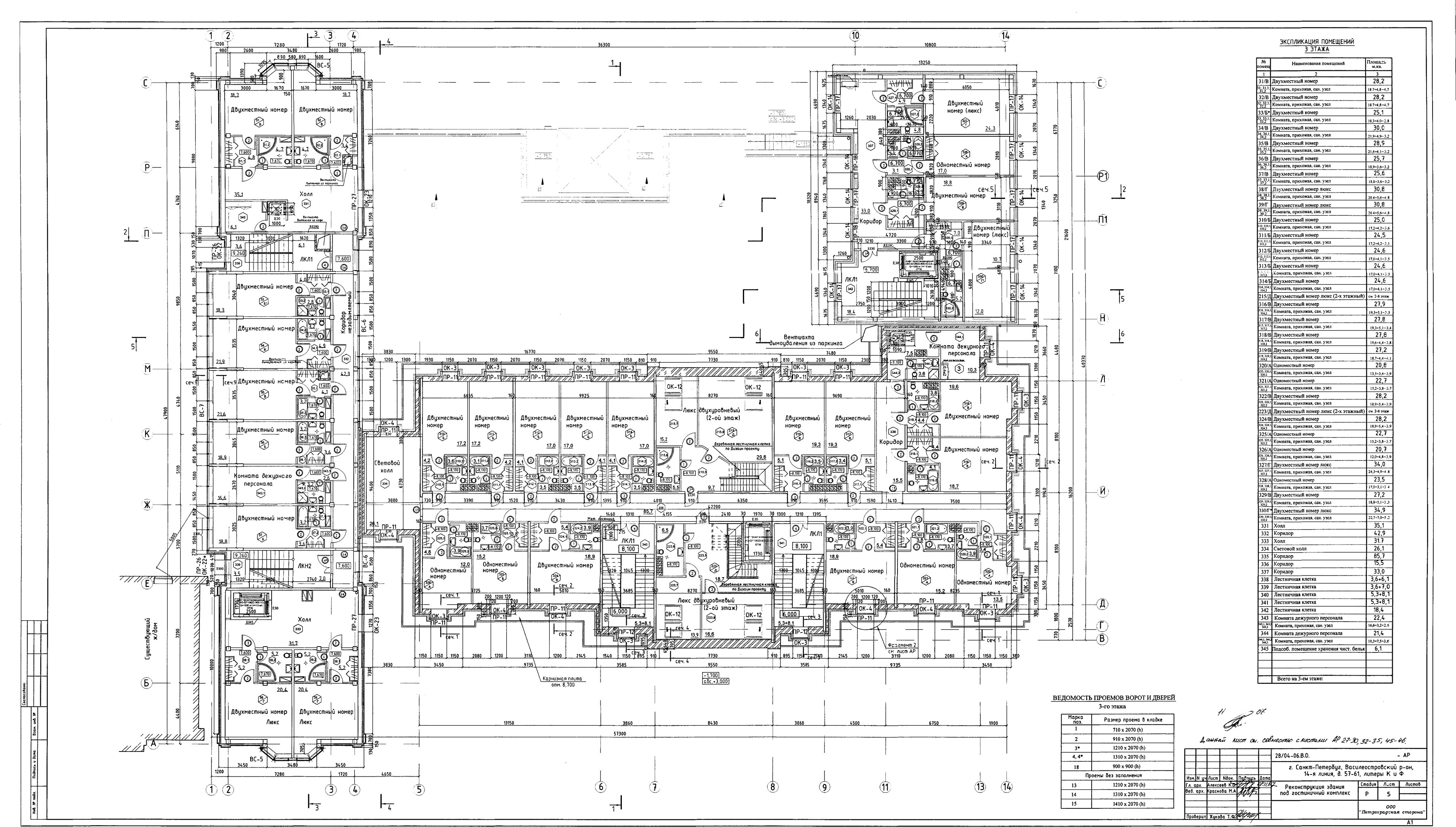
Количество номеров-апартаментов – 52
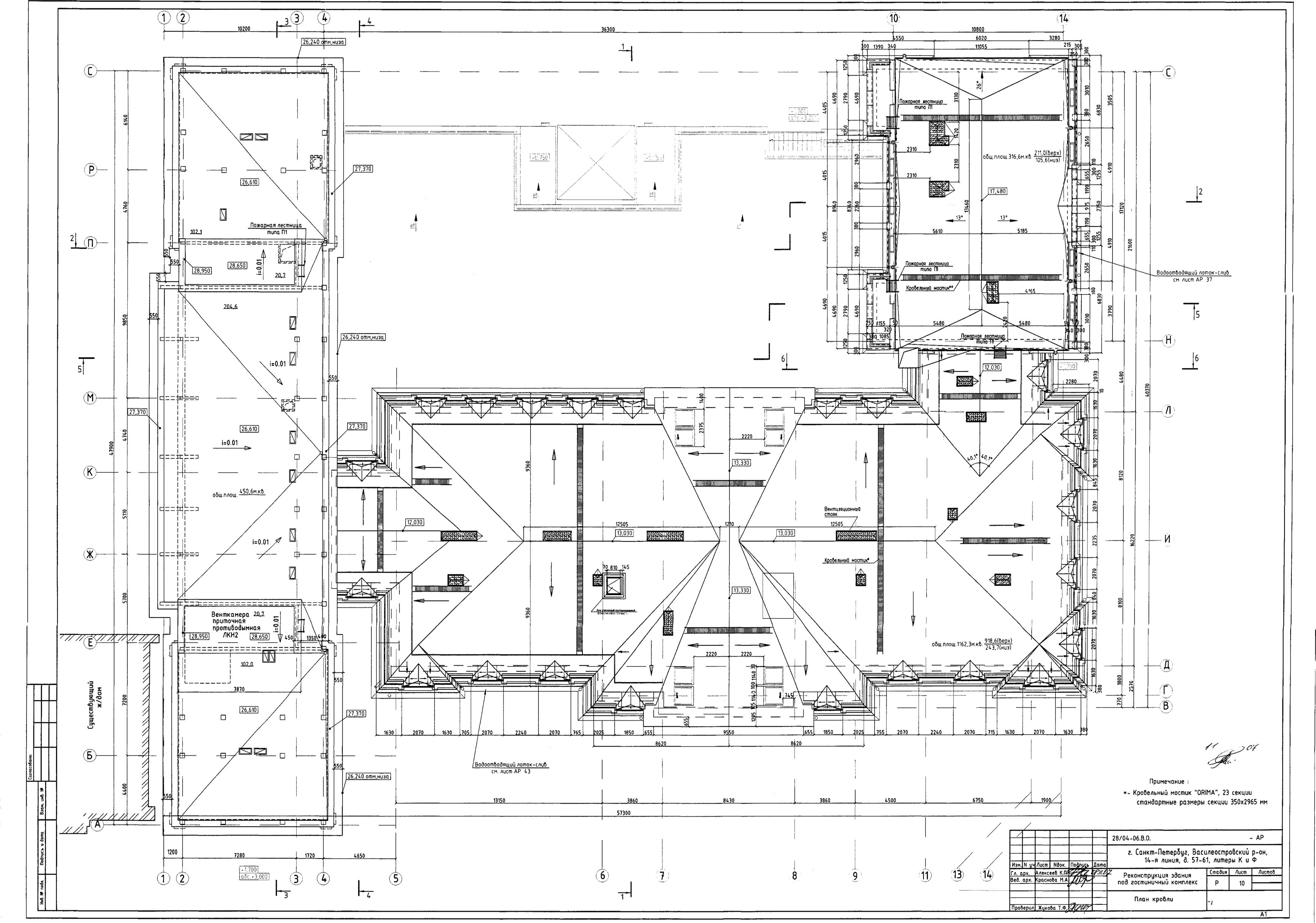
Этажность 3-5-7 этажей.
Здание состоит из 3-х корпусов.
Возведено:
общей площади 9400 м2, в том числе: построено 4400 м2
жилая площадь - 5900 м2
коммерческих помещений - 1660 м2
паркинг - 950 м2
технические помещения - 1710 м2
Возможность увеличения жилой площади.
Социальной нагрузки на объект нет.
Планируемая прибыль после реализации квартир - 62 млн.руб.
Информация о расположенных в границах земельного участка объектах капитального строительства культурного наследия (памятников истории и культуры)
Комплекс зданий Французского благотворительного общества (с садом и оградам).
Информация о технических условиях подключения к сетям инженерно-технического обеспечения
1. Электроснабжение
Договор ОАО «Ленэнерго, № ОДИ-2525-05/10550-Э-04, от 03.02.2006.
ТУ №586/057-3/1-3/5-7, ОАО «Ленэнерго, от 31.03.2007 г.
2. Теплоснабжение
ГУП «ТЭК СПб, ТУ № 22-06/25082-252, от 14.04.2005
3. Водоснабжение и водоотведение
ГУП «Водоканал СПб», ТУ № 10624-55/1-06, от 10.09.2004.
Предоставление дополнительной информации по объекту, организация осмотра и переговоров - по официальной заявке.
Стоимость
Стоимость объекта 350 руб.руб.
Уточнённая информация о стоимости объекта - только по официальному запросу инвестора.
Стоимость350 млн. руб пересчитать в: долл евро |
Внимание! Здесь указана ориентировочная цена и параметры объекта. Пожалуйста, уточняйте информацию по телефону, e-mail или через форму обратной связи. |














