Участок под промышленные объекты и объекты ОДЗ в посёлке Янино
Внимание! Данный объект снят с продажи!
фото
Земельный участок площадью 3.401 га для размещения промышленных объектов и объектов ОДЗ в посёлке Янино.
Расположение
Ленинградская область, Всеволожский район, Заневская волость, посёлок Янино-2, массив Янино-Восточный.
- 3 км от КАД
- 5 км от Санкт-Петербурга
- 9 км от станции метро «Ладожский вокзал»
Заезд с Колтушского шоссе.
Правовая характеристика
Категория земель: земли промышленности, энергетики, транспорта, связи, радиовещания, телевидения, информатики, земли для обеспечения космической деятельности, земли обороны, безопасности и земли иного специального назначения.
Разрешённое использование: для строительства автосалона.
Вид права: собственность юридического лица.
Особенности
- Земельный участок имеет правильную геометрическую форму.
- Перепад высотных отметок незначительный.
- Выполнены инженерные изыскания и градостроительный план земельного участка.
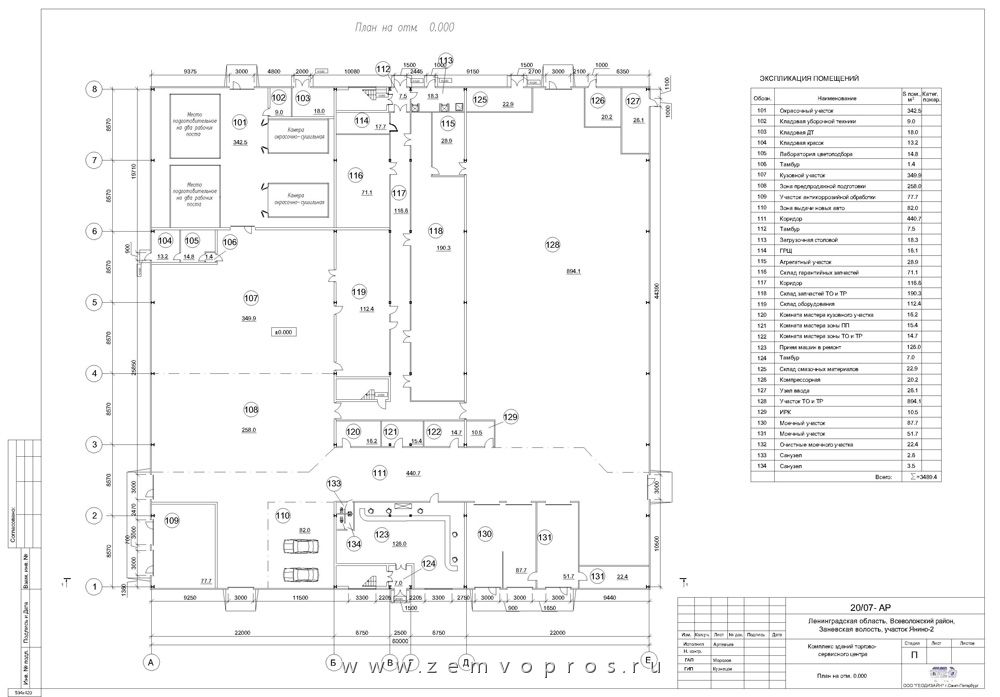
- На участке выполнен проект Комплекса зданий торгово-сервисного автоцентра. Проект прошел Государственную экспертизу.
Технико-экономические характеристики объекта капитального строительства
- площадь участка - 3.401 га
- площадь участка в границах проектирования - 2,367 га
- площадь застройки - 0.660 га
Автосалон
- этажность -1-3
- площадь застройки - 2020.0 м2
- общая площадь - 3636.5 м2
- строительный объем - 15404.2 м2
Здание СТО
- этажность - 1
- площадь застройки - 385.0 м2
- общая площадь - 4633.8 м2
Котельная
- площадь застройки - 68.0 м2
Инженерная обеспеченность
- Технические условия ОАО «Леноблгаз» на газоснабжения природным газом котельной.
- Технические условия на присоединения к муниципальным системам водоснабжения и канализации.
- Технические условия ОАО «Ленэнерго» о возможности выделения - 400 кВт.
- Разрешенный запроектированный съезд с Колтушского шоссе.
Предоставление дополнительной информации по объекту, организация осмотра и переговоров - по официальной заявке.
Стоимость4.77 млн. долл пересчитать в: руб евро |
Внимание! Здесь указана ориентировочная цена и параметры объекта. Пожалуйста, уточняйте информацию по телефону, e-mail или через форму обратной связи. |
Фотографии
Расстояние до Санкт-Петербурга
3 км. (указано расстояние до КАД Санкт-Петербурга по прямой).













