Земельный участок на Васильевском острове Санкт-Петербурга под строительство жилого дома
Внимание! Данный объект снят с продажи!
фото
Земельный участок площадью 0,24 га под строительство жилого многоквартирного дома.
Расположение:
Санкт-Петербург, В.О., 24 линия, д.29 .
Категория земель: земли населённых пунктов.
Разрешённое использование: строительство многоквартирного дома, бизнес-центра, гостиницы (зона Д 111).
Земельный участок находится в собственности.
Особенности:
- Земельный участок расположен в центральной части Васильевского острова, на фасадной части 24 линии В.О.
- Участок имеет хорошую транспортную и инженерную инфраструктуру.
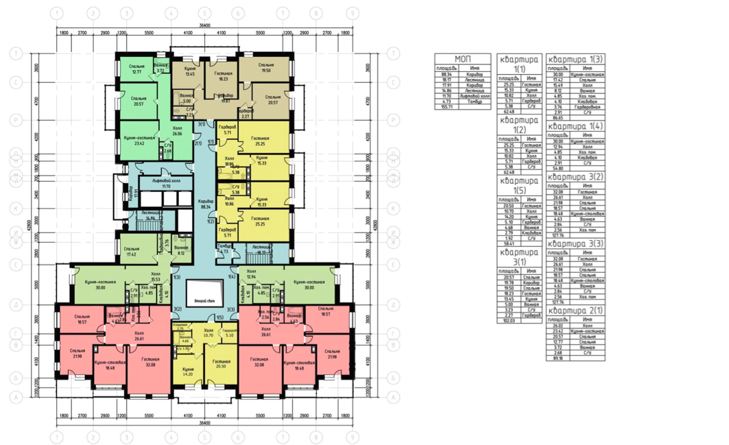
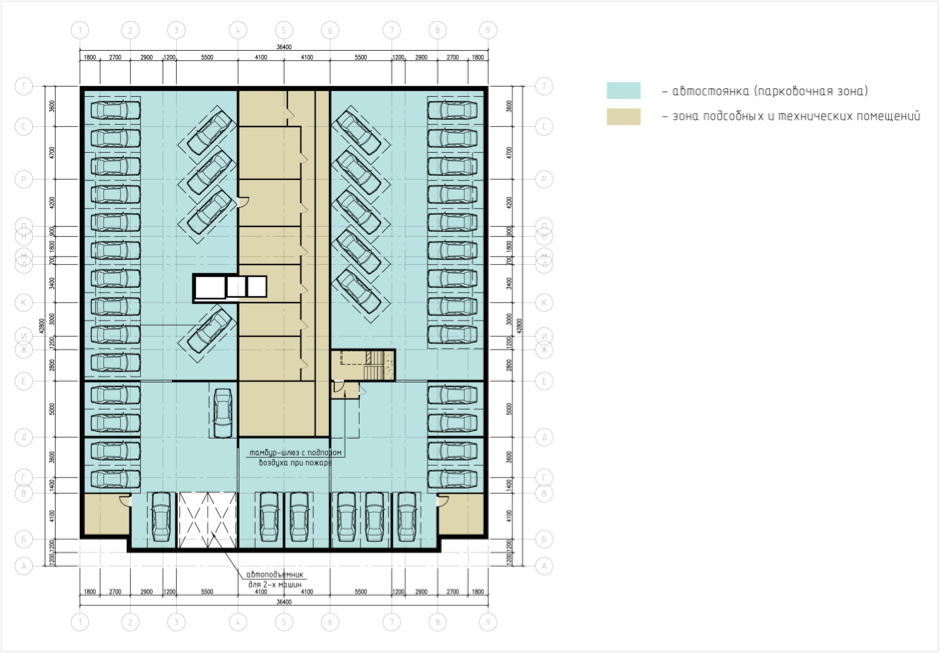
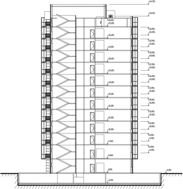
- Выполнен эскизный проект многоквартирного жилого дома со встроенными помещениямии подземной автостоянкой.
Аннотация к эскизному проекту многоквартирного жилого дома со встроенными помещениями и подземной автостоянкой по адресу: Санкт-Петербург, Василеостровский район, 24 линия ВО, дом №29.
Проектируемое здание располагается в Василеостровском административном районе, на 24 линии В.О между Малым и Средним проспектами, на месте сносимого дома №29.
Проектируемый дом представляет собой 13-тиэтажное (с учетом технического чердака) жилое здание со встроенными помещениями административного назначения и подземной автостоянкой на 43 машиноместа. На первом этаже предполагается разместить входную группу жилого здания и помещения офисного назначения, на втором этаже - также размещаются офисные помещения, а на остальных этажах - жилые квартиры.
Конструктивная основа здания - монолитные железобетонные стены с навесными стеновыми конструкциями из кирпича с вентилируемой фасадной системой.
- Квартал, в настоящее время активно развивается новыми собственниками в формате строительства жилой и коммерческой недвижимости.
- На территории участка в настоящее время расположено двухэтажное здание бывшей автомастерской, подлежащее сносу.
- Перечень документов на объект продажи:
- Свидетельство о государственной регистрации (свидетельство на землю и здание).
- Кадастровый план земельного участка.
- План первичного объекта недвижимости.
- Выписка из ЕГРП.
Стоимость120 млн. руб пересчитать в: долл евро |
Внимание! Здесь указана ориентировочная цена и параметры объекта. Пожалуйста, уточняйте информацию по телефону, e-mail или через форму обратной связи. |














