Одна секция в дуплексе с прилегающим земельным участком в посёлке городского типа Ульяновка
Внимание! Данный объект снят с продажи!
Одна секция в дуплексе с прилегающим земельным участком площадью 6 соток в посёлке городского типа Ульяновка.
Расположение
Ленинградская область, Тосненский район, посёлок Ульяновка.
В 28 км от Санкт-Петербурга.
Правовая характеристика
Категория земель: земли населённых пунктов.
Разрешённое использование: для индивидуального жилищного строительства (ИЖС).
Вид права: собственность юридического лица.
Особенности
- Участок расположен в самом посёдке Ульяновка, на ул. Малинина.
- Участок угловой.
- Подъезд с разных улиц.
- Одна секция дуплекса продана.
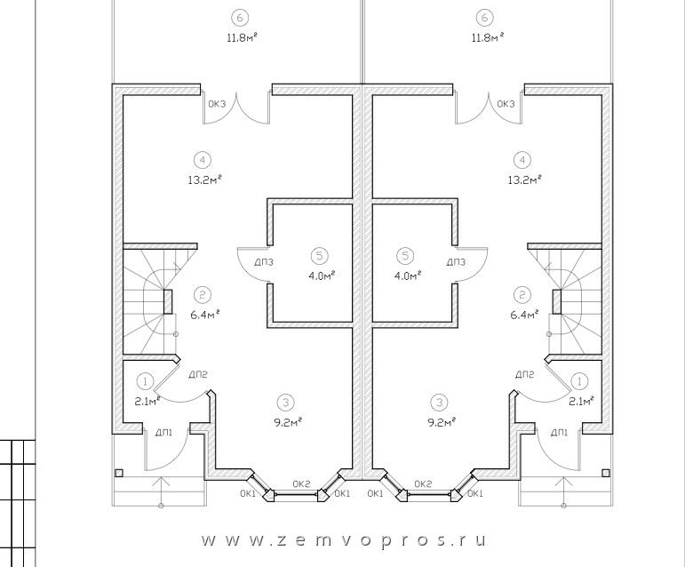
- Характеристики секции в дуплексе(проект "Париж-Дакар"):
1). Площадь секции S=70 м2
2). Внутри отделка гипсокартоном,
3). Коммуникации:
Водоснабжение локальное (от скважины на участке, прилегающим к этой части дуплекса. На смежном участке – другая скважина).
Электричество: 5 кВт. Подведено. Входит в стоимость объекта.
Газ: централизованный.
Канализация.
По дому все коммуникации разведены.
- Свой балкон на втором этаже и терраса на первом.
- На участок отдельный вьезд.
Стоимость
Стоимость секции дуплекса с прилегающим участком площадью 6 соток – 2.570 млн.руб.
Стоимость2.57 млн. руб пересчитать в: долл евро |
Внимание! Здесь указана ориентировочная цена и параметры объекта. Пожалуйста, уточняйте информацию по телефону, e-mail или через форму обратной связи. |
Расстояние до Санкт-Петербурга
29 км. (указано расстояние до КАД Санкт-Петербурга по прямой).







