Земельный массив для индивидуального жилищного строительства с гольф-составляющей с небольшим озером на территории в районе Мельничный ручей города Всеволожск вблизи деревни Плинтовка
Внимание! Данный объект снят с продажи!
фото
Земельный массив площадью 281.28 га для индивидуального жилищного строительства с гольф-составляющей с небольшим озером на территории в районе Мельничный ручей города Всеволожск вблизи деревни Плинтовка.
Расположение
Ленинградская область, Всеволожский район, г. Всеволожск, район города "Мельничный ручей".
В 15 км от КАД по Колтушскому и Рябовскому (Дорога Жизни) шоссе.
Правовая характеристика
Категория земель: земли населённых пунктов.
Разрешенное использование: для индивидуального жилищного строительства (ИЖС).
Ограничение по высоте застройки: высота в коньке - не выше 11.5 м.
Вид права: собственность юридического лица.
Особенности
- Участок представляет собой поле с луговой и древсно-кустарниковой растительностью, сетью мелиоративных канав и пересекающих их тропинок.
- С двух сторон земельный массив окружен лесом.
- В 400 м от земельного массива с западной строны - река Лубья.
- Сеть подъездных дорог.
- Поверхность имеет незначительный уклон - до 10 м.
- На территории земельного массива есть небольшое озеро, что позволяет оценить состояние почвы и уровень грунтовых вод.
- В настоящее время территория земельного массива не используется.
- Въезд на участок осуществляется с южного шоссе и улиц города Всеволожск.
- Ж/д станции" Щеглово" (0.7 км) и "Мельничный ручей" (1.5 км).
- Обременения: охранная зона ВЛЭП 35 кВ - 66 313.7 м2 .
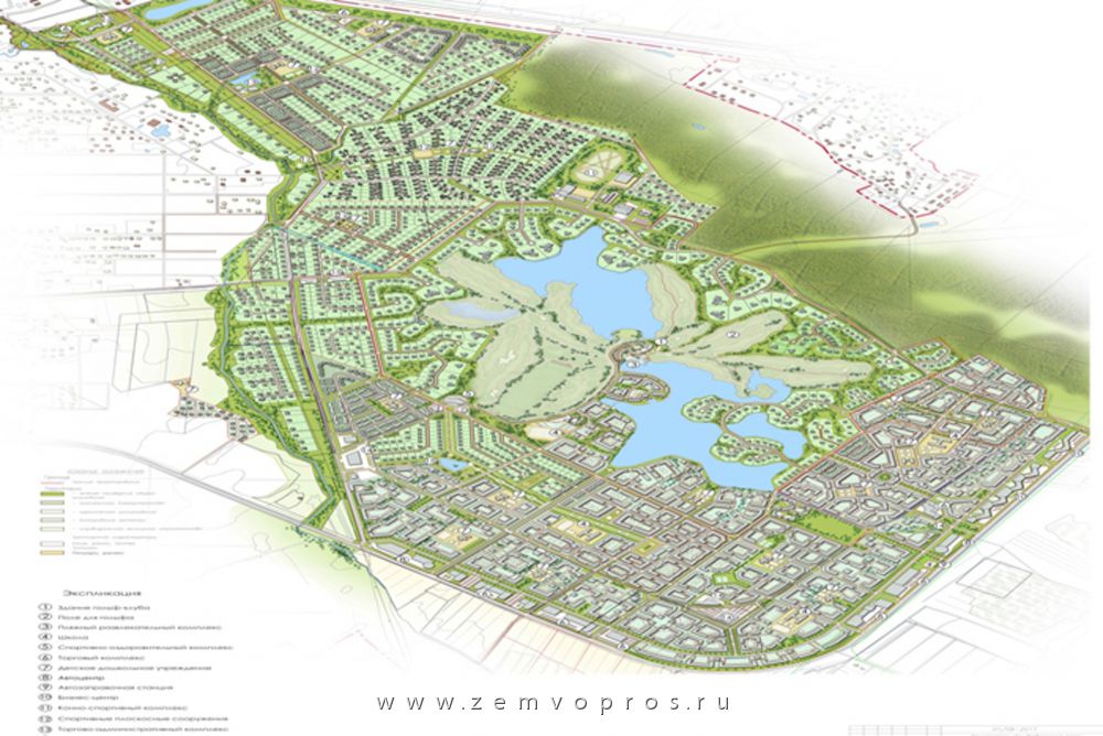
Проект гольф-клуба "Мельничный ручей"
Большой ровный участок правильной формы позволяет создать принципиально новый продукт на рынке загородной недвижимости Ленинградской области – формирование определенного образа жизни на отдельно взятой территории.
Проектом предусмотрено осуществление комплексного девелопмента, в рамках которого половина земельного участка будет отведена под инфраструктуру.
Проектом предусмотрены высококлассные объекты для обучения гольфу и тренировок, создающие потрясающий фон для жилой застройки, и включающие в себя:
- 18-луночное гольф-поле , подходящее для проведения чемпионатов.
- Клубный дом, совмещающий гольф-клуб и пляжный клуб.
- Малоэтажное жилье.
- Многофункциональную застройку с ресторанами, кафе, магазинами и иными коммерческими объектами.
- Международную школу.
- Спортивный комплекс.
1. Анализ рыночной и финансовой целесообразности
Правильная форма.
Отсутствие санитарных зон и обременений ( за исключением ВЛЭП 35 кВ, которая может быть переложена в кабель).
Натуральные природные виды: от взора скрыты как окружающая застройка, так и другие зоны урбанизации.
Геодезия - преимущественно песчаный грунт.
На участке располагаются мелиоративные канавы и небольшое озеро.
Анализ вышеперечисленных факторов позволил выбрать в качестве возможной концепции идею создания интегрированного гольф-сообщества.
Для концептуальной проработки были приглашены признанные лидеры в проектировании гольф-курортов и гольф-полей для гольф-соообществ – международная компания WATG , английская архитектурная компания EGD (European Golf Design ) и архитектурно-градостроительное проектное бюро Правительства Ленинградской области.
Компании совместно разработали несколько вариантов развития территории.
2. Природная красота
Земельный участок выгодно отличается отсутствием урбанизации в радиусе 2-3 км, ввиду чего ни в одной точке земельного участка нет вида, испорченного какими-либо техногенными объектами - только природная красота.
На территории поселка разместятся 2 больших искусственно созданных озера, в которых можно купаться и кататься на лодках. При этом площадь зеркала воды в 50 га беспрецедентна не только в Ленинградской области, но и для России в целом. Ширина озер в некоторых местах достигает 400-500 м.
Гидрологических и гидравлических препятствий для организации прудов на проектируемой территории нет
Также на территории площадью 80 га запланировано живописное гольф-поле, соответствующее мировым стандартам.
Жилая застройка при этом спроектирована таким образом, что каждый объект имеет прямой вид на озеро и/или гольф- поле.
3. Портрет групп оптовых покупателей недвижимости
1. Иностранцы
В Санкт-Петербурге нет проектов, привлекших большое число иностранцев для проживания. Основные критерии - наличие инфраструктуры (в особенности школы, обучающей на английском языке), закрытость поселка.
В качестве крупных корпоративных клиентов могут выступить такие компании как Ford, Nokian, Ariston, чьи заводы находятся в 5 км от участка.
2. Менеджмент крупных российских компаний
В Санкт-Петербург переведен офис компании Газпром-Нефть, в планах перевести основной офис Газпром, ТНК-BP, Транснефть и Лукойл.
3. Чиновники
Множество крупных федеральных чиновников являются выходцами из Санкт-Петербурга и Ленинградской области. Многие из них предпочитают иметь недвижимость в регионе.
4. Любители гольфа
Так как проект с полноразмерным гольф-полем будет одним из первых в Ленинградской области, он привлечет массу любителей этого вида спорта, которых, по данным Федерации гольфа Санкт-Петербурга в Ленинградской области более 2 000 человек.
Варианты реализации объекта
1. Парнерство:
- Собственник земельного участка (з.у.) заинтересован в поиске партнера для реализации проекта.
- Наилучшим партнером, с точки зрения собственника з.у., будет компания имеющая компетенции и мощности в строительстве домов из дерева, каркаса, газобетона, монолита или кирпича.
- Приоритетным вариантом партнерства собственник з.у. видит формат покупки партнером земельного участка в рассрочку, при этом, собственник з.у. гарантирует строительство базовой инфраструктуры: гольф-поля, озёра, ограждения и основной (круговой) дороги.
2. Продажа земельного массива.
Стоимость обсуждатся.
Общая информация
Санкт-Петербург - второй по величине город Российской Федерации, административный центр Северо-Западного федерального округа, единственного региона России, имеющего протяженную границу со странами Европейского Союза. Санкт-Петербург, находящийся в центре пересечения морских, речных путей и наземных магистралей, является европейскими воротами России, ее стратегическим центром, наиболее приближенным к странам Европейского Сообщества.
Санкт-Петербург - важный экономический, научный и культурный центр России, крупный транспортный узел.
Исторический центр Санкт-Петербурга и связанные с ним комплексы памятников входят в список Всемирного наследия ЮНЕСКО; это один из самых важных в стране центров туризма.
Особенности климата
В этом регионе наблюдается природный феномен высоких широт - так называемые белые ночи. Продолжительность белых ночей - 1- 1,5 месяца, с конца мая до середины июля. Это является большим преимуществом, т.к. закрытие гольф поля из-за освещения происходит значительно позже.
То, что игру можно начать в любое время суток, положительно сказывается и на количестве игроков, одновременно присутствующих на поле - никакой давки не наблюдается.
В Финляндии даже проводятся специальные ночные соревнования - одни из самых необычных гольф-турниров в Европе. Опираясь на опыт Финляндии, можно прогнозировать схожую ситуацию на гольф-полях Санкт-Петербурга.
Вектор развития экономики
Продолжится тенденция размещения в Санкт-Петербурге главных офисов крупнейших российских, а в перспективе и международных компаний. Из Санкт-Петербурга наряду с Москвой должно осуществляться управление деятельностью российских и международных компаний по всей стране и за рубежом.
Исполнение такой функции позволит сосредоточить в Санкт-Петербурге значительные финансовые потоки и вывести такие отрасли сферы услуг, как связь, банковское дело, страхование, консалтинг и управление объектами недвижимости на качественно новый уровень.
Богатейшие люди Санкт-Петербурга
Составлен рейтинг самых богатых людей Санкт-Петербурга. Основой для рейтинга стал список 500 миллиардеров журнала «Forbes».
Интересны перемены, в нем произошедшие: солидное представительство ритейлеров в топ-10 сменила команда «друзей Путина». В рейтинге находятся более 100 миллиардеров из Петербурга. Многие из них предпочитают иметь недвижимость в регионе.
Всеволожский район
Территория Всеволожского района расположена в юго-восточной части Карельского перешейка между городом Санкт-Петербургом и Ладожским озером. Всеволожский район входит в состав Ленинградской области. Расстояние до Санкт-Петербурга - 15 км.
Климатические и природные условия здесь сопоставимы с европейскими курортными условиями. Всеволожский район нередко называют маленькой Швейцарией.
Для тех, кто привык наслаждаться красотами природы, подойдет любое из мест Всеволожского района.
Всеволожск
Всеволожск находится в семи километрах от границы Санкт-Петербурга. С Финляндского вокзала через город проходят электропоезда Ириновского направления. С Санкт-Петербургом Всеволожск связан также автобусным сообщением.
Сегодня Всеволожск - это экономический и культурный центр региона. В городе работают современные предприятия, такие как автосборочный завод компании Ford и шинный завод Nokian Tyres. Всеволожский район находится на втором месте в Ленинградской области, по объему выполненных работ и услуг.
Обладая развитой инфраструктурой, развитыми путями сообщения, находящийся в 10 минутах от Санкт-Петербурга, Всеволожск приобретает статус элитного района.
Строительство
Всеволожский район - лидер по темпам ввода жилья в Ленинградской области в 2011 году.
Во Всеволожске реализуется множество проектов по возведению многоквартирных домов, строятся малоэтажные комплексы, большое количество домов возводится частными лицами.
Экономика
В последние годы многие мультинациональные корпорации открыли здесь свои заводы, которые, в свою очередь, создали высокооплачиваемые рабочие места для иностранных специалистов. Иностранные менеджеры, а также преуспевающие местные жители.
Примечание
Осмотр объекта и предоставление дополнительной информации - по официальному запросу (заявке).
Стоимость
Стоимость объекта 140 $млн.
Стоимость140 млн. долл пересчитать в: руб евро |
Внимание! Здесь указана ориентировочная цена и параметры объекта. Пожалуйста, уточняйте информацию по телефону, e-mail или через форму обратной связи. |
Расстояние до Санкт-Петербурга
11 км. (указано расстояние до КАД Санкт-Петербурга по прямой).





