Земельный участок под строительство жилого дома со встроенными офисными помещениями и встроенными автостоянкой и ТП в Петроградском районе Санкт-Петербурга
Внимание! Данный объект снят с продажи!
фото
Земельный участок площадью 412 м2 для строительства многоквартирного жилого дома со встроенными помещениями и встроенными автостоянкой и трансформаторной подстанцией и с реконструкцией имеющегося (2 очередь) в Петроградском районе Санкт-Петербурга.
Расположение
Санкт-Петербург, Петроградский район, на пересечении Офицерского переулка и улицы Красного Курсанта (Офицерский переулок, юго-восточнее пересечения с ул. Красного Курсанта, 10, лит. А,В).
Правовая характеристика
Категория земель: земли населённых пунктов.
Разрешённое использование: для строительства многоквартирного жилого дома со встроенными помещениями и встроенными автостоянкой и трансформаторной подстанцией и с реконструкцией имеющегося (2 очередь).
Вид права: собственность юридического лица.
Особенности
- Площадь земельного участка - 412 м2 .
- Площадь застройки - 412 м2 .
- Общая площадь здания - 2 825,10 м2
- Общая площадь квартир - 1 935.90 м2 .
- Количество квартир - 18
- Этажность - 8 этажей
- Общая площадь автостоянки - 184,15 м2
- Общая площадь офисов - 200.05 м2
- Строительный объём - 7 779,24 м3
- Характеристики дома:
Тип дома - монолитный VELOX
1. Современный 8-этажный комплекс класса комфорт. Здание монолитное по системе VELOX с автостоянкой на первом этаже на 9 автомашин.
2. Дом расположен в отличном месте: 10 минут ходьбы от станции метро "Спортивная", рядом со стадионами "Петровский" и СКА, недалеко от Князь-Владимирского Собора .
3. Строительство комплекса предусматривает две очереди:
Первая очередь - строительство 8-ми этажного жилого дома на 18 квартир с паркингом на первом этаже и офисами на втором этаже.
Вторая очередь - реконструкция существующего четырех этажного жилого дома.
3. Инфраструктура:
служба консьерж;
спутниковое и кабельное ТВ;
интернет;
видео наблюдение внутри и по всему периметру дома;
грузопассажирский лифт OTIS;
система мусороудаления;
в каждой квартире счетчики тепла, воды, электроэнергии.
4. Отделка:
цоколь - натуральный камень;
стены - штукатурка;
эркер - матированное стекло.
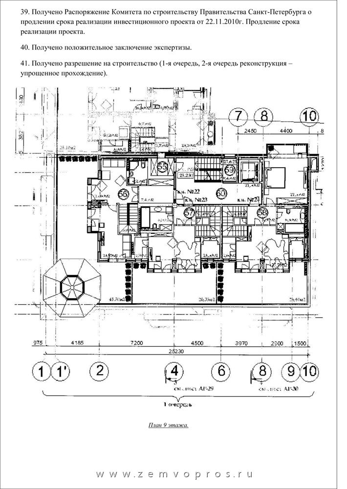
5. Планировка квартир:
Однокомнатная квартира (общ. пл. 86,4 м2);
Двухкомнатная квартира (общ. пл. 103,65 м2);
Трехкомнатная квартира (общ. пл. 145,45 м2).
- ВЫПОЛНЕННЫЕ РАБОТЫ :
1. Подготовка строительной площадки (85%).:
Устройство свайного поля (70%).
Вынос инженерных сетей под пятна застройки (100%).
Вынос трансформаторной подстанции ( установлены две КТПН по 400 кВА).
Демонтаж ТП и оформление земельного участка (выполнено).
Укрепление буронабивными сваями дома № 8, № 10, лит.Б (выполнено).
2. Согласован проект в "Водоканал"е. (Получена справка о выполнении выставленных условий).
3. Получены новын ТУ в "Петербургтеплоэнерго. Мощности оплачены.
Получены новые ТУ в "Ленэнерго". Мощности оплачены.
Перенос эл. кабеля от дома 10 А на 10 Б. Выполнено.
4. ГИБДД: согласована схема ОДД. Согласован стройгенплан.
5. Отключение воды и канализации от блока А (выполнено).
6. Выполнен и согласован проект по теплотрассе. Получены новые ТУ. Получена съёмка ГРИИ по прокладке тепловых сетей.
7. Проект по электроснабжению с "Петербургсбытовой компанией" - на согласовании. Получение разрешения - после получения разрешения ГСНиЭ на строитнльство.
8. Разработан проект застройки территории по участку "Б" и спортивной площадке. Предварительно согласовн с Администрацией Петроградского района.
10. Получено разрешение ГУЖА об отключении дома № 10 лит. А от коммуникаций. Газ и тепло отключены.
11. Выполнен 2-й выход из блока "Б" (дом № 10Б).
12. Подобраны страховые компании для заключения договора перед началом сноса здания.
13. Подготовлены и согласованы изменения в проекте в связи с изменение ТУ (пересчитаны выбросы, внесена корректировка в пояснительную записку.
14. Выполнен и согласован проект по ВиК, НВК, электроснабжению, вентиляции, отоплению и слаботочных сетей).
15. Согласованы в межведоственной комиссии документы на утановку временного ограждения. Получено распоряжение КБДХ на установку временного ограждения.
16. Заказан и получен в КГА градплан на 1- ю очередь строительства.
17. Сданы документы в СЭС и в "Роспотребнадзор" - получено согласование на 1-ю очередт строительства.
18. Получена справка КГИОПс с положительным заключением по проекту сноса здания.
19. В КГА, администрации проведено согласование проекта.
20. Экспертиза проекта: проект передан в ГСНиЗ.
21. Проект ПОР согласован. Снос здания согласован.
22. С ОАО "Ленэнерго" согласован генплан.
22. С отделом подземных сооружений КГА согласован генплан.
23. Перевод существующих телефонов на организацию - переведены.
24. Переоформление договоров по электричеству и получение справки на мощность на квартиры по ул. Красного Курсанта - квартиры ГУЖА обследованы. Получены акты о технологическом подсоединении в "Ленэнерго".
24. Акты и отчёты по осмотру квартир на предмет трещин примыкающих зданий - подготовлены и составлены.
25. Дом №10 лит. расселён.
Согласован и выполнен вынос ТП из под пятна застройки.
26. Выполнена сверка переноса канализации - с "Водоканал"ом.
26. Выделение из проекта 1 очереди. Проект сдан на экспертизу.
27. Заключён договор на генподрядные работы.
28. Получено Разрешение СГСН иЭ на строительство.
27. Получено Распоряжение Комитета по строительству Санкт-Петербурга на продление работ.
Полное завершение "нулевого этапа" строительства". Сдача объекта ГАСН.
Начало строительство 1-го этажа.
Возможность продажи 3-х квартир на данном этапе для высвобождения денежных средств .
Завершение строительства оценивается в 90 млн. руб.
Возможность заключения контрактов с подрядчиками, рекомедуемыми собственником объекта.
Плановый срок завершения строительства- октябрь 2013 года.
При покупке объекта -
реальная помощь инвестору в открытии кредитной линии после внесения авансового платежа (10% от стоимости объекта).
Стоимость
СТОМОСТЬ ПРИОБРЕТЕНИЯ ИНВЕСТИЦИОННОГО ПРОЕКТА СО ВСЕМИ ПРОВЕДЁННЫМИ РАБОТАМИ И ПОЛУЧЕННОЙ ДОКУМЕНТАЦИЕЙ
230 млн. руб. + комиссионные
Варианты продажи обсуждаются.
ПРИМЕЧАНИЕ
Предоставление документов и материалов - по официальному запросу.
Стоимость230 млн. руб пересчитать в: долл евро |
Внимание! Здесь указана ориентировочная цена и параметры объекта. Пожалуйста, уточняйте информацию по телефону, e-mail или через форму обратной связи. |






