Участок с ОСЗ на ул. Таллиннская в Санкт-Петербурге
Внимание! Данный объект снят с продажи!
фото
документы
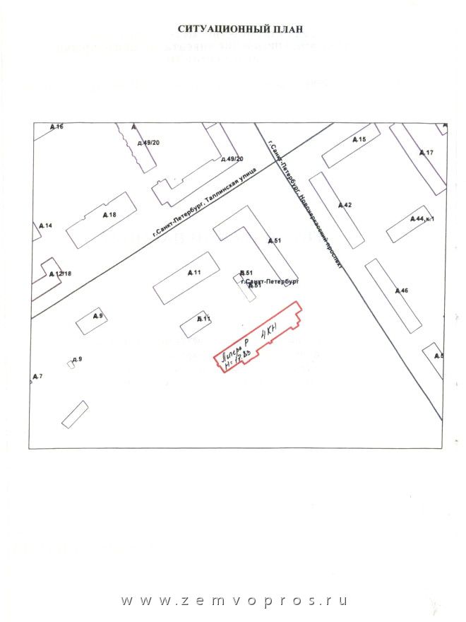
Отдельно стоящее здание общей площадью 5 823,9 м2 на земельном участке площадью 0.5 га в Красногвардейском районе Санкт-Петербурга.
Расположение
Санкт-Петербург, Красногвардейский район, ул. Таллиннская, д.7, лит. Р.
Правовая характеристика
Категория земель: земли населённых пунктов.
Разрешённое использование: для размещения промышленных объектов.
Вид права: земельный участок и здание - в обственности юридического лица.
Особенности
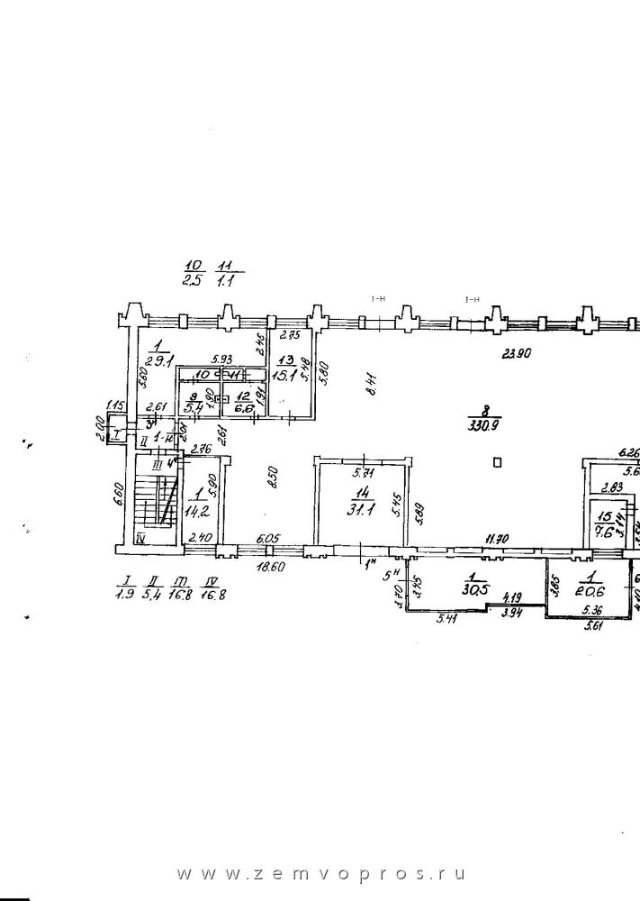
- Здание представляет бывший производственный корпус №11, назначение: нежилое. .
Общая площадь - 5 823,9 м2
Этажность 1-4. Подвал. Кроме того: мезонин-надстройка.
Состояние: требуется выборочный ремонт.
- Коммуникации:
теплоснабжение (от заводской котельной), электроснабжение, канализация (сброс в городскую сеть), централизованное горячее водоснабжение. телефонная линия.
- Лифт пассажирский.
- Первый этаж здания испльзуется под производство.
- На других этажах - офисные помещения.
- Земельные участки площадью 2388 м2 - северо-западнее здания и площадью 1981 м2 - к зданию.
Предоставление дополнительной информации по объекту, организация осмотра и переговоров - по официальной заявке.
Стоимость
СТОИМОСТЬ ОБЪЕКТА: 165 млн. руб. (без учёта налогов)+ комиссионные
Возможность продажи юридического лица.
Стоимость165 млн. руб пересчитать в: долл евро |
Внимание! Здесь указана ориентировочная цена и параметры объекта. Пожалуйста, уточняйте информацию по телефону, e-mail или через форму обратной связи. |

























