Участок с недостроем под производство или склад в Оржицах
Внимание! Данный объект снят с продажи!
фото
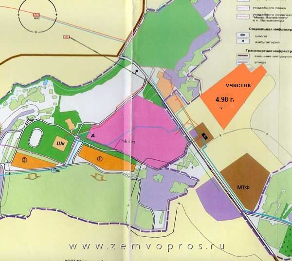
Земельный участок площадью 4.98 га с недостроенным зданием под производственный и/или складской комплекс в деревне Оржицы
Расположение
Ленинградская область, Гатчинский район, деревня Оржицы
- 40 км от Санкт-Петербурга
- 15 км от платформы «Старый Петергоф»
- 10 км от КАД
- 150 м от трассы Ропша - Старый Петергоф
Правовая характеристика
Площадь участка - 498 сот.
Категория: земли промышленности и транспорта
Разрешённое использование: под производственный и/или складской комплекс,пищевое производство
Вид права: собственность юридического лица
Особенности
- Земельный участок расположен на территории деревни Оржицы по трассе Ропша - Старый Петергоф
- Проводится межевание участка с выделом в самостоятельный объект участка площадью 1 га со зданием
На участке
- Недостроенное здание:
- площадь - 1500 м2
- в 2 этажа
- удобный подъезд с асфальтовым покрытием - в 150 м от трассы
- Проложенная система дренажных труб:
- ливневая канализация
- находится в рабочем состоянии
- протяжённость ливневой канализации - 350 м
Коммуникации
- газопровод, водопровод:
- проходят примерно в 150 м от здания и границ участка
- получены ТУ на водоотведение и водоснабжение - согласования с Роспотребнадзором и ГО МЧС
- электричество
- получены ТУ на 150 кВт
- используются для внутренних нужд 15 кВт
Деревня Оржицы - поселок городского типа, имеющий развитую инженерную инфраструктуру, включающую:
- водопроводные и канализационные сети
- электроподстанцию
- ВЛ
- котельную и тепловые сети
- газопровод ВД
О стоимости объектов
- стоимость земельного участка площадью 1 га со зданием – 23 млн. руб.
- стоимость здания – 10.5 млн.руб.
- стоимость земельного участка площадью 3.98 га – 58 млн.руб.
- стоимость земельного участка площадью 2.98 га – 42 млн.руб.
- стоимость земельного участка площадью 4.98 га со зданием – 68 млн. руб.
Предоставление дополнительной информации по объекту, организация осмотра и переговоров – по официальной заявке
Стоимость68 млн. руб пересчитать в: долл евро |
Внимание! Здесь указана ориентировочная цена и параметры объекта. Пожалуйста, уточняйте информацию по телефону, e-mail или через форму обратной связи. |
Расстояние до Санкт-Петербурга
26 км. (указано расстояние до КАД Санкт-Петербурга по прямой).




