Здание (объект незавершённого строительства) для размещения гостиницы, бизнес-центра и др. объектов на пересечении наб. канала Грибоедова и наб.Крюкова канала в элитном районе Санкт-Петербурга
Внимание! Данный объект снят с продажи!
фото
Здание (объект незавершённого строительства) для размещения гостиницы, бизнес-центра, медцентра и др. объектов на пересечении набережной канала Грибоедова и набережной Крюкова канала в элитном районе Санкт-Петербурга.
Расположение
Санкт-Петербург, пересечение набережной канала Грибоедова и набережной Крюкова.
Правовая характеристика
Категория земель: земли населённых пунктов.
Разрешённое использование:
гостиница, административное здание, бизнес-центр, банк, медицинское учреждение и т.д..
Вид права:
здание - в собственности юридического лица (общедолевая собственность)
земельный участок площадь (1077 м2 ) -под зданием - аренда КУГИ, 49 лет.
Особенности
- Расположение на пересечении набережной канала Грибоедова и набережной Крюкова канала, в элитном районе города.
- Виды на историческую часть Санкт-Петербурга: прекрасный вид на канал Грибоедова, Свято-Исидовскую церковь, рядом Николо-Богоявленский собор, Никольская площадь, Театральная площадь, Мариинский театр.
- Возможность посадки туристов на прогулочные катера, на воду; рядом со зданием.
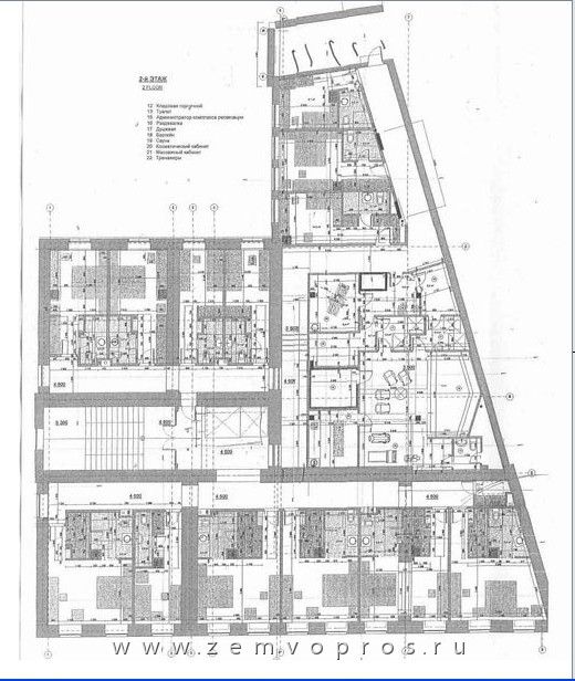
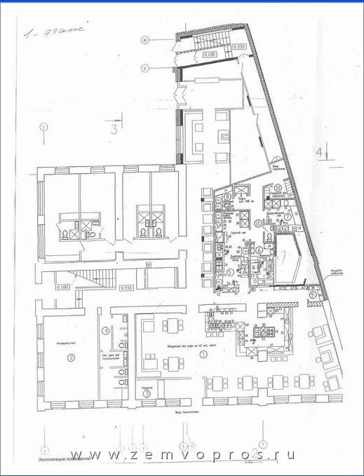
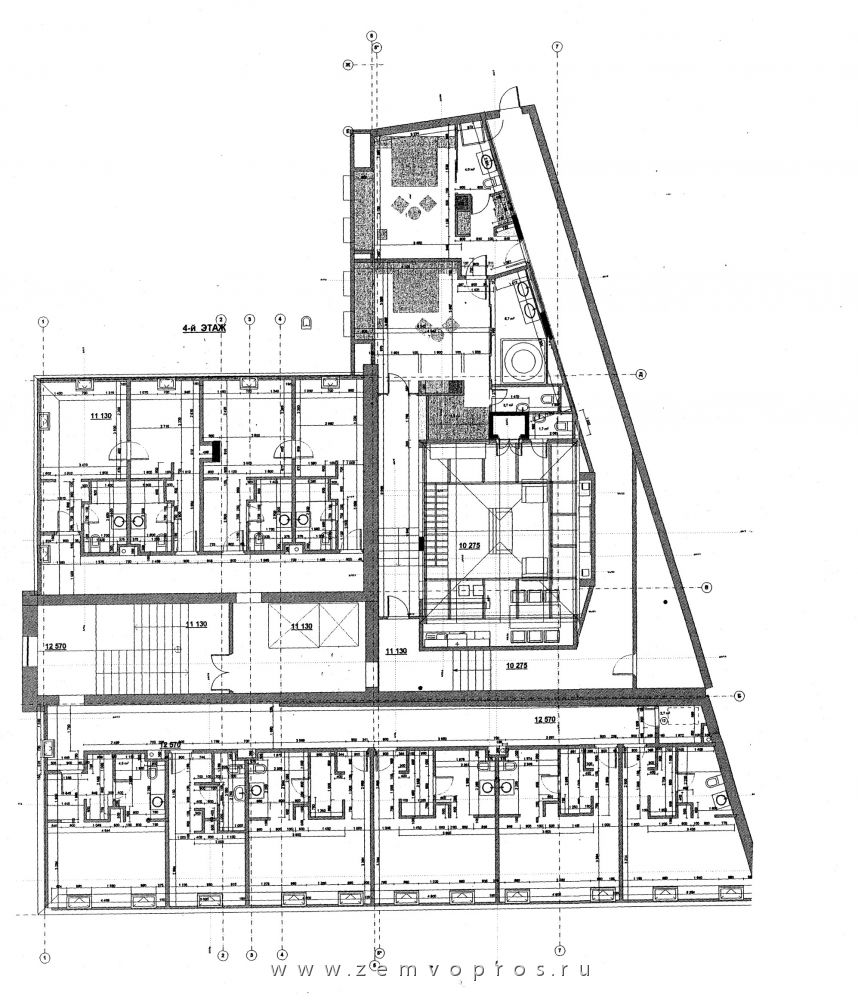
- Характеристики здания:
Имущественно - правовой статус: объект незавершенного строительства
Собственность юридического лица
Здание - общая долевая собственность
Земельный участок - аренда КУГИ, 49 лет
Назначение здания:
Проект реконструкции под гостиницу - 4 звезды:
Общая площадь здания, в соответствии с проектом, составила 2650 м2
Этажность здания - 3 + мансарда.
40 номеров - нежилые (по факту незавершенного строительства)
Общие строительно-монтажные работы по реконструкции «коробки»-выполнены на 100 % (фасады, стены, перекрытия, крыша, остекленение)
Подведены ресурсы: вода, канализация, телефонизация:
Получены ТУ на электричество, 130 кВт
Выполнен монтаж автономной, импортной газовой котельной мощностью -350 кВт
Есть закрытая парковка на 5-7 авто
В здании - бассейн, шахта лифта для пищи
Варианты использования:
Гостиница, административное здание, бизнес-центр, банк, медицинское учреждение и т.д.
Стоимость
СТОИМОСТЬ: 200 млн. руб.+ комиссионные
Стоимость200 млн. руб пересчитать в: долл евро |
Внимание! Здесь указана ориентировочная цена и параметры объекта. Пожалуйста, уточняйте информацию по телефону, e-mail или через форму обратной связи. |











