Земельный участок для строительства дома в деревне Заполье
Внимание! Данный объект снят с продажи!
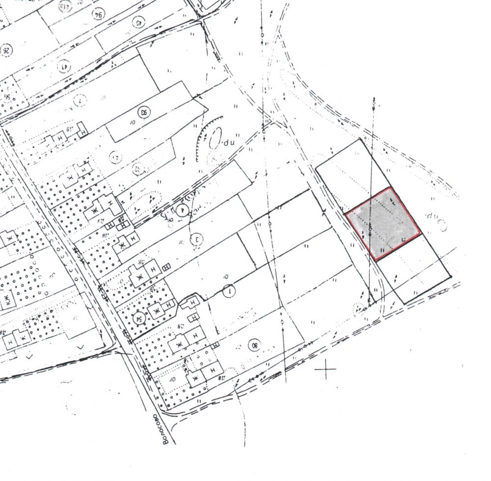
Земельный участок площадью 20 соток для строительства дома в деревне Заполье.
Расположение:
Ленинградская область, Волосовский район, деревня Заполье.
В 98 км от Санкт-Петербурга по Таллиннскому шоссе.
В 7 км от Волосово.
Категория земель: земли населённых пунктов.
Разрешённое использование: для личного подсобного хозяйства (ЛПХ).
Особенности:
- Участок находится в зоне новых нарезок посёлка.
- Участок без построек.
- Ровный. Сухой.
- Размеры 40 м х 50 м. Короткой стороной выходит на подъездную дорогу.
- Электростолбы поселковой ЛЭП - в 100 метрах отучастка от существующих домов.
- Получено разрещение на строительство.
- Газификация деревни - в перспективе.
- Полный пакет документов (кадастровый паспорт, свидетельство на право собственности).
Полезная информация:
Заполье - деревня в Волосовском районе . Входит в состав Изварского сельского поселения.
Численность населения - 112 человек.
В деревне 55 домов, а также от Заполья отходят ещё две деревни, которые относятся к Заполью, с собственными названиями Озертецы и Слаботка.
В деревне имеется один магазин.
Достопримечательности:
К достопримечательностям Заполья относится разрушенная церковь в честь Святого Петра и Павла. В трёх километрах от Заполья есть музей имени Рериха.
КОНТАКТНАЯ ИНФОРМАЦИЯ:
Моб. тел. : 8-921-980-99-89 - СЕРГЕЙ
Стоимость600 тыс. руб пересчитать в: долл евро |
Внимание! Здесь указана ориентировочная цена и параметры объекта. Пожалуйста, уточняйте информацию по телефону, e-mail или через форму обратной связи. |
Расстояние до Санкт-Петербурга
63 км. (указано расстояние до КАД Санкт-Петербурга по прямой).
