Два земельных участка промназначения на Волхонском шоссе на Юго-Западе Санкт - Петербурга у посёлка Горелово
Внимание! Данный объект снят с продажи!
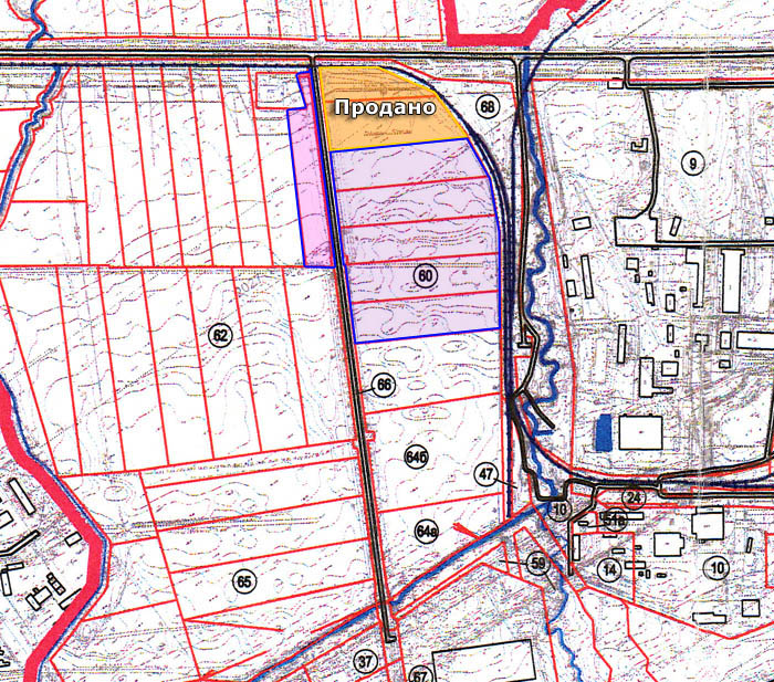
Земельные участки площадью 10 га и 1.5 га с возможностью продажи по частям от 0,5 га на Волхонском шоссе у посёлка Горелово.
Расположение
Санкт-Петербург, Юго-Запад ,посёлок Горелово, Волхонское шоссе.
В 1.5 км от развязки КАД и Таллинского шоссе.
В 3 км от городской черты по Таллиннскому шоссе.
В 12 км от Киевского шоссе по Волхонскому шоссе.
В 15 км от аэропорта Пулково.
В 15 км от Большого Морского порта Санкт-Петербурга.
Правовая характеристика
Категория земель: земли промышленного назначения.
Вид права: собственность юридического лица.
Особенности
- По границе земельных участков проходит ж/д ветка (на балансе ПК «Энергия»).
- Коммуникации:
все коммуникации проходят по границе участков:
магистраль водоснабжения и водонасосная станция находятся на границе участков
магистраль канализации проходит по границе участков
магистраль газопровода среднего давления - в 350 метрах
газовая котельная и магистраль теплоснабжения - в 850 метрах от объекта
- Заключен и оплачен договор на 1,55 МВт с ПК «Энергия». Стоимость 1 КВт - 35 тыс. руб. (в стоимость земельного участка не входит).
- Возможное использование :
Проект планировки территории производственной зоны «Горелово» предусматривает функциональное использование данных земельных участков для размещения:
предприятий 4-5 классов санитарной опасности
складских логистических комплексов
объектов автосервиса
Стоимость
СТОИМОСТЬ: из расчёта $ 70 /м2 + комиссионные.
Стоимость участка площадью 50 соток - $ 0.35 млн.
Стоимость участка площадью 1 га - $ 0.7 млн.
Стоимость участка площадью 1.5 га - $ 1,05 млн.
Стоимость участка площадью 10 га - $ 70 млн.
Стоимость1.05 млн. долл пересчитать в: руб евро |
Внимание! Здесь указана ориентировочная цена и параметры объекта. Пожалуйста, уточняйте информацию по телефону, e-mail или через форму обратной связи. |



