Земельный участок для строительства коттеджа -дуплекса (дома на 2 семьи) по конкретным проектам в городе Всеволожск
Внимание! Данный объект снят с продажи!
фото
Земельный участок общей площадью 12 соток (6 сот+6 сот) для строительства коттеджа -дуплекса (дома на 2 семьи) по конкретно проработанным проектам в г. Всеволожск.
Расположение:
Ленинградская область, Всеволожский район, г. Всеволожск, 3-я линия.,д. 48.
В 22 км от Петербурга.
Категория земель: земли населённых пунктов.
Разрешённое использование: для индивидуального жилищного строительства (ИЖС).
Особенности:
- Участок общей площадью 12 соток для строительства коттеджа -дуплекса.
- Ровный, сухой, прямоугольной формы.
- Вдоль участка - городская ЛЭП и магистраль городского водопровода.
- Возможность решения вопроса по подводу газа.
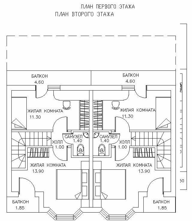
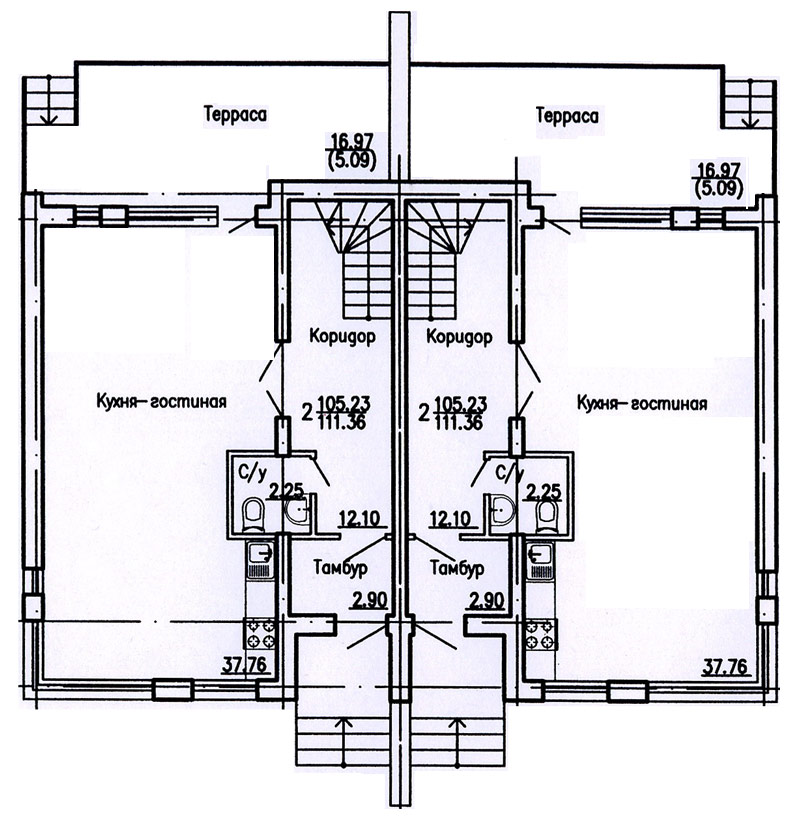
- Каждая из секций коттеджа-дуплекса (80 м2) будет располагаться на участке площадью 6 соток
- Новый теплый дуплекс - дом на 2 семьи .
- Коммуникации: газ, электричество, вода, локальная канализация:
электричество от 5 до 10 кВт,
канализация: локальная,
водообеспечение: при наличии магистральных водопроводов - с врезкой, при отсутствии - строительство скважины.
- Строительство - в течение 3 месяцев с момента подписания договора о покупке земельного участка и заключения договора на строительство.
- Хорошее транспортное сообщение. Рядом ж/д станция (15 минут пешком) . Развитая инфраструктура посёлка.
Стоимость 1 секции дома ( 80м2) с половиной участка (6 соток) - 3,360 млн. руб.
При изменении по желанию заказчика внутренней планировки коттеджа стоимость повышается.
Каркасный быстровозводимый дом обладает целым рядом преимуществ. Стены дома имеют слоистую структуру типа "эндвич". Основой является деревянный каркас из строганных, калиброванных пиломатериалов определенной влажности. Для увеличения пролетов помещений могут быть использованы клееные балки. Каркас обшивается ориентировано-стружечными плитами (OSB) ,которые обеспечивают защиту от влаги и ветра.
Внутрь каркаса закладывается утеплитель, в качестве которого используется высококачественная минеральная вата. 150-миллиметровый слой теплоизоляции (при норме 125 мм) равносилен по теплоизоляционным свойствам двухметровой кирпичной кладке, и полностью обеспечивает комфортное круглогодичное проживание.
Для того чтобы дом «дышал», в конструкции каркаса используется пароизоляционная пленка, предотвращающая увлажнение утеплителя и деревянного каркаса испарениями изнутри дома.
С внешней стороны производится отделка. В зависимости от пожелания заказчика для нее могут быть использованы любые современные отделочные материалы (сайдиг, отделочный кирпич,облицовочная плитка - клинкер,фасадная штукатурка).
В последнее время большую популярность приобретает отделка вагонкой или «Block-House», имитирующая брусовой или бревенчатый дом.
Внутренняя отделка так же, как и наружная, зависит от пожеланий заказчика. Как правило, внутренние перегородки сконструированы по аналогии с внешними стенами, содержат минераловатный утеплитель 100 мм для достижения шумоизоляции и обшиты гипсокартоном, что дает идеальные поверхности для высококлассной отделки помещений.
Таким образом, описанная выше конструкция стен каркасного дома обеспечивает сохранность деревянного каркаса и утеплителя в рабочем состоянии на весь срок его эксплуатации. Строительство дома происходит быстро и качественно.
Если Вы хотите построить быстровозводимый дом, то каркасные дома идеальный вариант. Построить дом по каркасной технологии можно в любое время года, так как каркасные дома наиболее устойчивы к сезонным подвижкам фундамента.
Предлагаемые дуплексы идут в следующей комплектации
Комплектация "Оптима":
1. Фундамент - свайно-винтовой
2. Дом и его установка
3. Окна металлопластиковые двухкамерные
4. Электрическая проводка (внутридомовая).
5. Разводка коммуникаций (к точкам), канализация, тепло- и водоснабжение.
6. Дверь входная металлическая.
7. Кровля мягкая.
8. Обшивка стен гипроком .
9. Межкомнатные двери и перегородки.
10. Покрытие пола (ламинат, 1 этаж) ,работа.
11.Плитка кафельная (сан.узлы), работа.
12.Лестница.
13. Отделка фасада .
14. Изготовление необходимой проектной документации.
СТОИМОСТЬ 1 СЕКЦИИ ДУПЛЕКСА - 3,36 млн.
СТОИМОСТЬ 2-х СЕКЦИй ДУПЛЕКСА - 6,72 млн. руб.
ПРИМЕЧАНИЕ:
Компания застройщик соместно с ОАО АКБ «Связь-Банк» оказывают услуги кредитования на строящееся жилье под залог имеющейся недвижимости (квартир).
Воспользовавшись данным предложением, Вы сможете:
- Проживать в своей квартире и следить за строительством (3-4 месяца) своего дома.
- При переезде в новый дом, продать квартиру на своих условиях, и погасить кредит.
- Оставить квартиру в своей собственности, переоформив залог на вновь построенное жилье (дом, дуплекс, таунхаус).
Стоимость3.36 млн. руб пересчитать в: долл евро |
Внимание! Здесь указана ориентировочная цена и параметры объекта. Пожалуйста, уточняйте информацию по телефону, e-mail или через форму обратной связи. |
Фотографии
Расстояние до Санкт-Петербурга
9 км. (указано расстояние до КАД Санкт-Петербурга по прямой).










