Земельные участки в СНТ "Энергетик" вблизи посёлка Бурнево
Внимание! Данный объект снят с продажи!
фото
Земельные участки площадью по 12 соток каждый в садоводческом некоммерческом товариществе (СНТ) "Энергетик" вблизи посёлка Бурнево.
Расположение:
Ленинградская область, Приозерский район, вблизи посёлка Бурнево, массив Гранитное 148 км, СНТ "Энергетик".
В 145 км от Санкт-Петербурга.
В 10 км от Приозерска.
Категория земель: земли сельскохозяйственного назначения.
Разрешённое использование: для ведения садоводства.
Особенности:
- СНТ "Знергетик" небольшое (44 участка) расположено в местности с уникальным карельским ландшафтом: скалы, карельский лес, озёра. В 500 метрах от озера Ладога и несколько небольших озёр - Молодёжное, Большое Боровское, река Вуокса и др.
- Подъезд к садоводству по хорошей дороге.
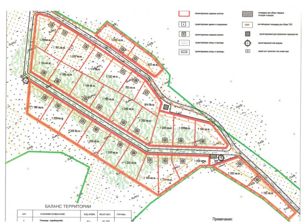
- К продаже предложены участки (расположение см. на Генплане ):
№№ 20,21,27,32,35,38,43,44 и №№ 24,28,39,40.
Точная площадь участков указана в Генплане под их номерами.
- Коммуникации:
1. Электричество: для всего СНТ "Энергетик" получены технические условия (ТУ) на 200 кВт. Расчётная мощность на каждый участок - 5 кВт (в соответствии с согласованным и утверждённым проектом энергообеспечения).
2. Водоснабжение: от водонапорной башни (30 метров). Проект согласован и утверждён.
3. Есть разрешение на строительство.
3. Канализование: локальная канализация.
- Участки №№20,21,27,32,35,38,43,44 расположены вдоль скалы.На участках сохранены сосны.
- Предложенные к продаже участки имеют свои кадастровые паспорта. В собственности.
СТОИМОСТЬ КАЖДОГО УЧАСТКА - 850 тыс. руб.
Стоимость850 тыс. руб пересчитать в: долл евро |
Внимание! Здесь указана ориентировочная цена и параметры объекта. Пожалуйста, уточняйте информацию по телефону, e-mail или через форму обратной связи. |
Фотографии
Расстояние до Санкт-Петербурга
113 км. (указано расстояние до КАД Санкт-Петербурга по прямой).






