Участки для сельхозпроизводства вдоль трассы М18 у посёлка Карпово
Внимание! Данный объект снят с продажи!
Земельный участок общей площадью 67 га вблизи поселка Карпово в Кировском районе.
Расположение
Ленинградская область, Кировский район, Шумское сельское поселение, вблизи поселка Карпово.
В 80 км от Санкт-Петербурга по Мурманской трассе (М18 "Кола").
Правовая характеристика
Категория земель: земли сельскохозяйственного назначения.
Разрешённое использование: для сельскохозяйственного производства.
Вид права: собственность физического лица.
Особенности
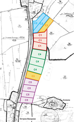
- Общая площадь земельного массива 67 га.Массив состоит из нескольких участков площадью от 3,9 до 5 га.
- Участки расположены вдоль асфальтированной дороги.
- Все участки выходят своей границей к трассе «КОЛА».
- В 20 км (по дороге) от массива - Ладожское озеро.
- По границе с участками проходит электричество. Поселковая ЛЭП.
- Возможна продажи по частям. Свои кадастры.
- Ведётся работа по изменению разрешенного использования под ДНП.
- Возможность включения территории массива в границы деревни Карпово.
Площади участков (см. схему участков)
1 блок (3,93 га+0,52 га+4,99 5га+4,25га+4,995 га+4,995 га) - 23,7 га
2 блок (4.95 га+3,96 га) -8,96 га
3 блок (3,82 га+3,91 га)- 7,73 га
4 блок (4,88 га+3,70 га+3,70 га) -12,29 га
5 блок (5,06 га+4,995 га) - 10,06 га
6 блок (4,253 га) - 4,253 га
Предоставление дополнительной информации по объекту и организация осмотра и переговоров - по официальной заявке.
Стоимость
Стоимость: из расчёта: 7 000 руб./сотка. (700 тыс.руб./га)
Стоимость всего массива площадью 67 га - 46.9 млн. руб.
Стоимость46.9 млн. руб пересчитать в: долл евро |
Внимание! Здесь указана ориентировочная цена и параметры объекта. Пожалуйста, уточняйте информацию по телефону, e-mail или через форму обратной связи. |
Фотографии
Расстояние до Санкт-Петербурга
75 км. (указано расстояние до КАД Санкт-Петербурга по прямой).










