Инвестиционное предложение по малоэтажному жилому комплексу "Горки 2009" в деревне Бор
Внимание! Данный объект снят с продажи!
фото
Инвестиционное предложение по малоэтажному жилому комплексу "Горки 2009" в деревне Бор во Всеволожском районе.
Расположение будущего оьъекта:
Ленинградская обасть, Всеволожский район, Колтушское МО, деревня Бор, берёзовая аллея.
В 15 км от Санкт-Петербурга.
Удобное транспортное сообщение с Санкт-Петербургом .
От КАД - 10-15 мин , от ближайшей станции метро Ладожская 15-20 мин общественным транспортом , до центра города 30 мин .
Особенности:
- Развивающаяся инфраструктура района (строительство сетевых торговых центров , объектов социальной сферы). Однородная среда обитания , в окружении коттеджные и поселки из таунхаусов : пос. Кюмлево , пос. Лукоморье , пос. Токари-Лэнд , пос. Раздолье , пос. Зеленые каскады , пос. Малая Швейцария , пос. Английские предместья .
- Вблизи участка находятся (10 мин. езды от участка ) благоустроенная зона отдыха - Коркинские озера , туристическая база .
- Параметры застройки :
1. Площадь участка - 1,3 га . Площадь застройки - 0, 5 га .
2. Планируемая площадь таунхаусов 10389,4 м2 (50 квартир (таунхаусы) и административное здание , благоустроенная территория поселка с предусмотренными рекреационными зонами отдыха и гостевыми стоянками для машин .
3. Каждая квартира-таунхаус обустроена встроенным гаражом и одной стоянкой для а/м перед домом , земельным участком -палисадником перед домом в собственность , с прописанным порядком пользования данным участком земли .
4. Оставшаяся часть общего земельного участка передается в общую долевую собственность владельцев квартир поселка .
- Описание посёлка бизнес-класса "Горки 2009".
1. Стильный поселок бизнес-класса «ГОРКИ 2009» расположен в зеленой зоне вблизи Коркинских озер рядом с поселком Колтуши.
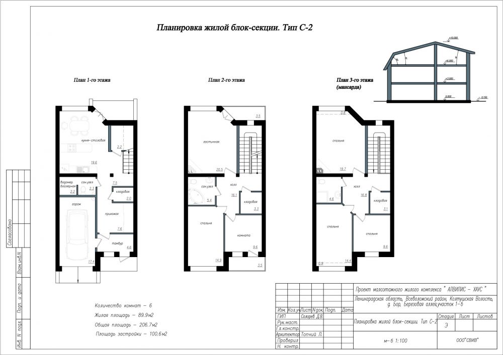
2. В жилой комплекс входит 50 сблокированных домов четырех различных планировок, площадью от 174 до 289 м2.
3. Каждый дом имеет обособленную территорию для отдыха и оборудован встроенным гаражом.
4. Оптимальная площадь домов, удобное местонахождение, качество строительства и используемых материалов, правильное пространственное размещение на территории по отношению друг к другу делает настоящее предложение, по совокупности ликвидных признаков, уникальным на рынке таунхаусов Петербурга.
5. Помещение квартир имеют следующее оборудование:
Стены, полы, потолки выполнены под чистовую отделку. (пол - чистовая цементная стяжка, стены и потолки оштукатурены и грунтованы).
Заполнение оконных проемов выполнено с применением металлопластиковых конструкций с двухкамерным стеклопакетом с использованием современного высококачественного профиля.
Заполнением въездного проема гаража выполнено с применением утепленных подъемно-секционных ворот.
Входные двери в квартиру металлические.
Квартира оборудована системой газоснабжения с установкой счетчика и выводами под подключение кухонного оборудования для приготовления пищи и отопительного котла.
Система ГВС и отопления выполнена с применением армированного полипропилена, алюминиевых радиаторов конвекционного типа и отопительного газового котла «Wolf».
Система холодного водоснабжения и канализации выполнена с применением армированного полипропилена с разводкой до сантехнических приборов с установкой счетчиков.
Электроснабжение выполнено с применение медной электропроводки в двойной трудно сгораемой изоляции с установкой двух тарифного счетчика и разводкой до потребителей с установкой арматуры.
В квартирах установлены блоки коммутации с целью возможности подключения, по желанию заказчика, внутренних систем охранного видео-наблюдения и охранной сигнализации с последующей передачи тревожного сигнала на централизованный пост охраны комплекса.
6. Особую привлекательность комплексу придает сформированное замкнутое благоустроенное внутри дворовое пространство, на территории которого разбиты газоны с элементами ландшафтного дизайна.
7. Подъездные пути к каждому коттеджу заасфальтированы, а пешеходные дорожки вымощены тротуарным камнем.
8. Благоустройство:
Территории придомовых участков и зон общего пользования комплексно благоустраиваются, предусматривается устройство, подпорных стенок, элементов наружного освещения и т. п., вдоль внутриквартальных проездов устраивается декоративное ограждение.
Въезды и площадки для хранения автотранспорта имеют плиточное покрытие. Дорожки и площадки, расположенные на участках, имеют набивное щебеночное покрытие. Детские и другие площадки огораживаются декоративным ограждением.
На участке предусмотрена выборочная вертикальная планировка.
Поверхностный водоотвод закрытого типа решен за счет уклонов в проектируемые ливневые колодцы, расположенных на проезжей части основных проездов.
9. Обеспечение жилого поселка службой охраны .
10. Расположение поселка максимально удобно. Рядом расположен поселок Колтуши с развитой инфраструктурой для отдыха и развлечений, Коркинские озера с оборудованными пляжами и снаряжением для водных видов спорта. Хорошая транспортная связь, как с центром города, так и другими районами. Время пути до КАД составит не более 15 минут, а до центра города 20-30 минут.
11. Неоспоримое преимущество этой экологически чистой территории -однородная социальная среда, в окружение расположено ряд коттеджных поселков бизнес класса
- Инженерные коммуникации проектирумого комплекса:
1. Локальное обеспечение водой - артезианская скважина , с перспективой перехода на централизованное водоснабжение в ближайшей перспективе развития района к 2010 году.
Водопотребление осуществляется от артезианской скважины с последующей водоочисткой и централизованным водоразборным распределением по зданиям комплекса.
2. Водоотведения ливневых и хозяйственно-бытовых стоков осуществляется по централизованной канализационной сети с последующим выбросом в напорный канализационный коллектор коммунальных муниципальных служб.
Локальные очистные сооружения .
3.Отопление и приготовление пищи - от газопровода .
4. Электроснабжение централизованное. Проектом предусмотрено устройство наружного и освещения.
Подключения к центральным электрическим сетям , исходя из обеспечения по 10 кВт на каждую квартиру.
5. Территория комплекса, охраняемая с устройством поста физической охраны, оборудованная техническими средствами охранной сигнализации и охранного видеонаблюдения .
6. Здания комплекса оборудованы сетями телевидения, радиофикации, телефонии, выделенной линей «INTERNET» и сетями диспетчеризации.
7. Основные проезды выполнены с применением асфальтобетонного покрытия, подходы и подъезды к домам выполнены мощением. Участки зон отдыха выполнены с набивным покрытием гранитной крошкой.
- Размещение участка строительства
1. Проектируемый коттеджный поселок расположен по адресу: Ленинградская область, Всеволожской район, Колтушская Волость, д. Бор, Березовая аллея, участок 1-б.
2. Участок проектирования с севера ограничен границами участков с частной жилой застройкой, с юга - орогой общего пользования с асфальтовым покрытием, с запада-дорогой общего пользования с асфальтовым покрытием, с востока - местным грунтовым проездом, и участками котеджной застройки. Р
3. Рельеф участка сложный с повышением высотных отметок в северо-восточную сторону. Средний перепад высотных отметок составляет 8 метров.
4. Климатический район строительства - IIB.
5. Зона влажности 1 - влажная.
-
Основные технико-экономические показатели:
1 . Площадь участка в границах проектирования - 13 000м2
2. Площадь озеленения (в т.ч. площадки) - 4 243,02м2
3. Площадь дорог, тротуаров - 3 662,74м2
4. Общая площадь квартир - 10 389,4м2. Жилая площадь квартир - 4 804,8м2
5. Количество жилых блок-секций - 50шт. ( в т.ч. секций С-1 - 6шт. ,в т.ч. секций С-2 - 30шт., в т.ч. секций С-3 - 12шт., в т.ч. секций С-5 - 2шт.).
-
Документальная подготовка инвестиционного проекта
1. Правоустанавливающий договор на земельный участок - инвестиционное соглашение между владельцем земли (физ.лицо ) и инвестиционной компанией
2. Заключен договор на проектирование
3. Получены ТУ на газ, электричество , подключение к центральным сетям канализации , МГО и ЧС.
4. Утвержден генеральный план земельного участка .
5. Проведены общественные слушания по участку .
6. Утвержден градостроительный план участка.
7. Получено положительное заключение СЭС на ПИР.
8. Получено Постановление Администрации Муниципального образования на ПИР (разрешение на строительство).
9. Выполнен договор на поисковую скважину , заключен договор на рабочую скважину , запущен пакет на лицензирование по скважине.
10. Выпущена рабочая проектная документация раздела КЖ И АР проекта.
11. Выпущен и согласован рабочий проект на газоснабжение объекта , утверждены лимиты по газоснабжению.
12. Выполнен первый этап 0 цикла строительных работ (вертикальная планировка , разбивка фундаментов (линиями).
13. Заключены договора с подрядчиками на общестроительные и специализированные работы по объекту.
- Проектом заложены характеристики поселка не ниже уровня бизнес-класс , на сегодняшний момент цена продажи за 1 кв.м жилья таунхауса составляет от 65000 руб. до 170000 руб. в зависимости от степени готовности объекта и технических характеристик проекта в строящихся или сдаваемых поселках нашего района.
- Инвестиционный бюджет проекта составляет не более 426 млн. руб.
- Средняя плановая цена продажи на стадии завершения строительства (I кв. 2011 года ) не менее 75000 руб. за 1 м2 жилья.
- Срок окупаемости при существующих рыночных рисках не более 3 лет при условии сформированного полного объема инвестиционного денежного потока
Стоимость426 млн. руб пересчитать в: долл евро |
Внимание! Здесь указана ориентировочная цена и параметры объекта. Пожалуйста, уточняйте информацию по телефону, e-mail или через форму обратной связи. |
Расстояние до Санкт-Петербурга
8 км. (указано расстояние до КАД Санкт-Петербурга по прямой).







