Участок с производственными зданиями в Тихвине
Внимание! Данный объект снят с продажи!
фото
документы
Земельный участок площадью 6,7 га с производственным зданием и строениями (бывший лесоперерабатывающий завод) в Тихвине.
Расположение
Ленинградская область, Тихвинский район, г. Тихвин.
В Тихвине продается отдельная промышленная площадка (бывший завод - лесоперерабатывающий).
В 200 км от Санкт-Петербурга.
Правовая характеристика
Категория земель: земли населённых пунктов.
Разрешённое использование: деревоперерабатывающий завод.
Возможность использования под любое промышленное производство соответствующего класса опасности.
Вид права: собственность юридического лица.
Особенности
- Площадь занимаемого участка - 67000 м2 .
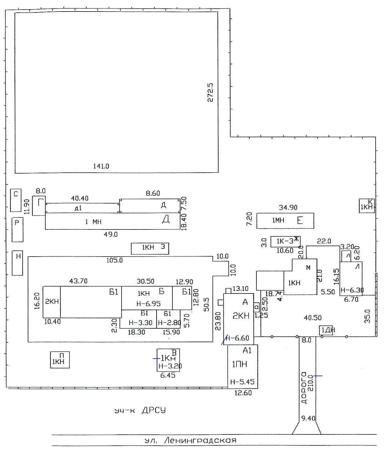
- На участке расположены:
1. Асфальтированная площадка (более 40000 м2).
2. Двухэтажное административное здание (с примыкающей к нему котельной).
3. Производственное здание (с бетонированной площадкой по периметру). Оборудование демонтировано.
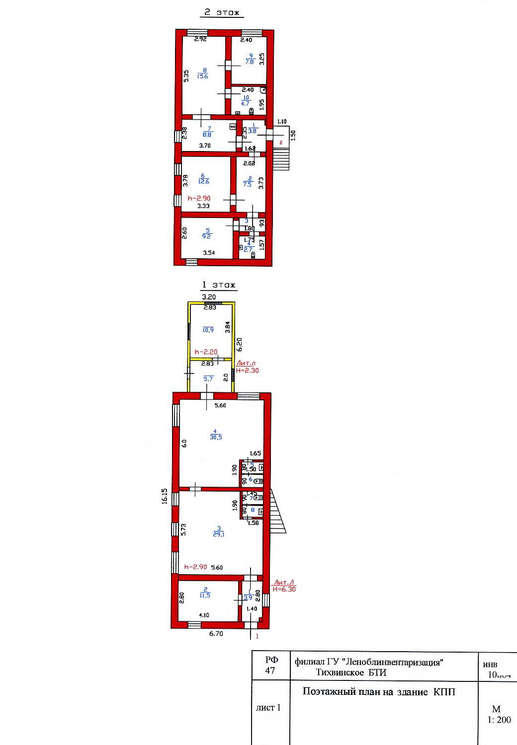
4. Контрольно-пропускной пункт и ряд других сооружений.
- Въезд осуществляется по асфальтированной дороге.
- Коммуникации:
1. Электричество : наличие собственной высоковольтной линии напряжением 10 000 В.
Линия подключена к Тихвинскому отделению по сбыту электроэнергии ОАО «Ленэнерго» и имеет протяжённость около 2 км от главного фидера до подстанции, где установлены 2 трансформатора по 630 кВА (разрешённая нагрузка по сетевым условиям энергосистемы 500,0 кВА).
Также имеется вторая подстанция, подключённая к Тихвинской горэлектросети, с трансформатором 250 кВА (в настоящий момент данная подстанция временно отключена).
Наружное освещение территории обеспечивается прожекторами, установленными на опорах по всей площадке.
- Водоснабжение: снабжение холодной водой осуществляется со скважины через водомерный узел, находящийся в котельной.
- Канализация: хозяйственно-бытовая и ливневая.
Предоставление дополнительной информации по объекту, организация осмотра и переговоров - по официальной заявке.
Стоимость
Стоимость объекта - 60 млн. руб.
Стоимость50 млн. руб пересчитать в: долл евро |
Внимание! Здесь указана ориентировочная цена и параметры объекта. Пожалуйста, уточняйте информацию по телефону, e-mail или через форму обратной связи. |
Расстояние до Санкт-Петербурга
169 км. (указано расстояние до КАД Санкт-Петербурга по прямой).





