Участок со зданием под демонтаж с предпроектом строительства ТРК в посёлке Рощино
Внимание! Данный объект снят с продажи!
фото
документы
Земельный участок с нежилым зданием под демонтаж для строительство торгово-развлекательного комплекса в посёлке Рощино.
Расположение
Ленинградская область, Выборгский район, гп Рощино, ул. Филиппова, д. 4
Локация посёлка Рощино
- 67 км от Санкт-Петербурга по автотрассе
- 7 км от побережья Балтийского моря
- 3 км от Зеленогорска
- на ж/д трассе Санкт-Петербург – Хельсинки
- между Приморским шоссе и автодорогой А181 «Скандинавия»
Локация объекта
- в центральной части посёлка
- активный трафик покупателей
- на перекрёстке улиц Филиппова, Советская и Связи
- напротив стадиона «Рощино-Арена»
- в 34 м от границы площадки в северо-западном направлении
- в окружении малоэтажной жилой застройки
Правовая характеристика
1. Земельный участок
Площадь – 7 238 м2
Категория: земли населённых пунктов
Разрешённое использование:
- под существующее здание кинотеатра – по документу
- для размещения объектов, характерных для населенных пунктов – по ПЗЗ
Вид права: собственность юридического лица
Обременения
- охранная зона низковольтной ЛЭП – 128 м2
- охранная зона высоковольтной ЛЭП – 1 901 м2
2. Здание
На участке расположено не эксплуатирующееся нежилое здание, подлежащее демонтажу, – бывший кинотеатр в заброшенном состоянии:
- этажность – 4
- общая площадь – 1 084.7 м2
- год ввода в эксплуатацию по завершении строительства – 1900
- материал стен – кирпичные
Вид права: собственность юридического лица
Особенности
- Удобный свободный подъезд к территории.
- Возможность парковки.
- Подготовлено предпроектное решение 3-этажного коммерческого здания:
- назначение – торгово-развлекательный комплекс
- общая площадь – 6 130.21 м2
- Положительное заключение общественных слушаний в Рощинском ГП (30.03.2020) по вопросу предоставления разрешения на отклонение от предельных параметров разрешённого строительства, реконструкции ОКС, установленных в градостроительных регламентах в отношении ЗУ и ОКС для зоны ТД-1:
- в части параметра «минимальный процент застройки 32%», в отношении ЗУ площадью 7 238 м2, расположенного на землях населённых пунктов, по адресу: г.п. Рощино, ул. Филиппова, д. 4
Сведения из предпроектного решения
Земельный участок расположен в границах территориальных зон ТД-1 и ТИ-1
- ТД-1 – зона делового, общественного и коммерческого назначения
- ТИ-1 – зона объектов инженерной инфраструктуры
Предпроектом предусмотрено строительство 3-этажного торгово-развлекательного комплекса – как основного вида разрешённого строительства в территориальной зоне ТД-1.
Площадка ппроектируемого ТРК ограничена следующими объектами:
- с севера, с северо-востока:
- проезжая часть улицы Связи
- за улицей Связи – территории с функциональным назначением:
- ТЖ 2-1 (зона малоэтажной индивидуальной жилой застройки до 3 этажей)
- ТЖ 2 (зона малоэтажной квартирной жилой застройки)
- с востока:
- проезжей частью переулка Связи
- за проезжей частью переулка Связи – зона малоэтажной индивидуальной жилой застройки до 3 этажей (территория с функциональным назначением ТЖ 2-1)
- с юго-востока, юга, юга-запада:
- земельными участками с жилыми частными домами – зона малоэтажной индивидуальной жилой застройки до 3 этажей (территория с функциональным назначением ТЖ 2-1)
- с запада, северо-запада:
- проезжей частью ул. Филиппова – зона малоэтажной квартирной жилой застройки (территория с функциональным назначением ТЖ 2)
Ближайшая жилая и общественная застройка находится на удалении 10 – 50 м от границ участка.
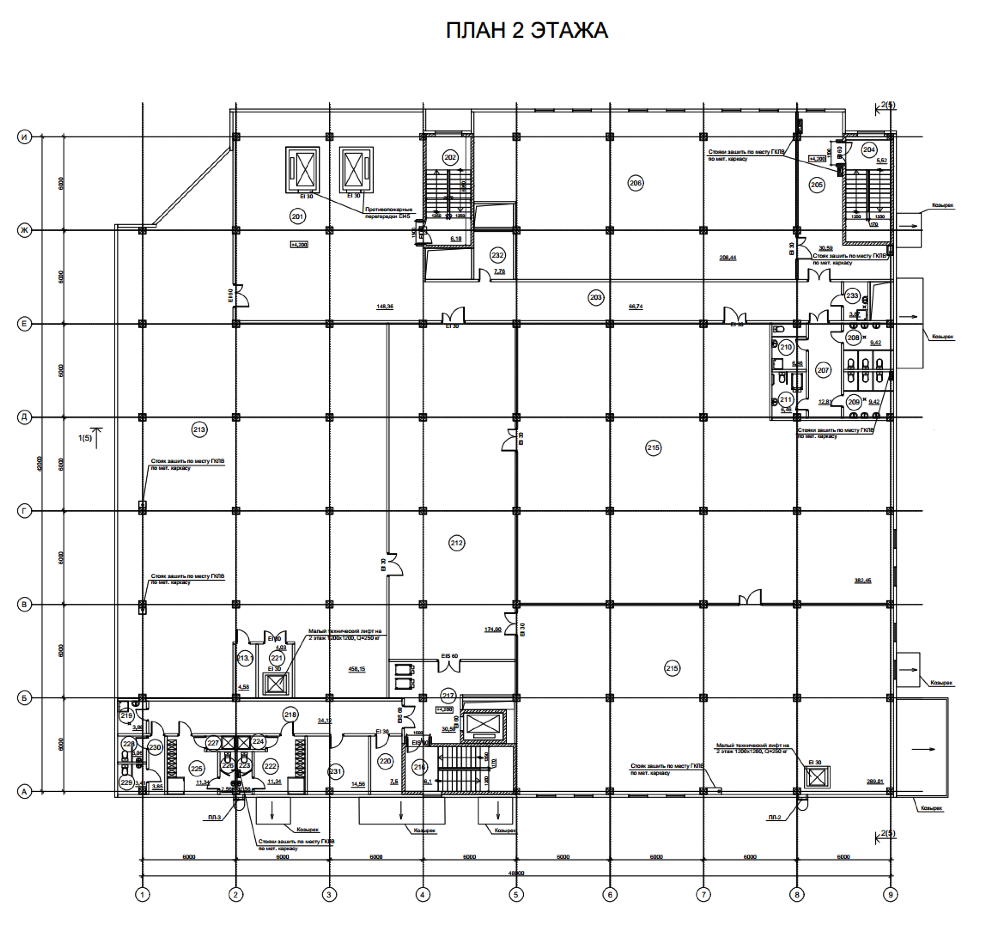
Проектируемое здание ТРК
Общая площадь здания ТРК – 6 130.21 м2
1 этаж
Площадь – 1 892.49 м2
- торговые и арендные площади
- магазин оптовой торговли под заказ с сопутствующими технологическими помещениями
- бытовые помещения для персонала
- входные группы с пассажирскими лифтами
- помещение охраны и пожарный пост
- загрузочные магазинов
- технические помещения:
- ИТП
- электрощитовая
2 этаж
Площадь – 1 983.16 м2
Состав помещений
- торговый зал интернет- магазина одежды и техники
-
- площадь – 174 м2
-
- складские помещения интернет-магазина
-
- площадь – 458.15 м2
-
- административные помещения
- бытовые помещения для персонала
- зона безопасности для МГН
- санузлы
3 этаж
Площадь – 1 947.3 м2
Состав помещений
- фитнес-клуб
- площадь – 1 004.3 м2
- пропускная способность – 32 человека
- кинотеатр
- площадь – 736.5 м2
- пропускная способность – 76 человек
- помещения:
- 4 кинозала на 19 мест каждый
- помещения бара
- санузлы для посетителей
- помещение инженерной службы
- кроссовая
- зона безопасности для МГН
- санузлы
Планирование территории ТРК
На территории комплекса будут расположены следующие здания и сооружения:
- здание ТРК
- 3 стоянки временного хранения автотранспорта
- 50, 23, 7 машиномест
- КТПН (комплексная трансформаторная подстанция наружная)
- по ТУ с Ленэнерго
- площадка для мусоросборочных контейнеров
- внутренние проезды автотранспорта
- погрузо-разгрузочная зона
Доставка товаров в магазины – автомобилем типа «Газель» (дизель).
Разгрузка грузовых автомобилей – на специальной площадке.
Отстой грузового автотранспорта, ожидающего разгрузку – на стоянке (50 машиномест).
Инженерное обеспечение
- Электроснабжение
- от ТП с двумя трансформаторами ТМГ - 21-1000 (мощностью 1000 кВА)
- заключён договор на 150 кВт
- Теплоснабжение
- от городских сетей
- Водоснабжение и водоотведение
- централизованные
- от существующих городских сетей
Предоставление дополнительной информации, организация встречи с собственником объекта – по официальной заявке
Стоимость100 млн. руб пересчитать в: долл евро |
Внимание! Здесь указана ориентировочная цена и параметры объекта. Пожалуйста, уточняйте информацию по телефону, e-mail или через форму обратной связи. |
Расстояние до Санкт-Петербурга
39 км. (указано расстояние до КАД Санкт-Петербурга по прямой).











