Участок с разрешением на строительство гостиницы на Лиговском проспекте
Внимание! Данный объект снят с продажи!
фото
документы
Земельный участок площадью 2560 м2 с разрешением на строительство гостиницы на Лиговском проспекте.
Расположение
Санкт-Петербург, Центральный район, Лиговский проспект, д. 127, лит. А
- 367 м от станции метро «Обводный канал»
- 374 м от станции метро «Лиговский проспект»
Правовая характеристика
1. Земельный участок
Площадь – 2560 м2
Категория: земли населённых пунктов
Разрешённое использование: многоэтажная жилая застройка (высотная застройка)
Вид права: собственность юридического лица
Обременения:
- охранная зона канализационных сетей – 208.0 м2
- охранная зона канализационных сетей – 910.0 м2
- охранная зона водопроводных сетей – 7.0 м2
- охранная зона водопроводных сетей – 115.0 м2
- охранная зона сетей связи и сооружений связи – 1.0 м2
- зона регулирования застройки и хозяйственной деятельности – 2 560.0 м2
2. Здание
На участке расположено историческое здание «Дом Рыжкина»:
- площадь – 373.8 м2
- год постройки – 1883
- современное состояние – руинированное:
- оставлено без кровли и с раскрытым контуром (утрачены часть капитальных стен со стороны двора и кровля)
- разрушены перекрытия
- следы неравномерных просадок
ЗОУИТ
- охранная зона газораспределительной сети
- охранная зона водопроводных сетей
- охранная зона тепловых сетей
- охранная зона сетей связи и сооружений связи
- техническая и охранная зона метрополитена
- территория объекта культурного наследия
Соответствие Генеральному плану и ПЗЗ
- функциональная зона Генерального плана – 3ЖД
- территориальная зона ПЗЗ – Т3ЖД3
Т3ЖД3 – многофункциональная зона среднеэтажных и многоэтажных многоквартирных жилых домов, объектов общественно-деловой застройки, расположенных на территории исторически сложившихся районов Санкт-Петербурга (за исключением исторической застройки пригородов) с включением объектов инженерной инфраструктуры
Объекты культурного наследия
- Дом Э.Л. Петерсона
- Единая зона регулирования застройки и хозяйственной деятельности 2:
- вид охранной зоны – ОЗРЗ-2(31)
Документация
- ГПЗУ от 10.09.2014
- Согласование КГИОП
- Разрешение на строительство
- получено 27.06.2018
- срок действия – до 27.12.2019
- продлено – до 27.07.2022
- Технические условия
- Необходимые согласования
- Кредитная линия от Сбербанка
Особенности
- Выгодная локация участка:
- на одной из главных магистралей Санкт-Петербурга
- на границе с «Золотым треугольником», в который входят все главные достопримечательности Петербурга
- в близости к центру города
- с отличной транспортной доступностью
- На участке сохранилось историческое здание «Дом Рыжкина»
- построено в 1883 году:
- архитектурный стиль здания – «эклектика»
- современное состояние – руинированное
Проектные сведения
1. Генеральный план
Территория проектирования находится на пересечении Лиговского проспекта и Рязанского переулка.
Земельный участок сложной формы. Расположен в границах объединённой зоны регулирования застройки.
Проектом предполагается:
- реставрация «Дома Рыжкина»:
- воссоздание утраченных конструкций без повышения высотности
- приспособление здания под гостиницу
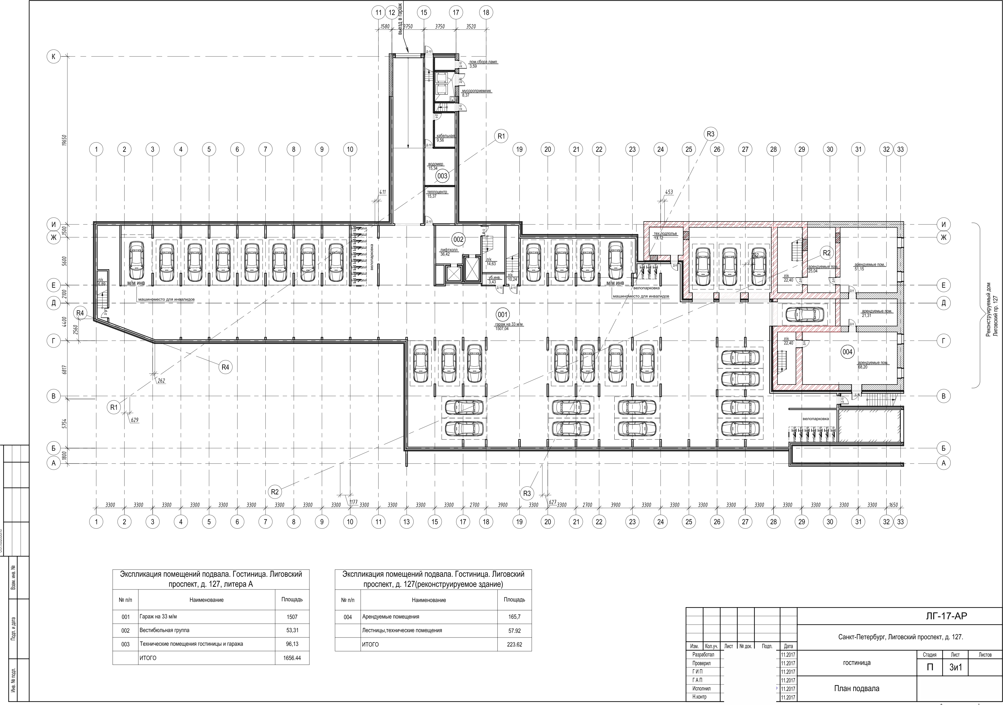
- строительство многоэтажного гостиничного комплекса с подземным паркингом:
- на территории позади исторического здания
- основной 10-этажный объём гостиничного комплекса выходит на Рязанский переулок и просматривается с Лиговского проспекта
2. Градостроительная концепция проекта
- максимальная интеграция зданий в градостроительный ландшафт:
- за счёт формы стен
- за счёт создания гармоничного фасада, не выделяющегося из существующей застройки
- на объёмное построение здания повлияли:
- необходимость обеспечения инсоляции проектируемого здания
- сохранение существующей инсоляции в помещениях окружающей существующей застройки
3. Архитектурные решения
Участок вытянут вглубь квартала. Он застраивается в соответствии с заданием и условием соблюдения санитарных норм.
Пространство за «Домом Рыжкина», выходящее в Рязанский переулок, заполняется тремя «ящиками», словно нарочито поставленными «как попало» друг на друга.
Проект гостиницы – шанс для создания современного и экспрессивного здания-скульптуры и формирования интересных дворовых пространств, вместе с существующими историческими зданиями.
Острые углы, «спускающийся» к Лиговскому двухэтажный ступенчатый цоколь и кортен-сталь для фасадов – образец современной архитектуры.
Гостиница спроектирована внутри «Дома Рыжкина» и нового здания. Она представляет собой сложное разновысотное здание. Высота в наивысшей точке – 31.6 м.
В составе здания:
- гостиничный комплекс со вспомогательными помещениями, встроенными в нижние этажи
- подземная автостоянка
Объёмы лестничных клеток вписаны в композицию здания, придавая своеобразие всему объёму.
Гостиничный комплекс
- вытянут вглубь исторического квартала
- выходит на красные линии со стороны Лиговского проспекта
- небольшим фронтом обращён в сторону Рязанского переулка
- 2 входа в комплекс:
- с Рязанского переулка и Лиговского проспекта
Архитектурно-художественное оформление лицевого фасада «Дома Рыжкина»
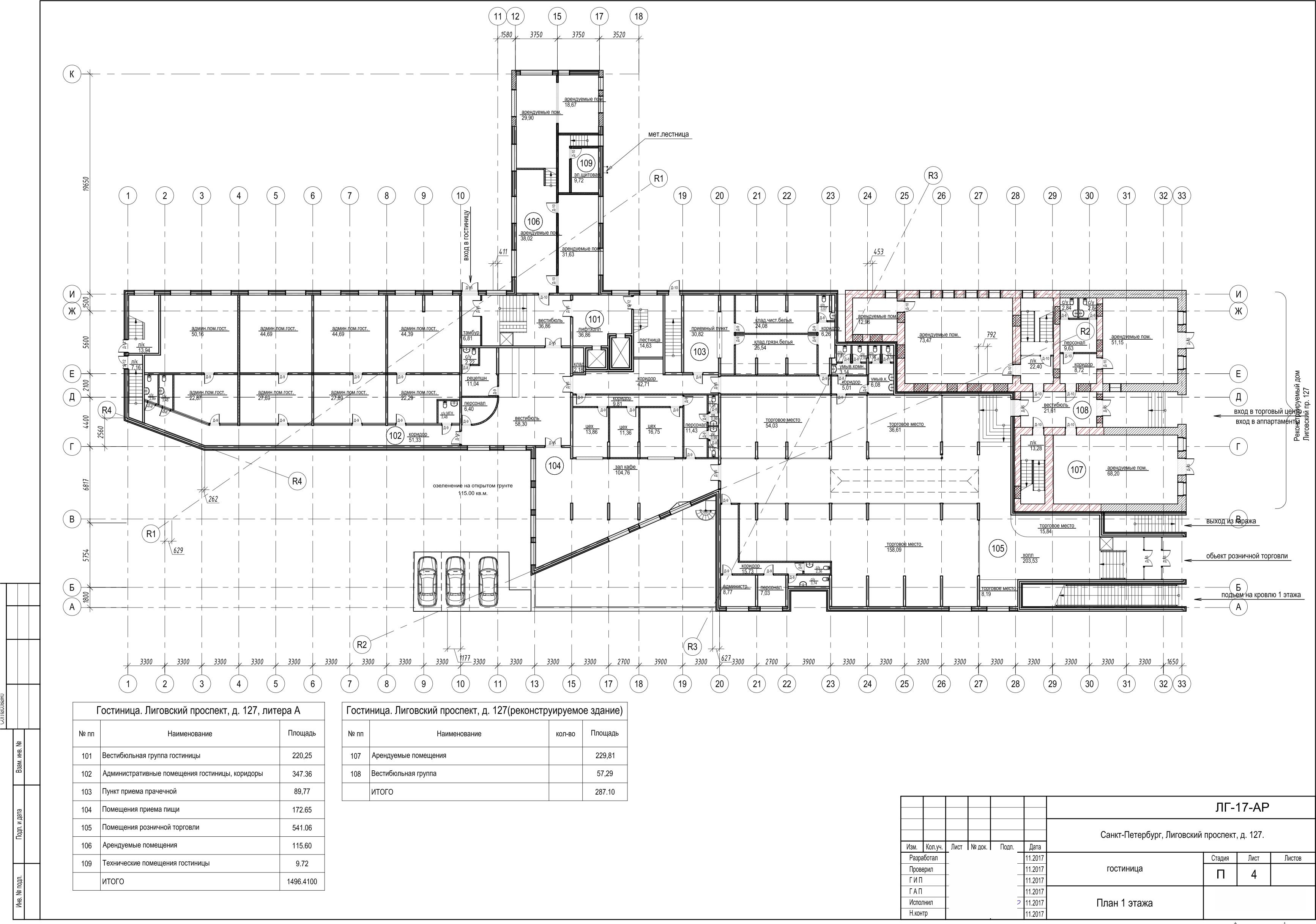
Проектом предусматривается сохранение и реконструкция объёма трёхэтажного дома (Лиговский проспект, дом 127), выходящего на красную линию Лиговского проспекта:
- северный фасад из светлого клинкерного кирпича сочетается с недавно построенным жилым комплексом на Рязанском переулке
- сохраняется архитектурная среда, сложившаяся к настоящему времени
Проектом предусматривается:
- сохранение существующих исторических зданий по адресам:
- Лиговский пр., дом 125
- Лиговский пр., дом 127 («Особняк Рыжкина»)
- устройство помещений гостиницы
В отношении «Дома Рыжкина» проектом предусматривается:
- усиление существующих стен металлическими конструкциями
- усиление фундаментов
- устройство внутренних стен в соответствии с историческими чертежами
- сохранение:
- исторических габаритов здания
- существующих оконных и дверных проёмов
Фасады здания гостиницы
Фасады выполнены:
- из кортеновской стали (cor-ten):
- кортен – наиболее подходящий материал, подчеркивающий форму здания
- кортен придаёт звучание острым граням гостиницы и её окружению
- из терракотовых панелей:
- в цветовом облике здания ржавая металлическая текстура придаёт ему особый шарм и глубину, подчёркивая резкие архитектурные объёмы, поставленные друг на друга
- из структурных витражных систем
Стилобат
Полузаглублённый этаж автостоянки, общепит и зона обслуживания гостиницы 1 этажа собраны в основательный стилобат.
Стилобат двухэтажный:
- парадной лестницей он выходит на Лиговский проспект
- в середине участка динамично вырастает в башню, к которой и крепятся грани воображаемого кристалла:
Острые углы – результат построения лучей инсоляции для соседних домов: лучи срезают части фасада со всех сторон, оставляя остроугольный кристалл, нанизанный на центральную башню.
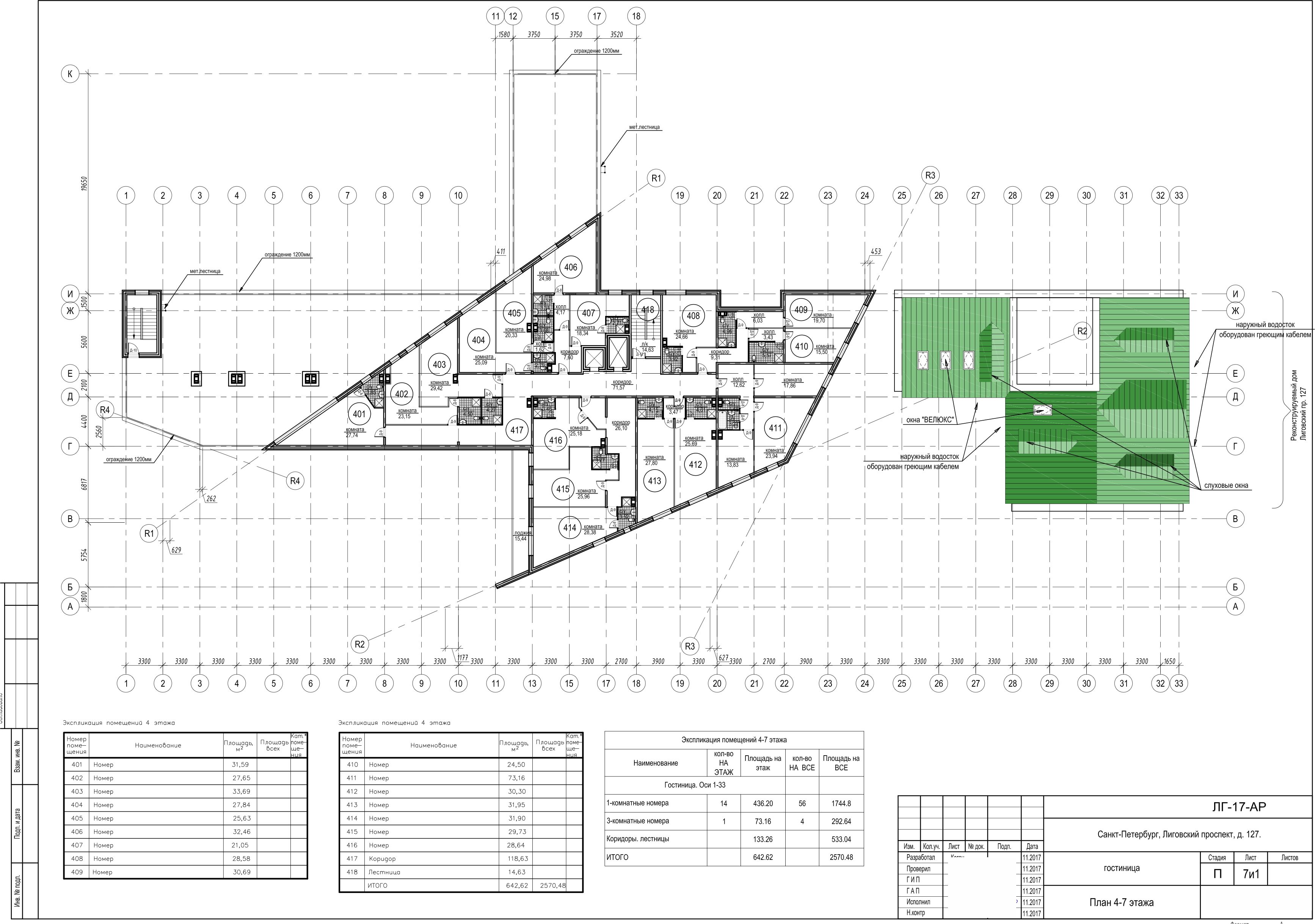
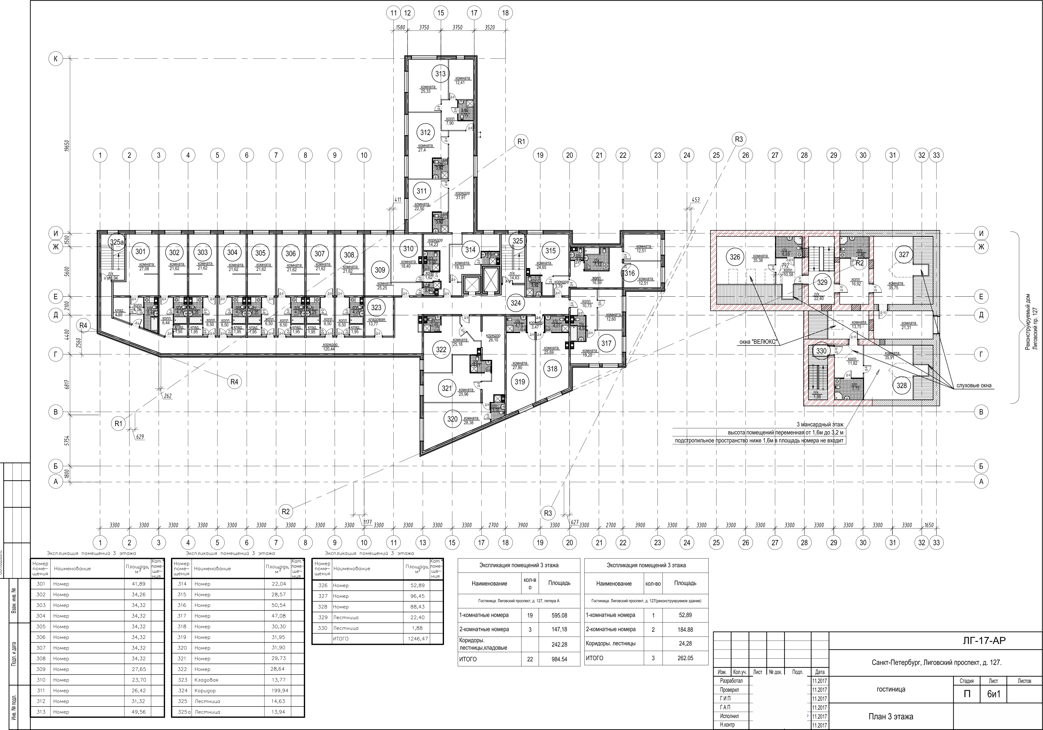
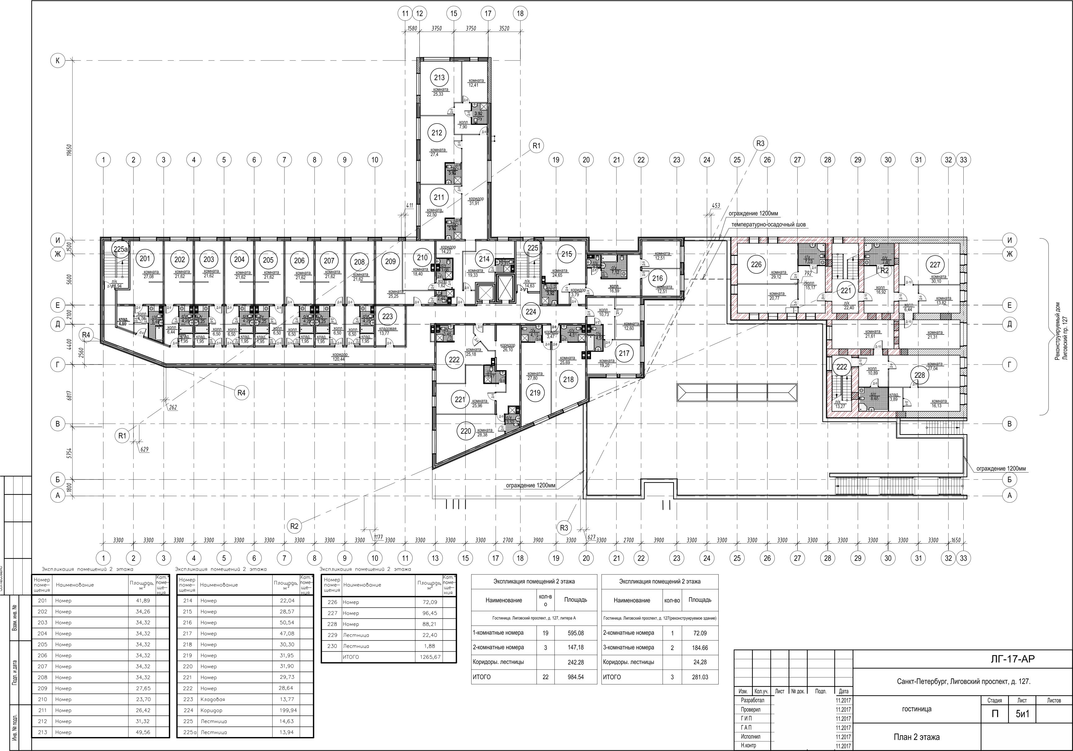
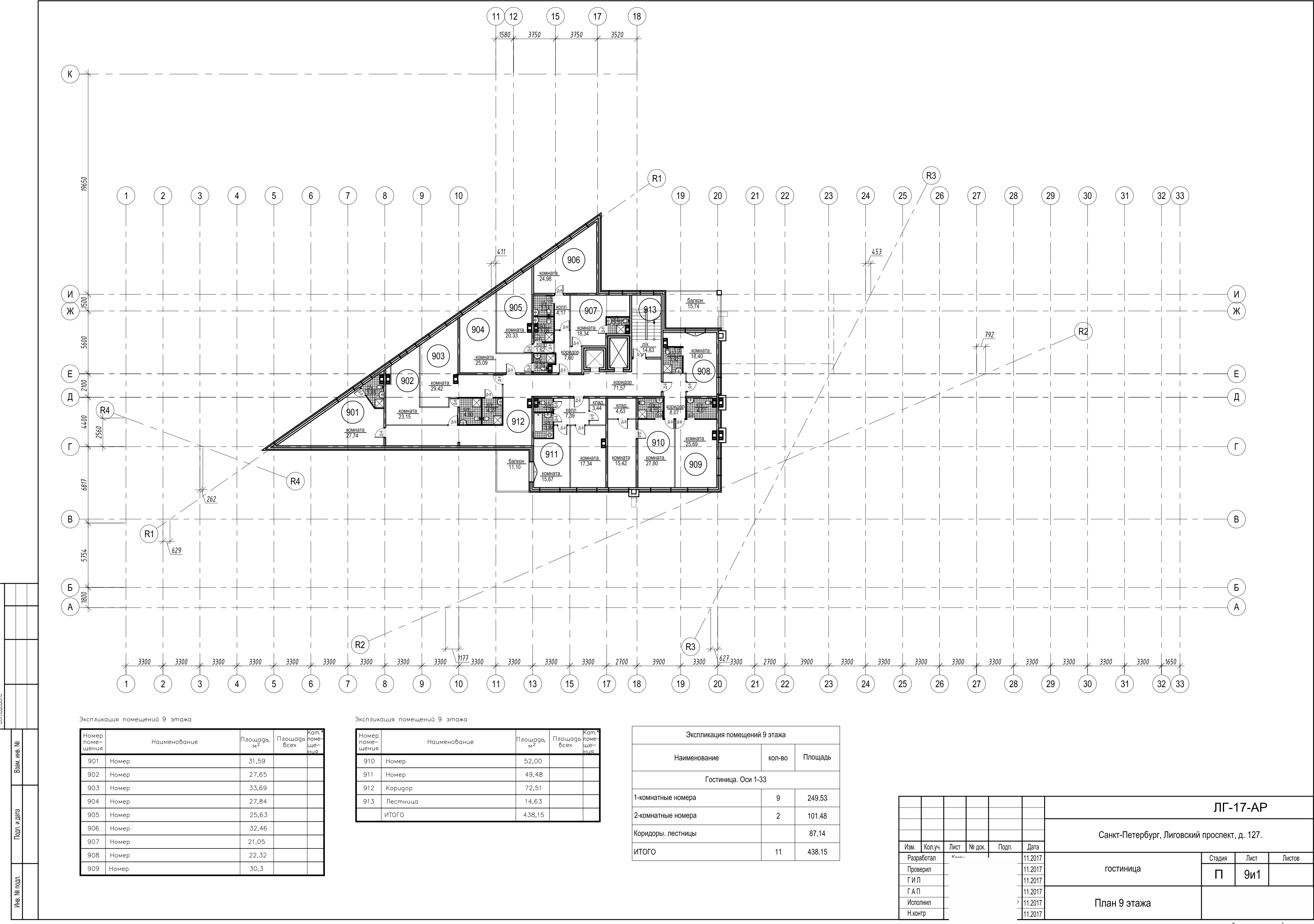
ТЭП проекта
- площадь участка – 2 560 м2
- площадь застройки – 2 325.0 м2
- общая площадь здания – 11 189.7 м2
- объём здания – 39 369.0 м3
- в том числе подземной части – 7 154.0 м3
- количество этажей – 2, 4, 8, 11
- количество подземных этажей – 1
- высота – 33 м
- встроенно-пристроенная подземная автостоянка:
- площадь – 1 507.0 м2
- количество м/м – 33
- апартаменты:
- общая площадь – 5 015 м2
- количество номеров – 145
- встроенные помещения:
- площадь – 2 561.8 м2
- площадь помещений общественного назначения – 1 570 м2
- материал наружных стен – с монолитным и сборно-монолитным железобетонным каркасом и стенами из монолитного железобетона и сборных однослойных железобетонных навесных панелей
- материал поэтажных перекрытий – монолитные железобетонные
- класс энергоэффективности – В
- класс сейсмостойкости – нет (не относится к сейсмической зоне)
Предоставление дополнительной информации и организация встречи с собственником объекта – по официальной заявке
Стоимость350 млн. руб пересчитать в: долл евро |
Внимание! Здесь указана ориентировочная цена и параметры объекта. Пожалуйста, уточняйте информацию по телефону, e-mail или через форму обратной связи. |






























