Участок с РНС малоэтажного ЖК на трассе Санкт-Петербург-Сортавала в Вартемягах
Внимание! Данный объект снят с продажи!
фото
документы
Земельный участок общей площадью 1.71 га с разрешением на строительство четырёх трёхэтажных многоквартирных домов на трассе Санкт-Петербург-Сортавала в деревне Вартемяги.
Расположение
Ленинградская область, Всеволожский район, деревня Вартемяги, Приозерское шоссе, 1, 2
- 1.1 км от Токсовского шоссе
- 12.5 км от пересечения КАД и пр. Энгельса
- 38 км от Всеволожска
Правовой статус
1. Земельный участок
Общая площадь – 17147 м2
- земельный участок площадью 15 847 м2
- земельный участок площадью 1 300 м2
Категория: земли населённых пунктов
Разрешённое использование: малоэтажная многоквартирная застройка (3 этажа)
Вид права:
земельные участки в аренде у юридического лица:
- договор аренды ЗУ площадью 15 847 м2:
- с 01.09.2017 по 31.07.2022
- договор аренды ЗУ площадью 1300 м2:
- с 16.08.2017 по 16.08.2021
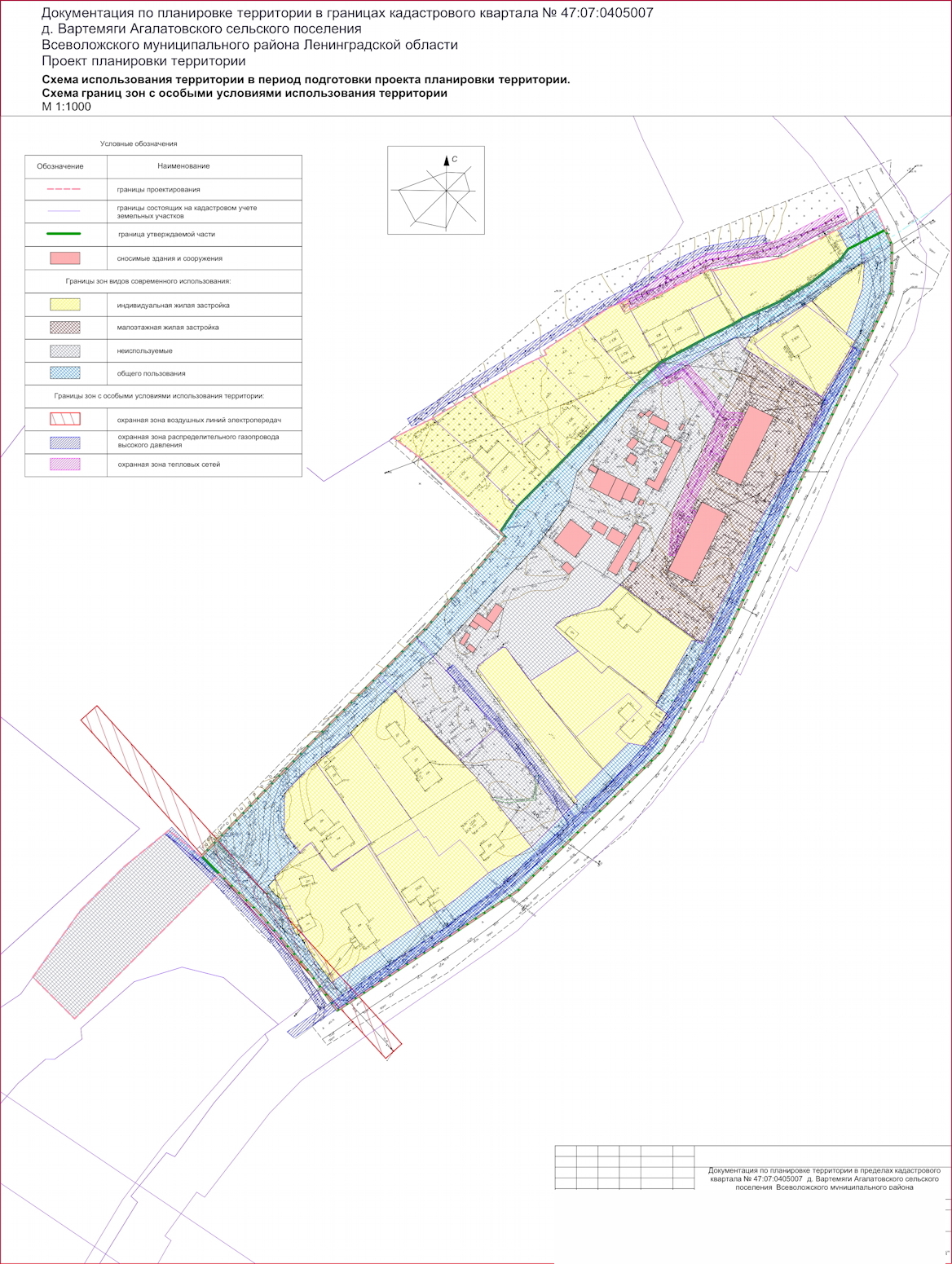
Земельные участки входят проект развития застроенной территории деревни Вартемяги площадью 4 га (кадастровый квартал 47:07:0405007) в границах:
- автодороги «Осиновая роща Магистральная»
- дороги на телятник земельного участка ЗАО «Вартемяги»
- земельного участка ДНП «Охтинское»
Обязательства по договору развития застроенной территории:
- расселение жильцов двух аварийных многоквартирных домов
- выполнение ППТ
- строительство многоквартирных жилых домов
- строительство отдельного дома под расселение или выкуп двух аварийных многоквартирных домов по стоимости ветхого жилья
2. Здания
На земельных участках расположены 2 здания:
- малоэтажный многоквартирный жилой дом
- этажность – 2
- высотность – 9 м
- общая площадь – 169.6 м2
- площадь застройки – 83.8 м2
- малоэтажный многоквартирный жилой дом
- этажность – 2
- общая площадь – 638 м2
- площадь застройки – 319 м2
Здания под управлением УК.
Соответствие ПЗЗ Агалатовского СП
Земельные участки, в соответствии с ПЗЗ Агалатовского СП, расположены в границах территориальной зоны ТЖ-2.
ТЖ-2 – зона застройки малоэтажными жилыми домами.
Зона была выделена для реализации проекта развития застроенной территории деревни Вартемяги площадью 4 га – для обеспечения правовых условий формирования районов с домами многоквартирного типа и блокированными жилыми домами с ограниченным разрешённым набором услуг местного значения.
Документация
- Зарегистрированные договоры аренды
- Утверждён ППТ в границах кадастрового квартала 47:07:0405007 (Распоряжение комитета по архитектуре и градостроительству Ленинградской области (№ 819 от 7 июля 2017 г.)
- ГПЗУ от 07.12.2017
- Проектная документация (стадия ПД)
- Разрешение на строительство от 28.06.2018 со сроком действия до 28.08.2021
- на арендуемом участке площадью 1300 м2 запланирована постройка 5-го дома (дом в стадии проектирования)
Инженерное обеспечение
1. Водоснабжение и водоотведение
- заключённый договор на подключение к сети хозяйственно-питьевого водопровода ООО «Водно-коммунального хозяйства»:
- объём водопотребления – 196 м3/сут.
- водоотведение – в централизованную систему
- объём хозяйственно-бытовых стоков – 160 м3/сут.
2. Электроснабжение
- заключённый договор с ПАО «Ленэнерго» на присоединение к сетям электроснабжения
- размер нагрузки – 408 Квт
3. Газоснабжение
- получены ТУ на газоснабжение АО «Газпром Газораспределение Ленинградская область»
- максимальное суммарное потребление – 0.62 млн.м3/год
4. Теплоснабжение
- получены ТУ на теплоснабжение с МП Агалатово-Сервис
- объём теплоснабжения – 1.75 Гкал/час.
Объект капитального строительства
Объект капитального строительства – комплекс четырёх трёхэтажных жилых домов
В соответствии с ППТ, на данной территории запланировано:
- строительство трехэтажных многоквартирных жилых домов
- максимальная высота объекта – 12 м
- этажность жилых домов – 3
- общая площадь квартир – 10 300 м2
- расчётная стоимость продажи 1 м2 – 60 тыс. руб.
- общая прибыль проекта, в соответствии с укрупнёнными показателями, – 194 млн. руб.
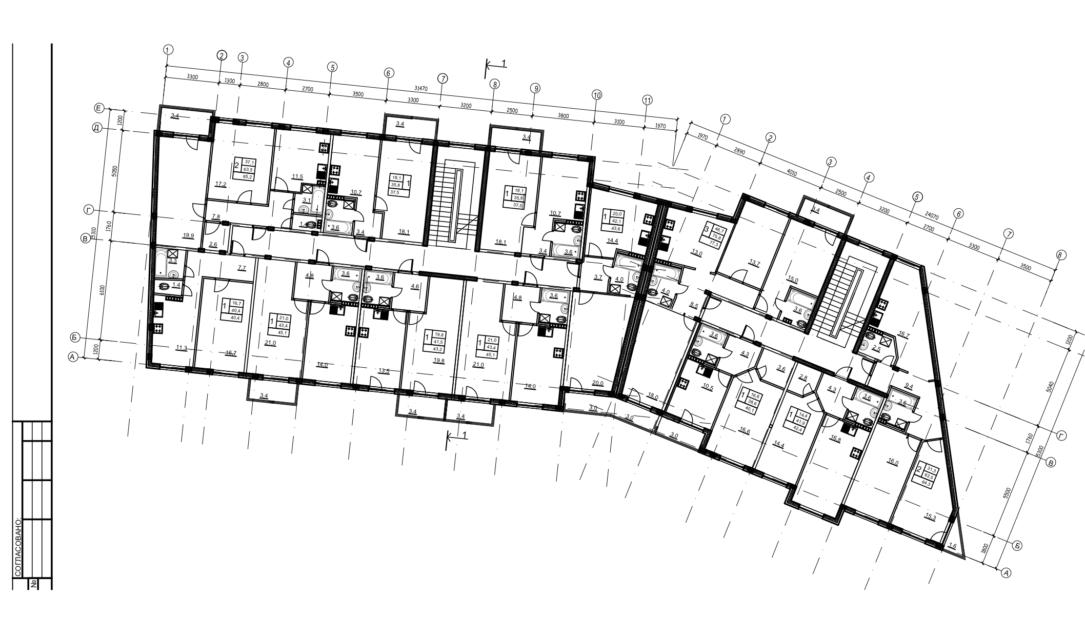
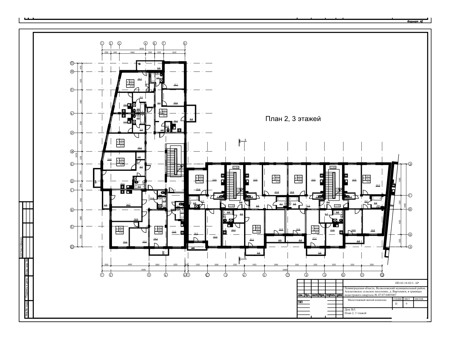
ОКС представляет собой 4 отдельно стоящих жилых здания:
- дом №2 – из 3 секций
- дом №3 – из 2 секций
- дом №4 – из 2 секций
- дом №5 – из 1 секции
Расселение жильцов домов
- необходимо предоставление 32 квартир
- общая площадь квартир 1300 м2
На арендуемом участке площадью 1300 м2 запланирована постройка пятого дома:
-
- дом будет строиться не по закону о долевом строительстве
- ограничения 214-ФЗ на застройщика не распространяются
- часть квартир, по договоренности с собственниками, предполагается выкупить по стоимости ветхого жилья, которая существенно ниже цены квартир во вновь построенном доме
- квартиры в 5 доме, освободившиеся от заселения жильцами аварийных домов, поступят в продажу, что увеличит прибыль проекта
Расчёт площадей
- площадь арендуемых участков – 17 100 м2
- максимальный процент застройки в соответствии с ПЗЗ -– 30%
- максимальная высота здания – 12 м
- количество этажей – 3
- общая площадь застройки:
- 17 100 м2 х 0.3 х 3 = 15 390 м2
- площадь благоустройства – 10 300 м2
- соотношение продаваемой/общей площади по проекту (эскизный) – 0.8
- площадь квартир, в соответствии с ПЗЗ с учётом благоустройства:
- 15 390 м2 х 0.8 = 12 300 м2
Возможности увеличения площади
Увеличение площади возможно за счёт следующих зон, отмеченных на чертеже планировки территории квартала:
1. Зона 13
- муниципальные земли
- площадь – 2000 м2
- возможность оформления аренды
- необходимость больших вложений:
- из-за оврага
- остальные участки застроены
2. Перспективные варианты увеличения площади
Рядом с продаваемыми участками – 2 участка, выделенные под личное подсобное хозяйство
- Зона 5
- участок площадью 1300 м2
- участок площадью 1200 м2
- Зона 6
- земли со строениями, не прошедшие кадастровый учет
- примерная площадь – 3000 м2
Итого:
- потенциально возможная площадь участка для увеличения:
- 1300 м2 + 1200 м2 + 3000 м2 = 5500 м2
- увеличение площади квартир:
- 5500 м2 х 0.9 х 0.8 = 3960 м2
- максимально возможная площадь квартир – 14 260 м2
- расчётная прибыль проекта с увеличенной площадью – 289 млн. руб.
Особенности
Территория проекта ЖК в посёлке Вартемяги, являющемся ближайшим пригородом Санкт-Петербурга
Это одна из самых перспективных локаций для развития жилищного строительства вблизи границ Санкт-Петербурга
В посёлке действуют:
- необходимые объекты бытового обслуживания населения:
- супермаркеты
- продуктовые и строительные магазины
- салоны красоты
- кафе
- детский сад и общеобразовательная школа
- в 15 минутах езды:
- ТРК «Мега Парнас» и «Северный Молл»
- строительный гипермаркет «Леруа Мерлен»
Транспортная доступность
- транспортная доступность станций метрополитена Санкт-Петербурга
- близость Приозерского и Новоприозерского шоссе
- выезд на КАД и транспортные магистрали проспекта Энгельса и Суздальского проспекта
Сведения о проекте ЖК
Малоэтажный жилой комплекс находится на территории, примыкающей:
- с северо-восточной и юго-восточной сторон – к автодороге регионального назначения А-121 (Приозерское шоссе)
- с северо-запада – к с/х угодьям и участкам под с/х производство
- с юго-запада – к существующей индивидуальной жилой застройке деревни Вартемяги
Характеристики ЖК
- Класс малоэтажного ЖК – «доступный комфорт»
- Квартиры на верхних этажах оборудованы выходом на эксплуатируемую кровлю
- Автономное отопление:
- газовый котел в каждой квартире
- На первых этажах:
- террасы или палисадник
- На прилегающей территории:
- детская площадка
- спортивная площадка
- вишневый сад с местом отдыха
- Отделка мест общего пользования:
- высококачественные материалы
- Отделка фасадов зданий:
- высококачественная цветная штукатурка с художественными изображениями вишневых деревьев
- Все лоджии застеклены
- Высота потолков в квартирах – 2.8 м
- Парковочные места на прилегающей территории для жильцов комплекса
- Ограждение жилого комплекса:
- в художественном исполнении с элементами изображений вишневых деревьев
- Элементы инфраструктуры для жильцов (на следующих стадиях строительства):
- магазины
- прачечная
- пекарня
- спортивные и детские площадки
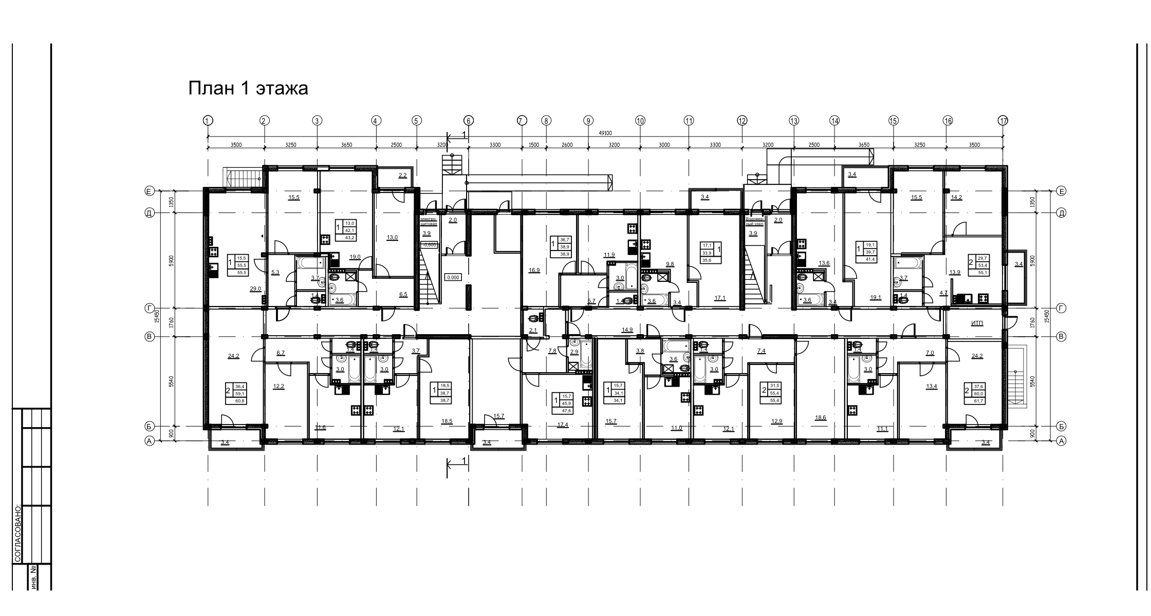
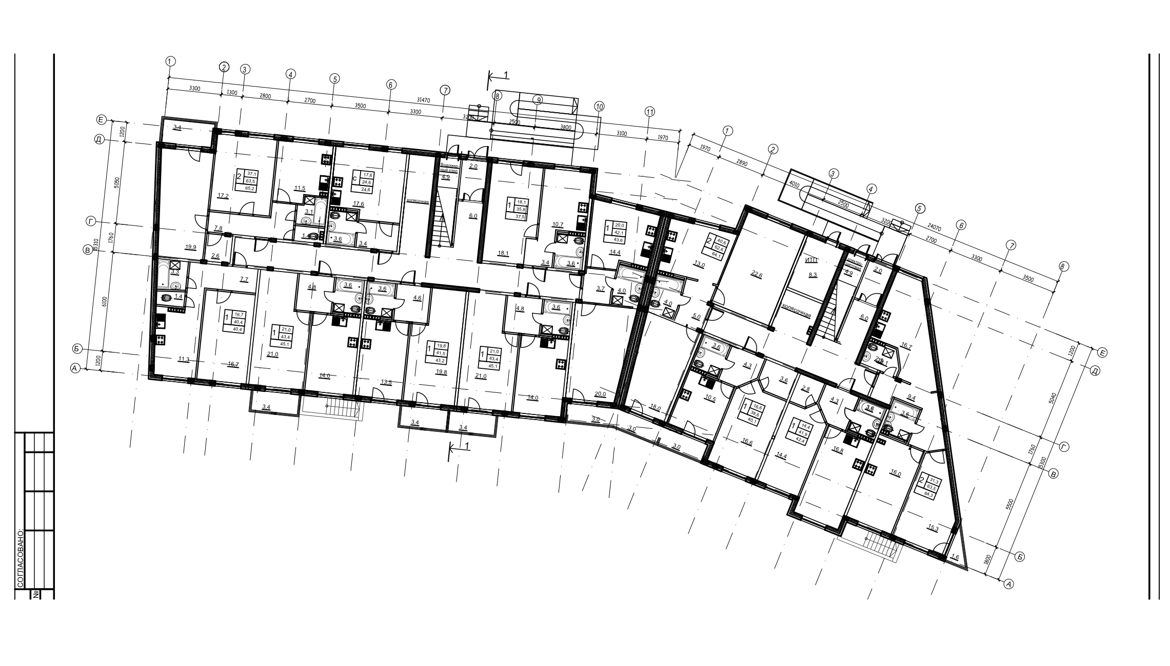
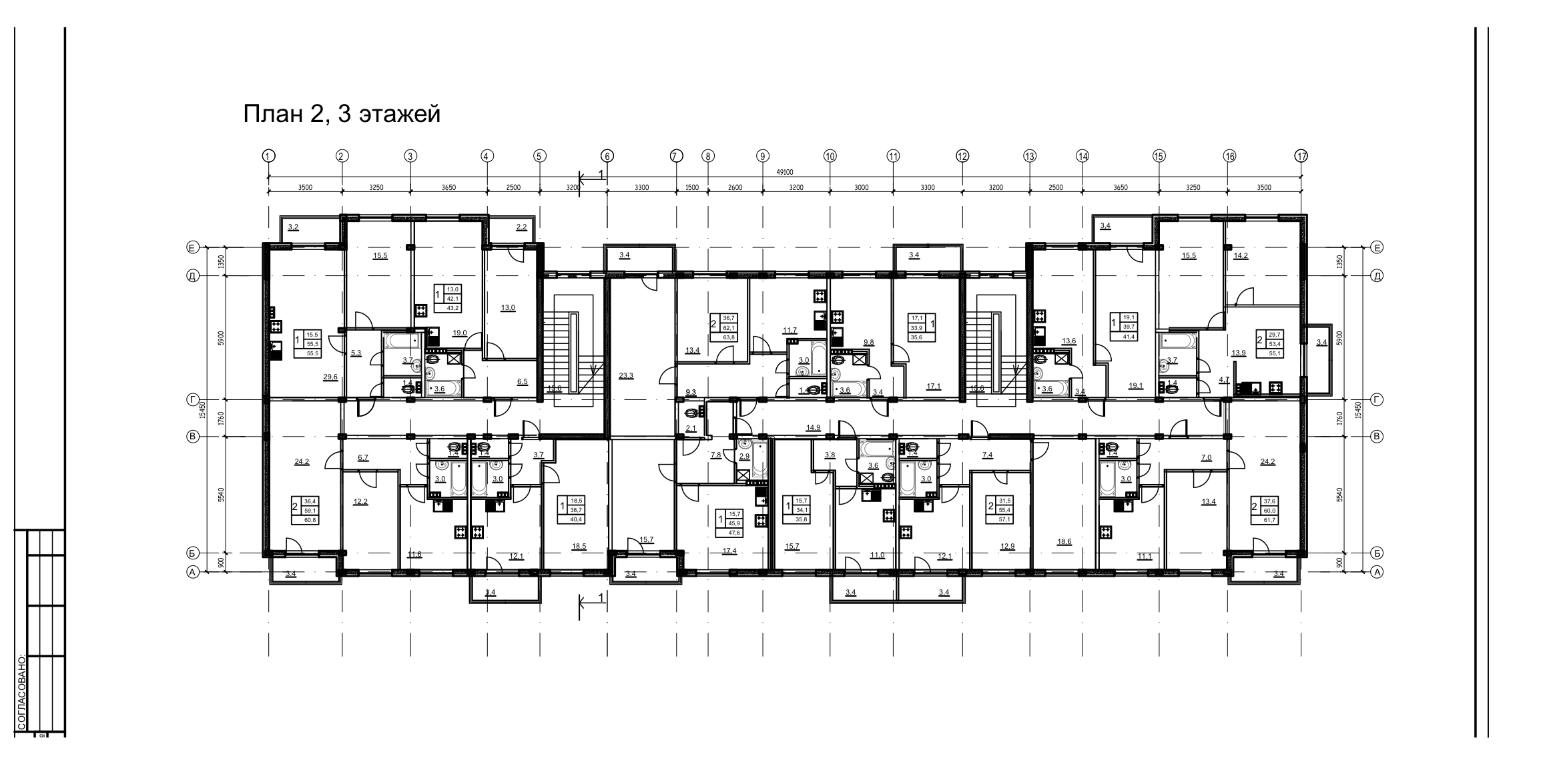
Показатели застройки жилой зоны комплекса по ППТ
Дом №1
- количество жилых этажей – 3
- площадь застройки – 379 м2
- общая площадь здания – 1 137 м2
- жилая площадь – 807 м2
Дом № 2
- количество жилых этажей – 3
- площадь застройки – 1 180 м2
- общая площадь здания – 3 540 м2
- жилая площадь – 2 507 м2
Дом №3
- количество жилых этажей – 3
- площадь застройки – 1 180 м2
- общая площадь здания – 3 540 м2
- жилая площадь – 2 507 м2
Дом №4
- количество жилых этажей – 3
- площадь застройки – 955 м2
- общая площадь здания – 2 685 м2
- жилая площадь – 2 013 м2
Дом №5
- количество жилых этажей – 3
- площадь застройки – 590 м2
- общая площадь здания – 1 170 м2
- жилая площадь – 1 254 м2
Итого:
- площадь застройки – 4 284 м2
- общая площадь здания – 12 852 м2
- жилая площадь – 9 087 м2
Этапы строительства в соответствии с разрешением
В соответствии с разрешением на строительство, все работы разбиты на 3 этапа:
1 этап
- строительство дома на 78 квартир
- строительство одноуровневого подземного паркинга
- прокладка внутриплощадочных инженерных сетей в границах ГПЗУ
- прокладка наружных инженерных сетей
- благоустройство территории в границах 1 этапа
- ввод в эксплуатацию – июнь 2020 года
- стоимость СМР этапа – 130 млн. руб.:
- квартиры реализуются после ввода дома в эксплуатацию
- ожидаемый доход – 215 млн. руб.
2 этап
- строительство дома под расселение:
- количество квартир – 36
- ввод в эксплуатацию – октябрь 2020 года
- стоимость СМР – 96 млн. руб.
- ожидаемый доход – 102 млн. руб.
3 этап
- строительство 2 домов:
- количество квартир – 36 в каждом
- всего квартир – 72
- ввод в эксплуатацию – август 2021 года
- стоимость СМР – 126 млн. руб.
Финансовые показатели
- Общая сумма вложений в проект строительство четырёх 3-этажных жилых домов – 352 млн. руб.
- Валовый доход от реализации квартир – 525 млн. руб.
- При вложении в начале строительства (1 и 2 этап одновременно) 226 млн. руб.:
- валовый доход до конца 2020 года: 280 – 300 млн. руб.
- возможность финансирования 3 этапа без дополнительных вложений
Варианты реализации объекта
- ППА с продажей наработанной документации:
- стоимость – 35 млн. руб.
- Проектное финансирование при совместном строительстве 4 малоэтажных жилых домов:
- в размере 352 млн. руб.
- с затратами собственных средств на оплату работ, на оплату ТУ – порядка 60 млн. руб.
- 15% от объёма финансирования
Анализ продаж жилых комплексов
ЖК «Шуваловский парк»
Жилой комплекс строился в три очереди:
- первая очередь:
- три дома, для ветеранов, социальная нагрузка
- вторая очередь:
- шесть домов
- 126 квартир
- общая площадь – 8 445 м2
- третья очередь
- 20 домов
- 429 квартир
- общая площадь – 23 300 м2
Срок строительства второй и третий очереди 2,5 года.
Средняя площадь квартир:
- однокомнатные: 37 – 38 м2
- двухкомнатные: 52 – 55 м2
- трехкомнатные: 75 м2
Цены продаж от 55 до 75 тыс.руб./м2
90% квартир продано до ввода в эксплуатацию, в течении 2,5 лет.
Жилые комплексы, находящиеся в той же локации и строящиеся в настоящее время
ЖК «Парковый» в Агалатово
Строительство начато во втором полугодии 2018 года. Согласно проектной декларации, ввод в эксплуатацию намечен на II квартал 2021 года.
160 квартир, 4 секции, сдача в декабре 2020, общая готовность 70%, продано 70% квартир.
Цены:
- однокомнатные: от 67 тыс. руб./м2
- двухкомнатные: 67 – 72 тыс. руб./м2
За период менее 2 лет продано 112 квартир, или 5 – 6 квартир в месяц.
ЖК «Высота 84» в Агалатово
Начало строительства – январь 2015 г.
Семь односекционных жилых домов:
- четыре – пятиэтажных
- три – девятиэтажных
Всего – 304 квартиры.
4 пятиэтажных дома сданы, заселены и полностью проданы.
2 девятиэтажных дома – в стадии строительства под крышу, срок сдачи декабрь 2020 г. Последний дом на начальной стадии строительства.
Цены в сданных домах:
- студии – от 79 тыс.руб./м2
- однокомнатные – от 61 тыс. руб./м2
- двухкомнатные – от 59 тыс. руб./м2
Цены в домах, сдающихся в 2020 году:
- студии – от 79 тыс.руб./м2
- однокомнатные – от 57 до 70 тыс. руб./м2
- двухкомнатные – от 59 до 71 тыс. руб./м2
Цены в доме со сдачей 2021 году:
- однокомнатные от 61 до 70 тыс. руб./м2
- двухкомнатные – от 57 до 70 тыс. руб./м2
Таким образом, скорость продаж в среднем 5 – 6 квартир в месяц и цены от 59 до 79 тыс. руб./м2 соответствуют бизнес-модели жилого комплекса.
Клубный дом «Вартемяги»
Находится в посёлке Вартемяги, ул. Колхозная уч. 4б.
22 квартиры
Общая площадь объекта - 1 261.7 м2
3 этажа, класс «комфорт»:
- однокомнатные – от 38.2 м2
- двухкомнатные – от 60.1 м2
Срок сдачи 3 квартал 2020 года
Цены реализации:
- однокомнатные – 72 тыс. руб./м2
- двухкомнатные – 70 тыс. руб./м2
Выводы
При достаточно большом предложении и сжатых сроках строительства все квартиры продавались до сдачи домов в эксплуатацию, что подтверждает расчёты, заложенные в проект жилого комплекса как по скорости продаж и наличию спроса, так и по выбранной квартирографии.
Информация по конкурентам предложенного проекта подтверждает высокую скорость продаж в данной локации, что объясняется:
- удачным расположением
- в 10 минутах езды от Санкт-Петербурга по Новоприозерскому шоссе
- уровнем цен
- стоимость 1 м2 жилья существенно ниже, чем в Санкт-Петербурге – при сопоставимом уровне комфорта и инфраструктуры
Предоставление дополнительной информации и организация встречи с собственником объекта – по официальной заявке
Стоимость35 млн. руб пересчитать в: долл евро |
Внимание! Здесь указана ориентировочная цена и параметры объекта. Пожалуйста, уточняйте информацию по телефону, e-mail или через форму обратной связи. |
Документы
Расстояние до Санкт-Петербурга
9 км. (указано расстояние до КАД Санкт-Петербурга по прямой).



























































































