Подземный паркинг с открытой автостоянкой на улице Васи Алексеева
Внимание! Данный объект снят с продажи!
Подземный паркинг с открытой автостоянкой на земельном участке площадью 5450 м2 на улице Васи Алексеева.
Расположение
Санкт-Петербург, Кировский район, улица Васи Алексеева, д. 4, лит. А
В 140 м от станции метро «Кировский завод».
Правовая характеристика
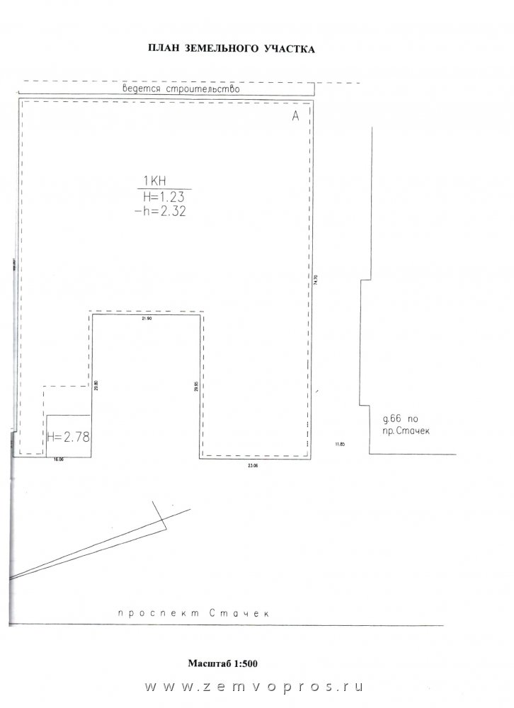
1. Земельный участок
Площадь – 5 450 м2
Категория: земли населённых пунктов
Разрешённое использование: для размещения объектов транспорта (под гаражи и автостоянки)
Обременения
- охранная зона тепловых сетей – 464.0 м2
- охранная зона тепловых сетей – 208.0 м2
- охранная зона тепловых сетей – 95.0 м2
- охранная зона тепловых сетей связи и сооружений связи – 28.0 м2
- охранная зона тепловых сетей связи и сооружений связи – 22.0 м2
Запрещаются строительство объектов капитального строительства и их реконструкция, связанная с изменением их параметров:
- высоты
- количества этажей
- площади
за исключением строительства и реконструкции линейных объектов.
Зоны с особыми условиями использования
- охранная зона тепловых сетей
- охранная зона сетей связи и сооружений связи
- техническая и охранная зона метрополитена
На весь участок распространяется ЗОУИТ, установленными в области использования воздушного пространства - приаэродромные территории: аэродромов:
- Пулково
- в радиусе 15 км от контрольной точки аэродрома
- Пушкин
- Левашово
- Горская
- Горелово
Соответствие Генеральному плану и ПЗЗ
- функциональная зона Генерального плана – Д
- территориальная зона ПЗЗ – ТД1-1
- общественно-деловая подзона объектов многофункциональной общественно-деловой застройки и жилых домов, расположенных на территории исторически сложившихся районов Санкт-Петербурга с включением объектов инженерной инфраструктуры
- высотный регламент:
- фоновая высота – 40/43/55 м
Информация о разрешённых ВРИ ЗУ представлена в материалах ГПЗУ (в разделе «документы» в правой части страницы)
Вид права:
- аренда земельного участка с 16.06.2011 по 29.03.2059
- аренда юридическим лицом с 2016 года
2. Здание
Здание является объектом капитального строительства
Вид права: здание в собственности юридического лица
Характеристики здания
- назначение – гараж
- количество м/м – 160
- общая площадь – 3 865.6 м2
- этажность – 2
- подземная этажность - 1
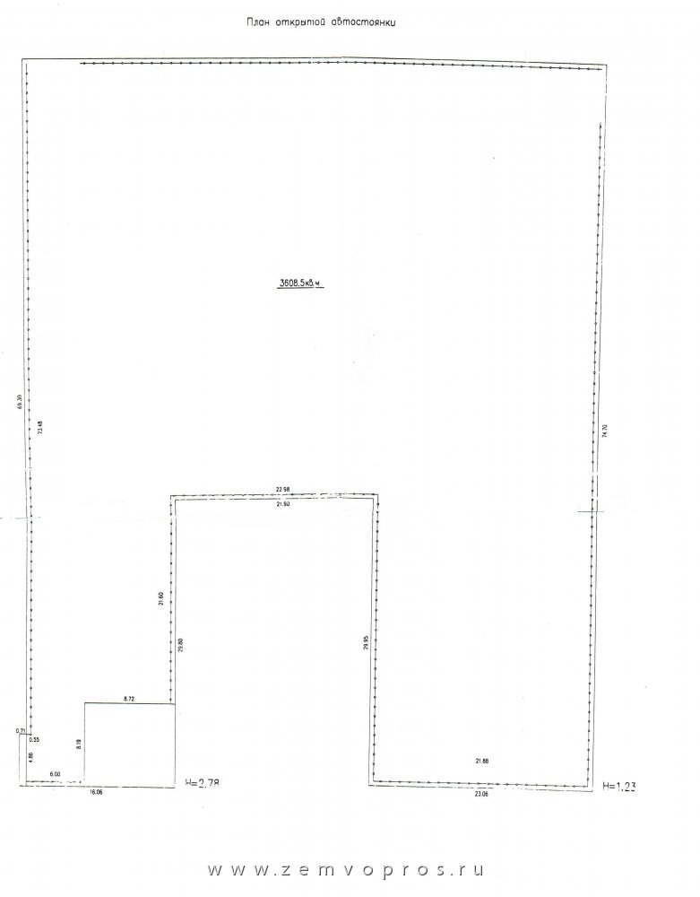
- крыша – эксплуатируемая кровля (открытая автостоянка) – площадь 3 800 м2
- пандус
- использованные материалы:
- фундамент – ж/б монолитная плита
- материал наружных капитальных стен стен – кирпичные, монолитные, железобетонные
- перегородки – кирпичные
- перегородки чердачные – ж/б монолитные
- крыша – асфальтобетон
- полы – бетонные
- проёмы:
- оконные – из металлопластика
- дверные – металлические, подъёмные
- год постройки – 2007
- год ввода в эксплуатацию – 2008
Коммуникации в здании
- здание не отапливаемое
- водопровод:
- от городской центральной сети
- канализация:
- сброс в городскую сеть
- электроосвещение:
- скрытая проводка
- радио:
- скрытая проводка
- телефон:
- скрытая проводка
- вентиляция:
- естественная
- приточно-вытяжная
Парковка
- Площадь
- надземная часть – 3 800 м2
- подземная часть – 3 865.8 м2
Проектные проработки
Выполнены некоторые проектные проработки по планируемому строительству спорткомплекса.
Планы 1 и 2 этажей здания спорткомплекса представлены в разделе «фотографии».
Предоставление дополнительной информации и организация встречи с собственником объекта – по официальной заявке
Стоимость120 млн. руб пересчитать в: долл евро |
Внимание! Здесь указана ориентировочная цена и параметры объекта. Пожалуйста, уточняйте информацию по телефону, e-mail или через форму обратной связи. |






























