Здание свободного назначения в посёлке Стеклянный
Внимание! Данный объект снят с продажи!
фото
документы
Трёхэтажное здание заводоуправления бывшего геолого-технического предприятия, позднее переоборудованное под общеобразовательную школу, ещё позднее сдававшееся в аренду и законсервированное в настоящее время, в посёлке Стеклянный.
Расположение
Ленинградская область, Всеволожский район, посёлок Стеклянный
- 35 км Новоприозерского шоссе
Правовая характеристика
1. Земельный участок
- площадь – 4 686 м2
- участок не оформлен ни в собственность, ни в аренду:
- аренда участка была лишь в советское время
- учитывая расположение участка внутри дорог посёлка Стеклянный и наличие на участке здания, возможность соответствующего оформления земельного участка оценивается как реальная
Земельный участок под зданием – в собственности.
2. Здание
- постройка 1962
- площадь застройки – 1 544.3 м2
- объём здания – 8 448 м3
- общая площадь – 1 811.7 м2
- основная площадь – 1 106.7 м2
Технические характеристики здания
- фундамент – железобетонный
- стены – кирпичные
- перегородки – кирпичные, деревянные
- перекрытия – железобетонные
- кровля – шифер
- полы – дощатые линолеум, кафель
- проёмы – двойные створчатые, филёнчатые
- лестницы – бетонные
- отделка – штукатурка
- сантехнические и электротехнические устройства:
- отопление
- водопровод
- канализация
- электроосвещение
- радио
- телефон
- сигнализация
Благоустройство здания
- электроосвещение на площади здания 1 829.3 м2
- водопровод на площади здания 1 811.7 м2
- канализация на площади здания 1 811.7 м2
- отопление центральное на площади здания 1 811.7 м2
- телефон на площади здания 1 811.7 м2
Технические характеристики пристроек
- фундамент – бетонный ленточный
- стены – металлические стойки
- крыша – металлическая
- полы – бетонные
- проёмы – одинарные, деревянные
- отделка - окраска
- электроосвещение – есть
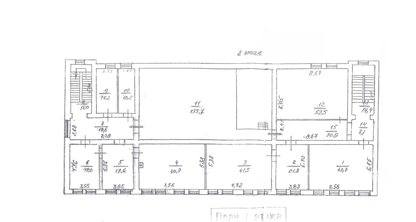
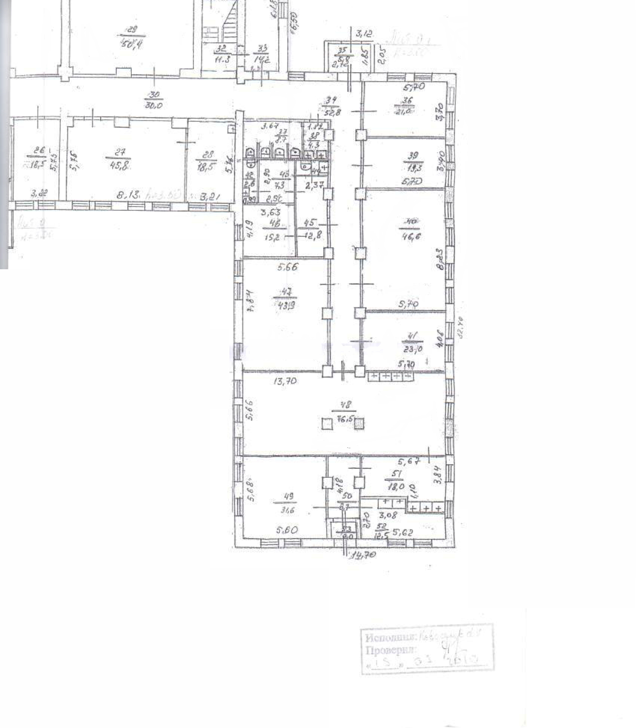
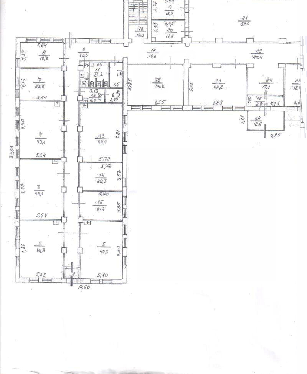
Характеристики этажей здания
- этажность – 3
- общая площадь – 1 811.7 м2
- основная площадь – 1 106.7 м2
- планировка – кабинетная система с двумя залами:
- зрительный зал площадью 135 м2
- спортивный зал площадью 90 м2
- 1 этаж
- площадь – 1316 м2
- Н = 3,75 м
- 2 этаж
- площадь – 474 м2
- Н = 3.75 м
- 3 этаж
- площадь – 38 м2
- Н = 2.7 м
До конца 2018 года 1 этаж здания сдавался в аренду. В настоящее время сдача в аренду помещений здания не рассматривается в связи с необходимостью продажи здания.
В настоящее время здание не используется. В здании проведён ремонт.
Вид права: здание в собственности юридического лица.
Особенности
- Земельный участок со зданием «замкнут» внутренним дорогами посёлка Стеклянный.
- Расположение здания характеризуется удобством локации относительно объектов инфраструктуры посёлка Стеклянный:
- в 230 м от универсама «Пятёрочка»
- в 120 м от почты
- в 80 м от сбербанка
- в 50 м от школы и от детского сада
- В 300 м от объекта – озеро Силанде.
- Собственником объекта рассматривались вопросы о реконструкции и о капитальном ремонте здания в целях его приспособления под многоквартирный жилой дом или объект социального назначения (дом отдыха, дом престарелых):
- при реконструкции предусматривалась надстройка 3-го этажа, при которой общая площадь здания должна увеличиться и составить 3200 м2, а жилая – 2800 м2
- ориентировочная стоимость реконструкции – 30.2 млн.руб.,
- в процессе ремонта общая площадь здания должна составить 1 800 м2, а жилая – 1 500 м2
- ориентировочная стоимость ремонта – 10.5 млн.руб.
- проектные разработки отражают только намерения собственника и нигде не согласовывались, так как не могут отвечать конкретным задачам по использованию здания будущим собственником.
- при реконструкции предусматривалась надстройка 3-го этажа, при которой общая площадь здания должна увеличиться и составить 3200 м2, а жилая – 2800 м2
Коммуникации
Коммуникации от централизованных систем посёлка подведены, но не используются по причине отсутствия договоров со снабжающими организациями.
Предоставление дополнительной информации по объекту и организация осмотра и переговоров – по официальной заявке
Стоимость14 млн. руб пересчитать в: долл евро |
Внимание! Здесь указана ориентировочная цена и параметры объекта. Пожалуйста, уточняйте информацию по телефону, e-mail или через форму обратной связи. |
Фотографии
Расстояние до Санкт-Петербурга
32 км. (указано расстояние до КАД Санкт-Петербурга по прямой).































