Административно-офисное здание с земельным участком на 9-ой Красноармейской улице
Внимание! Данный объект снят с продажи!
Административно-офисное здание с земельным участком на ул. 9-я Красноармейская, д. 7
Расположение
Санкт-Петербург, Адмиралтейский район, 9-я Красноармейская ул., д. 7, лит. А
- 800 м от станции метро «Технологический институт-1»
- 700 м станции метро «Балтийская»
Правовая характеристика
1. Земельный участок
Площадь - 282 м2
Категория земель: земли населённых пунктов
Разрешённое использование: для размещения административно-управленческих и общественных объектов
Вид права: собственность юридического лица
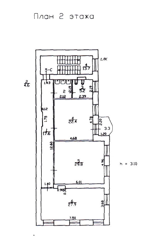
2. Здание
Здание включено в перечень выявленных объектов культурного наследия.
Охранное обязательство.
Характеристики здания:
- общая площадь - 330.1 м2 (по факту - 420 м2)
- нежилое
- назначение - общежитие
- этажность - 4
- перекрытия - металлические балки с плитами ЖБИ
- полы - паркет
Вид права: собственность юридического лица
Особенности
- Здание в текущий период (октябрь 2018) не используется. Находится на консервации.
- Коммуникации (электроснабжение 50 кВт, водоснабжение, отопление, канализация) - от городских систем.
Предоставление иной дополнительной информации по объекту, организация осмотра и переговоров - по официальной заявке.
Стоимость
Стоимость объекта - 45 млн.руб.
Стоимость45 млн. руб пересчитать в: долл евро |
Внимание! Здесь указана ориентировочная цена и параметры объекта. Пожалуйста, уточняйте информацию по телефону, e-mail или через форму обратной связи. |













