Участок под строительство гостиницы (апартамент-отеля), с разрешением на строительство, на Товарищеском проспекте
Внимание! Данный объект снят с продажи!
фото
документы
Земельный участок площадью 4001 м2 под строительство гостиницы (апартамент-отеля), с разрешением на строительство.
Расположение
Санкт-Петербург, Невский район, Товарищеский проспект, участок 19, (северо-западнее дома 38, литера Б).
- 0.8 км от станции метро «Улица Дыбенко»
Правовая характеристика
Площадь участка - 4001 м2
Категория земель: земли населённых пунктов
Разрешённое использование: для размещения гостиниц
Вид права: аренда в целях осуществления инвестиционного проекта со сроком ввода объекта в эксплуатацию 02.05.2019 г.
Соответствие ПЗЗ Санкт-Петербурга
Территориальная подзона ТД1-2_1
ТД1-2_1 - общественно-деловая зона объектов многофункциональной общественно-деловой застройки и жилых домов, расположенных на территории периферийных и пригородных районов Санкт-Петербурга, с включением объектов инженерной инфраструктуры.
Особенности
- Земельный участок расположен вблизи от Санкт-Петербургского государственного университета им. проф. М.А. Бонч-Бруевияа (СПбГУТ).
- Рядом с участковом - трансформаторная подстанция.
- Участок граничит:
- с севера - с улицей Дыбенко
- на западе - Санкт-Петербургский государственный университет им. проф. М.А. Бонч-Бруевича (СПбГУТ)
- с восточной и южной стороны - территория, свободная от застройки
Проектные решения
- Гостиничного-офисный комплекс предусмотрен 18-этажным с техподпольем и подвалом. Он гармонично вписывается в окружающую застройку.
- Основная схема планировочных решений гостиничной и офисной частей:
- коридорная система.
- каждый этаж здания имеет не менее 2-х эвакуационных выходов.
- Композиционные приёмы оформлении фасадов и интерьеров объекта капитального строительства
- экстерьеры здания запроектированы с учётом сложившейся окружающей застройки
- фасадные решения проектируемого здания дополняют и обогащают существующую стилистическую целостность сложившейся окружающей застройки
- цветовое решение фасадов решено в спокойных тонах с оранжевыми вставками:
- при отделке фасадов на 1-м этаже используется система навесного вентилируемого фасада с применением витражного остекления,
- 2-18 этаж - фасад утеплён,
- отделка - штукатурка под покраску.
ТЭП
- площадь участка - 4001 м2
- общая площадь - 14 681.0 м2
- объём - 50 126.58 м3, в том числе объём подземной части - 2540.0 м3
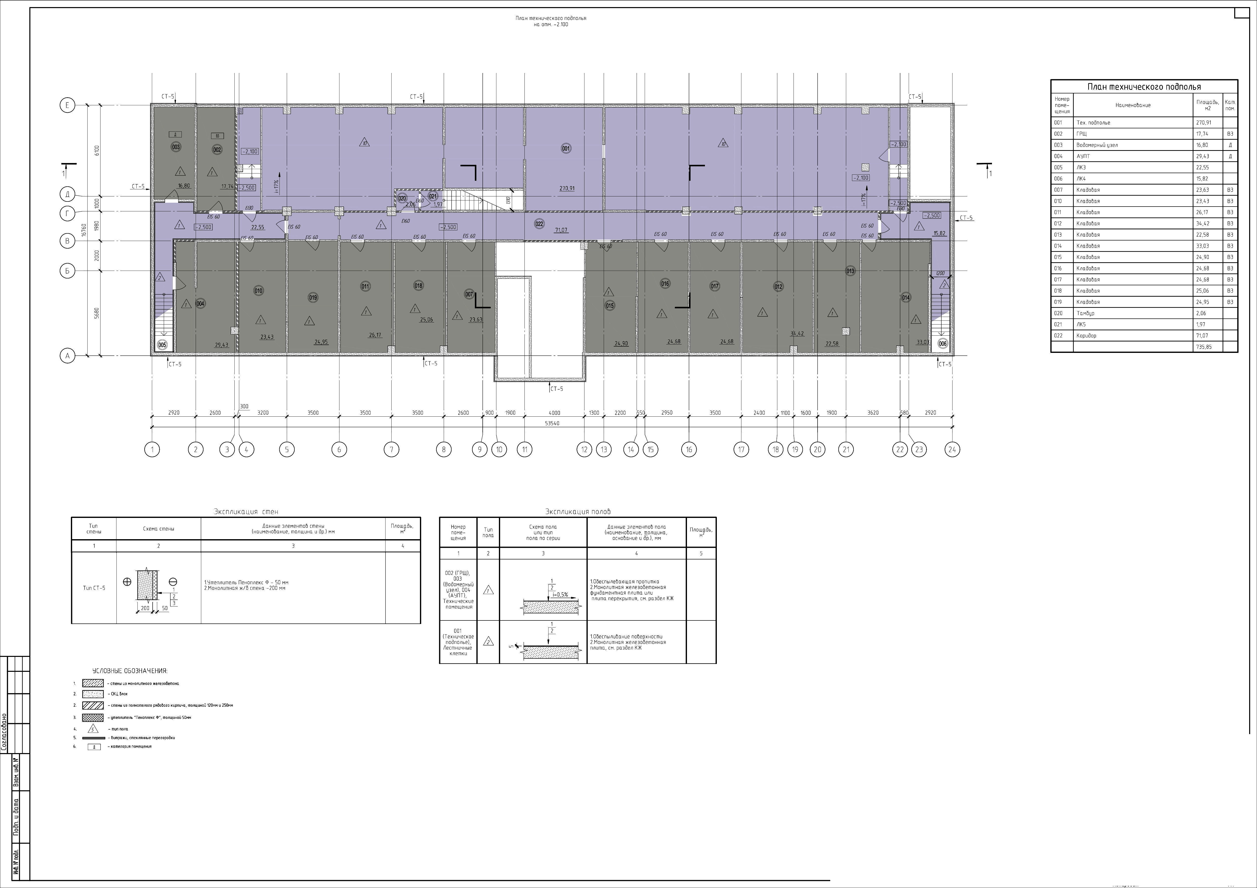
- количество этажей – 19, высота – 55.6 м
- количество подземных этажей - 1
- площадь номеров - 10 457.21 м2
- количество номеров - 374
- площадь встроенно-пристроенных помещений – 813.76 м2, в том числе:
- офисные помещения - 305.23 м2
- помещение ресторана - 243.16 м2
Размеры здания
- в осях - 53.54 х 16.76 м
- высота техподполья - 1.8 м
- высота подвала - 2.2 м
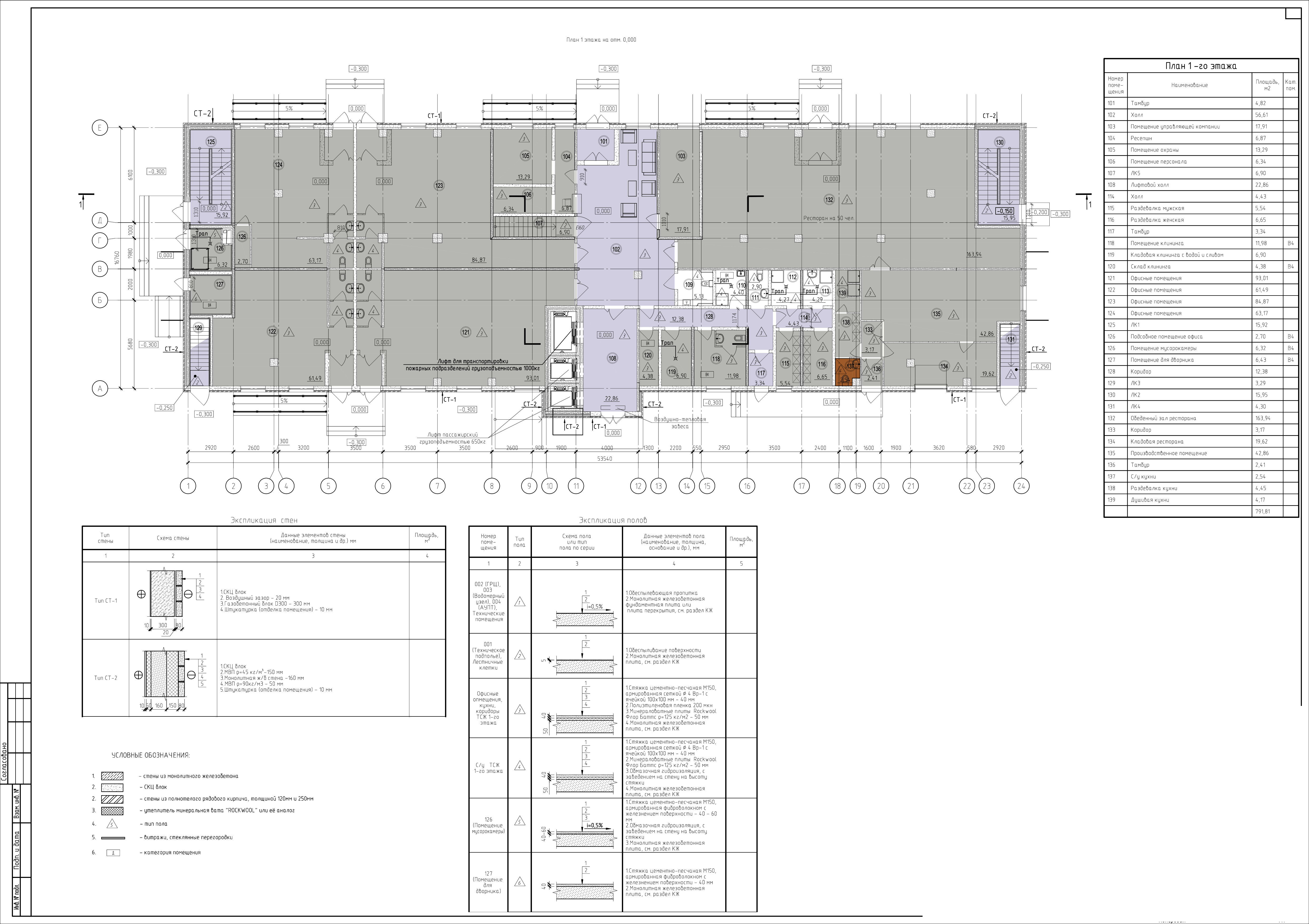
- высота помещений 1 этажа от уровня до низа перекрытия - 3.52 м
- высота помещений 2-18 этажа от уровня чистого пола до низа перекрытия - 2.57 м
За относительную отметку 0.000 принята отметка чистого пола 1-го этажа, что соответствует абсолютной отметке +7.450.
В здании для вертикальной связи предусмотрено 3 лифта:
- 1 лифт грузоподъемностью 1000кг, который предназначен также для транспортировки пожарных подразделений,
- 2 лифта грузоподъемностью 630 кг.
1. Гостиница
В гостинице предусмотрены:
- номера-апартаменты (9.8%)
- предназначены для длительного пребывания людей
- имеют зоны для приготовления пищи, входящие в площадь жилой комнаты.
- 1-й этаж:
- предприятие общественного питания (ресторан) на 50 посадочных мест
- офисные помещения
- санитарно-бытовые помещения
- 2-18 этажи:
- гостиничные номера (квартирного типа - апарт-номера, апартаменты)
- санитарно-бытовые помещения
Номера-апартаменты
Номер-студия включает:
- комнату,
- прихожую
- совмещенный санузел.
1-комнатные номера включают:
- жилую комнату
- прихожую
- совмещенный санузел.
2-х комнатные номера включают:
- 2 жилые комнаты,
- прихожую
- раздельные туалет и ванную.
2. Офисы
- гостиница запроектирована на 374 номера с рестораном и офисной частью на 1-м этаже
- офисы с большой площадью в дальнейшем могут быть поделены на более мелкие.
- каждый офис имеет самостоятельный вход и санузел
- общее количество сотрудников офисной части - 31 чел. (из расчета 10 м2 на чел.).
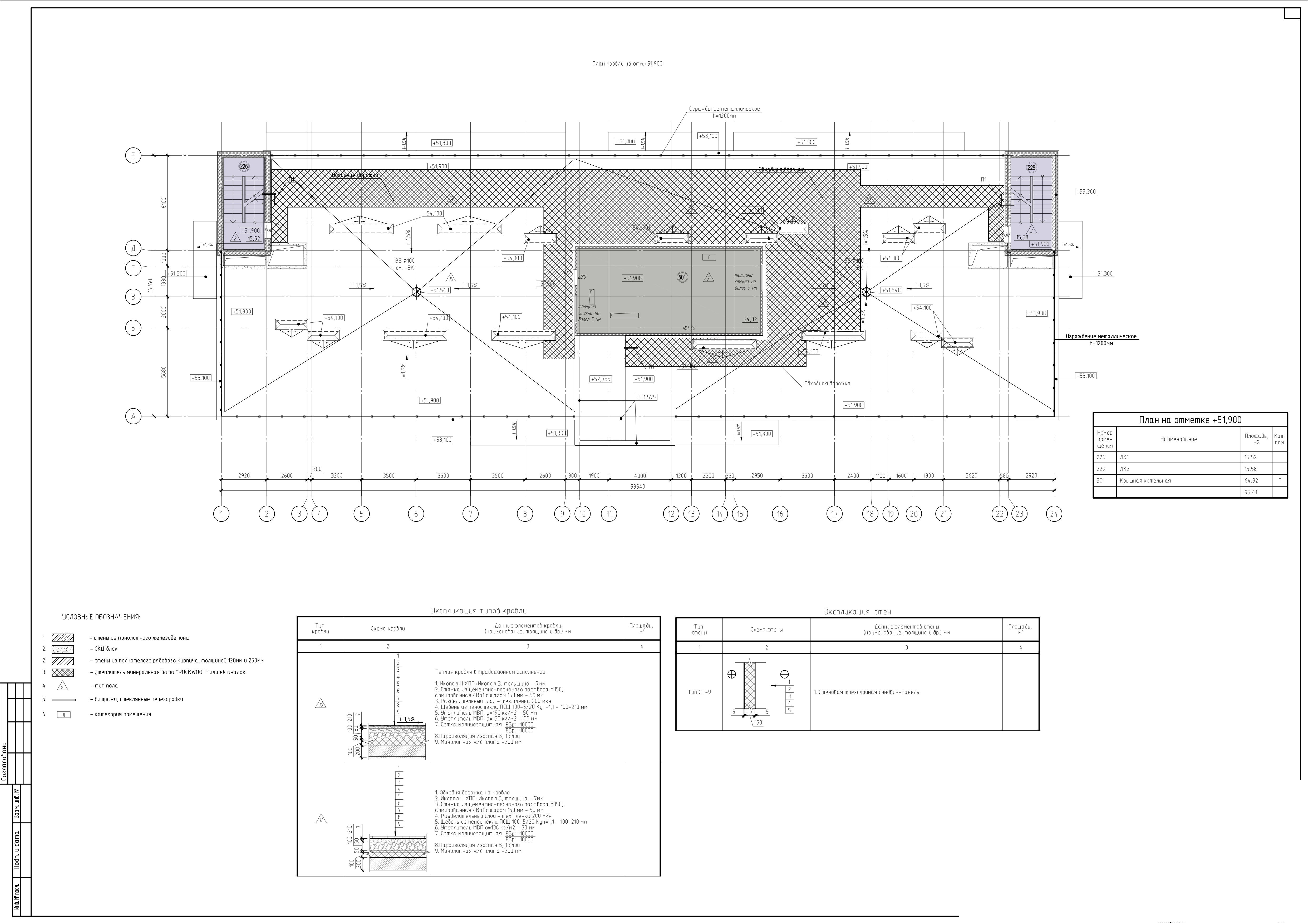
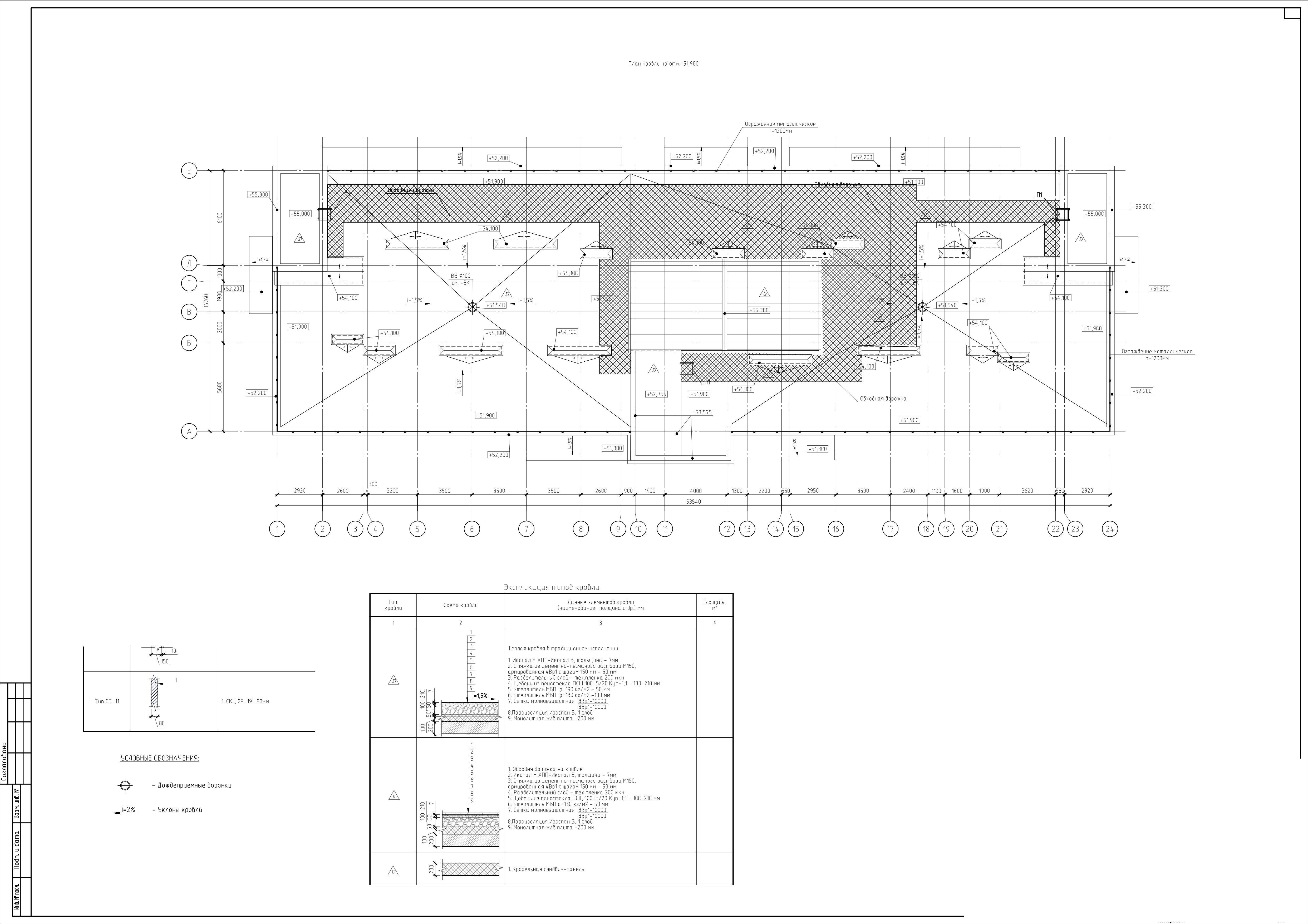
3. Кровля
- на отметке +53.100
- на кровле установлена крышная котельная
- кровельное покрытие основного здания под котельной и на расстоянии 2 м от её стен (должно выполняться из материалов группы НГ (негорючие) или защищены от возгорания бетонной стяжкой толщиной не менее 20 мм)
Предоставление дополнительной информации по объекту, организация осмотра и переговоров - по официальной заявке.
Стоимость
Стоимость объекта - 180 млн.руб.
Торг предусмотрен.
Стоимость180 млн. руб пересчитать в: долл евро |
Внимание! Здесь указана ориентировочная цена и параметры объекта. Пожалуйста, уточняйте информацию по телефону, e-mail или через форму обратной связи. |

















