Земельный участок под строительство 3-6-этажного жилого дома из 2-х корпусов, с разрешением на строительство, в Зеленогорске
Внимание! Данный объект снят с продажи!
фото
документы

чертёж межевания территории квартала - красные линии, линии связи, объекты инженерной и транспортной инфраструктур

чертёж межевания территории квартала - линии, обозначающие дороги, улицы, проезды; границы зон планируемого размещения объектов капитального строительства

чертёж межевания территории квартала - красные линии, линии отступа от красных линий, границы зон с особыми условиями использования территории
Земельный участок площадью 15 839 м2 под строительство 3-6-этажного жилого дома из 2-х корпусов, с разрешением на строительство, в Курортном районе, на ул. Строителей в городе Зеленогорск.
Расположение
Санкт-Петербург, Курортный район, г.Зеленогорск, ул. Строителей.
Правовая характеристика
Площадь земельного участка 15 839 м2
Категория земель: земли населённых пунктов.
Разрешённое использование: под строительство многоквартирного жилого дома.
Постановлением Правительства Санкт-Петербурга от 28.06.2011 г. утверждён проект планировки и межевания квартала:
Проектом планировки квартала, в котором расположен земельный участок, предусмотрена комплексная застройка территории.
Границами проекта квартальной планировки с проектом межевания территории, ограниченной ул.Строителей, проектным продолжением Торфяной ул., границей функциональной зоны "ПД", полосой отвода Октябрьской железной дороги в г.Зеленогорске, являются:
- на севере - полоса отвода Октябрьской железной дороги;
- на востоке - ул.Строителей;
- на юге - проектное продолжение Торфяной ул.;
- на западе - граница функциональной зоны "ПД".
Получено разрешение на строительство многоквартирного жилого дома.
С учётом требований Градплана, предельная высота здания -18 м.
Общая площадь объекта с учётом требований ППТ не более -
26 770 м2.
Вид права: собственность юридического лица.
Особенности
- Участок расположен на северо-западе г. Зеленогорска, в зелёной зоне.
- В 2 км от Финского залива.
- На участке несколько зданий промышленного назначения, подлежащих сносу. Общая площадь существующих строений: 1 326 м2.
Характеристики проекта
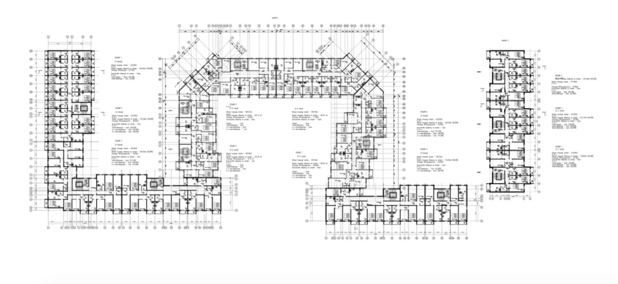
На территории земельного участка запланировано строительство 2-х жилых корпусов:
- первый корпус 6-этажный, высотой 18 м
- второй корпус 3-этажный, высотой 9.6 м.
Площадь застройки 5642.00 м2.
За счёт рациональной компоновки секций жилого дома создаются комфортные внутридворовые пространства, в которых размещаются благоустроенные площадки для детей и взрослых, а также спортивные площадки.
Въезды и выезды на территорию предусматриваются со стороны улицы Строителей, а также с проектируемых внутриквартальных проездов.
Основные технико-экономические показатели проекта (ТЭП)
- Площадь застройки - 5 815 м2
- Общая площадь квартир - 21 359.5 м2
- Количество этажей - 3-6 эт.
- Высота - до 18 м
- Подъезд к зданию организованы со стороны улицы Строителей.
Количество квартир:
- 1-комнатные - 121
- студии - 207
- 2-х комнатные - 103
- 3-х комнатные - 55
Окружение территории
- На смежном участке в перспективе будет размещен многоэтажный паркинг не менее чем на 250 машиномест.
- В непосредственной близости находятся образовательные учреждения г. Зеленогорска, общественно- деловые объекты и места для семейного отдыха.
Транспортная доступность
- В пешеходной доступности находится ж/д станция «Зеленогорск» и остановки маршрутных такси.
- До Санкт Петербурга возможно добраться по Приморскому шоссе или по КАД и ЗСД.
- Дорога до Санкт- Петербурга занимает около 40 минут.
Технические условия (ТУ)
- Водоснабжение
265.34 м3/сут.
Водоотведение:
252.3 м3/сут.
Заключён договор с ГУП «Водоканал Санкт-Петербурга» на присоединение к сетям водоснабжения и водоотведения.
Стоимость подключения 18 млн рублей, из которых оплачено 2.7 млн руб.
- Электроснабжение
767.4 кВА
Заключён договор с ЗАО «Курортэнерго» на присоединение к сетям электроснабжения.
Стоимость подключения 32.3 млн руб.
- Теплоснабжение
1.967 Гкал/час, в т. ч.:
отопление 1.277 Гкал/час,
горячее водоснабжение 0.69 Гкал/час.
Получены технические условия подключения к сетям теплоснабжения ООО «Петербургтеплоэнерго».
- Газоснабжение
288.7 м3/час.
Получены техническое условия ООО «Петербурггаз» на подключение к сетям газоснабжения.
Инвестиционная привлекательность
- Проект полностью готов к реализации. Получено разрешение на строительство. Заключены договоры на присоединение к сетям инженерного обеспечения.
- Хорошая транспортная и пешеходная доступность. Близость ж/д станции «Зеленогорск».
- Предложения в Курортном районе Санкт-Петербурга под многоэтажное жилищное строительство единичны. С учетом высокой степени готовности проекта к реализации предлагаемый объект в своем роде уникален.
- Проект сочетает в себе хорошее местоположение с точки зрения экологической обстановки и приемлемую транспортную доступность.
Предоставление дополнительной информации по объекту, организация осмотра и переговоров - по официальной заявке.
Стоимость
К продаже предлагается 100% долей компании, которая на правах собственности владеет земельным участком.
Стоить объекта 225 млн.руб.
Стоимость225 млн. руб пересчитать в: долл евро |
Внимание! Здесь указана ориентировочная цена и параметры объекта. Пожалуйста, уточняйте информацию по телефону, e-mail или через форму обратной связи. |













