Реконструкция здания на Среднем проспекте В.О.
Внимание! Данный объект снят с продажи!
Реконструкция 3-х этажного нежилого здания с устройством мансарды на земельном участке площадью 125 м2 на Среднем проспекте В.О.
Расположение
Санкт-Петербург, Василеостровский район, Средний проспект В.О.
В 1.3 км от станции метрополитена "Василеостровская".
Правовая характеристика
Границы земельного участка - по красной линии (по периметру здания). Возможность аренды прилегающего участка.
Вид права: земельный участок и здание в собственности юридического лица.
Особенности
Основные строительные показатели
- Площадь застройки - 125 м2
- Общая площадь здания - 373 м2
- Строительный объём здания - 1248.0 м3
Исходные данные для расчётов и проекта реконструкции
- Документация
Заключение о техническом состоянии строительных конструкций - подготовлено в 2010 г. Институтом строительных экспертиз.
- Административное здание класса Ф4.3 по функциональной пожарной безопасности.
Класс конструктивной пожарной безопасности - СО.
Степень огнестойкости - III, с пределом огнестойкости:
- несущих стен и лестничных клеток - не менее 1.5 ч (R60);
- лестничных маршей и площадок - 1 ч (R45);
- плит перекрытий и покрытий и покрытия - 0.75 ч (REI45).
Конструктивная схема
Реконструируемое здание
- год постройки 1920-1930
- нежилое
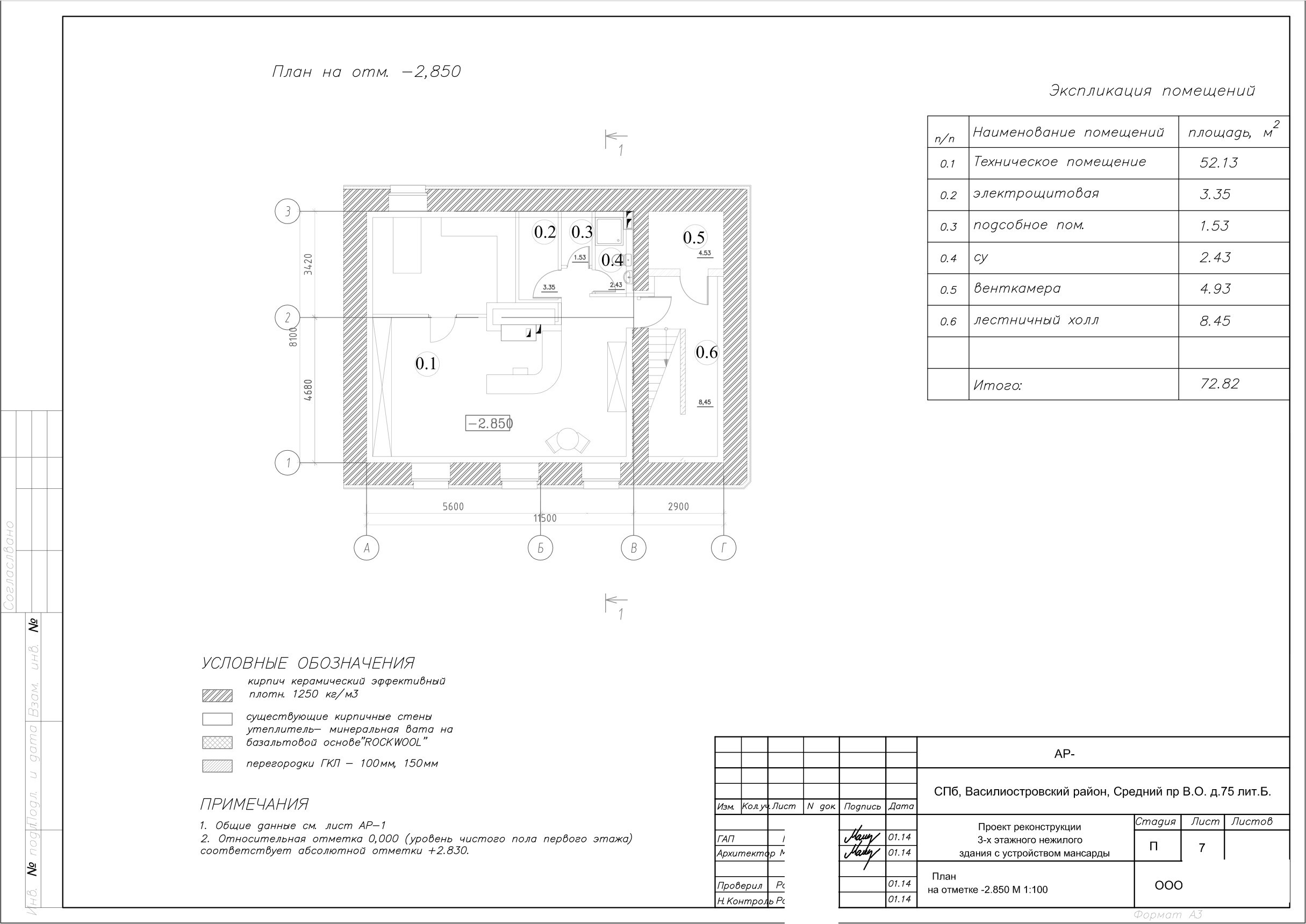
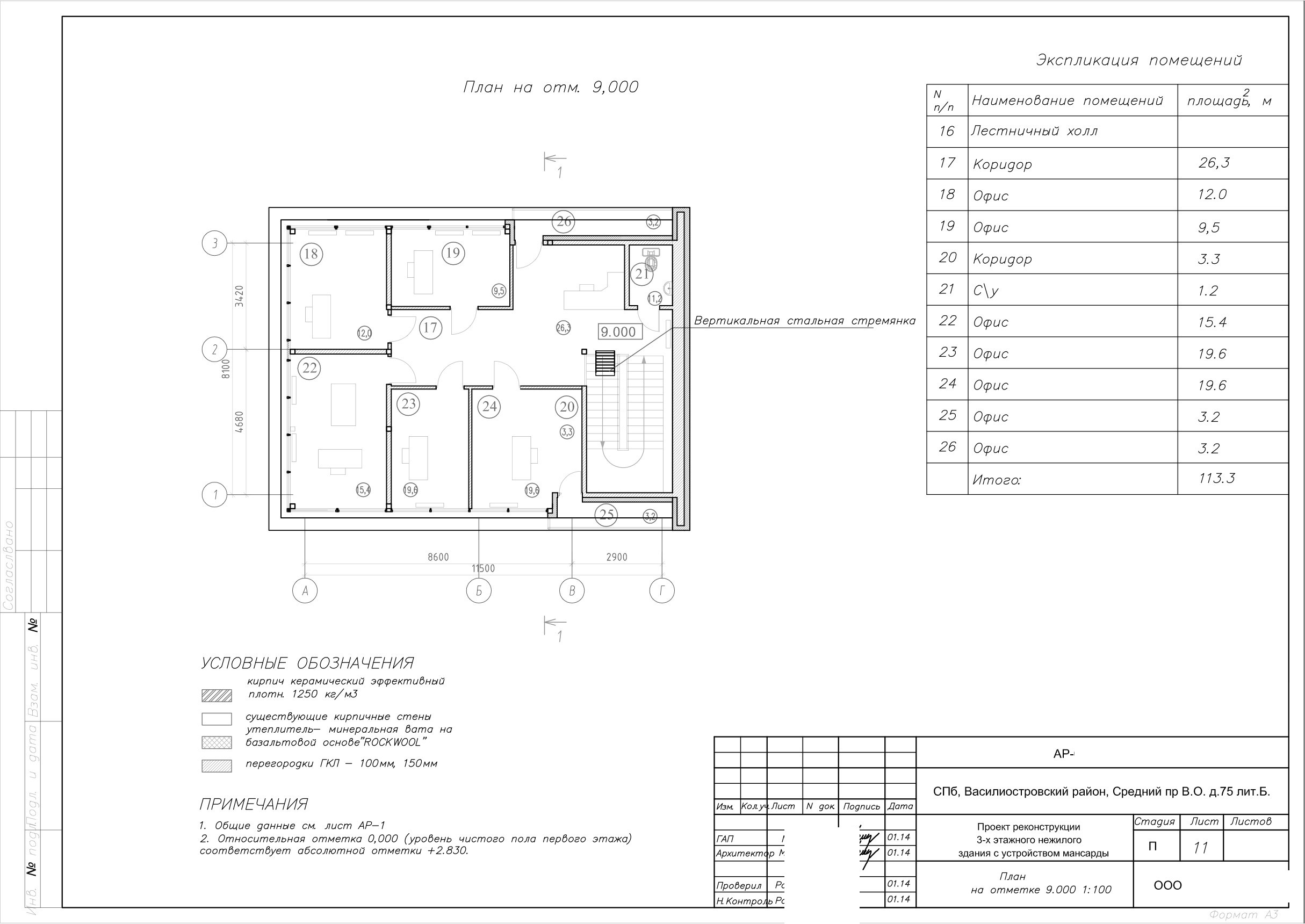
- этажность - 3. Цокольный этаж
- здание прямоугольной формы
- размеры в плане (в осях) - 11.5 х 8.1 м
- высота до конька - 13 м
- высота этажа - 3 м
- высота цокольного этажа - от 1.5 м до 1.7 м
Уровень ответственности – II
Здание кирпичное, с продольным расположением несущих стен, с перекрытиями и покрытием из металлических несущих двутавровых балок, а также деревянных балок и кирпичных сводов, по которым выполнено монолитное перекрытие.
Жёсткость и устойчивость здания обеспечивается жёсткостью кирпичной кладки. Наружные стены работают по жёсткой схеме. Опирание металлических балок на стены принято шарнирным.
Фундаменты здания
- из бутового камня
- ленточные - под стены, с шириной подошвы 900 мм
- столбчатые - под кирпичный столб, с размером в плане 1850 х 940 мм
- в основании фундаментов залегает песок пылевидный средней плотности частиц, насыщенный водой с расчётными характеристиками.
Углубление подвала
Устраивается железобетонная монолитная плита толщиной 200 мм:
- под плиту укладывается гидроизоляция - изопласт;
- по внутренней поверхности плита обрабатывается проникающей гидроизоляцией;
- для плиты используется бетон В25 W6 F150.
Наружные стены здания
- самонесущие;
- решены в виде стены из полнотелого кирпича КОРПо 1НФ/150/2.0/50 по ГОСТ 530-2007;
- толщина стен различная;
- перемычки в здании - бетонные.
Перекрытия
- Существующие перекрытия здания - железобетонные по металлическим или деревянным балкам, а также по кирпичным сводам (в части подвала);
- Перекрытия между:
1-м и подвальными этажами усиливаются;
между 1-м и 2-м, 2-м и 3-м – усиливаются,
между 3-м и мансардным – разбирается и устраивается новое монолитное;
- Усиление производится в соответствии с чертежами марки КМ и КЖ. С перекрытий снять существующую деревянную конструкцию до уровня верха металлических балок, уложить утеплитель 50 мм пеноплекс, по верху выполнить цементно-песчаную стяжку 50 мм.
Перегородки
- изготавливаются из газобетона (блоки из ячеистых бетонов стеновые мелкие III-В.275 D 500 F15-1);
- или изготавливаются из гипсокартонных листов с заполнением Isover «звукозащита».
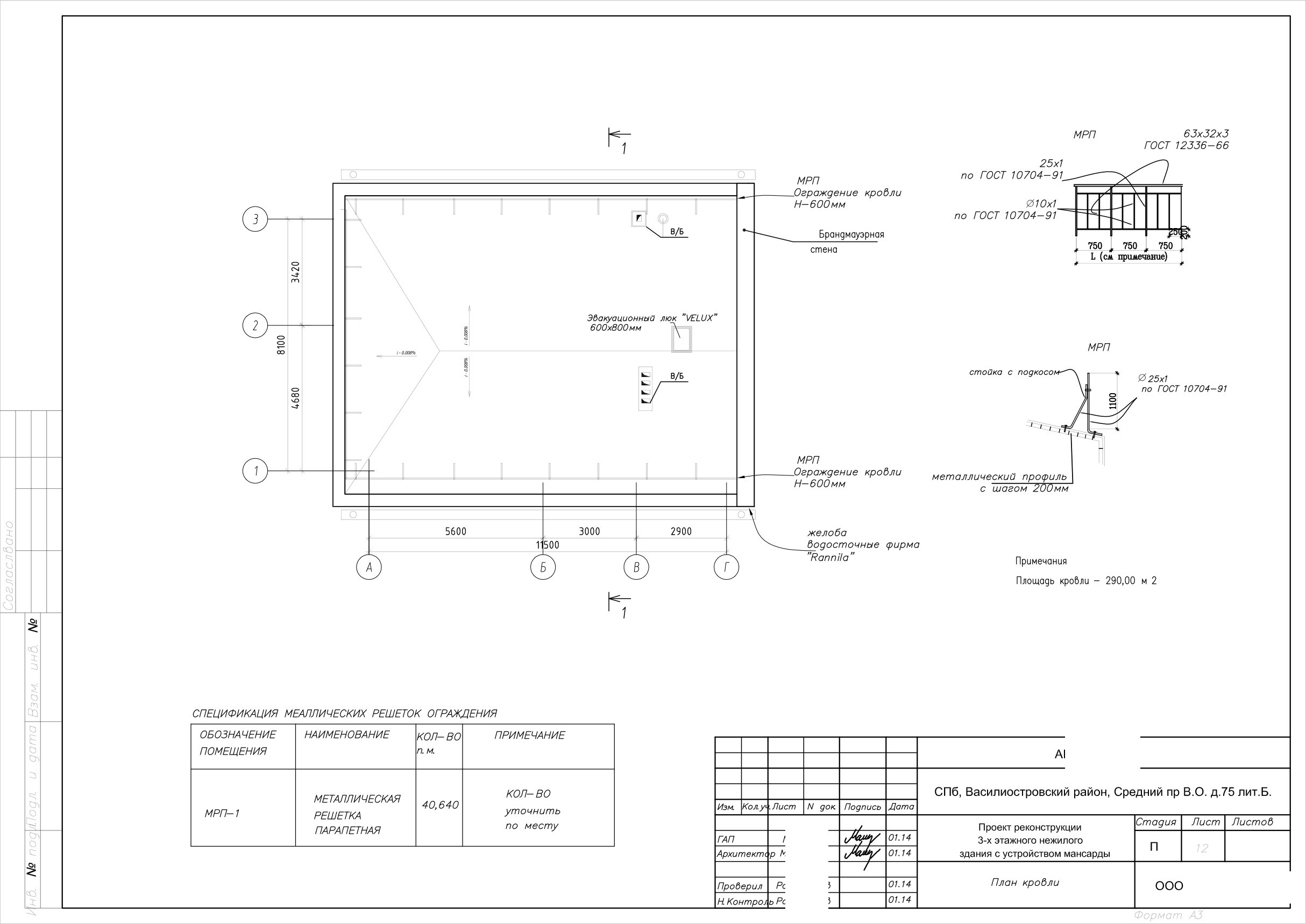
Кровля
- односкатная, выполненная по металлическим балкам мансарды;
- балки выполняются из стали С345.
Относительная отметка 0.000 (уровень чистого пола 1-го этажа) соответствует абсолютной отметке +2.830.
Защита помещений от сырости
- горизонтальная и вертикальная гидроизоляция фундаментов;
- устройство горизонтальной гидроизоляции по плите пола;
- несущие металлические конструкции для обеспечения требуемого предела огнестойкости (R90) обработать огнезащитными составами (огнезащитная краска или огнезащитные терморасширяющиеся материалы).
Внутренние перегородки 2-х видов:
- из 2-х слоёв гипрока с каждой стороны по металлокаркасу (шириной 100 мм);
- из 2-х слоёв гипрока с каждой стороны по двойному металлокаркасу (2 профиля шириной 50 мм каждый).
Обеспечение требований противопожарной безопасности и шумозащиты
- пустоты заполнить минераловатными плитами Rockwool типа Акустик Баттс, толщиной 100 мм, либо 2х50 мм;
- перегородки во влажных помещениях выполнить из влагостойкого гипрока;
- перегородки, отделяющие санузлы от лестничных клеток, выполнить кирпичными 120 мм.
- в тамбурах, санузлах, в помещениях, имеющих наружный вход или трапы, гидроизоляцию пола завести на стены на высоту 300 мм от уровня чистого пола.
Двери
- двери лестничных клеток оборудуются устройствами для самозакрывания изнутри без ключа, доводчиками и уплотнителями в притворах полиуретановыми прокладками (ГОСТ 10174-90);
- наружные двери, эвакуационные выходы снабжаются замками с устройством «антипаника».
Проектом предусматривается производство работ в летнее время. В зимний период работы выполнятся в соответствии со СНиП 2-22-81.
По периметру здания устраивается отмостка шириной 1000 мм по песчано-щебёночному основанию с уклоном i=0.05 от здания.
Фасад здания, фундаменты утеплить экструдированным пеностиролом 100 мм. Надземную часть фундамента, стены 1-го этажа облицевать материалом – искусственный камень по сетке.
Стены вышележащих этажей оштукатурить по сетке в соответствии с колерным бланком КГА.
Предоставление дополнительной информации по объекту, организация осмотра и переговоров - по официальной заявке.
Стоимость
Стоимость объекта - 45 млн.руб.
Стоимость45 млн. руб пересчитать в: долл евро |
Внимание! Здесь указана ориентировочная цена и параметры объекта. Пожалуйста, уточняйте информацию по телефону, e-mail или через форму обратной связи. |

















