Участок под АЗС по Новоприозерскому шоссе у посёлка Колясово
Внимание! Данный объект снят с продажи!
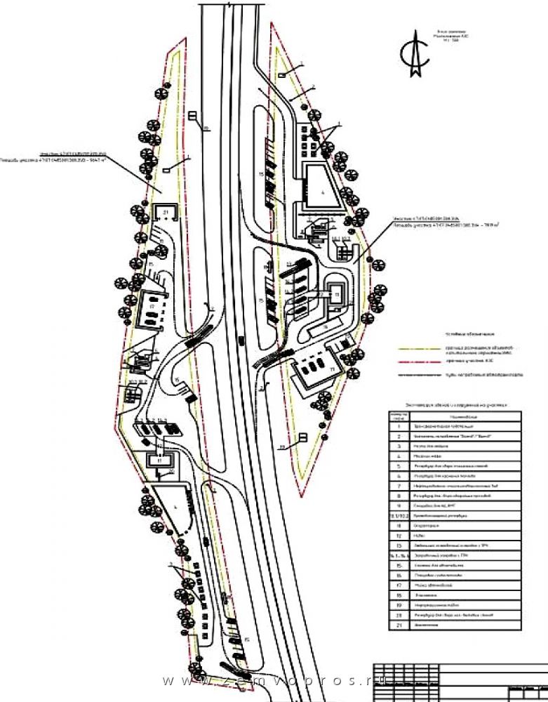
Земельный участок площадью 15 306 м2 под АЗС в массиве Скотное по Новоприозерскому шоссе (А121) между ТРК Мега-Парнас и развязкой на Токсово/Агалатово в районе посёлка Колясово
Расположение
Ленинградская область, Всеволожский район, дер. Колясово, массив Скотное, Новоприозерское шоссе
- 7 км от КАД
- 10.8 км от станции метро «Парнас»
- 34 км Новоприозерского шоссе
Правовая характеристика
Площадь земельного участка 15 306 м2
Категория земель: земли промышленности
Разрешенное использование: автозаправочные станции
Вид права: собственность физического лица
Особенности
- участок многоконтурный, с зеркальным расположением частей участка
- состоит из 2-х участков меньшей площади:
- участок по направлению в Санкт-Петербург - площадь 9 647 м2
- участок по направлению из Санкт-Петербурга - площадь 5 659 м2
- состоит из 2-х участков меньшей площади:
- участки примыкают слева и справа к автодороге Санкт-Петербург-Приозерск (Новоприозерское шоссе):
- 4-х полосная дорога категории 1-б
- ширина проезжей части - 7.5 м в каждом направлении, с разделительной полосой посередине
- интенсивность движения - свыше 14 тысяч автомобилей в сутки
- трасса Санкт-Петербург-Сортавала - основа сети региональных дорог на Карельском перешейке и Карелии
- дороге присвоен статус федеральной
- дорога обеспечивает транспортные потоки из Санкт-Петербурга через Приозерск в Карелию и соединяет сеть российских дорог с ключевыми европейскими трассами через Финляндию
- с одной стороны автодороги оборудован съезд на участок. По съезду с другой стороны получены ТУ от Комитета по дорожному хозяйству администрации Ленинградской области.
Границы участка
- по направлению из Санкт-Петербурга - с АЗС Несте (АЗС расположена дальше за участком по направлению движения)
- по направлению в Санкт-Петербург - с АЗС ВР (АЗС расположена перед участком по направлению движения)
Техническая документация
- ТУ на водоснабжение
- 13.8 м3/сут, напор 4 кг/см3.
- срок действия истёк - возможность продления
- ТУ на водоотведение
- 9.2 м3/сут.
- срок действия истёк - возможность продления
- договор на электроснабжение
- 200 кВт, 3 категория.
- срок действия истёк - возможность продления.
- ТУ на съезд в направлении г. Санкт-Петербург:
- для участка по направлению из Санкт-Петербурга ТУ не требуются, так как есть существующий съезд
- возможность газоснабжения
Особенности продажи
Продажа земельных участков под АЗС одним лотом
Предоставление дополнительной информации по объекту и организация осмотра и переговоров - по официальной заявке
Стоимость52 млн. руб пересчитать в: долл евро |
Внимание! Здесь указана ориентировочная цена и параметры объекта. Пожалуйста, уточняйте информацию по телефону, e-mail или через форму обратной связи. |
Расстояние до Санкт-Петербурга
7 км. (указано расстояние до КАД Санкт-Петербурга по прямой).











