Участок под многоквартирный дом, с проектом, ГПЗУ, СПОЗУ, на Ириновском проспекте
Внимание! Данный объект снят с продажи!
Земельный участок площадью 2333 м2 на инвестусловиях с проектом строительства многоквартирного жилого дома со встроенными помещениями подземной автостоянкой, с ГПЗУ, согласованным СПОЗУ, положительным заключением экспертизы, на Ириновском проспекте
Расположение
Санкт-Петербург, Красногвардейский район, Ириновский проспект, северо-восточнее дома 41, корпус 1, литера А по Ириновскому проспекту
Правовая характеристика
Площадь участка 2 333 м2
Категория земель: земли населённых пунктов
Разрешённое использование: для строительства дома (жилых домов)
Назначение: для осуществления Инвестиционного проекта по проектированию и строительству многоквартирного дома
Вид права: временное владение и пользование с 6.10.2011 г. по 27.10.2014 (аренда на инвестиционных условиях на срок строительства многоквартирного дома)
- общая сумма арендной платы - 72 600 000 руб.
- ставка арендной платы 60 030.44 руб./год.
Обременения
Охранные зоны - с юго-восточной стороны участка:
- охранная зона водопроводных сетей площадью 347 м2
- охранная зона газораспределительной сети площадью 57 м2
- зона канализационных сетей площадью 507 м2
Соответствие Генеральному плану и ПЗЗ
Территориальная зона ТЗЖ2 - жилая зона среднеэтажных и многоэтажных многоквартирных жилых домов, расположенных вне территории исторически сложившихся районов центральной части Санкт-Петербурга, с включением объектов социально-культурного и коммунально-бытового назначения, связанных с проживанием граждан, а также объектов инженерной инфраструктуры
Градостроительным регламентом зоны ТЗЖ2 размещение многоквартирных домов, паркингов отнесено к основному разрешённому виду использования земельного участка и объекта капитального строительства
- Распоряжение КГА от 14.06.2011 г. об утверждении ГПЗУ с разрешённым видом использования - для размещения многоквартирного дома
- Положительное заключение экспертизы проекта
- Согласование 24.08.2012 г. главным архитектором Санкт-Петербурга объёмно-пространственного и архитектурного решения, генерального плана на стадии «проект» многоквартирного дома по указанному адресу
Высота здания
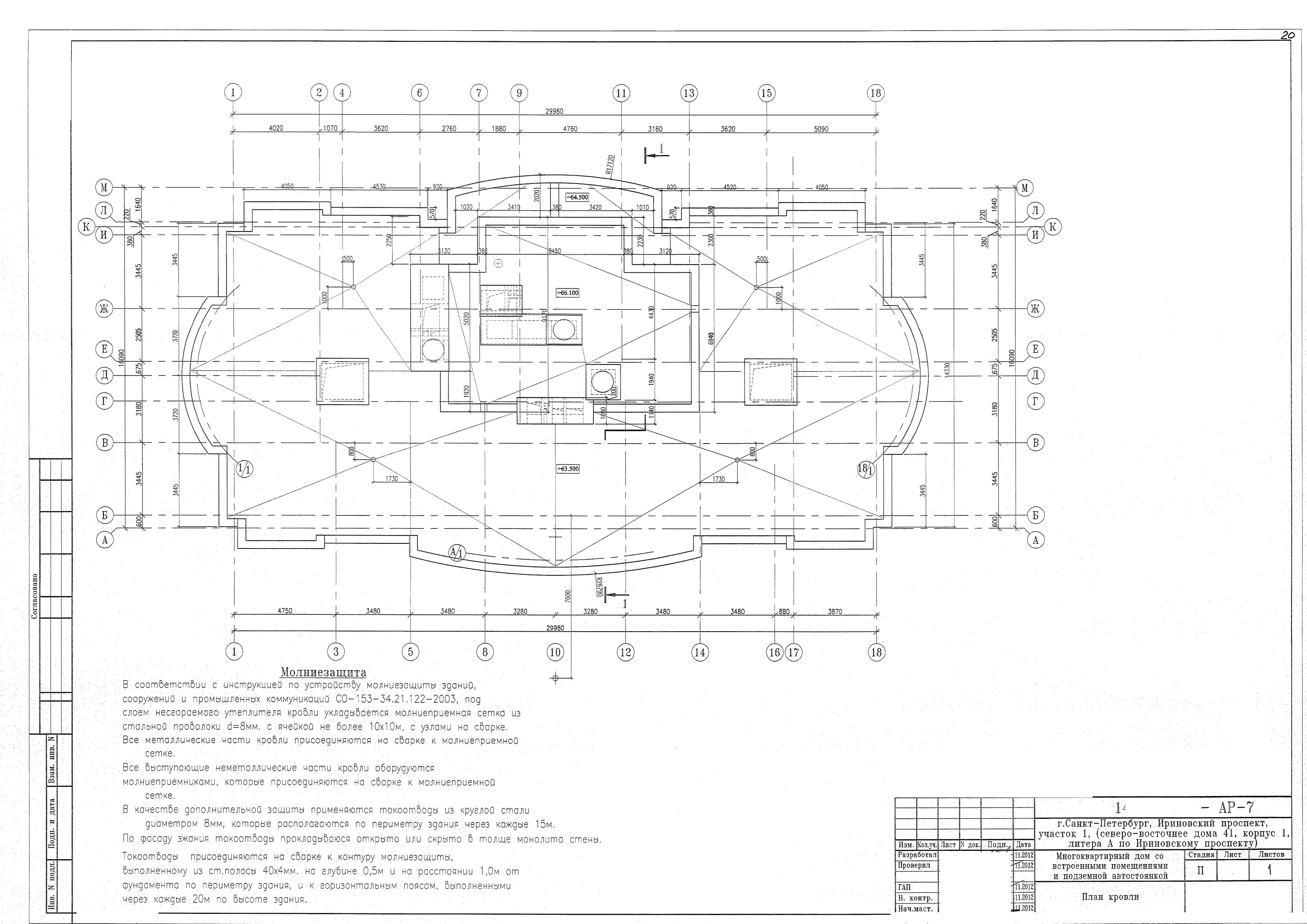
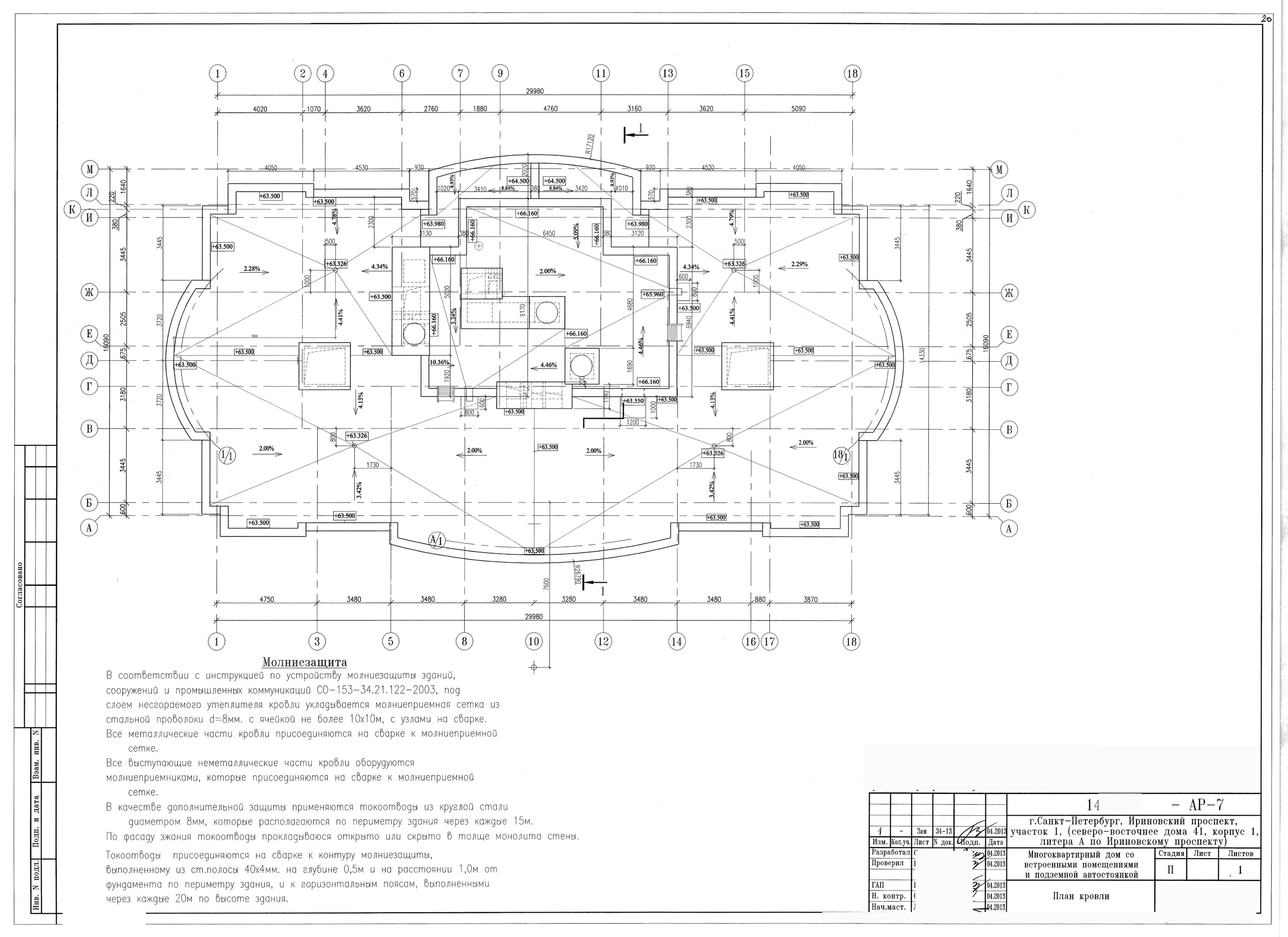
В соответствии с ППТ, утверждённым Постановлением Правительства Санкт-Петербурга 07.12.2010 г. № 1664, высота здания составляет 20 этажей (67.5 м).
Выполненная оплата по договорам
Собственником объекта оплачено по договорам:
- Инвестиционный договор от 6.10.2011 г.:
- цена договора 72 600 000 руб.
- оплачено по договору 44 700 523 руб.
- остаток 27 899 477 руб.
- Договор подряда на выполнение проектных работ от 20.12.2011 г.:
- цена договора 12 857 429 руб.
- оплачено по договору 8 546 454 руб.
- остаток 4 310 975 руб.
- Договор о подключении к сетям водоснабжения и водоотведения от 9.08.2012 года:
- цена договора 13 328 570 руб.
- оплачено по договору 6 664 285 руб.
- остаток 6 664 285 руб.
- Договор о подключении к тепловым сетям от 1.10.2012 г.:
- цена договора 7 288 600 руб.
- оплачено по договору 4 737 590 руб.
- остаток 2 549 010 руб.
- Договор о подряда на проектирование и согласование наружных тепловых сетей и индивидуального теплового пункта от 8.10.2012 г.,
- цена договора 380 000 руб
- оплачено по договору 190 000 руб.
- остаток 190 000 руб.
- Договор об осуществлении технологического присоединения к электросетям от 12.12.2012 г.:
- цена договора 17 213 899 руб.
- оплачено по договору 6 885 559 руб.
- остаток 10 328 340 руб.
- Договор ведения регламента обращения со строительными отходами от 18.04.2013 г.:
- цена договора определяется по сумме заказанных этапов.
- выплачен аванс 260 000 руб
Итого: общая сумма, подлежащая оплате - 51 942 087 руб.
Особенности
- Территория проектируемого жилого дома ограничена:
- с северо-запада - Ириновским проспектом
- с северо-востока - улицей Коммуны
- с юго-востока - 5-й Жерновской улицей
- с юго-запада - существующей жилой застройкой
- Территория участка свободна от застройки
- На территории участка есть зелёные насаждения, подлежащие вырубке.
- Рельеф:
- ровный
- отметки от 10.00 до 11.00
- На расстоянии 50 м от участка - лесопарковая зона, служащая местом отдыха жителей района
Параметры проектируемого строительства
Проектом предусматривается:
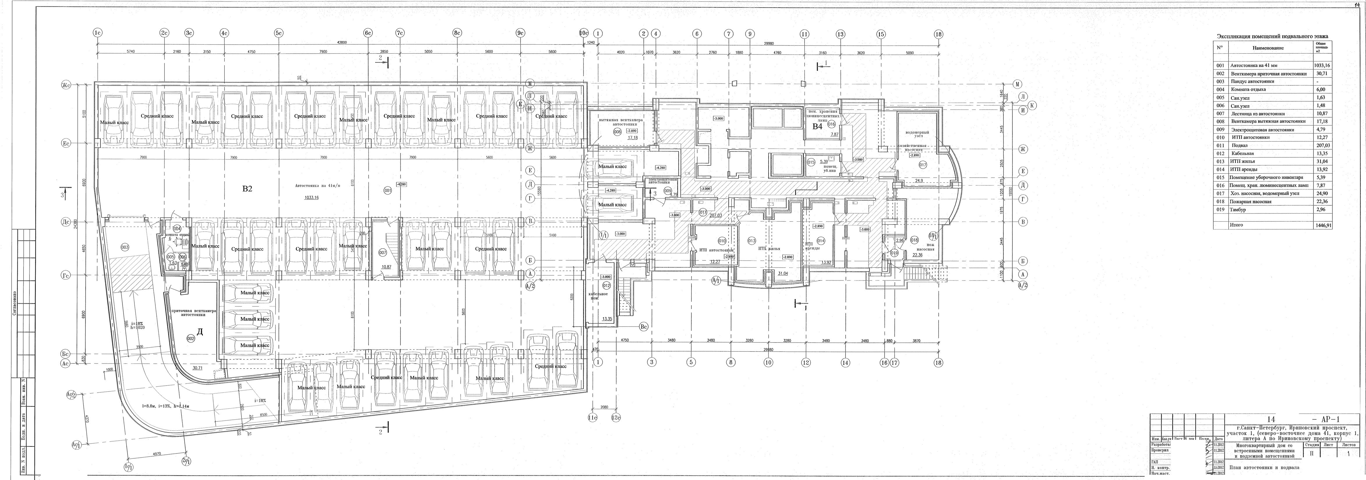
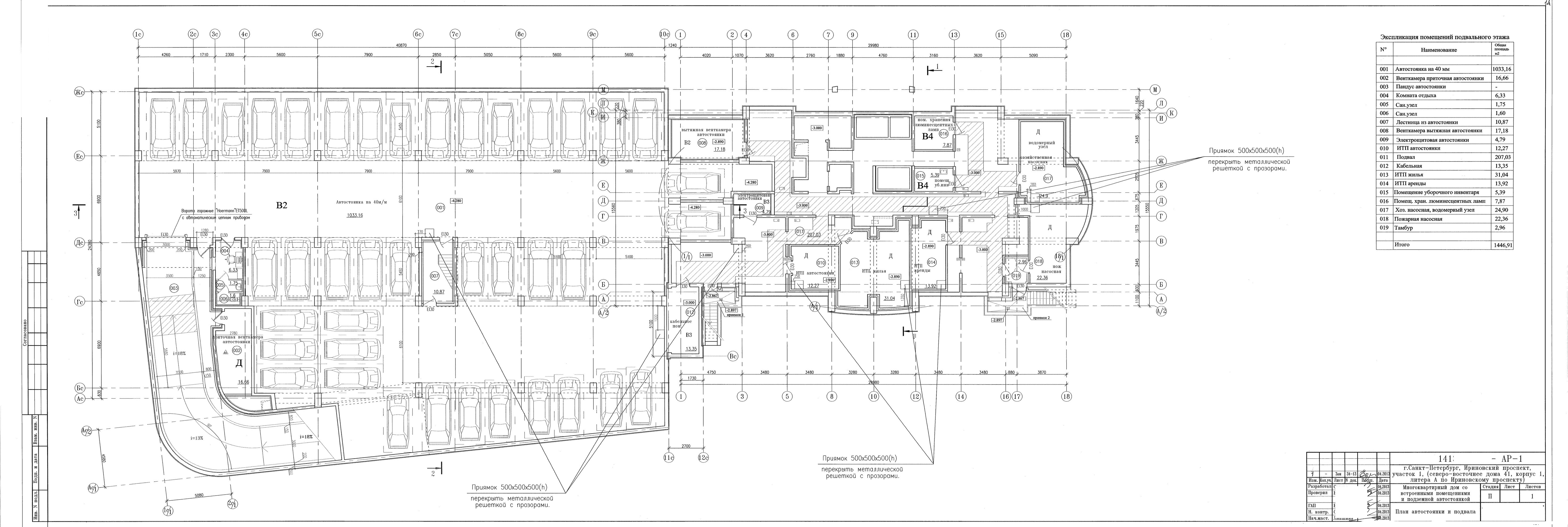
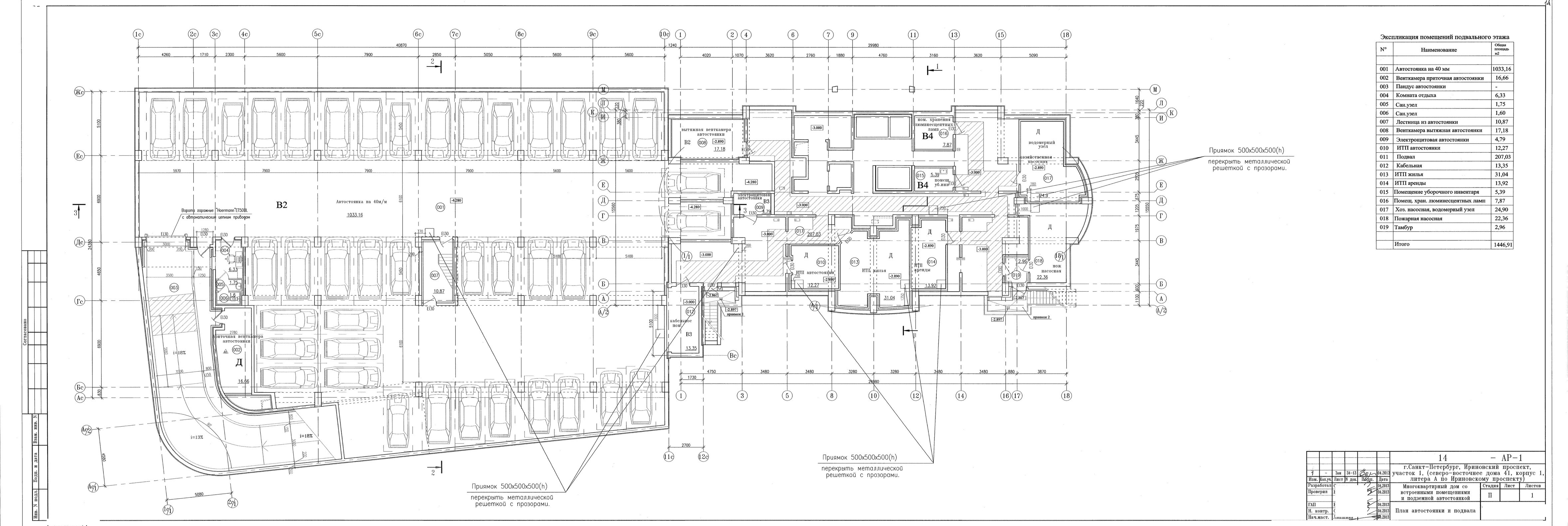
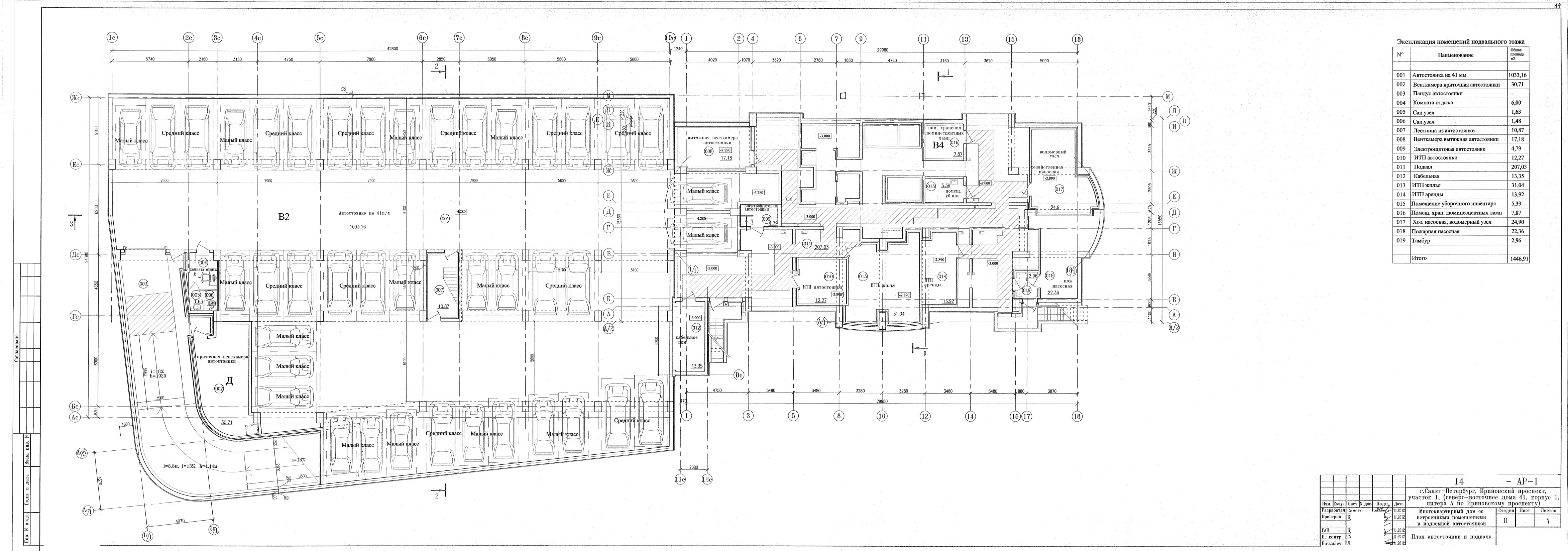
- размещение на земельном участке многоквартирного жилого дома со встроенными помещениями подземной автостоянкой на 40 м/м, открытой автостоянки на 6 м/м,площадки для детей дошкольного возраста, площадки для отдыха взрослого населения, физкультурной площадки
- запроектирована подземная автостоянка на 204 м/м, оставшиеся 25 м/м будут размещены в подземной автостоянке
Для защиты от шума предусмотрена установка шумозащитного экрана со стороны Ириновского проспекта.
На расстоянии 50 м от участка - лесопарковая зона, служащая местом отдыха жителей района.
Основной подъезд к зданию (на эксплуатируемую кровлю автостоянки) и въезд во встроенную автостоянку - со стороны 5-й Жерновской ул.
ТЭП
- площадь земельного участка - 2 333.0 м2
- площадь застройки - 671 м2
- строительный объём - 38 135 м3, в т.ч.:
- надземной части - 32 408.0 м3
- подземной части - 5 727 м3
- общая площадь здания - 10 173.0 м2
- площадь подвала - 416 м2
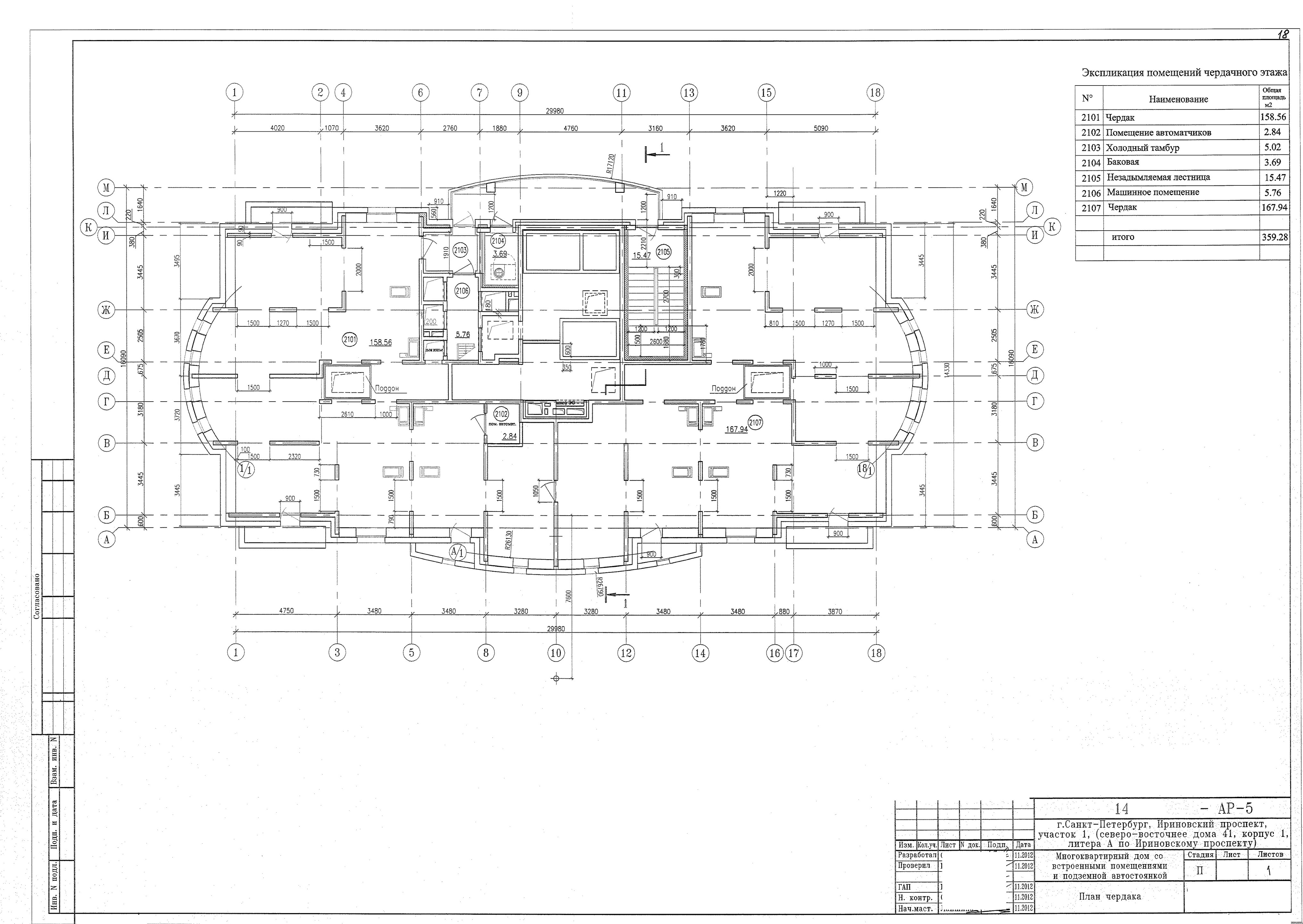
- площадь чердака - 483 м2
- оплощадь квартир с учётом лоджий и балконов - 5 526 м2
- общая площадь квартир (без учёта лоджий) - 5 435 м2
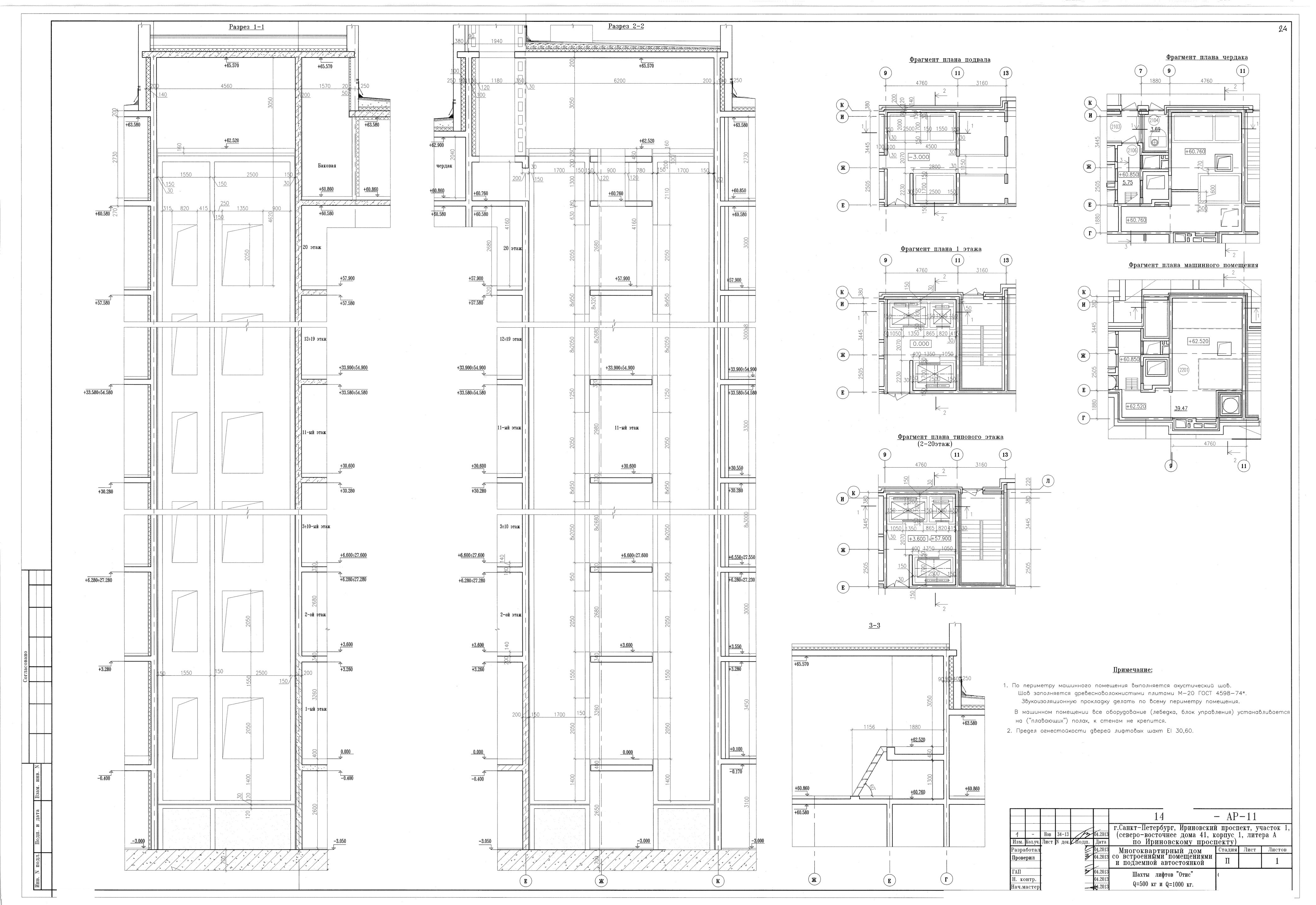
- этажность -20
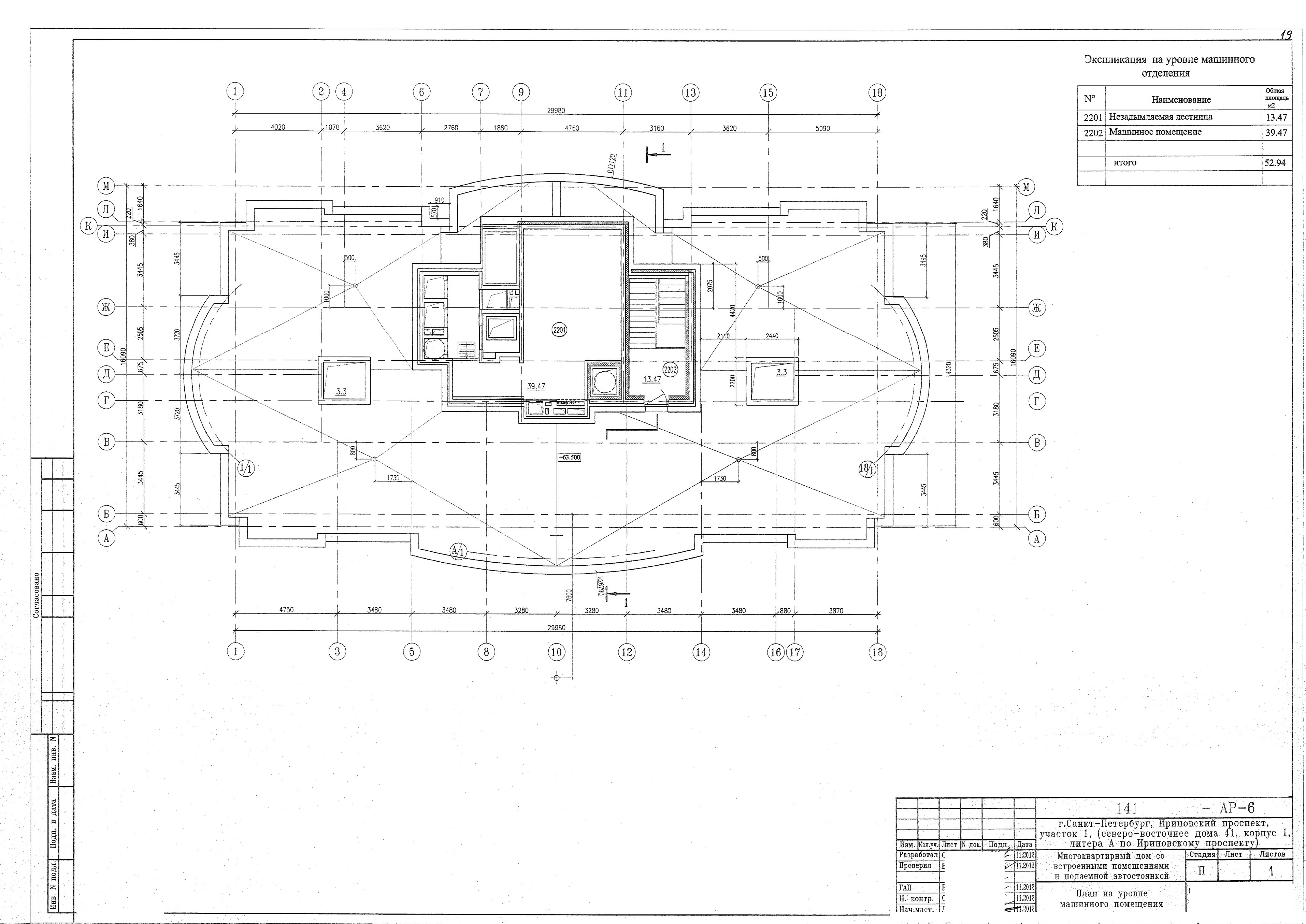
- количество этажей - 21:
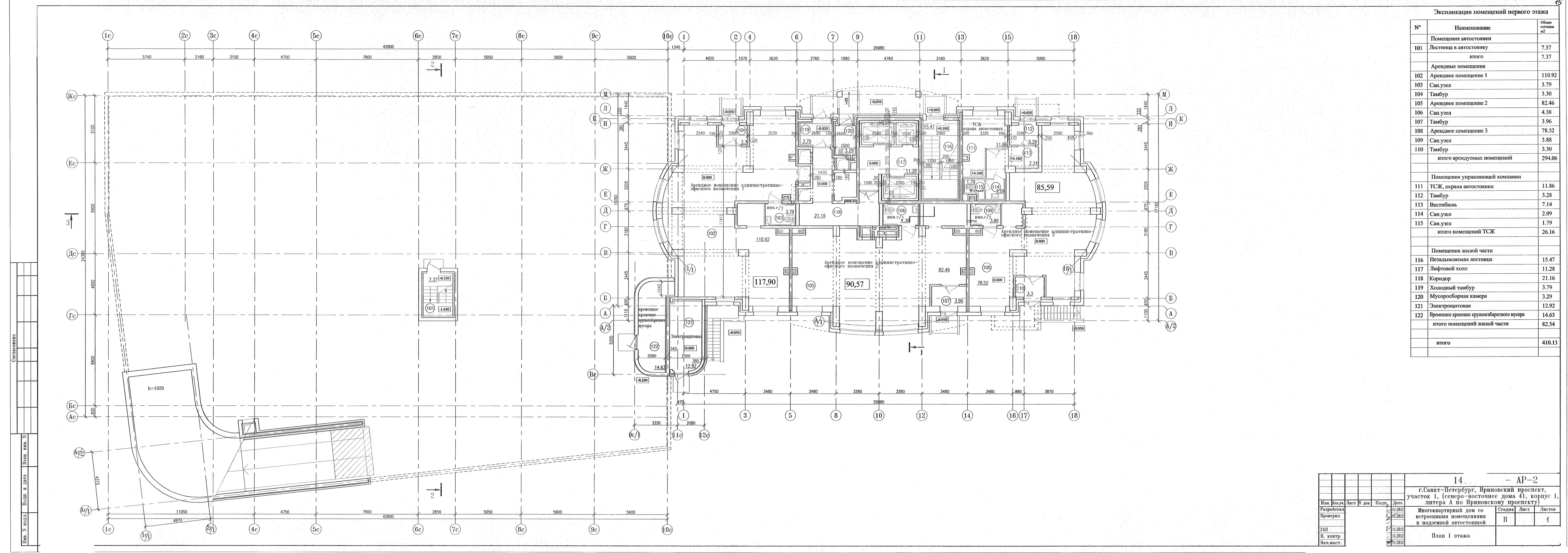
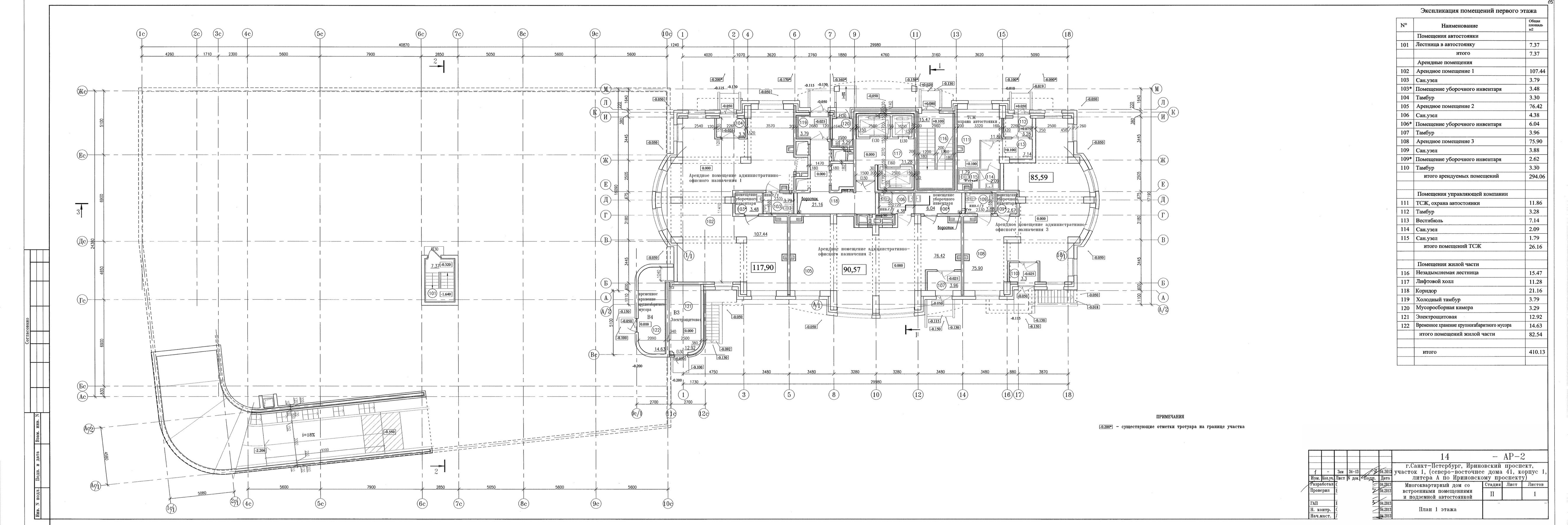
- 1-й этаж - коммерческие помещения площадью:
- 294.1 м2
- 117.9 м2
- 90.6 м2
- 85.6 м2
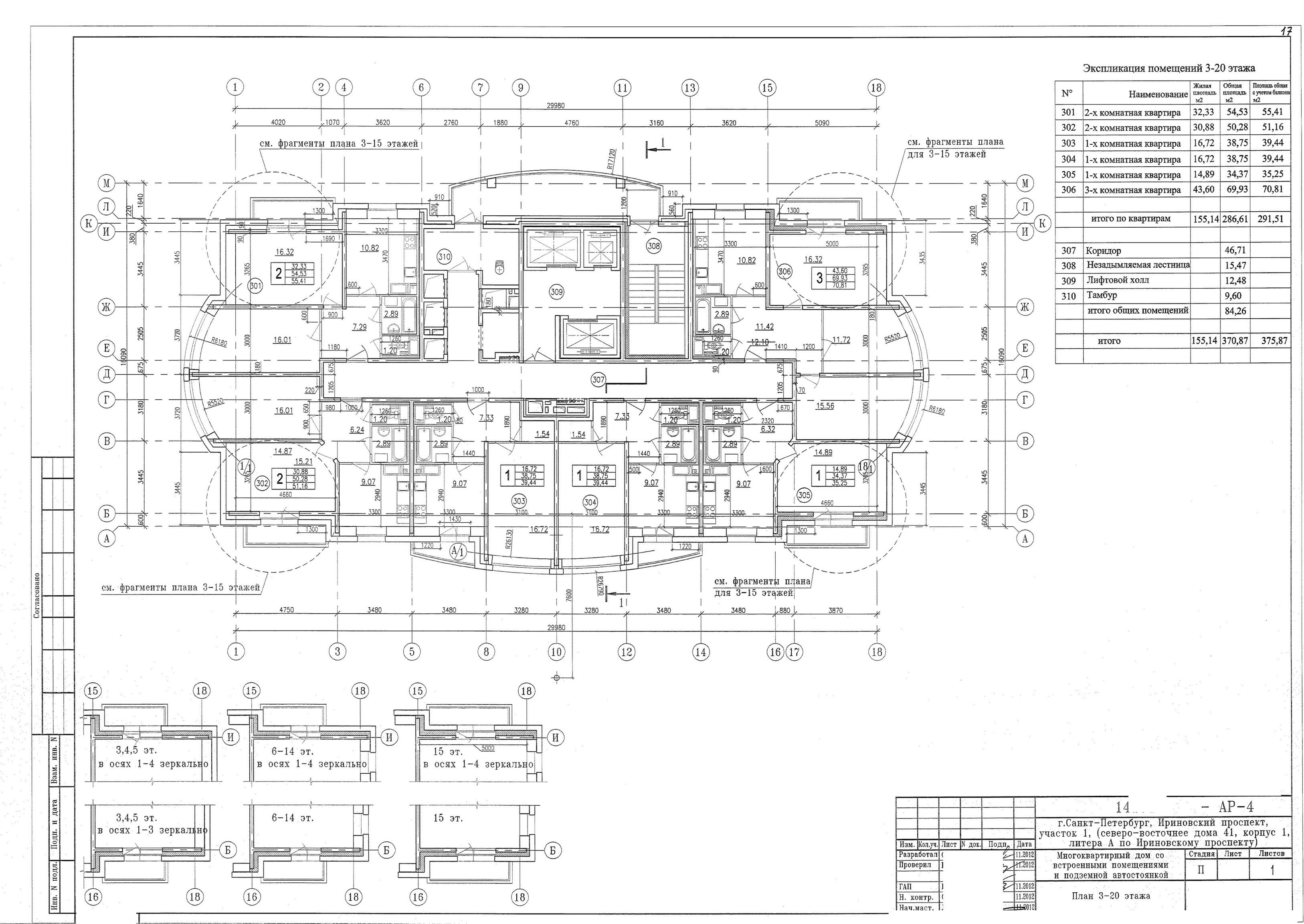
- жилая часть - 19 этажей:
- без учета лоджий и балконов 5435.0 м2
- с учетом лоджий и балконов 5526.0 м2
- технический этаж 1
- 1-й этаж - коммерческие помещения площадью:
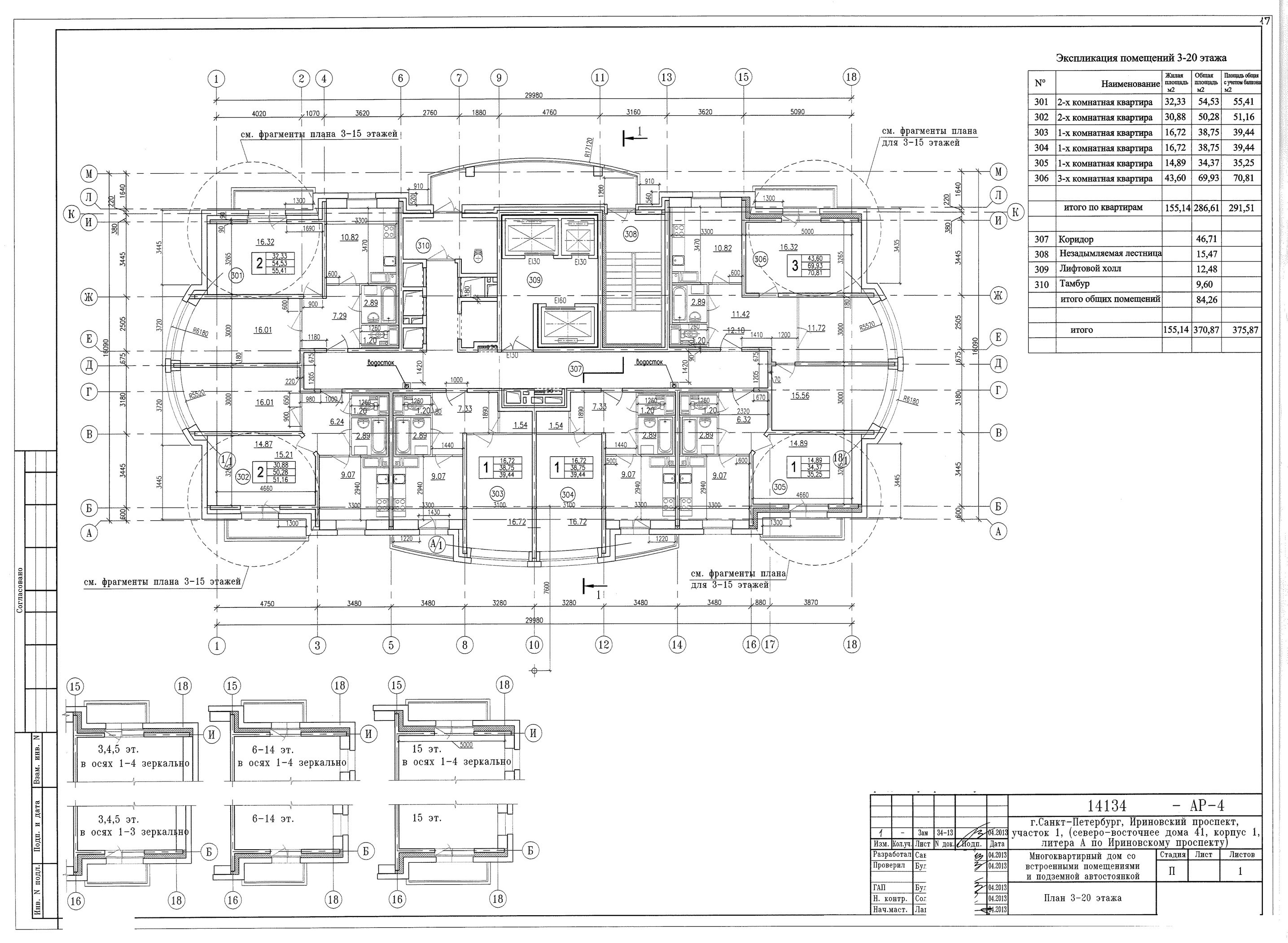
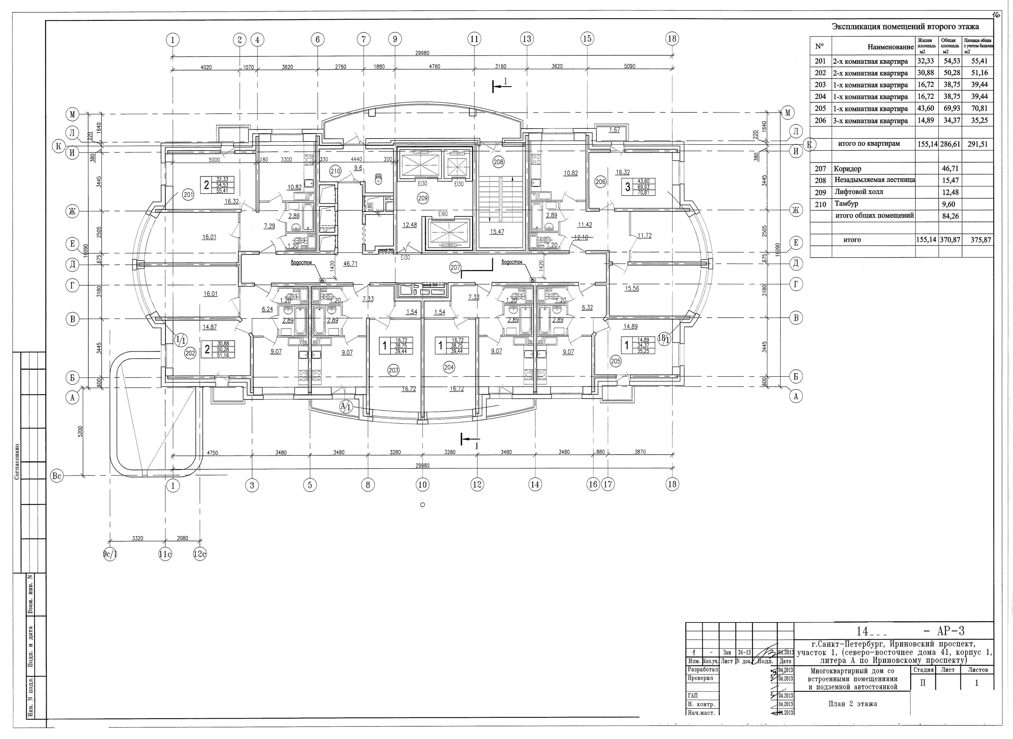
По объёмно-планировочному решению жилой дом представляет собой 20-этажное односекционное здание прямоугольной формы на 114 квартир:
- 1-комнатные - 57
- 2-х комнатные - 38
- 3-х комнатных - 19
Площадь квартир - от 33 до 70 м2
Баланс территории
- площадь участка - 2 333 м2
- площадь застройки - 671 м2
- площадь проездов - 348 м2
- площадь тротуаров - 90 м2
- площадь отмостки - 106 м2
- площадь озеленения 1 253 м2, в т.ч.:
- площадь газонов 492 м2
- площадь газонов над автостоянкой 509 м2
- озеленяемая кровля пандуса и лестницы автостоянки, входящая в площадь застройки, 135 м2
- детская игровая площадка 55 м2
- площадка отдыха для взрослых 31 м2
- физкультурная площадка 27 м2
- площадь набивных покрытий 4 м2
Коэффициент использования территории участка 2.3
Остаток (общая задолженность) по официальным выплатам
Общая сумма, подлежащая оплате по договорам - 51 942 087 руб.
Оставшаяся часть отчислений городу - 40 млн.руб.
Предоставление дополнительной информации по объекту, организация осмотра и переговоров - по официальной заявке
Стоимость70 млн. руб пересчитать в: долл евро |
Внимание! Здесь указана ориентировочная цена и параметры объекта. Пожалуйста, уточняйте информацию по телефону, e-mail или через форму обратной связи. |





































