Участок под отель, ТРЦ или многоквартирный дом на Лиговском пр-те
Внимание! Данный объект снят с продажи!
фото
документы
Земельный участок площадью 616 м2 со зданием под реконструкцию для строительства бизнес-центра со встроенной автостоянкой на Лиговском проспекте.
Расположение
Санкт-Петербург, Лиговский проспект, д.52, лит. В.
- возле отеля "ИБИС"
- в 600 м от станций метрополитена "Владимирская", "Пл.Восстания"
- в шаговой доступности от Московского вокзала.
Правовая характеристика
1. Земельный участок
Площадь земельного участка 616 м2
Категория земель: земли поселений.
Разрешённое использование: под строительство бизнес-центра со встроенной автостоянкой.
В соответствии с ПЗЗ Санкт-Петербурга объект находится в функционалной зоне ТД 1-1.
ТД 1-1 - общественно-деловая зона объектов многофункциональной общественно-деловой застройки и жилых домов, расположенных на территории исторически сложившихся районов города и исторических пригородов, с включением объектов инженерной инфраструктуры.
Цели выделения зоны:
- развитие существующих и преобразуемых территорий (включающих исторический центр Санкт-Петербурга и центрыего исторических пригородов), предназначенных для размещения общественно-деловых объектов, с формированием на их основе комплексных многофункциональных зон общественно-деловой и сочетающейся с ней жилой застройки;
- развитие сферы социального и культурно-бытового обслуживания для обеспечения портебностей жителей указанных территорий и "дневного населения" в соответствующих среде формах;
- развитие необходимых объектов инженерной инфраструктуры.
Обременения: объединённая охранная зона центральных районов площадью 616 м2.
2. Здание
Нежилое.
Этажность - 3
Площадь здания 995.5 м2
Приобретено по договору купли/продажи в 2003 г.
Объекты культурного наследия непосредственно к зданию не примыкают (письмо КГИОП).
3. Вид права:
земельный участок под зданием и здание в собственности юридического лица.
Особенности
- Здание на территории неэксплуатируемое, все коммуникации отключены.
- Здание может быть снесено. Письмо КГИОП, экспертиза разрешающая снос и строительство нового здания взамен существующего.
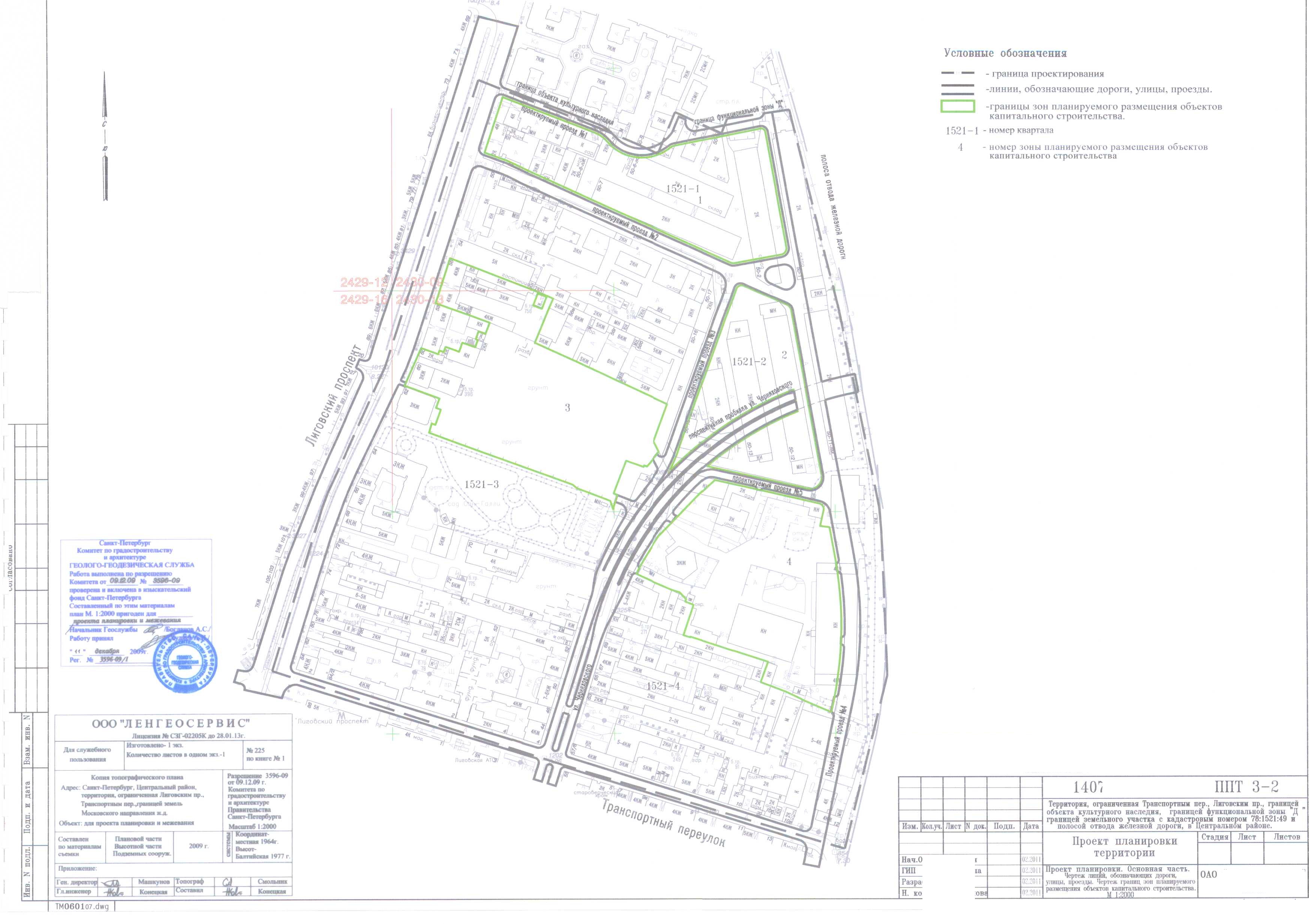
- Разработан проект планировки территории (Постановление Правительства Санкт-Петербурга от 13.9.2011 г.), не предусматривающий изъятие здания под городские проекты. Согласован с КГИОП в части генерального плана, габаритов предельной высоты здания на основании историко-культурной экспертизы земельного участка, согласованной с КГИОП 20.02.2006 г.
-
Границами проекта планировки территории (ППТ), ограниченной Транспортным пер., Лиговским пр., границей объекта культурного наследия регионального значения "Доходный дом А.Н. Перцова", границей функциональной зоны "Д", границей земельного участка с кадастровым номером 78:1521:49, линией отвода железной дороги, проектируемым проездом №4 в Центральном районе, являются:
с севера - граница объекта культурного наследия регионального значения "Доходный дом А.Н. Перова";
с юга - Транспортный пер.,
с запада - Лиговский пр.,
с востока - линия отвода железной дороги, проектируемым проездом №4.
- Строительство нового здания взамен существующего можно осуществлять в красных линиях "старого".
- Выгодное расположение объекта для постройки бизнес-центра.
- Возможность согласования собственного выхода в соседний двор.
- Выполнены предпроектный проработки с объемно-планировочными показателями, планами этажей.
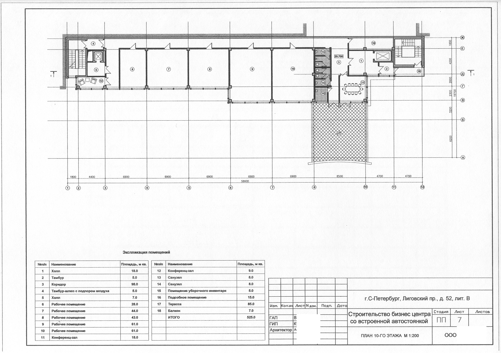
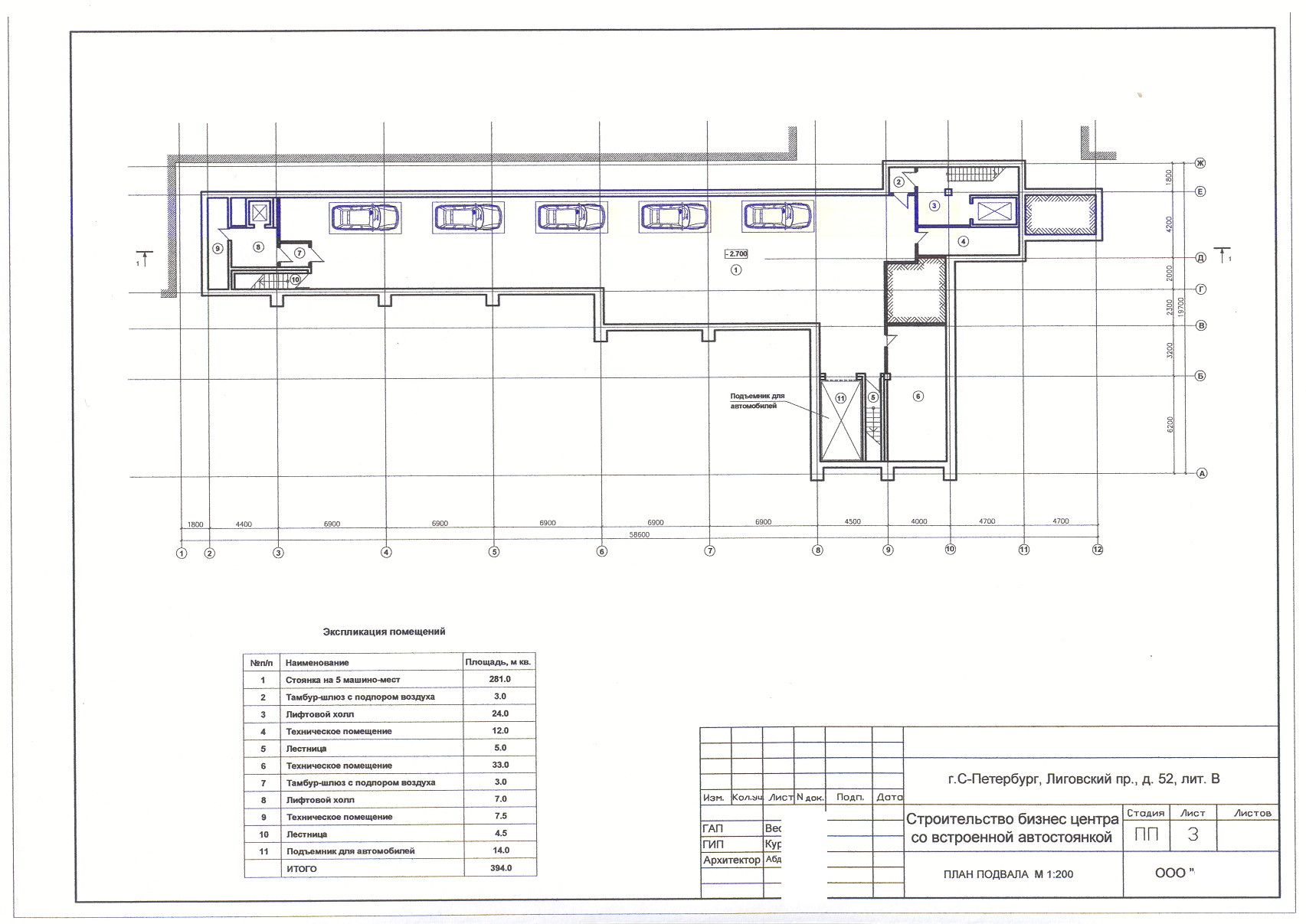
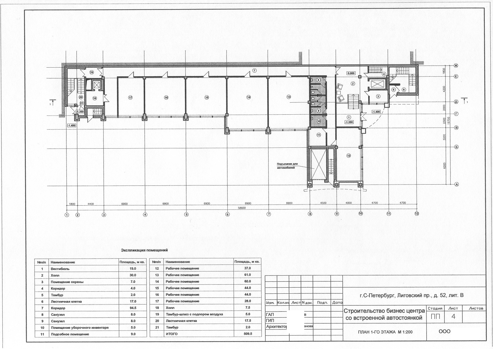
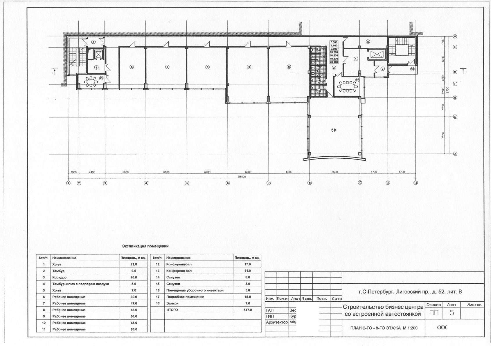
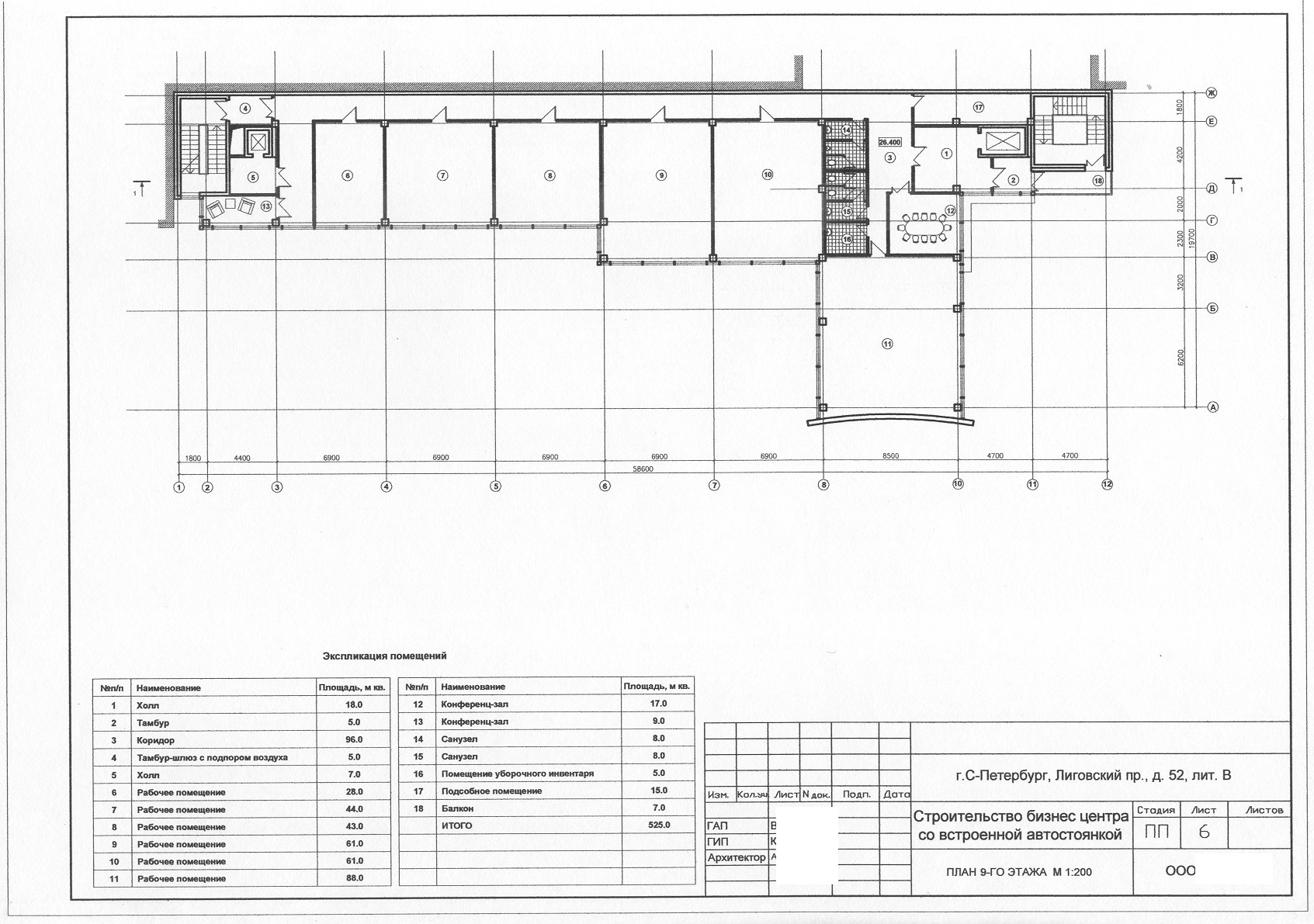
- Разработан проект 10-ти этажного бизнес- центра с подземной парковкой:
площадь от 7 000 до 10 000 м2 офисных помещений.
- Возможность строительства более высокого здания по другому проекту.
Предоставление дополнительной информации по объекту и организация осмотра и переговоров - по официальной заявке.
Стоимость
Стоимость объекта - 150 млн.руб.
Стоимость150 млн. руб пересчитать в: долл евро |
Внимание! Здесь указана ориентировочная цена и параметры объекта. Пожалуйста, уточняйте информацию по телефону, e-mail или через форму обратной связи. |




































