Земельный участок под строительство административно-делового комплекса с разрешением на строительство у строящейся станции метро "Казаковская" на проспекте Маршала Казакова
Внимание! Данный объект снят с продажи!
фото
документы
Земельный участок площадью 3 765.0 м2 под строительство административно-делового комплекса с полученным разрешением на строительство на выходе из строящейся станции метрополитена "Казаковская" на проспекте Маршала Казакова.
Расположение
Санкт-Петербург, ул. Маршала Казакова, участок 3 (северо-западнее пересечения с проспектом Маршала Жукова).
Правовая характеристика
Категория земель: земли населённых пунктов.
Назначение: строительство административно-делового комплекса.
Вид права: собственность юридического лица.
Первый этаж здания - останется в собственности застройщика и долевых участников проекта.
Особенности
- Строящийся административно-деловой центр - один из самых привлекательных торгово-офисных объектов Петербурга.
- Современные технологии строительства и эффективные планировочные решения делают проект наиболее востребованным в своем сегменте.
- Получено разрешение на строительство. На участке начаты строительные работы.
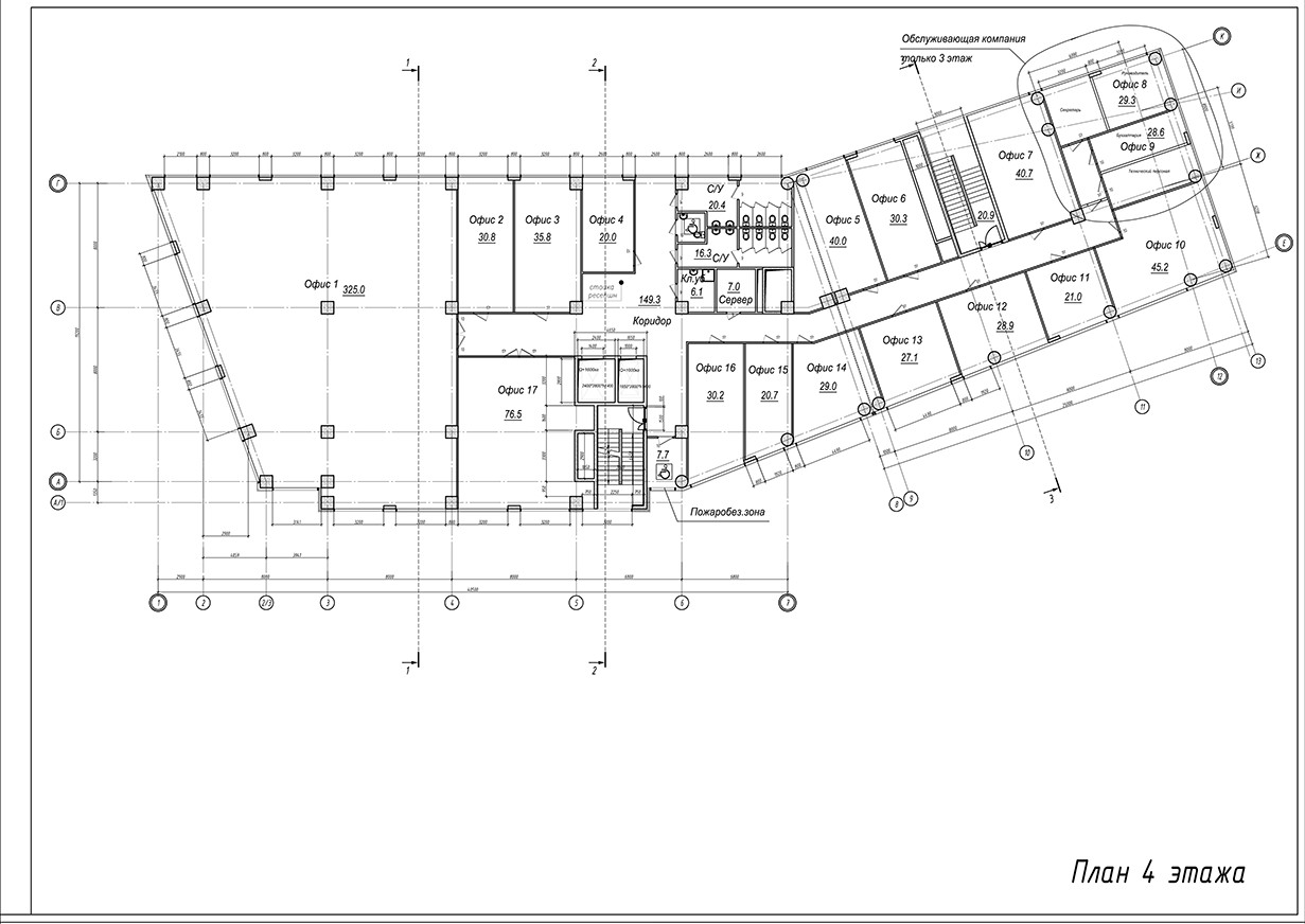
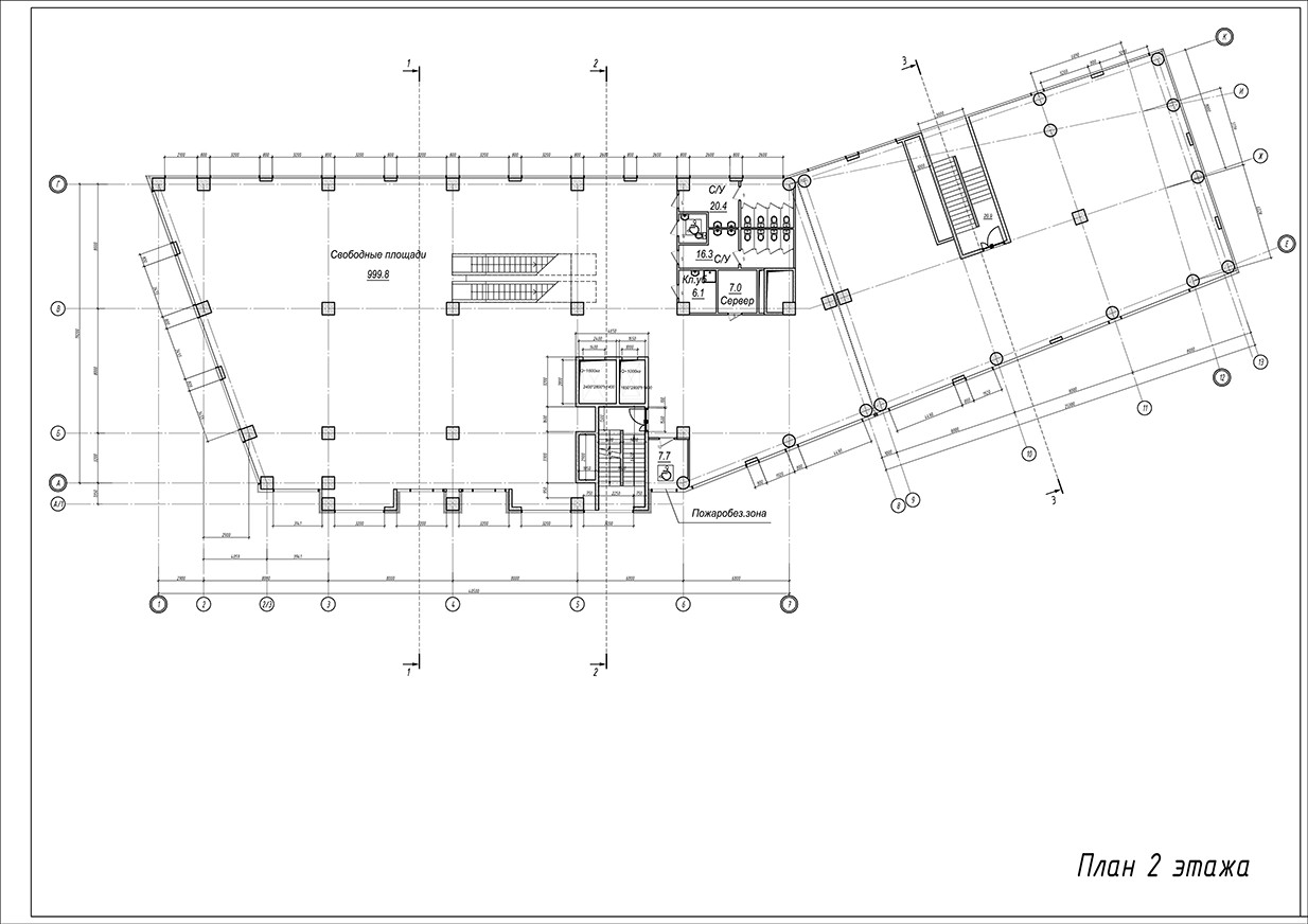
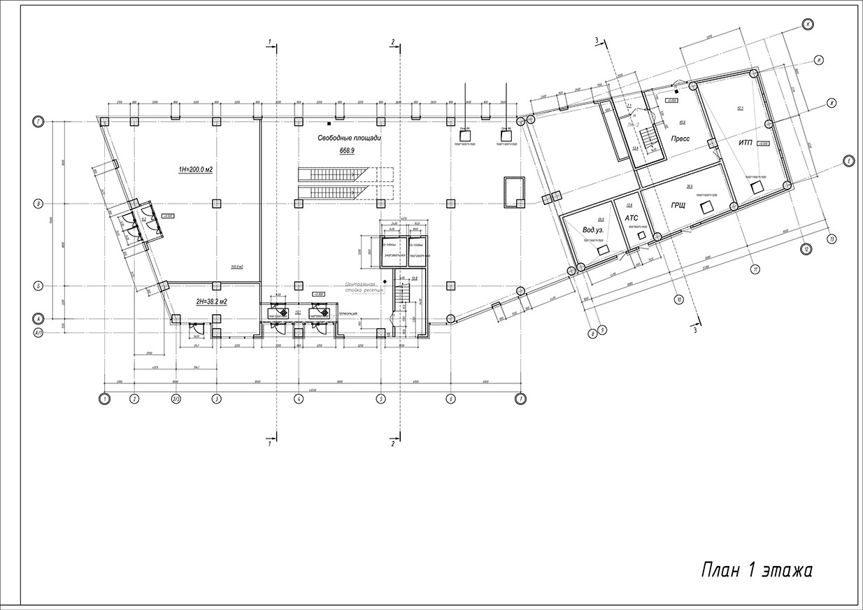
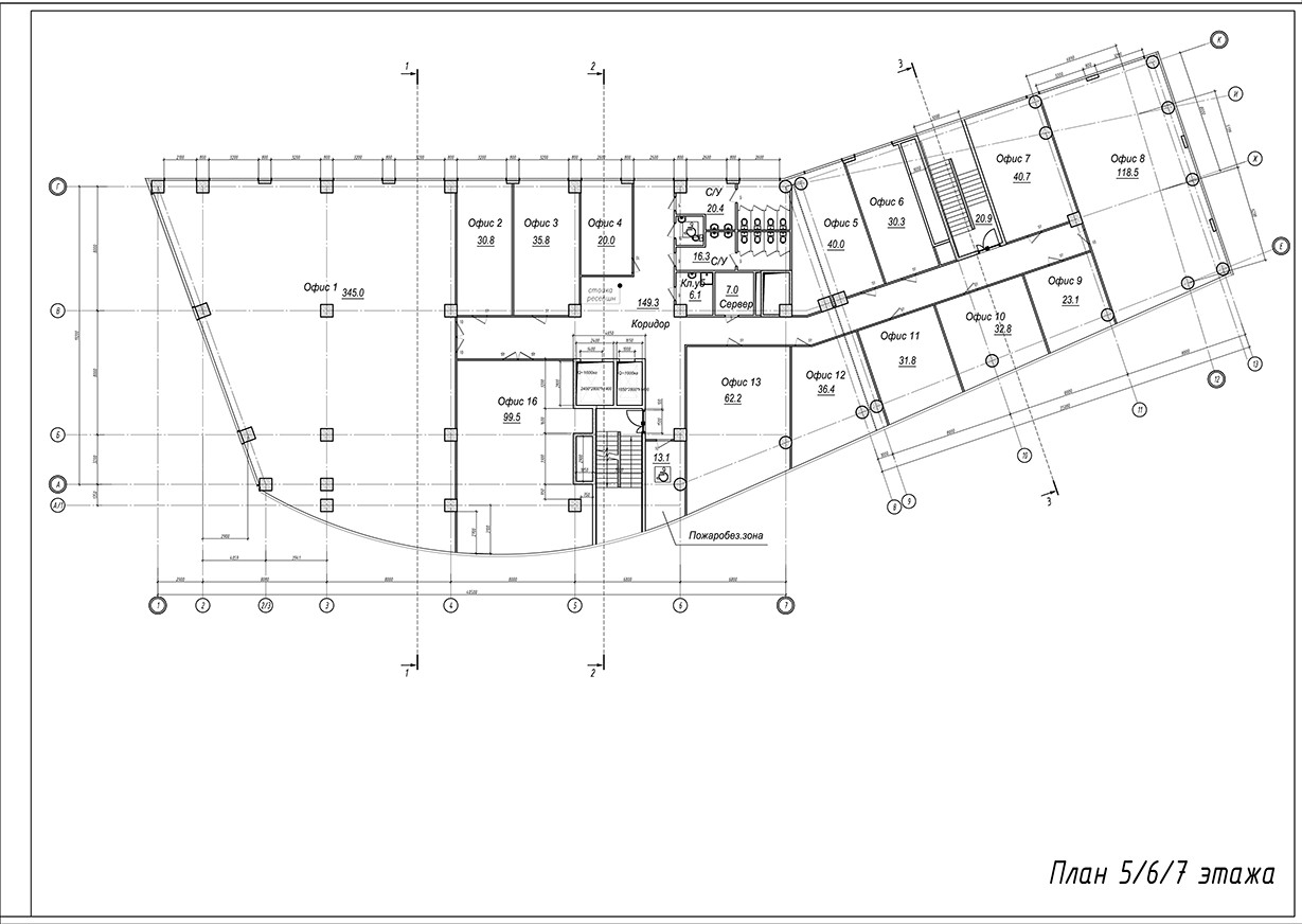
Характеристики проекта
- Площадь застройки 1 206.0 м2
- Общая площадь здания 4 900.0 м2
в том числе:
площадь встроенного паркинга на 4 машиноместа - 138.86 м2
- Строительный объём здания - 20 278.0 м2
- Этажность здания - 4
Характеристики здания
- Общая площадь административно-делового центра составляет 8 000 м2,
из которых:
площадь торговой части - 3000 м2;
площадь офисной части 5 000 м2
- Торговый центр расположится на первых трех этажах здания.
- Торговая зона будет оборудована 2-мя эскалаторами и 2-мя пассажирскими лифтами.
Транспортная доступность
- Проект имеет уникальную транспортную инфраструктуру: непосредственная близость к метро (в 50 м), доступность к выезду из города, аэропорту, КАД и ЗСД.
- К зданию удобно подъехать на автомобиле.
- В зоне 5-минутной шаговой доступности проживает более 40 000 человек.
- В зоне 5-минутной транспортной доступности - более 100 000 человек.
Стоимость
Стоимость предложения - 200 млн.руб.
Стоимость200 млн. руб пересчитать в: долл евро |
Внимание! Здесь указана ориентировочная цена и параметры объекта. Пожалуйста, уточняйте информацию по телефону, e-mail или через форму обратной связи. |









