Земельный участок для общественно-деловой застройки на Пулковском шоссе в Санкт-Петербурге
Внимание! Данный объект снят с продажи!
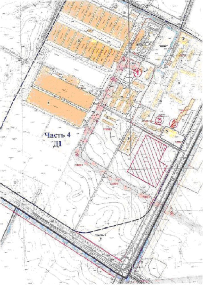
Земельный участок площадью 3 га для общественно-деловой застройки на пересечении Пулковского и Волхонского шоссе в Санкт-Петербурге.
Доступность участка: из города 20-30 минут на автотранспорте.
1-я линия Пулковского шоссе (охранная зона шоссе - 50 метров).
С Пулковского шоссе благоустроенный (асфальтированный) подъезд непосредственно к участку.
Расположение
Санкт - Петербург, Пулковское шоссе, 1-я линия, правая сторона (на выезде из города).
В 3 км от КАД.
До пересечения с Волхонским шоссе- 300 метров.
Доступность участка: из города 20-30 минут на автотранспорте.
1-я линия Пулковского шоссе (охранная зона шоссе -50 метров).
С Пулковского шоссе благоустроенный (асфальтированный) подъезд непосредственно к участку.
Правовая характеристика
Категория земель: земли населённых пунктов.
Разрешённое использование:
Для строительства объектов общественно-деловой застройки (объекты торговли, офисная недвижимость, склады, жилые дома (до 30%)).
Зонирование: зона многофункциональной общественно-деловой застройки (зона Д-1).
Особенности
- Инженерия:
На данный момент проведены все изыскания:
1. Обследование земельного участка на наличие взрывоопасных предметов.
2. Комплексное экологическое обследование.
3. Топосъёмка земельного участка.
4. Инженерно-гидрологические изыскания.
- Технические условия и точки подключения:
1. Получены ТУ по теплоснабжению 1,7 Гкал.
Точка подключения по теплоснабжению - 150 метров.
2. Получены ТУ по электроснабжению - 816 кВА.
Точка подключения по электроснабжению - 800 метров.
3. Точка подключения по водопотреблению и водоотведению - 100 метров.
- Участок имеет очень хорошие видовые характеристики с Пулковского и Волхонского шоссе.
- Разработан и утверждён Градостроительный план земельного участка.
- Разработан и утверждён временный регламент застройки.
- Разработан и находится на утверждении проект планировки.
Стоимость
Стоимость объекта 45 млн.руб.
Стоимость45 млн. руб пересчитать в: долл евро |
Внимание! Здесь указана ориентировочная цена и параметры объекта. Пожалуйста, уточняйте информацию по телефону, e-mail или через форму обратной связи. |



