Земельный участок для строительства многоквартирного 9-этажного жилого дома со встроенными общественными помещениями и подземной автостоянкой с утверждёнными эскизом, ГПЗУ в Красном Селе
Внимание! Данный объект снят с продажи!
документы
Земельный участок площадью 5 286 м2 для строительства многоквартирного 9-этажного жилого дома со встроенными общественными помещениями и подземной автостоянкой с утверждёнными эскизом, ГПЗУ в Красном Селе.
Расположение
Санкт-Петербург, Красносельский район, Красное Село, улица Геологическая.
В 5 км от КАД.
Правовая характеристика
Площадь земельного участка 5 286 м2
Категория земель: земли населённых пунктов.
Разрешённое использование: для размещения многоквартирного жилого дома (жилых домов).
Вид права: собственность юридического лица.
Обременения:
- Охранная зона подстанций и других электротехнических сооружений S = 2 м2.
- Охранная зона канализационных сетей.
- Охранная зона водопроводных сетей.
- Весь участок - в зоне с особыми условиями использования территории в части зон полос воздушных подходов аэродромов и приаэродромной территории Санкт-Петербургского авиационного узла.
- Залог в банке.
В соответствии с ПЗЗ Санкт-Петербурга, территория участка относится к функциональной зоне Т3Ж1.
Т3Ж1 - зона размещения среднеэтажных и многоэтажных (до 9 этажей включительно) многоквартирных жилых домов, расположенных вне исторически сложившихся районов центральной части Санкт-Петербурга, с включением объектов социально-культурного, коммунально-бытового назначения, связанных с проживанием граждан, а также объектов инженерной инфраструктуры.
Максимальный коэффициент использования территории земельного участка - 1.7
Максимальное количество этажей надземной части зданий, строений, сооружений на территории земельного участка - 9 этажей.
Максимальная высота зданий, строений, сооружений на территории земельного участка - 33 метра.
Максимальная доля озеленённой территории - 20% от территории земельного участка.
Особенности
- Район расположения участка
Земельный участок расположен в активно застраиваемом квартале.
В непосредственной близости планируется строительство спортивно-оздоровительного центра с бассейном и теннисными кортами.
В микрорайоне расположены предприятия, обеспечивающие рабочие места местным жителям.
- На территории земельного участка:
объектов капитального строительства нет - участок проектирования свободен от застройки;
объектов культурного наследия нет;
ранее на территории участка было здание, к которому были подведены инженерные коммуникации, - снесено.
- Проектная документация
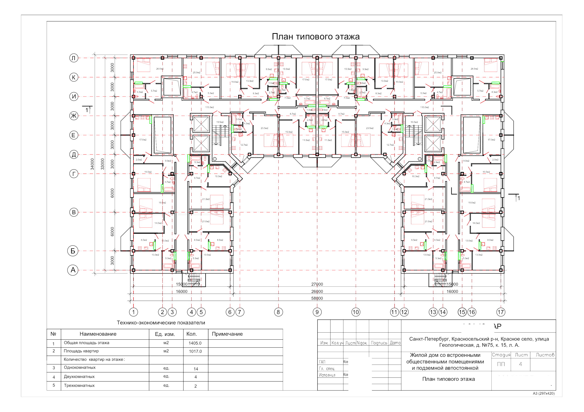
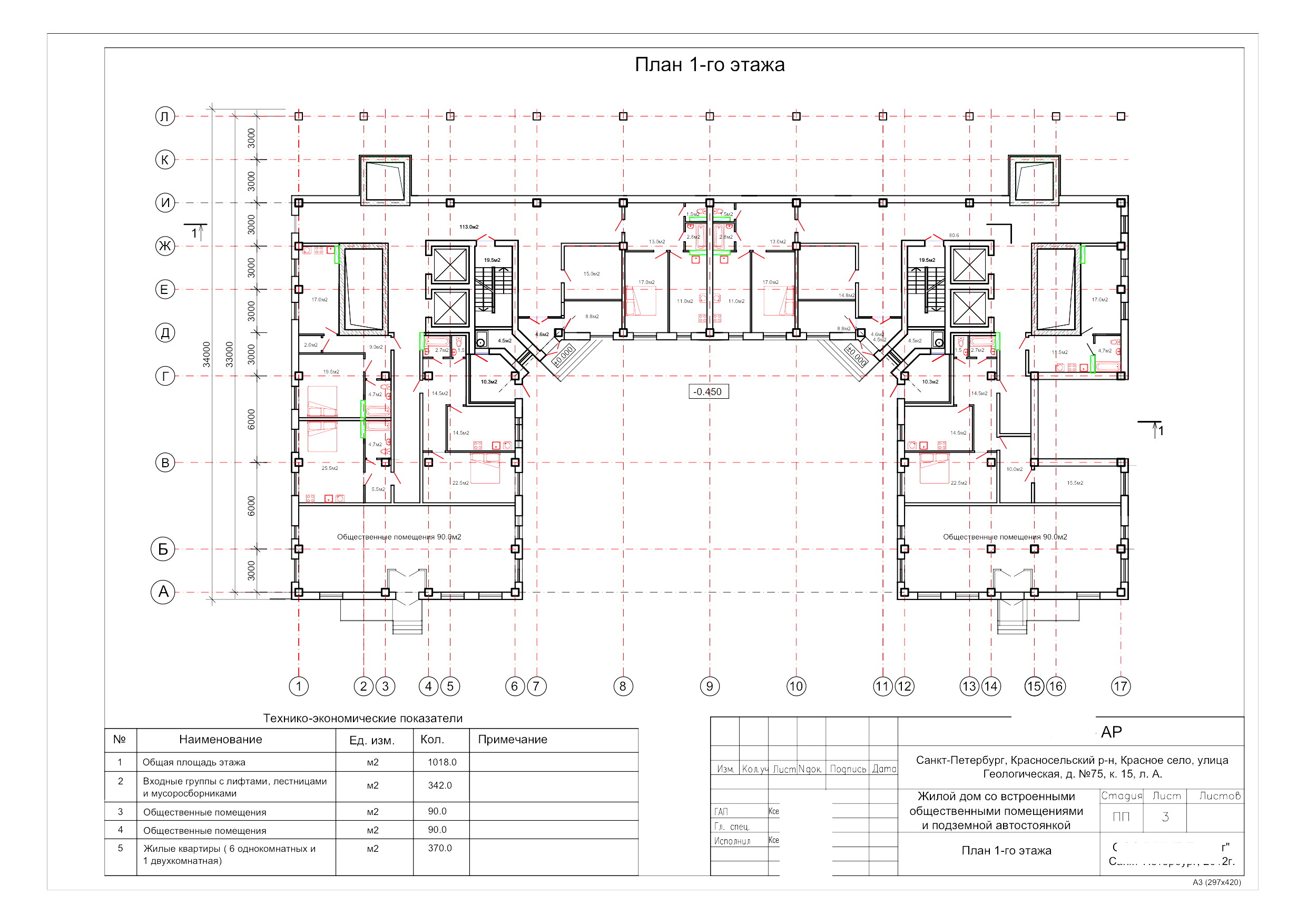
Разработан и утверждён проект строительства многоквартирного жилого дома со встроенными общественными помещениями и подземной автостоянкой.
Проектом предусматривается строительство жилого 9-этажного здания.
Согласованы общие проектные решения (ОПР) и фасад.
Согласованы эскиз проекта планировки территории, утвержден ГПЗУ, распоряжение КГА.
С районным архитектором предварительно согласовано строительство здания общей площадью 23 700 м2.
Основные показатели по генплану
Площадь участка 5286 м2
Площадь застройки 1215 м2
Коэффициент застройки - 22.9
Площадь асфальтобетонного покрытия - 1488 м2
Площадь тротуарной плитки - 80 м2
Площадь отмостки - 166 м2
Площадь озеленения - 1956 м2
Коэффициент использования территории - 1.6
Технико-экономические показатели (ТЭП) здания:
- Площадь жилого здания – 19327,6 м2
- Площадь квартир - 8506 м2
- Жилая площадь квартир – 5193 м2
- Площадь нежилых помещений – 917 м2
- Площадь парковки - 2388,6 м2
- Количество парковочных мест - 88 м/м (подземная автостоянка) + 25 м/м (открытая атостоянка)
- Общее количество квартир - 167 шт, в т.ч.:
1 комнатных квартир - 118
2 комнатных квартир - 33
3 комнатных квартир - 16
Встроеные общественные помещения - 180 м2
- Коэффициент использования территории - 1.6
- Количество жителей в доме - 304 (из расчёта 28 м2/чел.)
Коммуникации
1.Электроснабжение:
Согласовано размещение ТП на участке, устная договоренность на 600 кВт.
2.Теплоснабжение:
Ранее полученные ТУ требуют обновления.заключён договор с ГУП ТЭК. Требуется возобновление.
3.Водоснабжение и водоотведение: заключён договор с ГУП "Водоканал". Требуется возобновление.
Произведена частичная оплата ТУ.
Предоставление дополнительной информации по объекту и организация осмотра и переговоров - по официальной заявке.
Стоимость
Стоимость объекта 90 млн.руб.
Стоимость90 млн. руб пересчитать в: долл евро |
Внимание! Здесь указана ориентировочная цена и параметры объекта. Пожалуйста, уточняйте информацию по телефону, e-mail или через форму обратной связи. |


























