Земельный участок в составе квартала малоэтажной застройки с проектом, ТУ, разрешением на строительство в городе Сосновый Бор
Внимание! Данный объект снят с продажи!
документы
Земельный участок общей площадью
8 652 м2 (1 736 м2 + 2 973 м2 + 3 943 м2) для строительства 3-х многоквартирных пятиэтажных жилых домов в городе Сосновый Бор.
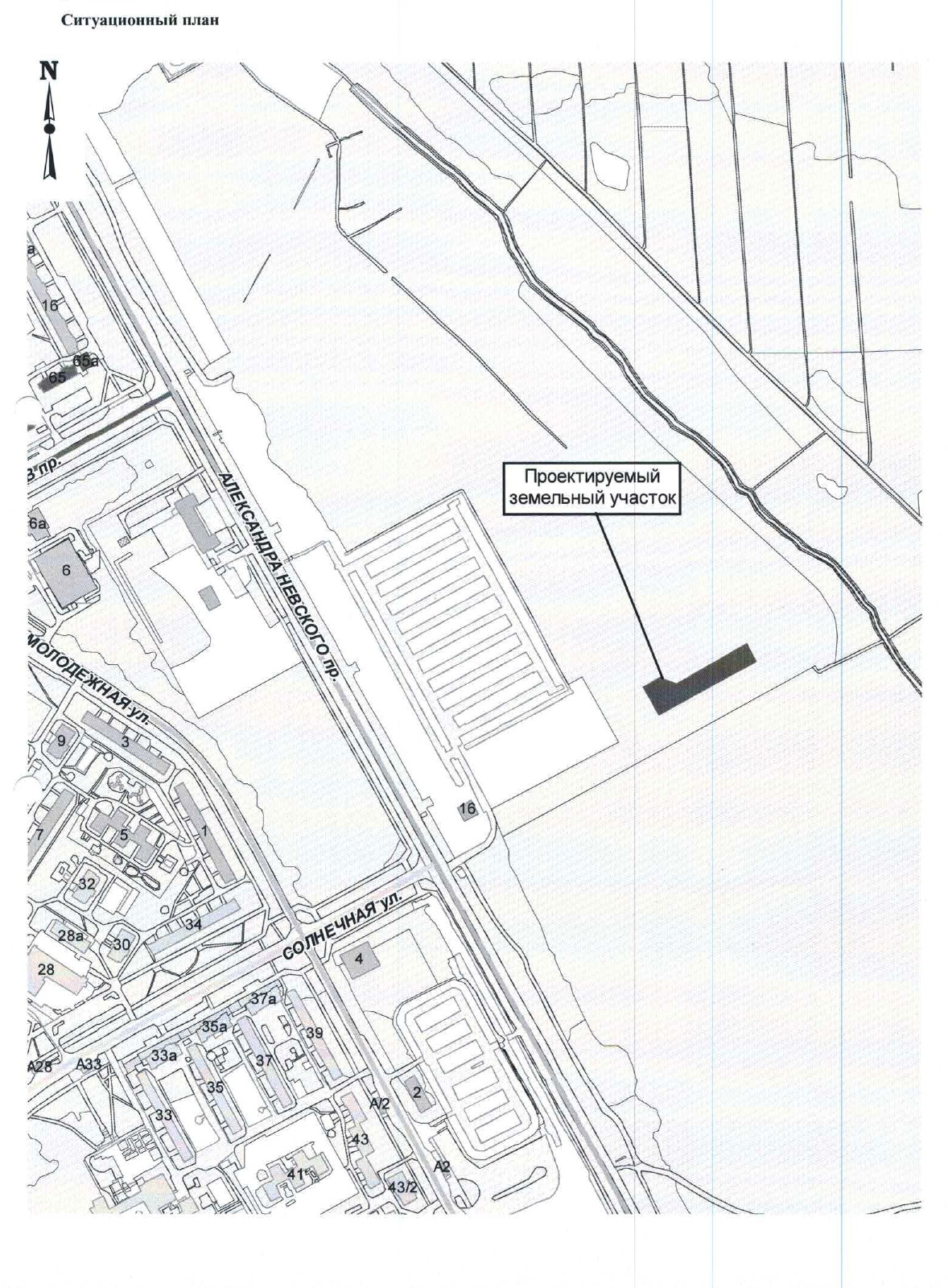
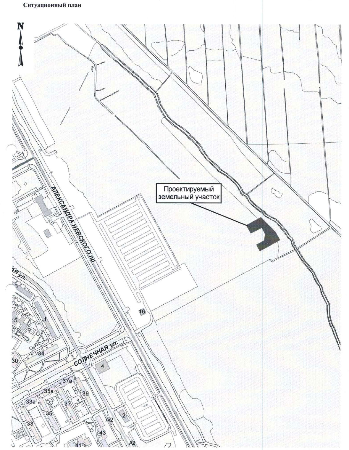
Расположение
Ленинградская область, г. Сосновый Бор, район гаражного кооператива «Искра», продолжение ул. Солнечная.
В 85 км от Санкт-Петербурга, в 35 км от границы Санкт-Петербурга.
Транспортное сообщение:
электропоезд с Балтийского вокзала, время в пути 1 ч. 44 мин.
Маршрутные такси: № 401А от станции метрополитена "Автово".
Правовая характеристика
Общая площадь участка 8 652 м2 (1 736 м2 + 2 973 м2 + 3 943 м2)
Категория земель: земли населённых пунктов.
Разрешённое использование: для реализации проекта многоквартирной жилой застройки.
Вид права: аренда - участки получены в аренду с аукциона.
ПЗЗ: функциональная зона Ж-2 - зона застройки средне- и малоэтажными жилыми домами.
Высотный регламент - 18 м.
Площадь застройки на участке составляет 4 723 м2.
Особенности
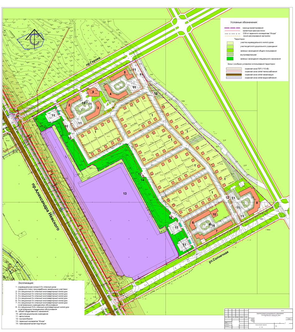
- Земельный участок - в составе квартала малоэтажной застройки общей площадью 50 606 м 2.
- Проект планировки (ППТ), проект межевания (ПМ) территоррии квартала малоэтажной застройки утверждены постановлением администрации Сосновоборского городского округа.
- Проектируемые объекты, объем строительства на участке общей площадью 8 652 м2:
3 жилых дома. общая площадь квартир 16 825 м2.
Дома предложено строить по монолитной технологии, которой отдают предпочтение большинство покупателей:
жилой дом на 72 квартир,
жилой дом на 129 квартир,
жилой дом на 164 квартир,
детский сад,
детская площадка,
площадка для занятий физкультурой,
площадка для отдыха взрослого населения,
автостоянка 186 машиномест,
трансформаторная,
площадка сбора отходов,
дорожная сеть.
- Объекты инженерной инфраструктуры: инженерная подготовка территории, теплоснабжение, водоснабжение, водоотведение и канализационирование, электроснабжение предусматриваются от существующих сетей.
Технические условия
Получены все необходимые ТУ для начала реализации проекта строительства жилых домов от следующих ресурсопоставляющих компаний:
- Теплоснабжение
Сосновоборское муниципальное унитарное предприятие “Теплоснабжающее предприятие”
- Электроснабжение
Ленинградская Областная Электросетевая Компания (”ЛОЭСК”)
- Водоснабжение и канализация
Сосновоборское муниципальное унитарное предприятие
- Экспертиза проекта
Проведена экспертиза проекта. Получено положительное заключение.
Преимущества
В 2014 году администрацией города будет проведен аукцион на инженерную подготовку квартала, внутри которого находится участок застройки.
Инженерная подготовка за счет средств бюджета позволит значительно сократить затраты на начальном этапе.
Стадия реализации проекта на момент привлечения инвестиций
- Заключены три договора аренды земельных участков, общей площадью 8 652 м2.
- Получены технические условия на подключение проектируемых объектов к сетям инженерной инфраструктуры:
- водоснабжения
- водоотведения и хозяйственно-бытовой канализации
- ливневой канализации
- теплоснабжения
- электроснабжения
- Разработана концепция освоения земельного участка
- Разработана проектная документация.
Получено разрешение на строительство на все 3 участка:
1. На земельном участке площадью 1 736 м2
Строительство многоквартирного жилого дома средней этажности:
общая площадь 5 321 м2, (в том числе подземной части - 2 225 м2)
количество этажей - 6, из них 5 - жилых, 1 - подземный
строительный объём - 18 033 м3 .
2. На земельном участке площадью 2 973 м2
Строительство многоквартирного жилого дома средней этажности:
общая площадь 8 207 м2, (в том числе подземной части - 3 457 м2);
количество этажей - 6, из них 5 - жилых, 1 - подземный
строительный объём - 28 039 м3.
3. На земельном участке площадью 3 943 м2
Строительство многоквартирного жилого дома средней этажности:
общая площадь 9 648 м2, (в том числе подземной части - 4 130 м2)
количество этажей - 6, из них 5 - жилых, 1 - подземный
строительный объём - 33 500 м3.
Объекты социальной инфраструктуры
Проектом планировки и межевания квартала (постановление администрации от 30.09.2010) предусмотрено:
- строительство объекта дошкольного образования на 50 мест - за счёт муниципальных средств
- объектов социально-культурного и коммунально-бытового обслуживания населения,
- строительство объектов торговли, объектов инженерной и транспортной инфраструктуры за счёт федерального и муниципального бюджетов.(см приложение).
- Машиноместа:
Проектом предусматривается устройство открытых автостоянок на 186 машиномест.
Район застройки
Жилой квартал, состоящий из трех 5-ти этажных жилых домов, строится в новом и перспективном квартале малоэтажной застройки.
Для строительства жилого комплекса выбрано поистине уникальное место.
Дома возводятся на границе сложившейся лесопарковой зоны, вблизи озера Калищенское. Парк и озеро являются излюбленным местом отдыха сосновоборцев.
Кроме того, данная территория - основное направление развития города.
В жилом комплексе предусмотрены квартиры различной площади и планировки. В них каждый обратившийся сможет выбрать оптимальный для себя вариант.
Планировочные решения разрабатывались для максимального охвата аудитории.
Концепция застройки
Дома спроектированы по европейским стандартам: просторные застекленные балконы, подготовленные под отделку квартиры.
Каждый дом выполнен по монолитной технологии, которой отдают предпочтение большинство покупателей.
На внутридворовую территорию, огражденную по периметру квартала, будет организовано несколько въездов.
На территории комплекса будет построена наземная стоянка, места для установки велосипедов и колясок с противоугонной конструкцией.
Объекты инфрастуктуры в прилегающем районе: школы, крупные супермаркеты, аптеки, торговые центры.
Во дворе комплекса предусмотрены детские и спортивные площадки, пешеходные дорожки и газоны. Непосредственно на территории комплекса расположен детский ад.
Сильные стороны проекта:
- локальность территории, экологически чистая ситуация района, удалённость от промышленных предприятий (ЛАЭС не относится к вредным производствам), возможность приобретения квартир небольших площадей от 50-70 м2 по доступной цене;
- свободные планировки без несущих стен внутри квартиры, позволяющие трансформировать пространство под конкретные нужды и индивидуальные предпочтения;
- панорамное остекление и повышенная инсоляция зон, выгодно отличающие объект (даже в пасмурную погоду света в помещении будет больше, чем в обычной квартире);
- просторные балконы и лоджии с видом на окружающий пейзаж;
- плотность застройки ниже, чем в других районах Соснового Бора.
Типы и площади квартир
Общая площадь квартир для продажи - 16 825 м2
Общее количество квартир - 365 шт.
Типы планировок представлены в класическом варианте с отдельной кухней-гостиной.
Проектом предусмотрены ликвидные квартиры, половина из которых представлена квартирами-студиями и однокомнатными квартирами как самыми востребованным форматами.
Различные схемы оплаты обеспечат доступность покупки большинству покупателей.
Типовые решения
Подход позволил создать более удобное и функциональное жилье, которое изначально проектировалось в соответствии с потребностями и образом жизни современного человека.
Каждый метр функционален. Нет «мертвых» и темных зон, которые сказываются на стоимости покупки, но не приносят пользы.
Объемы помещений выстраиваются согласно тому, какие предметы обстановки нужно предусмотреть.
Планировки способствуют семейной атмосфере. Здесь есть место для сбора и общения всей семьи, и у каждого есть место для отдыха и уединения.
Планируемая площадь квартир с учетом лоджий и балконов - от 24.4 до 72.8 м2.
Замысел отличает рациональность дизайнерских решений, подчиненных идее комфорта и функциональности.
Внутри квартир нет несущих стен, что позволяет промизводить перепланировку. Квартиры сдаются в эксплуатацию с установленными качественными стеклопакетами, радиаторами отопления и входными дверями.
На территории застройки будут осуществлены ландшафтные работы по индивидуальному дизайн-проекту.
Более 50% площади квартала отдано под зеленые зоны.
К особенностям каждой квартиры можно отнести:
- свободные планировки, с предложенными рациональными решениями по зонированию пространства;
- панорамное остекление и повышенная инсоляция зон столовой и спальни;
- просторные лоджии и балконы с панорамным видом на окружающий пейзаж;
Благоустройство территории включает: площадки для игр детей дошкольного и младшего школьного возраста, площадки для отдыха взрослых, озеленение внутридворовой территории.
Построенное в рамках проекта жилье соответствует потребностям рынка.
Анализ ситуации и перспективы развития квартала
Сосновый бор
Город расположен в экономически развитом регионе. В сравнении с другими районами Ленинградской области Сосновый Бор занимает лидирующие позиции по уровню заработной платы, объему инвестиций, объему строительных работ, показателям потребительского рынка в расчете на душу населения.
Недвижимость и строительство
Наиболее активный рост Соснового бора и его застройка пришлась на период с 1973 по 1989 г.г.
Многоквартирные жилые дома обладают большим процентом износа - 68,5 %, и износ сетей тепло-, водоснабжения, канализации составляет около 80 %.
На второй квартал 2014 г. администрация Соснового Бора утвердила среднюю рыночную стоимость одного квадратного метра общей площади жилья.
По сравнению с данными квартальной давности, эта величина увеличилась на три тысячи рублей и составила 64 332 руб.
Средняя рыночная стоимость квадратного метра жилья применяется для расчёта размера субсидий из федерального и областного бюджетов для реализации программ по улучшению жилищных условий.
По данным Росстата на 2013 год, в Сосновом Бору стоимость квадратного метра на вторичном рынке в среднем показателе составляет 65 000 рублей при средней зарплате в городе - 43 500 руб. на все трудоспособное население города.
По оценкам экспертов, динамика цен на недвижимость в Сосновом Бору определяется его удаленностью от северной столицы.
Это формирует локальный спрос на жилье на первичном и вторичном рынках и приводит к тому, что стоимость квадратного метра существенно ниже, чем в Петербурге.
Средняя обеспеченность жилой площадью на одного жителя на 01.01.2013 года составила 19,8 м2, в то время как обеспеченность жильем жителей Петербурга составляет 24 м2 на человека. Это почти в 2 раза ниже среднего европейского показателя (42 м2 на человека).
В 2013 году строительный рынок сохранял положительную динамику развития.
Развитие отрасли осуществляется в основном за счет частного капитала.
В связи с отсутствием в городе активной жилой застройки у жителей Соснового бора нет возможности улучшить жилищные условия и переехать в новые квартиры.
До 2020 года запланировано проектирование и строительство комплекса домов на 1 453 квартиры общей площадью 87 000 м2 - для структурных подразделений Росэнергоатома.
Кроме многоквартирных домов, Росэнергоатом создает фонд корпоративного временного жилья (общежитие).
Фонд позволит временно разместить более 800 работников, которые в настоящее время из-за нехватки предложения н арынке не могут быть обеспечены квартирами.
Несмотря на введеный объем нового жилья, рынок недвижимости Соснового Бора имеет ярко выраженный дефицит новых объектов и, как следствие, хорошие перспективы для роста предложения.
Население
Численность населения округа на 01.01.2013 г. по предварительным расчетным данным статистики составила 67 257 чел.
В ближайшей перспективе, благодаря большому объему работ по строительству и последующей эксплуатации Ленинградской АЭС-2, предполагается дальнейший рост населения округа за счет миграционного прироста.
Прогноз приёма персонала до 2015 г. Ленинградской АЭС и ЛАЭС-2 составляет 2 844 человека.
Всего увеличение численности жителей Соснового бора прогнозируется на 10-12 тысяч человек до 2020 года.
С притоком новой рабочей силы и молодых специалистов придется решать вопрос и со строительством новых объектов социально-культурного назначения – спортивных, оздоровительных и молодежных центров.
Развитие жилых зон будет осуществляться в восточном и северном направлениях, где помимо жилых домов будут строиться объекты торговой и социальной инфраструктуры.
Наращивание объемов нового жилищного строительства повысит инвестиционную привлекательность территории для торговых объектов.
Кроме того, город намерен начать строительство жилья для иногородних студентов, обучающихся в ИЯЭ, который готовит специалистов для предприятий атомной отрасли.
Численность занятых на предприятиях и организациях округа на начало 2013 года составляет 32 тыс. чел., в том числе 22,5 тыс. чел. - работники списочного состава крупных и средних предприятий.
Свободных трудовых ресурсов для вновь создаваемых производств в городе немного.
Маятниковая миграция на работу в Санкт-Петербург оценивается в 2-3 тыс. человек.
Сосновый Бор является привлекательным не только для атомщиков, но и для пожилых людей, предпочитающих жить в спокойной обстановке, которые достигают в доле увеличения населения 12%.
Для них город может предложить развитую инфраструктуру, безопасность и тишину на улицах, а также пляжи Финского залива, леса и уютные дачные массивы.
Государственные программы
В настоящее время в концерне Росэнергоатом разработана и утверждена комплексная жилищная программа обеспечения сотрудников ЛАЭС жильем до 2020 года в Сосновом Бору.
В октябре 2011 года была утверждена отдельная программа обеспечения жильем работников ЛАЭС и ЛАЭС-2 на период 2011-2015 г.г.
Концерн «Росэнергоатом» определил несколько видов помощи в приобретении жилья:
- компенсация части процентной ставки по кредиту, но не более 7%;
- беспроцентная ссуда работнику до 50% от первого взноса на срок до 10 лет. (до 800 тыс..руб.);
- безвозвратная субсидия для молодых работников.
Кроме того, в городе действуют целевые городские программы, направленные на улучшение жилищных условий нуждающимся.
На учете нуждающихся в улучшении жилищных условий в администрации города по состоянию на 01.07.2013 года состоят 1 139 семей, в том числе 392 семьи льготной категории граждан.
Кроме того действуют городские программы:
- Обеспечение жилыми помещениями работников муниципальной бюджетной сферы Сосновоборского городского округа на 2013-2015 годы -
- Обеспечение специалистов бюджетной сферы Сосновоборского городского округа жилыми помещениями специализированного жилищного фонда коммерческого использования на 2013- 2015 годы
- Обеспечение жильем молодежи на 2012-2015 годы ;
- Обеспечение жильем молодых педагогов на основе принципов ипотечного кредитования на 2014-2015 годы.
Экономика
Спрос на новостройки может быть обусловлен не только приростом численности населения, но и улучшением экономической ситуации в городе.
Оборот розничной торговли покрупными средним организациям за прошедший год составил 274,3 млн.руб.,что на 18,6% выше уровня соответствующего периода прошлого года.
В расчете на душу населения оборот розничной торговли составил 40,8 тыс.руб.(в 2011 году, соответственно, - 34,5 тыс. руб.), в то время как в Санкт-Петербурге данный показатель составляет 32,7 тыс.руб.
Фактическая обеспеченность населения торговыми площадями составляет 597 м2/1000 чел., что соответствует 118,3% от утвержденного для региона норматива, и этот показатель с каждым годом растет.
Повышенному интересу со стороны инвесторов и перспективам развития города способствует региональная программа.
Формирования зон инновационно-технологического развития (пилотные зоны - Гатчина и Сосновый бор).
Средняя заработная плата работников крупных и средних организаций Сосновоборского городского округа за 2013 год находилась в диапазоне 31 000-53 000 руб.
Годовой прирост составил 108,6%.
Значительный рост фонда оплаты труда и средней заработной платы по сравнению с аналогичным периодом прошлого года объясняется произведенными премиальными выплатами по итогам 2013 года за счет консолидированной прибыли «Концерна Росэнергоатом».
Потребительский рынок Соснового Бора представлен всеми современными форматами торговли - гипермаркеты, супермаркеты, специализированные продовольственные и непродовольственные магазины, магазины у дома.
Развивается фирменная торговля, розничные торговые сети.
Все вышеприведенные показатели говорят о благоприятной экономической ситуации в городе, которая будет способствовать повышенному интересу к новому жилью.
Выводы
Потенциал города во многом недооценен девелоперами.
При грамотном и профессиональном проведении всех дальнейших этапов реализации проекта, строительство многоквартирного жилого дома имеет большие шансы на успех и устойчивый спрос на квартиры.
Показатель для успешного сбыта квартир зависит от следующих основных компонентов:
- Качество продукта (параметры, цена, сервис).
- Успех маркетинговой компании.
- Осуществление программы привлечения ипотечных средств.
- Установление взаимоотношений с агентствами.
Учитывая все приведенные показатели по экономическому состоянию города и его потенциалу роста, сегмент жилищного строительства в данном регионе оценивается как наиболее перспективный.
Предоставление иных сведений по объекту - по официальному запросу.
Стоимость
Стоимость объекта 90 млн.руб.
Стоимость90 млн. руб пересчитать в: долл евро |
Внимание! Здесь указана ориентировочная цена и параметры объекта. Пожалуйста, уточняйте информацию по телефону, e-mail или через форму обратной связи. |
Расстояние до Санкт-Петербурга
58 км. (указано расстояние до КАД Санкт-Петербурга по прямой).





























