Земельный участок для строительства жилого дома со встроенными помещениями и подземной автостоянкой с предпроектным предложением ТУ на проспекте Тореза
Внимание! Данный объект снят с продажи!
документы
Земельный участок площадью 11 193.6 м2 для строительства жилого дома со встроенными помещениями и подземной автостоянкой с предпроектным предложением с полученными ТУ на проспекте Тореза.
Расположение
Санкт-Петербург, Выборгский район, проспект Тореза, д. 102, корпус 4, лит. А.
Правовая характеристика
Площадь земельного участка 11 193.6 м2
Территориальная зона Т3Ж1
Виды использования:
Основные виды использования:
жилые многоквартиные дома;
для размещения подземных гаражей;
для размещения стоянок индивидуального легкового автотранспорта;
для размещения объектов розничной торговли.
Вид права: в собственности юридического лица.
Особенности
- На участке капитальное здание - под снос.
- Получен ГПЗУ. Утверждён ППТ.
- Цель разработки предпроектных предложений:
- формирование объёмно-планировочного решения территории участка в увязке с общим решением квартала;
- разработка технического и архитектурного облика объекта.
- Особые условия предпроектных предложений
Решения потребуют уточнения после утверждения плана встроенных помещений, поэтажных планов окружающей застройки, данных по инженерным сетям, а также Градостроительного плана земельного участка.
Схема планировочной организации земельного участка
- Площадь земельного участка 11 193.6 м2
- Ограничение по высотности - до 50 м
- Максимальный коэффициент использования территории К= 2.3
- Отступы от границ земельного участка при предложенной компоновке:
Со стороны соседних земельных участков - отступ от границ земельного участка зданий и строений с окнами - на расстоянии, обеспечивающем освещённость и инсоляцию в любой точке по границе ЗУ, но не менее 10 м.
- Площадь озеленения - 23 м2/100 м2 общей площади квартир.
- Потребность в автотранспорте - 1 м/м на 80 м2 общей площади квартир.
Проектом предусматривается комплексное благоустройство и озеленение площадки с устройством сети внутриквартальных проездов.
Архитектурно-строительные решения
- Площадь земельного участка 11 193.6 м2
- Площадь застройки - 4 021.0 м2 , в т.ч. жилой дом 2 398.0 м2 , стилобат 1 623.0 м2
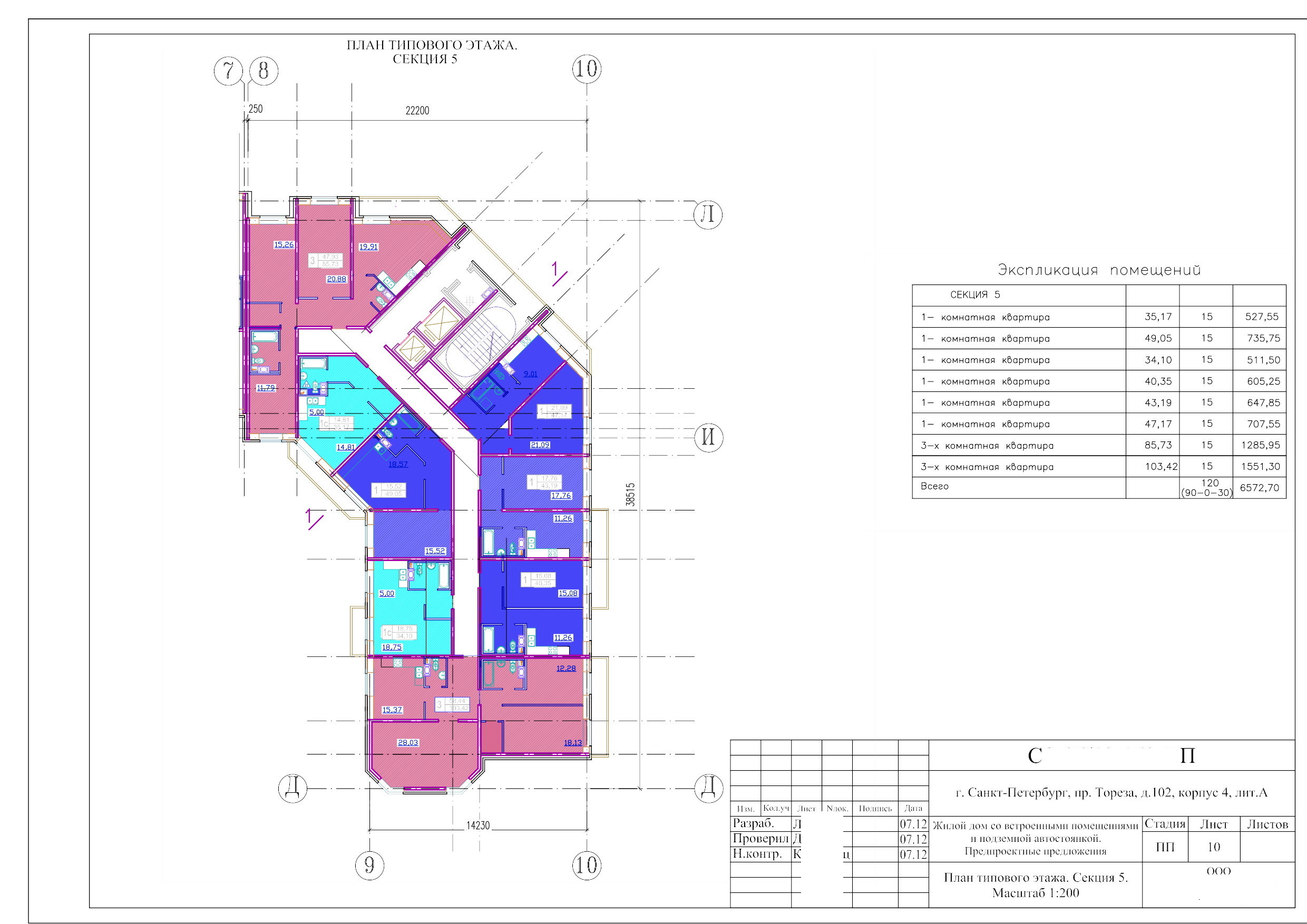
- Общая площадь квартир - 20 118.7 м2
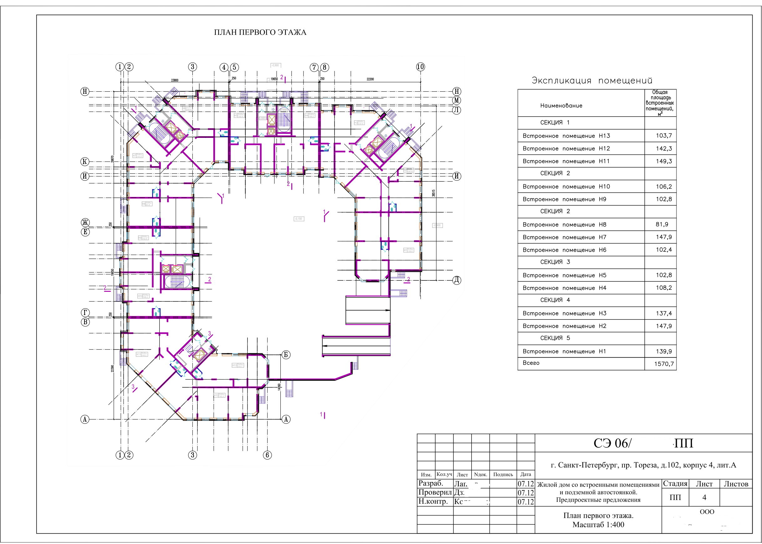
- Общая площадь помещений для магазинов непродовольственных товаров – 1 570.7 м2
- Коэффициент использования территории - 1.94
- Коэффициент озеленения - 24.8 %
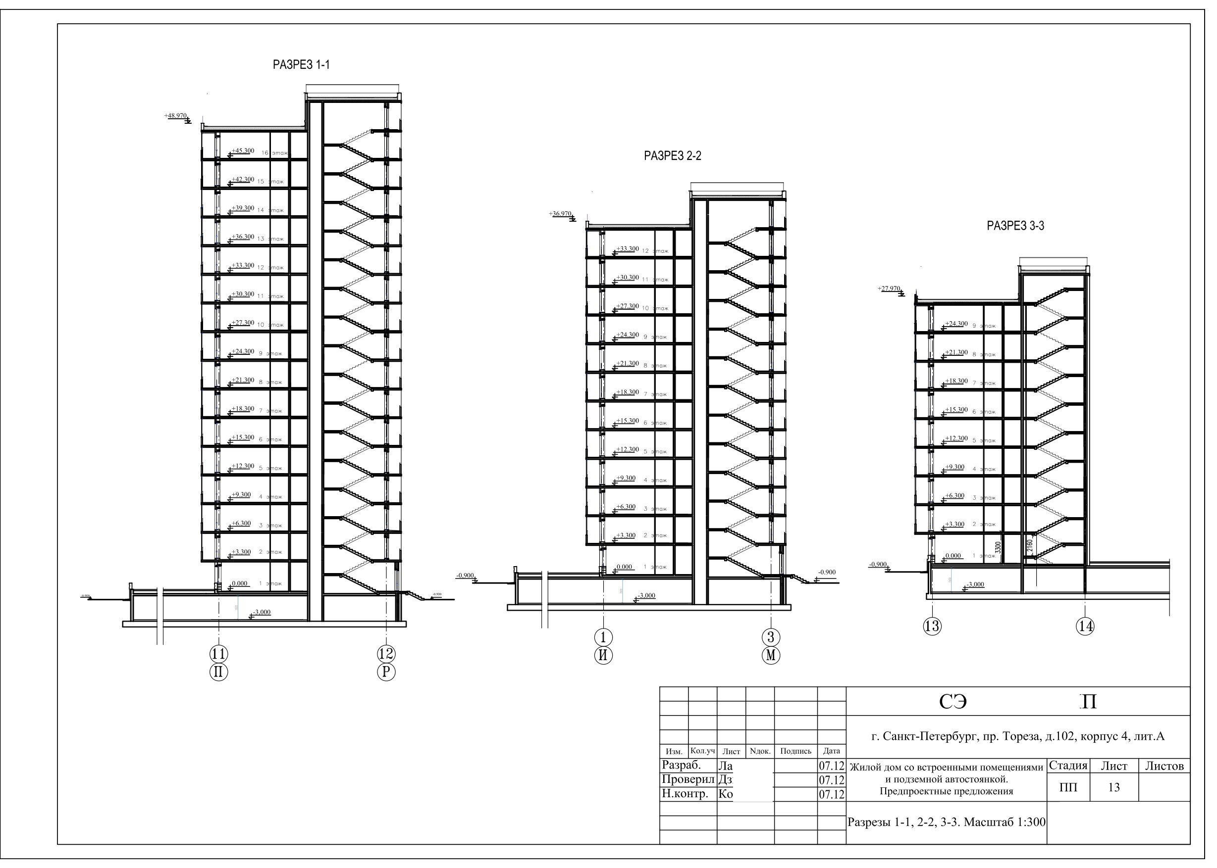
- Этажность 9-16 этажей
- Вместимость подземной автостоянки – 75 машиномест.
Технические условия (ТУ)
Оплачены 250 кВт электрической мощности.
Поддерживаются сети и оплачиваются мощности по водо- и газоснабжению здания.
Подана заявка на технологическое присоединение:
- Заключён договор с ТЭК СПб о подключении объекта к тепловым сетям
Согласованное количество тепловой мощности - 2.483 Гкал/час. , в том числе:
отопление - 1.488 Гкал/час,
вентиляция - 0.165 Гкал/час,
ГВСмакс.час - 0.83 Гкал/час
ТУ от 12.09.2012 г. Срок действия – до 12.09.2014 г.
Стоимость услуги - 18 429 322 руб.
- Заключён договор с ГУП «Водоканал Санкт-Петербурга»
Получены технические условия (ТУ) «Водоканал Санкт-Петербурга»
Водоотведение
Отпуск питьевой воды, приём сточных вод и загрязняющих веществ в сети коммунальной канализации возможен:
Отпуск питьевой воды: нагрузка, потребляемая объектом капитального строительства в пределах 20.325 м3 /час (в том числе увеличение нагрузки 20.116 м3 /час)
Сброс сточных вод: максимально подключаемая нагрузка - 14.02 м3 /час (336.45 м3/сут).
Сброс поверхностных сточных вод с кровли и прилегающей территории и дренажных вод: максимально подключаемая нагрузка общим расходом - 3.635 м3 /час (21.81 м3/сут).
Предоставление дополнительной информации по объекту, организация осмотра и переговоров - по официальной заявке.
Стоимость
Стоимость объекта с наработанной документацией – 420 млн.руб.
Стоимость420 млн. руб пересчитать в: долл евро |
Внимание! Здесь указана ориентировочная цена и параметры объекта. Пожалуйста, уточняйте информацию по телефону, e-mail или через форму обратной связи. |























